Omschrijving

Licht en ruim 4-kamerappartement met vrij uitzicht en zonnig balkon

Op de vijfde verdieping van een verzorgd appartementencomplex in Zoetermeer vind je dit lichte en ruime 4-kamerappartement met een prachtig uitzicht over het groen. De woning beschikt over een royale woonkamer, drie slaapkamers, een moderne open keuken, een zonnig balkon en een eigen berging in de onderbouw.
Dankzij de ligging op hoogte geniet je hier van rust, licht en privacy.

HIGHLIGHTS
+ Ruime…

Lees meer

Kenmerken

  • Status Beschikbaar
  • Vraagprijs € 295.000 kosten koper Hypotheek berekenen
  • Woonoppervlakte ca. 89 m2
  • Aantal slaapkamers 3
  • Bouwjaar 1972
Meer kenmerken

Vragen of even
binnenkijken?

Neem vrijblijvend contact
op met Nick Oorschot

Meer kans maken?

Laat zien dat je financieel sterk staat!
Met een KopersPaspoort© toon je aan dat je snel kunt schakelen. Meer kans op jouw droomhuis!

Open Woningwaarde Dag

Benieuwd naar de waarde van je huis? Maak gebruik van een gratis waardebepaling tijdens onze Open Woningwaarde Dag!

Tijdens de Open Woningwaarde Dag komen we langs om binnen 20 minuten de waarde van jouw huis te bepalen.

ONLINE ZOEKSERVICE

Door een gratis zoekprofiel aan te maken krijg je voortaan ál het nieuwe huizenaanbod van álle makelaars direct in je mailbox, vaak al voordat het op Funda staat.

Licht en ruim 4-kamerappartement met vrij uitzicht en zonnig balkon

Op de vijfde verdieping van een verzorgd appartementencomplex in Zoetermeer vind je dit lichte en ruime 4-kamerappartement met een prachtig uitzicht over het groen. De woning beschikt over een royale woonkamer, drie slaapkamers, een moderne open keuken, een zonnig balkon en een eigen berging in de onderbouw.
Dankzij de ligging op hoogte geniet je hier van rust, licht en privacy.

HIGHLIGHTS
+ Ruime woonkamer met grote raampartijen en groen uitzicht
+ Zonnig balkon op het zuidwesten
+ Gelegen in een verzorgd complex met lift en eigen berging

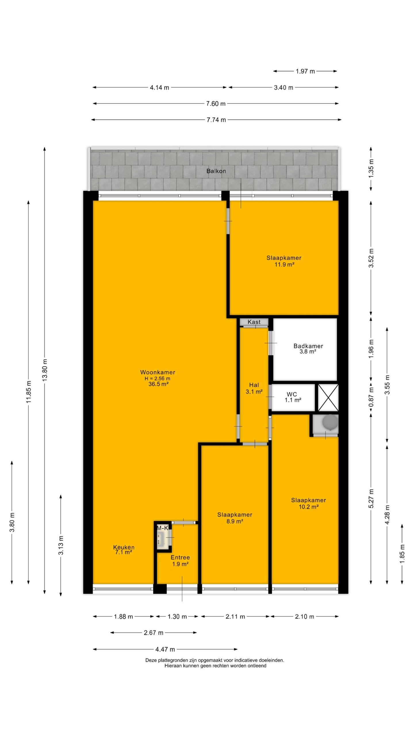
INDELING
De centrale entree van het gebouw is verzorgd en modern ingericht. Je komt binnen via een afgesloten hal met bellentableau, brievenbussen, intercom, twee liften en een trappenhuis naar de verdiepingen en de bergingen.

Het appartement zelf heeft een prettige indeling met veel lichtinval. Vanuit de hal met meterkast bereik je de ruime woonkamer, die dankzij de grote raampartij een weids uitzicht biedt over de groene omgeving. De nette laminaatvloer loopt door in de gehele woning en zorgt voor een rustige, verzorgde uitstraling.
Aan de voorzijde ligt de open keuken in wandopstelling, voorzien van een inductiekookplaat. Vanuit de woonkamer stap je de eerste slaapkamer binnen, gelegen aan de achterzijde, met directe toegang tot het zonnige balkon op het zuidwesten – een fijne plek om te ontspannen en van de middagzon te genieten.

Via de tussenhal bereik je de overige vertrekken. Slaapkamer twee en drie liggen aan de voorzijde; één daarvan beschikt over een vaste kast met de opstelplaats van de boiler. De badkamer is volledig betegeld en uitgerust met een douchecabine, wastafel en aansluiting voor de wasmachine. Daarnaast is er een separaat toilet met fonteintje.
In de onderbouw vind je een eigen berging, handig voor fietsen of extra opslagruimte.

OMGEVING
De ligging is rustig en groen, met alle dagelijkse voorzieningen binnen handbereik. Winkelcentrum Meerzicht, scholen, sportvoorzieningen en openbaar vervoer liggen op loop- of fietsafstand. Voor ontspanning ben je binnen enkele minuten in het Westerpark, en met de auto rijd je via de A12 en N206 zo naar Den Haag, Leiden of Rotterdam.

Klinkt dit als jouw ideale thuis? Loop alvast in 3D door de woning om alle ruimtes te bekijken en maak snel een afspraak voor een bezichtiging!

PLUSPUNTEN
+ Energielabel B
+ Zonnig balkon met vrij uitzicht over groen
+ Volledig voorzien van laminaatvloer
+ Eigen berging in de onderbouw
+ Lift aanwezig in het complex
+ Goed onderhouden gebouw
+ Royale woonkamer met veel licht
+ Drie slaapkamers
+ Rustige ligging met veel privacy
+ Gelegen op eigen grond
+ Volledig voorzien van isolerende beglazing
+ Bouwjaar: ca. 1972
+ Woonoppervlakte: ca. 90 m²
+ Inhoud: ca. 281 m³
+ Eigen grond

OMGEVING
Benieuwd naar de omgeving? Bekijk alle voorzieningen onder het kopje ‘In de buurt’!

INTERESSE?
Dan nodigen we je uit om contact met ons op te nemen. We vertellen je graag meer over deze woning en zorgen ervoor dat je overige stukken en algemene voorwaarden verkopend makelaar digitaal via jouw persoonlijke Move account kunt bekijken.

ONZE TIP
Aankopen? Schakel jouw eigen NVM-aankoopmakelaar in! De NVM-aankoopmakelaar komt op voor jouw belang en bespaart je veel tijd, geld en zorgen. Adressen van collega NVM-aankoopmakelaars vind je op Funda.

De gegeven informatie is met zorgvuldigheid opgesteld, aan de juistheid kunnen echter geen rechten worden ontleend. Alle verstrekte informatie moet beschouwd worden als een uitnodiging tot het doen van een aanbod of om in onderhandeling te treden.

Vragen of even
binnenkijken?

Neem vrijblijvend contact
op met Nick Oorschot

Meer kans maken?

Laat zien dat je financieel sterk staat!
Met een KopersPaspoort© toon je aan dat je snel kunt schakelen. Meer kans op jouw droomhuis!

Open Woningwaarde Dag

Benieuwd naar de waarde van je huis? Maak gebruik van een gratis waardebepaling tijdens onze Open Woningwaarde Dag!

Tijdens de Open Woningwaarde Dag komen we langs om binnen 20 minuten de waarde van jouw huis te bepalen.

ONLINE ZOEKSERVICE

Door een gratis zoekprofiel aan te maken krijg je voortaan ál het nieuwe huizenaanbod van álle makelaars direct in je mailbox, vaak al voordat het op Funda staat.

Overdracht

  • Status Beschikbaar
  • Vraagprijs € 295.000,- kosten koper Hypotheek berekenen
  • Aanvaarding In overleg

Bouwvorm

  • Bouwjaar 1972
  • Soort bouw Appartement
  • Ligging Aan park, in woonwijk, vrij uitzicht

Indeling

  • Woonoppervlakte 89m2
  • Gebouwgebonden buitenruimte 6m2
  • Inhoud 281m2
  • Aantal kamers 4 kamers
  • Aantal slaapkamers 3
  • Aantal badkamers 1 badkamer
  • Badkamervoorzieningen Douche, wastafel
  • Aantal woonlagen 1 woonlagen
  • Externe bergruimte ca. 6m2

Energie & Installatie

  • Energielabel B
  • Isolatie Dubbel glas
  • Verwarming Blokverwarming
  • Warm water Elektrische boiler eigendom
  • Energie einddatum 2035-10-22

Bergruimte

  • Schuur / berging Box
  • Aantal schuren / bergingen 1
  • Voorzieningen Voorzien van elektra

Parkeergelegenheid

  • Parkeerfaciliteiten Openbaar parkeren
  • Garage Geen garage

Dak

  • Soort dak Plat dak

Overig

  • Onderhoud binnen Goed
  • Onderhoud buiten Goed
  • VVE Bijdrage € 224.31
  • Bijzonderheden Gestoffeerd, toegankelijk voor ouderen
  • Permanente bewoning Ja
  • Huidig gebruik Woonruimte
  • Huidige bestemming Woonruimte

Voorzieningen

  • Voorzieningen Mechanische ventilatie, lift

Kadastrale gegevens

  • Gemeente Zoetermeer
  • Sectie F
  • Eigendom Volle eigendom
  • Perceelnummer 1677
  • Index 184

Extra

Burgerlijke staat

Gehuwd
Ongehuwd
Gescheiden
Verweduwd
  • Gehuwd
  • Ongehuwd
  • Gescheiden
  • Verweduwd

Leeftijd in gemeente

0 - 15 jaar
15 - 25 jaar
25-45 jaar
45 - 65 jaar
65+ jaar
  • 0 - 15 jaar
  • 15 - 25 jaar
  • 25 - 45 jaar
  • 45 - 65 jaar
  • 65+ jaar

Gezinnen met kinderen

Met kinderen
Zonder kinderen
Alleenstaand
  • Met kinderen
  • Zonder kinderen
  • Alleenstaand

Leeftijd buurtbewoners

0 - 15 jaar
15 - 25 jaar
25-45 jaar
45 - 65 jaar
65+ jaar
  • 0 - 15 jaar
  • 15 - 25 jaar
  • 25 - 45 jaar
  • 45 - 65 jaar
  • 65+ jaar

Bewoners in de straat

Man
Vrouw
  • Man
  • Vrouw

      Documenten

      Voor alle documenten van deze woning willen we je graag doorverwijzen naar Move.nl.

      Inloggen MOVE.NL

      Aankoopmakelaar

      Hulp nodig bij de aankoop?
      Onze aankoopmakelaars helpen graag

      Aankoopmakelaar
      Dit veld is bedoeld voor validatiedoeleinden en moet niet worden gewijzigd.
      Dit veld is bedoeld voor validatiedoeleinden en moet niet worden gewijzigd.

      "*" geeft vereiste velden aan

      "*" geeft vereiste velden aan

      Dit veld is bedoeld voor validatiedoeleinden en moet niet worden gewijzigd.
      Dit veld is bedoeld voor validatiedoeleinden en moet niet worden gewijzigd.
      Ik wil graag meer informatie ontvangen over(Vereist)
      Dit veld is bedoeld voor validatiedoeleinden en moet niet worden gewijzigd.
      Dit veld is verborgen bij het bekijken van het formulier

      November 2025

      Ma Di Wo Do Vr Za Zo
      1 2
      3 4 5 6 7 8 9
      10 11 12 13 14 15 16
      17 18 19 20 21 22 23
      24 25 26 27 28 29 30

      7 November 2025

      8 November 2025

      10 November 2025

      11 November 2025

      12 November 2025

      13 November 2025

      14 November 2025

      15 November 2025

      17 November 2025

      18 November 2025

      19 November 2025

      20 November 2025

      21 November 2025

      22 November 2025

      24 November 2025

      25 November 2025

      26 November 2025

      27 November 2025

      28 November 2025

      29 November 2025

      De afspraak is nog niet definitief. We nemen binnenkort contact met je op om de afspraak te bevestigen.

      "*" geeft vereiste velden aan

      Dit veld is bedoeld voor validatiedoeleinden en moet niet worden gewijzigd.

      "*" geeft vereiste velden aan

      Dit veld is bedoeld voor validatiedoeleinden en moet niet worden gewijzigd.
      Waar wil je een plek voor reserveren?

      "*" geeft vereiste velden aan

      Dit veld is bedoeld voor validatiedoeleinden en moet niet worden gewijzigd.
      Geen titel

      "*" geeft vereiste velden aan

      Dit veld is bedoeld voor validatiedoeleinden en moet niet worden gewijzigd.
      Waar wil je een afspraak voor?*

      De aanmelding komt ten goede van : Alferbos 184, Zoetermeer

      "*" geeft vereiste velden aan

      Dit veld is bedoeld voor validatiedoeleinden en moet niet worden gewijzigd.
      Dit veld is bedoeld voor validatiedoeleinden en moet niet worden gewijzigd.
      Dit veld is verborgen bij het bekijken van het formulier
      Dit veld is verborgen bij het bekijken van het formulier

      November 2025

      Ma Di Wo Do Vr Za Zo
      1 2
      3 4 5 6 7 8 9
      10 11 12 13 14 15 16
      17 18 19 20 21 22 23
      24 25 26 27 28 29 30

      7 November 2025

      8 November 2025

      10 November 2025

      11 November 2025

      12 November 2025

      13 November 2025

      14 November 2025

      15 November 2025

      17 November 2025

      18 November 2025

      19 November 2025

      20 November 2025

      21 November 2025

      22 November 2025

      24 November 2025

      25 November 2025

      26 November 2025

      27 November 2025

      28 November 2025

      29 November 2025

      Dit veld is bedoeld voor validatiedoeleinden en moet niet worden gewijzigd.

      "*" geeft vereiste velden aan

      Dit veld is bedoeld voor validatiedoeleinden en moet niet worden gewijzigd.

      Adres te taxeren woning

      Soort woning
      Doel van taxatie

      Binnen welke periode moet de taxatie worden uitgevoerd?
      MM slash DD slash JJJJ
      MM slash DD slash JJJJ

      "*" geeft vereiste velden aan

      Dit veld is bedoeld voor validatiedoeleinden en moet niet worden gewijzigd.

      "*" geeft vereiste velden aan

      Dit veld is bedoeld voor validatiedoeleinden en moet niet worden gewijzigd.
      Ik heb interesse in:*

      "*" geeft vereiste velden aan

      Dit veld is bedoeld voor validatiedoeleinden en moet niet worden gewijzigd.
      Adres*

      "*" geeft vereiste velden aan

      Dit veld is bedoeld voor validatiedoeleinden en moet niet worden gewijzigd.