Omschrijving

Lichte en ruime eengezinswoning in Rokkeveen!

Dit rijtjeshuis met 4 ruime slaapkamers ligt in de mooie wijk Rokkeveen en biedt een fijne combinatie van ruimte, licht en comfort. De slimme indeling zorgt voor een ruime en lichte woonkamer, met op de verdiepingen veelzijdige kamers die je eenvoudig inricht als slaap-, werk- of hobbyruimte, aangevuld met een praktische zolder en nette badkamer.

HIGHLIGHTS:
+ Ruime & lichte woonkamer
+ Verzorgde en nette tuin

Lees meer

Kenmerken

  • Status Onder bod
  • Vraagprijs € 550.000 kosten koper Hypotheek berekenen
  • Woonoppervlakte ca. 128 m2
  • Aantal slaapkamers 4
  • Bouwjaar 1994
Meer kenmerken

Heb je vragen of interesse?

Neem vrijblijvend contact op

Meer kans maken?

Laat zien dat je financieel sterk staat!
Met een KopersPaspoort© toon je aan dat je snel kunt schakelen. Meer kans op jouw droomhuis!

Open Woningwaarde Dag

Benieuwd naar de waarde van je huis? Maak gebruik van een gratis waardebepaling tijdens onze Open Woningwaarde Dag!

Tijdens de Open Woningwaarde Dag komen we langs om binnen 20 minuten de waarde van jouw huis te bepalen.

ONLINE ZOEKSERVICE

Door een gratis zoekprofiel aan te maken krijg je voortaan ál het nieuwe huizenaanbod van álle makelaars direct in je mailbox, vaak al voordat het op Funda staat.

Lichte en ruime eengezinswoning in Rokkeveen!

Dit rijtjeshuis met 4 ruime slaapkamers ligt in de mooie wijk Rokkeveen en biedt een fijne combinatie van ruimte, licht en comfort. De slimme indeling zorgt voor een ruime en lichte woonkamer, met op de verdiepingen veelzijdige kamers die je eenvoudig inricht als slaap-, werk- of hobbyruimte, aangevuld met een praktische zolder en nette badkamer.

HIGHLIGHTS:
+ Ruime & lichte woonkamer
+ Verzorgde en nette tuin
+ Rustige ligging in de wijk Rokkeveen

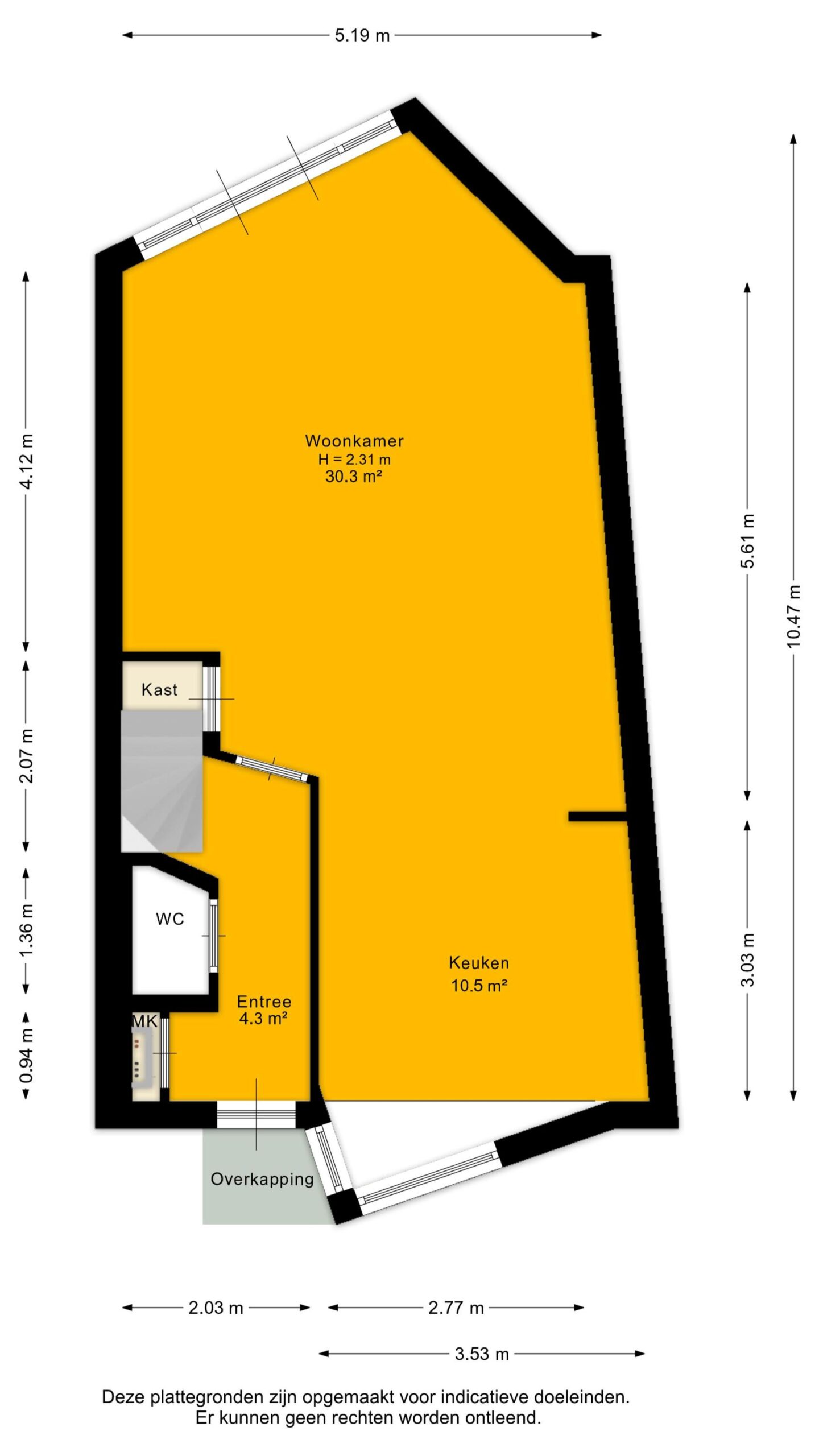
INDELING

ENTREE
Je komt binnen in een nette hal waar je direct een verzorgde en lichte indruk krijgt. Hier is voldoende ruimte voor een garderobe en extra opbergruimte, waardoor je jouw spullen gemakkelijk kwijt kunt. Vanuit de hal heb je toegang tot de verschillende vertrekken en loop je richting de woonkamer.

Zodra je de woonkamer binnenstapt, valt meteen de fijne lichtinval op dankzij de grote raampartijen en openslaande deuren naar de zuidwest gelegen tuin. Dit zorgt niet alleen voor een ruimtelijk gevoel, maar ook voor een prettige verbinding tussen binnen en buiten. De woonkamer is royaal opgezet en biedt volop mogelijkheden voor een comfortabele zithoek en een gezellige eethoek.

Aan de voorzijde sluit de eetkamer naadloos aan op de open keuken. Deze is uitgevoerd in een lichte kleurstelling en voorzien van diverse inbouwapparatuur en voldoende kastruimte. Hier kook je met gemak terwijl je in contact blijft met de rest van de ruimte.

EERSTE VERDIEPING
Via de trap kom je op de overloop van de eerste verdieping, waar direct opvalt hoe licht en verzorgd deze etage is. Hier vind je drie slaapkamers en de badkamer.

De hoofdslaapkamer is ruim opgezet en heeft een prettige lichtinval dankzij het grote raam. Er is voldoende plek voor een tweepersoonsbed, aanvullende meubels en niet te vergeten; een airco! Ook de tweede slaapkamer is zeer ruim.

De derde slaapkamer wordt nu gebruikt als praktische inloopkast. Deze ruimte is ook uitstekend geschikt als slaapkamer.

De badkamer is functioneel ingericht en voorzien van een douche, wastafelmeubel en toilet. Alles wat je nodig hebt is aanwezig en netjes onderhouden.

TWEEDE VERDIEPING
Via de overloop bereik je de verrassend ruime tweede verdieping. Dankzij het grotendeels platte dak en de slimme indeling voelt deze verdieping licht en prettig aan. Hier vind je een royale open ruimte die je helemaal naar eigen wens kunt inrichten. Of je nu denkt aan een extra slaapkamer, een werkruimte of een hobbykamer, je hebt hier alle vrijheid om het naar jouw woonwensen in te vullen. Ook deze ruimte is voorzien van airco

Aan de voorzijde is een praktische wasruimte ingericht met aansluitingen voor de wasmachine en droger, netjes weggewerkt onder het schuine dak. Daarnaast beschik je over veel bergruimte achter de knieschotten, ideaal voor het opbergen van spullen die je niet dagelijks nodig hebt.

OMGEVING
De woning ligt in de geliefde en groene wijk Rokkeveen, een rustige en kindvriendelijke omgeving waar je prettig woont met alle voorzieningen binnen handbereik. In de directe omgeving vind je diverse scholen, sportverenigingen en winkelcentra, waardoor het een ideale plek is voor zowel gezinnen als starters. Voor ontspanning en recreatie zit je hier ook goed. Op korte afstand liggen parken en groengebieden waar je heerlijk kunt wandelen of fietsen. Daarnaast zijn openbaar vervoer en uitvalswegen goed bereikbaar, waardoor je eenvoudig richting het centrum van Zoetermeer, Den Haag of andere steden reist.

Klinkt dit als jouw ideale thuis? Loop alvast in 3D door de woning om alle ruimtes te bekijken en maak snel een afspraak voor een bezichtiging!

PLUSPUNTEN:
+ Energielabel B
+ 128m² woonoppervlakte
+ Diepe tuin op het zuidwesten
+ Volledig voorzien van kunststof kozijnen
+ Vloerverwarming op de begane grond
+ Open keuken met inbouwapparatuur
+ Vier volwaardige slaapkamers
+ 2 airco's
+ Dak vernieuwd in 2024
+ Achtergevel gereinigd en geïmpregneerd in 2024
+ Praktische wasruimte en veel bergruimte aanwezig

INTERESSE?
Maak snel een afspraak voor een bezichtiging. Neem contact met ons op voor meer informatie over de woning en de verkoopvoorwaarden, die digitaal beschikbaar zijn via jouw persoonlijke Move account.

ONZE TIP
Denk je aan het kopen van deze woning? Schakel dan je eigen NVM-aankoopmakelaar in! Een NVM-aankoopmakelaar komt op voor jouw belangen en bespaart je tijd, geld en zorgen. Adressen van collega NVM-aankoopmakelaars vind je op Funda.

De gegeven informatie is met zorgvuldigheid samengesteld, maar aan de juistheid kunnen geen rechten worden ontleend. Alle verstrekte informatie dient als een uitnodiging tot het doen van een aanbod of om in onderhandeling te treden.

Heb je vragen of interesse?

Neem vrijblijvend contact op

Meer kans maken?

Laat zien dat je financieel sterk staat!
Met een KopersPaspoort© toon je aan dat je snel kunt schakelen. Meer kans op jouw droomhuis!

Open Woningwaarde Dag

Benieuwd naar de waarde van je huis? Maak gebruik van een gratis waardebepaling tijdens onze Open Woningwaarde Dag!

Tijdens de Open Woningwaarde Dag komen we langs om binnen 20 minuten de waarde van jouw huis te bepalen.

ONLINE ZOEKSERVICE

Door een gratis zoekprofiel aan te maken krijg je voortaan ál het nieuwe huizenaanbod van álle makelaars direct in je mailbox, vaak al voordat het op Funda staat.

Overdracht

  • Status Onder bod
  • Vraagprijs € 550.000,- kosten koper Hypotheek berekenen
  • Aanvaarding In overleg

Bouwvorm

  • Soort object Tussenwoning
  • Soort woning Eengezinswoning
  • Bouwjaar 1994
  • Soort bouw Woonhuis
  • Ligging Aan rustige weg, in woonwijk

Indeling

  • Woonoppervlakte 128m2
  • Perceeloppervlakte 162m2
  • Gebouwgebonden buitenruimte 5m2
  • Inhoud 419m2
  • Aantal kamers 5 kamers
  • Aantal slaapkamers 4
  • Aantal badkamers 1 badkamer
  • Badkamervoorzieningen Toilet, douche, wastafel
  • Aantal woonlagen 3 woonlagen
  • Externe bergruimte ca. 5m2

Energie & Installatie

  • Energielabel B
  • Verwarming Cv ketel, vloerverwarming gedeeltelijk
  • Warm water Cv ketel
  • C.v.-ketel type Gas
  • C.v.-ketel bouwjaar 2018
  • Energie einddatum 2030-09-22

Bergruimte

  • Schuur / berging Vrijstaand steen
  • Aantal schuren / bergingen 1
  • Voorzieningen Voorzien van elektra

Parkeergelegenheid

  • Parkeerfaciliteiten Openbaar parkeren
  • Garage Geen garage

Dak

  • Soort dak Samengesteld dak

Overig

  • Onderhoud binnen Goed
  • Onderhoud buiten Goed
  • Bijzonderheden Gedeeltelijk gestoffeerd
  • Permanente bewoning Ja
  • Huidig gebruik Woonruimte
  • Huidige bestemming Woonruimte

Voorzieningen

  • Voorzieningen Mechanische ventilatie, tv kabel

Buitenruimte

  • Hoofdtuin Achtertuin
  • Oppervlakte hoofdtuin ca. 79m2
  • Ligging hoofdtuin Zuidwest
  • Kwaliteit tuin Normaal

Kadastrale gegevens

  • Gemeente Zegwaard
  • Sectie C
  • Eigendom Volle eigendom
  • Perceelnummer 5684
  • Perceeloppervlakte 162

Extra

Burgerlijke staat

Gehuwd
Ongehuwd
Gescheiden
Verweduwd
  • Gehuwd
  • Ongehuwd
  • Gescheiden
  • Verweduwd

Leeftijd in gemeente

0 - 15 jaar
15 - 25 jaar
25-45 jaar
45 - 65 jaar
65+ jaar
  • 0 - 15 jaar
  • 15 - 25 jaar
  • 25 - 45 jaar
  • 45 - 65 jaar
  • 65+ jaar

Gezinnen met kinderen

Met kinderen
Zonder kinderen
Alleenstaand
  • Met kinderen
  • Zonder kinderen
  • Alleenstaand

Leeftijd buurtbewoners

0 - 15 jaar
15 - 25 jaar
25-45 jaar
45 - 65 jaar
65+ jaar
  • 0 - 15 jaar
  • 15 - 25 jaar
  • 25 - 45 jaar
  • 45 - 65 jaar
  • 65+ jaar

Bewoners in de straat

Man
Vrouw
  • Man
  • Vrouw

      Documenten

      Voor alle documenten van deze woning willen we je graag doorverwijzen naar Move.nl.

      Inloggen MOVE.NL

      Aankoopmakelaar

      Hulp nodig bij de aankoop?
      Onze aankoopmakelaars helpen graag

      Aankoopmakelaar
      Dit veld is bedoeld voor validatiedoeleinden en moet niet worden gewijzigd.
      Dit veld is bedoeld voor validatiedoeleinden en moet niet worden gewijzigd.

      "*" geeft vereiste velden aan

      "*" geeft vereiste velden aan

      Dit veld is bedoeld voor validatiedoeleinden en moet niet worden gewijzigd.
      Dit veld is bedoeld voor validatiedoeleinden en moet niet worden gewijzigd.
      Ik wil graag meer informatie ontvangen over(Vereist)
      Dit veld is bedoeld voor validatiedoeleinden en moet niet worden gewijzigd.
      Dit veld is verborgen bij het bekijken van het formulier

      April 2026

      Ma Di Wo Do Vr Za Zo
      1 2 3 4 5
      6 7 8 9 10 11 12
      13 14 15 16 17 18 19
      20 21 22 23 24 25 26
      27 28 29 30

      27 April 2026

      29 April 2026

      30 April 2026

      De afspraak is nog niet definitief. We nemen binnenkort contact met je op om de afspraak te bevestigen.

      "*" geeft vereiste velden aan

      Dit veld is bedoeld voor validatiedoeleinden en moet niet worden gewijzigd.

      "*" geeft vereiste velden aan

      Dit veld is bedoeld voor validatiedoeleinden en moet niet worden gewijzigd.
      Waar wil je een plek voor reserveren?

      "*" geeft vereiste velden aan

      Dit veld is bedoeld voor validatiedoeleinden en moet niet worden gewijzigd.
      Geen titel

      "*" geeft vereiste velden aan

      Dit veld is bedoeld voor validatiedoeleinden en moet niet worden gewijzigd.
      Waar wil je een afspraak voor?*

      De aanmelding komt ten goede van : Basalt 29, Zoetermeer

      "*" geeft vereiste velden aan

      Dit veld is bedoeld voor validatiedoeleinden en moet niet worden gewijzigd.
      Dit veld is bedoeld voor validatiedoeleinden en moet niet worden gewijzigd.

      April 2026

      Ma Di Wo Do Vr Za Zo
      1 2 3 4 5
      6 7 8 9 10 11 12
      13 14 15 16 17 18 19
      20 21 22 23 24 25 26
      27 28 29 30

      27 April 2026

      29 April 2026

      30 April 2026

      Dit veld is bedoeld voor validatiedoeleinden en moet niet worden gewijzigd.

      "*" geeft vereiste velden aan

      Dit veld is bedoeld voor validatiedoeleinden en moet niet worden gewijzigd.

      Adres te taxeren woning

      Soort woning
      Doel van taxatie

      Binnen welke periode moet de taxatie worden uitgevoerd?
      MM slash DD slash JJJJ
      MM slash DD slash JJJJ

      "*" geeft vereiste velden aan

      Dit veld is bedoeld voor validatiedoeleinden en moet niet worden gewijzigd.

      "*" geeft vereiste velden aan

      Dit veld is bedoeld voor validatiedoeleinden en moet niet worden gewijzigd.
      Ik heb interesse in:*

      "*" geeft vereiste velden aan

      Dit veld is bedoeld voor validatiedoeleinden en moet niet worden gewijzigd.
      Adres*

      "*" geeft vereiste velden aan

      Dit veld is bedoeld voor validatiedoeleinden en moet niet worden gewijzigd.