Omschrijving

Karaktervolle dubbele bovenwoning met originele details en breed balkon

Deze charmante dubbele bovenwoning op de derde en halve vierde verdieping aan de Burgemeester Knappertlaan 268 c in Schiedam biedt verrassend veel ruimte en een warme, authentieke sfeer. Met originele glas-in-loodramen, vaste kasten, drie slaapkamers en een balkon aan de achterzijde is dit een fijne plek om thuis te komen.
Dankzij de centrale ligging heb je alle voorzieningen zoals winkels, openbaar vervoer en uitvalswegen binnen…

Lees meer

Kenmerken

  • Status Verkocht
  • Vraagprijs € 265.000 kosten koper Hypotheek berekenen
  • Woonoppervlakte ca. 99 m2
  • Aantal slaapkamers 3
  • Bouwjaar 1938
Meer kenmerken

Vragen of even
binnenkijken?

Neem vrijblijvend contact
op met Nick Oorschot

Meer kans maken?

Laat zien dat je financieel sterk staat!
Met een KopersPaspoort© toon je aan dat je snel kunt schakelen. Meer kans op jouw droomhuis!

Open Woningwaarde Dag

Benieuwd naar de waarde van je huis? Maak gebruik van een gratis waardebepaling tijdens onze Open Woningwaarde Dag!

Tijdens de Open Woningwaarde Dag komen we langs om binnen 20 minuten de waarde van jouw huis te bepalen.

ONLINE ZOEKSERVICE

Door een gratis zoekprofiel aan te maken krijg je voortaan ál het nieuwe huizenaanbod van álle makelaars direct in je mailbox, vaak al voordat het op Funda staat.

Karaktervolle dubbele bovenwoning met originele details en breed balkon

Deze charmante dubbele bovenwoning op de derde en halve vierde verdieping aan de Burgemeester Knappertlaan 268 c in Schiedam biedt verrassend veel ruimte en een warme, authentieke sfeer. Met originele glas-in-loodramen, vaste kasten, drie slaapkamers en een balkon aan de achterzijde is dit een fijne plek om thuis te komen.
Dankzij de centrale ligging heb je alle voorzieningen zoals winkels, openbaar vervoer en uitvalswegen binnen handbereik, terwijl je toch rustig woont in een karakteristieke laan.

HIGHLIGHTS
+ Dubbele bovenwoning met originele glas-in-looddetails en vaste kasten
+ Drie volwaardige slaapkamers
+ Centrale ligging nabij openbaar vervoer, winkels en uitvalswegen

INDELING

BEGANE GROND
Afgesloten entree met bellentableau en trapopgang naar de woning.

3E VERDIEPING
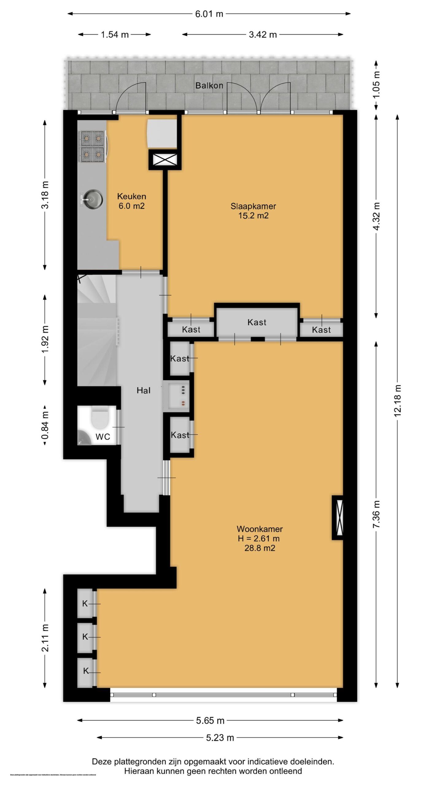
Ruime hal met toegang tot alle vertrekken, waaronder de meterkast en het toilet. De sfeervolle woonkamer is royaal en licht, met plafondspots, glas-in-loodramen en een fraaie vloer. Vaste kasten zorgen voor extra opbergruimte.
Aan de achterzijde bevindt zich de gesloten, functionele keuken, uitgerust met een oven, 4-pits gasfornuis en voldoende kastruimte. Vanuit de keuken loop je zo het balkon op. Aan de achterzijde ligt ook de eerste ruime slaapkamer, eveneens voorzien van vaste kasten en met directe toegang tot het balkon.

4E VERDIEPING
Doordat de overloop is voorzien van een ruime dakkoepel beschikt de overloop over veel licht. De vierde verdieping beschikt ook over een opstelplaats voor de cv-combiketel en een bergkast met wasmachineaansluiting. De twee slaapkamers zijn te vinden aan de achterzijde van de woning en allebei voorzien van glas-in-loodramen.
De hoofdslaapkamer beschikt over twee vaste kasten en biedt toegang tot de nette, volledig betegelde badkamer aan de voorzijde. Deze is ingericht met een ruime douchecabine, wastafelmeubel, spiegel, extra kastruimte en plafondspotjes.

OMGEVING
De Burgemeester Knappertlaan is een rustige, brede laan met een karakteristieke uitstraling. Je woont hier op loopafstand van het centrum van Schiedam met een ruim aanbod aan winkels, gezellige horeca en cultuur.
Met de tram, bus en metro om de hoek, én een snelle aansluiting op de A20 en A4, ben je bovendien zó in Rotterdam of Den Haag. Een ideale combinatie van bereikbaarheid en wooncomfort.

Klinkt dit als jouw ideale thuis? Loop alvast in 3D door de woning om alle ruimtes te bekijken en maak snel een afspraak voor een bezichtiging!

PLUSPUNTEN
+ Ruime dubbele bovenwoning met originele details
+ Drie slaapkamers en balkon aan de achterzijde
+ Ruime woonkamer met glas-in-loodramen
+ Gesloten keuken
+ Badkamer met douchecabine en wastafelmeubel
+ Aparte wasruimte en veel opbergruimte
+ Centrale ligging nabij OV, winkels en uitvalswegen
+ Eigen grond
+ Actieve VvE

BIJZONDERHEDEN
> Bijdrage VvE € 200,- per maand
> Oplevering in overleg

ouderdoms-, asbest en loodclausule zijn van toepassing

OMGEVING
Benieuwd naar de omgeving? Bekijk alle voorzieningen onder het kopje ‘In de buurt’!

INTERESSE?
Dan nodigen we je uit om contact met ons op te nemen. We vertellen je graag meer over deze woning en zorgen ervoor dat je overige stukken en algemene voorwaarden verkopend makelaar digitaal via jouw persoonlijke Move account kunt bekijken.

ONZE TIP
Aankopen? Schakel jouw eigen NVM-aankoopmakelaar in! De NVM-aankoopmakelaar komt op voor jouw belang en bespaart je veel tijd, geld en zorgen. Adressen van collega NVM-aankoopmakelaars vind je op Funda.

De gegeven informatie is met zorgvuldigheid opgesteld, aan de juistheid kunnen echter geen rechten worden ontleend. Alle verstrekte informatie moet beschouwd worden als een uitnodiging tot het doen van een aanbod of om in onderhandeling te treden.

Vragen of even
binnenkijken?

Neem vrijblijvend contact
op met Nick Oorschot

Meer kans maken?

Laat zien dat je financieel sterk staat!
Met een KopersPaspoort© toon je aan dat je snel kunt schakelen. Meer kans op jouw droomhuis!

Open Woningwaarde Dag

Benieuwd naar de waarde van je huis? Maak gebruik van een gratis waardebepaling tijdens onze Open Woningwaarde Dag!

Tijdens de Open Woningwaarde Dag komen we langs om binnen 20 minuten de waarde van jouw huis te bepalen.

ONLINE ZOEKSERVICE

Door een gratis zoekprofiel aan te maken krijg je voortaan ál het nieuwe huizenaanbod van álle makelaars direct in je mailbox, vaak al voordat het op Funda staat.

Overdracht

  • Status Verkocht
  • Vraagprijs € 265.000,- kosten koper Hypotheek berekenen
  • Aanvaarding In overleg

Bouwvorm

  • Bouwjaar 1938
  • Soort bouw Appartement
  • Ligging In woonwijk

Indeling

  • Woonoppervlakte 99m2
  • Inhoud 327m2
  • Aantal kamers 5 kamers
  • Aantal slaapkamers 3
  • Aantal badkamers 1 badkamer
  • Badkamervoorzieningen Douche, wastafel, wastafelmeubel
  • Aantal woonlagen 2 woonlagen

Energie & Installatie

  • Energielabel E
  • Isolatie Dakisolatie
  • Verwarming Cv ketel
  • Warm water Cv ketel
  • C.v.-ketel type Gas
  • C.v.-ketel bouwjaar 2004
  • Energie einddatum 2035-06-06

Parkeergelegenheid

  • Parkeerfaciliteiten Openbaar parkeren
  • Garage Geen garage

Dak

  • Soort dak Zadeldak

Overig

  • Onderhoud binnen Goed
  • Onderhoud buiten Goed
  • VVE Bijdrage € 200
  • Bijzonderheden Gestoffeerd
  • Permanente bewoning Ja
  • Huidig gebruik Wonen
  • Huidige bestemming Wonen

Voorzieningen

  • Voorzieningen Tv kabel, natuurlijke ventilatie

Kadastrale gegevens

  • Gemeente Schiedam
  • Sectie M
  • Eigendom Volle eigendom
  • Perceelnummer 6593
  • Index 14

Extra

Burgerlijke staat

Gehuwd
Ongehuwd
Gescheiden
Verweduwd
  • Gehuwd
  • Ongehuwd
  • Gescheiden
  • Verweduwd

Leeftijd in gemeente

0 - 15 jaar
15 - 25 jaar
25-45 jaar
45 - 65 jaar
65+ jaar
  • 0 - 15 jaar
  • 15 - 25 jaar
  • 25 - 45 jaar
  • 45 - 65 jaar
  • 65+ jaar

Gezinnen met kinderen

Met kinderen
Zonder kinderen
Alleenstaand
  • Met kinderen
  • Zonder kinderen
  • Alleenstaand

Leeftijd buurtbewoners

0 - 15 jaar
15 - 25 jaar
25-45 jaar
45 - 65 jaar
65+ jaar
  • 0 - 15 jaar
  • 15 - 25 jaar
  • 25 - 45 jaar
  • 45 - 65 jaar
  • 65+ jaar

Bewoners in de straat

Man
Vrouw
  • Man
  • Vrouw

      Documenten

      Voor alle documenten van deze woning willen we je graag doorverwijzen naar Move.nl.

      Inloggen MOVE.NL

      Aankoopmakelaar

      Hulp nodig bij de aankoop?
      Onze aankoopmakelaars helpen graag

      Aankoopmakelaar
      Dit veld is bedoeld voor validatiedoeleinden en moet niet worden gewijzigd.
      Dit veld is bedoeld voor validatiedoeleinden en moet niet worden gewijzigd.

      "*" geeft vereiste velden aan

      "*" geeft vereiste velden aan

      Dit veld is bedoeld voor validatiedoeleinden en moet niet worden gewijzigd.
      Dit veld is bedoeld voor validatiedoeleinden en moet niet worden gewijzigd.
      Ik wil graag meer informatie ontvangen over(Vereist)
      Dit veld is bedoeld voor validatiedoeleinden en moet niet worden gewijzigd.
      Dit veld is verborgen bij het bekijken van het formulier

      Oktober 2025

      Ma Di Wo Do Vr Za Zo
      1 2 3 4 5
      6 7 8 9 10 11 12
      13 14 15 16 17 18 19
      20 21 22 23 24 25 26
      27 28 29 30 31

      20 Oktober 2025

      21 Oktober 2025

      22 Oktober 2025

      23 Oktober 2025

      24 Oktober 2025

      25 Oktober 2025

      27 Oktober 2025

      28 Oktober 2025

      29 Oktober 2025

      30 Oktober 2025

      31 Oktober 2025

      De afspraak is nog niet definitief. We nemen binnenkort contact met je op om de afspraak te bevestigen.

      "*" geeft vereiste velden aan

      Dit veld is bedoeld voor validatiedoeleinden en moet niet worden gewijzigd.

      "*" geeft vereiste velden aan

      Dit veld is bedoeld voor validatiedoeleinden en moet niet worden gewijzigd.
      Waar wil je een plek voor reserveren?

      "*" geeft vereiste velden aan

      Dit veld is bedoeld voor validatiedoeleinden en moet niet worden gewijzigd.
      Geen titel

      "*" geeft vereiste velden aan

      Dit veld is bedoeld voor validatiedoeleinden en moet niet worden gewijzigd.
      Waar wil je een afspraak voor?*

      De aanmelding komt ten goede van : Burgemeester Knappertlaan 268C, Schiedam

      "*" geeft vereiste velden aan

      Dit veld is bedoeld voor validatiedoeleinden en moet niet worden gewijzigd.
      Dit veld is bedoeld voor validatiedoeleinden en moet niet worden gewijzigd.
      Dit veld is verborgen bij het bekijken van het formulier
      Dit veld is verborgen bij het bekijken van het formulier

      Oktober 2025

      Ma Di Wo Do Vr Za Zo
      1 2 3 4 5
      6 7 8 9 10 11 12
      13 14 15 16 17 18 19
      20 21 22 23 24 25 26
      27 28 29 30 31

      20 Oktober 2025

      21 Oktober 2025

      22 Oktober 2025

      23 Oktober 2025

      24 Oktober 2025

      25 Oktober 2025

      27 Oktober 2025

      28 Oktober 2025

      29 Oktober 2025

      30 Oktober 2025

      31 Oktober 2025

      Dit veld is bedoeld voor validatiedoeleinden en moet niet worden gewijzigd.

      "*" geeft vereiste velden aan

      Dit veld is bedoeld voor validatiedoeleinden en moet niet worden gewijzigd.

      Adres te taxeren woning

      Soort woning
      Doel van taxatie

      Binnen welke periode moet de taxatie worden uitgevoerd?
      MM slash DD slash JJJJ
      MM slash DD slash JJJJ

      "*" geeft vereiste velden aan

      Dit veld is bedoeld voor validatiedoeleinden en moet niet worden gewijzigd.

      "*" geeft vereiste velden aan

      Dit veld is bedoeld voor validatiedoeleinden en moet niet worden gewijzigd.
      Ik heb interesse in:*

      "*" geeft vereiste velden aan

      Dit veld is bedoeld voor validatiedoeleinden en moet niet worden gewijzigd.
      Adres*

      "*" geeft vereiste velden aan

      Dit veld is bedoeld voor validatiedoeleinden en moet niet worden gewijzigd.