Omschrijving

Ruim en licht 3-kamer appartement

Op de eerste verdieping van het appartementencomplex "de Molenwijk" ligt dit verrassend ruime en keurig afgewerkte 3-kamer appartement. Je beschikt hier over ca. 76 m² woonoppervlak, met een royale woonkamer, twee goede slaapkamers, een keuken en badkamer én een balkon op het zuidoosten.

HIGHLIGHTS
+ Royale woonkamer
+ Balkon op het zuidoosten
+ 2 slaapkamers

INDELING

GEZAMENLIJKE RUIMTE
De centrale entree is voorzien van een videofooninstallatie…

Lees meer

Kenmerken

  • Status Verkocht onder voorbehoud
  • Vraagprijs € 275.000 kosten koper Hypotheek berekenen
  • Woonoppervlakte ca. 76 m2
  • Aantal slaapkamers 2
  • Bouwjaar 1973
Meer kenmerken

Bewoner(s) en vrienden aan het woord

"Het is heel prettig wonen in dit fijne, rustige appartement. De woning voelt comfortabel en veilig aan, met geen tot weinig geluidsoverlast en een ontspannen sfeer. Alles wat je nodig hebt is op loopafstand: winkels, openbaar vervoer, horeca en groenvoorzieningen. Dat maakt het dagelijks leven makkelijk en aangenaam. Het appartement is een fijne plek om thuis te komen en biedt een goede balans tussen rust en levendigheid in de directe omgeving. Er is tevens een actieve groepsapp waar de meeste bewoners van het appartementencomplex in zitten om elkaar te helpen en te attenderen op zaken indien nodig, erg handig!"

- K. Kanglie

Vragen of even
binnenkijken?

Neem vrijblijvend contact
op met Kerwin Pronk

Meer kans maken?

Laat zien dat je financieel sterk staat!
Met een KopersPaspoort© toon je aan dat je snel kunt schakelen. Meer kans op jouw droomhuis!

Open Woningwaarde Dag

Benieuwd naar de waarde van je huis? Maak gebruik van een gratis waardebepaling tijdens onze Open Woningwaarde Dag!

Tijdens de Open Woningwaarde Dag komen we langs om binnen 20 minuten de waarde van jouw huis te bepalen.

ONLINE ZOEKSERVICE

Door een gratis zoekprofiel aan te maken krijg je voortaan ál het nieuwe huizenaanbod van álle makelaars direct in je mailbox, vaak al voordat het op Funda staat.

Ruim en licht 3-kamer appartement

Op de eerste verdieping van het appartementencomplex "de Molenwijk" ligt dit verrassend ruime en keurig afgewerkte 3-kamer appartement. Je beschikt hier over ca. 76 m² woonoppervlak, met een royale woonkamer, twee goede slaapkamers, een keuken en badkamer én een balkon op het zuidoosten.

HIGHLIGHTS
+ Royale woonkamer
+ Balkon op het zuidoosten
+ 2 slaapkamers

INDELING

GEZAMENLIJKE RUIMTE
De centrale entree is voorzien van een videofooninstallatie en per ingang zijn twee vernieuwde liften aanwezig. Je beschikt over een eigen berging die zich op dezelfde verdieping als het appartement bevindt, wat extra praktisch is voor dagelijkse opslag.

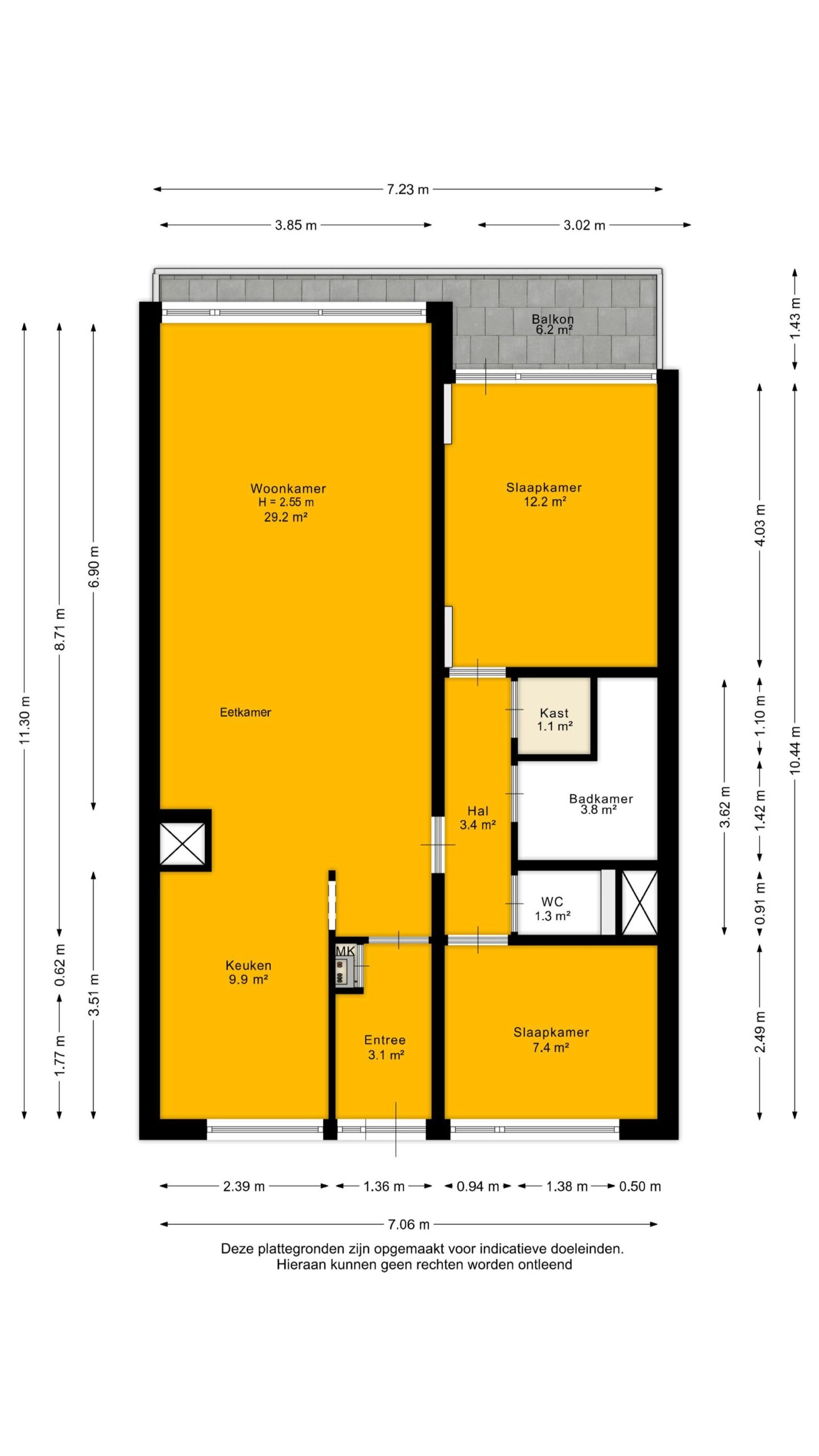
EERSTE VERDIEPING
Via de hal met meterkast betreed je het appartement. Aan de galerijzijde ligt de afgesloten keuken, uitgevoerd in een moderne witte inrichting met hoge bovenkasten. De bar met doorkijk naar de woonkamer is voorzien van een verlaagd plafond met luxe design spots, wat zorgt voor een sfeervolle en luxe uitstraling.
De royale woonkamer van circa 29 m² is heerlijk licht dankzij de grote raampartijen. Aangrenzend bevindt zich een ruime slaapkamer.

Via een tweede hal zijn de overige vertrekken te bereiken. Aan de voorzijde ligt de tweede slaapkamer.

De badkamer is modern afgewerkt met witte betegeling en uitgerust met een luxe douchepaneelsysteem, inclusief een waterbesparende XL-regendouche en zes massagestralen. Daarnaast is er een wastafelmeubel, een badkamerspiegel met verwarming (geen condensvorming) en een aansluiting voor de wasmachine. Het separate toilet is in dezelfde stijl uitgevoerd en beschikt over een fonteintje. Daarnaast beschikt de hal over een praktische bergkast.

Tot slot is er een ruim balkon op het zuidoosten waar je heerlijk van de ochtend- en middagzon kunt genieten.

OMGEVING
De woning is gelegen in de wijk Driemanspolder, een centrale en veelzijdige locatie in Zoetermeer. Direct onder het appartement bevinden zich een dierenkliniek en een tandartspraktijk. In de nabije omgeving is een speeltuin, voetbalveld en een kinderopvang met basisschool aanwezig, wat de wijk zeer geschikt maakt voor gezinnen.
Het Stadshart, wijkwinkelcentrum, NS-station en diverse bushaltes zijn op loopafstand bereikbaar. Ook de uitvalswegen richting Den Haag, Leiden en Rotterdam liggen in de directe nabijheid.

Klinkt dit als jouw ideale thuis? Loop alvast in 3D door de woning om alle ruimtes te bekijken en maak snel een afspraak voor een bezichtiging!

PLUSPUNTEN
+ Ruim 3-kamer appartement van ca. 76 m²
+ Balkon op het zuidoosten met ochtend- en middagzon
+ Woonkamer van ca. 29 m²
+ Twee slaapkamers
+ Keuken met bar en doorkijk naar de woonkamer
+ Verlaagd plafond met luxe design spots bij de bar
+ Moderne badkamer met inloopdouche
+ Waterbesparende XL-regendouche en 6 massagestralen
+ Badkamerspiegel met verwarming (geen condens)
+ Net afgewerkt toilet met fonteintje
+ Volledig voorzien van isolerende beglazing
+ Eigen berging op dezelfde verdieping als de woning
+ Actieve VvE en goed onderhouden complex

ouderdoms-, asbest en loodclausule zijn van toepassing

OMGEVING
Benieuwd naar de omgeving? Bekijk alle voorzieningen onder het kopje ‘In de buurt’!

INTERESSE?
Dan nodigen we je uit om contact met ons op te nemen. We vertellen je graag meer over deze woning en zorgen ervoor dat je overige stukken en algemene voorwaarden verkopend makelaar digitaal via jouw persoonlijke Move account kunt bekijken.

ONZE TIP
Aankopen? Schakel jouw eigen NVM-aankoopmakelaar in! De NVM-aankoopmakelaar komt op voor jouw belang en bespaart je veel tijd, geld en zorgen. Adressen van collega NVM-aankoopmakelaars vind je op Funda.

De gegeven informatie is met zorgvuldigheid opgesteld, aan de juistheid kunnen echter geen rechten worden ontleend. Alle verstrekte informatie moet beschouwd worden als een uitnodiging tot het doen van een aanbod of om in onderhandeling te treden.

Vragen of even
binnenkijken?

Neem vrijblijvend contact
op met Kerwin Pronk

Meer kans maken?

Laat zien dat je financieel sterk staat!
Met een KopersPaspoort© toon je aan dat je snel kunt schakelen. Meer kans op jouw droomhuis!

Open Woningwaarde Dag

Benieuwd naar de waarde van je huis? Maak gebruik van een gratis waardebepaling tijdens onze Open Woningwaarde Dag!

Tijdens de Open Woningwaarde Dag komen we langs om binnen 20 minuten de waarde van jouw huis te bepalen.

ONLINE ZOEKSERVICE

Door een gratis zoekprofiel aan te maken krijg je voortaan ál het nieuwe huizenaanbod van álle makelaars direct in je mailbox, vaak al voordat het op Funda staat.

Overdracht

  • Status Verkocht onder voorbehoud
  • Vraagprijs € 275.000,- kosten koper Hypotheek berekenen
  • Aanvaarding In overleg

Bouwvorm

  • Bouwjaar 1973
  • Soort bouw Appartement
  • Ligging Aan rustige weg, in woonwijk

Indeling

  • Woonoppervlakte 76m2
  • Inhoud 249m2
  • Aantal kamers 3 kamers
  • Aantal slaapkamers 2
  • Aantal badkamers 1 badkamer
  • Badkamervoorzieningen Douche, wastafel, wastafelmeubel, wasmachineaansluiting
  • Aantal woonlagen 1 woonlagen

Energie & Installatie

  • Energielabel B
  • Isolatie Dubbel glas
  • Verwarming Blokverwarming
  • Warm water Centrale voorziening
  • Energie einddatum 2036-01-08

Bergruimte

  • Schuur / berging Box
  • Aantal schuren / bergingen 1
  • Voorzieningen Voorzien van elektra

Parkeergelegenheid

  • Parkeerfaciliteiten Openbaar parkeren
  • Garage Geen garage

Dak

  • Soort dak Plat dak

Overig

  • Onderhoud binnen Goed
  • Onderhoud buiten Goed
  • VVE Bijdrage € 344.54
  • Bijzonderheden Gedeeltelijk gestoffeerd
  • Permanente bewoning Ja
  • Huidig gebruik Woonruimte
  • Huidige bestemming Woonruimte

Voorzieningen

  • Voorzieningen Tv kabel, lift

Kadastrale gegevens

  • Zoetermeer e 2934
  • Oppervlakte 0
  • Eigendomssituatie volle eigendom
  • Zoetermeer e 2934
  • Oppervlakte
  • Eigendomssituatie volle eigendom

Extra

Kenmerken toegevoegd door verkoper, vrienden en familie

Vrienden, familie en kennissen van de eigenaar delen hun unieke kenmerken die de Dunantstraat 881 het beste omschrijven.

K. Kanglie
  • Naam
    K. Kanglie
  • Opmerking
    Fijn en rustige omgeving
K. Kanglie
  • Naam
    K. Kanglie
  • Opmerking
    Alles op loopafstand
K. Kanglie
  • Naam
    K. Kanglie
  • Opmerking
    Comfortabel

Burgerlijke staat

Gehuwd
Ongehuwd
Gescheiden
Verweduwd
  • Gehuwd
  • Ongehuwd
  • Gescheiden
  • Verweduwd

Leeftijd in gemeente

0 - 15 jaar
15 - 25 jaar
25-45 jaar
45 - 65 jaar
65+ jaar
  • 0 - 15 jaar
  • 15 - 25 jaar
  • 25 - 45 jaar
  • 45 - 65 jaar
  • 65+ jaar

Gezinnen met kinderen

Met kinderen
Zonder kinderen
Alleenstaand
  • Met kinderen
  • Zonder kinderen
  • Alleenstaand

Leeftijd buurtbewoners

0 - 15 jaar
15 - 25 jaar
25-45 jaar
45 - 65 jaar
65+ jaar
  • 0 - 15 jaar
  • 15 - 25 jaar
  • 25 - 45 jaar
  • 45 - 65 jaar
  • 65+ jaar

Bewoners in de straat

Man
Vrouw
  • Man
  • Vrouw

      Documenten

      Voor alle documenten van deze woning willen we je graag doorverwijzen naar Move.nl.

      Inloggen MOVE.NL

      Aankoopmakelaar

      Hulp nodig bij de aankoop?
      Onze aankoopmakelaars helpen graag

      Aankoopmakelaar
      Dit veld is bedoeld voor validatiedoeleinden en moet niet worden gewijzigd.
      Dit veld is bedoeld voor validatiedoeleinden en moet niet worden gewijzigd.

      "*" geeft vereiste velden aan

      "*" geeft vereiste velden aan

      Dit veld is bedoeld voor validatiedoeleinden en moet niet worden gewijzigd.
      Dit veld is bedoeld voor validatiedoeleinden en moet niet worden gewijzigd.
      Ik wil graag meer informatie ontvangen over(Vereist)
      Dit veld is bedoeld voor validatiedoeleinden en moet niet worden gewijzigd.
      Dit veld is verborgen bij het bekijken van het formulier

      April 2026

      Ma Di Wo Do Vr Za Zo
      1 2 3 4 5
      6 7 8 9 10 11 12
      13 14 15 16 17 18 19
      20 21 22 23 24 25 26
      27 28 29 30

      11 April 2026

      13 April 2026

      14 April 2026

      15 April 2026

      16 April 2026

      17 April 2026

      18 April 2026

      20 April 2026

      21 April 2026

      22 April 2026

      23 April 2026

      24 April 2026

      25 April 2026

      27 April 2026

      28 April 2026

      29 April 2026

      30 April 2026

      De afspraak is nog niet definitief. We nemen binnenkort contact met je op om de afspraak te bevestigen.

      "*" geeft vereiste velden aan

      Dit veld is bedoeld voor validatiedoeleinden en moet niet worden gewijzigd.

      "*" geeft vereiste velden aan

      Dit veld is bedoeld voor validatiedoeleinden en moet niet worden gewijzigd.
      Waar wil je een plek voor reserveren?

      "*" geeft vereiste velden aan

      Dit veld is bedoeld voor validatiedoeleinden en moet niet worden gewijzigd.
      Geen titel

      "*" geeft vereiste velden aan

      Dit veld is bedoeld voor validatiedoeleinden en moet niet worden gewijzigd.
      Waar wil je een afspraak voor?*

      De aanmelding komt ten goede van : Dunantstraat 881, Zoetermeer

      "*" geeft vereiste velden aan

      Dit veld is bedoeld voor validatiedoeleinden en moet niet worden gewijzigd.
      Dit veld is bedoeld voor validatiedoeleinden en moet niet worden gewijzigd.

      April 2026

      Ma Di Wo Do Vr Za Zo
      1 2 3 4 5
      6 7 8 9 10 11 12
      13 14 15 16 17 18 19
      20 21 22 23 24 25 26
      27 28 29 30

      11 April 2026

      13 April 2026

      14 April 2026

      15 April 2026

      16 April 2026

      17 April 2026

      18 April 2026

      20 April 2026

      21 April 2026

      22 April 2026

      23 April 2026

      24 April 2026

      25 April 2026

      27 April 2026

      28 April 2026

      29 April 2026

      30 April 2026

      Dit veld is bedoeld voor validatiedoeleinden en moet niet worden gewijzigd.

      "*" geeft vereiste velden aan

      Dit veld is bedoeld voor validatiedoeleinden en moet niet worden gewijzigd.

      Adres te taxeren woning

      Soort woning
      Doel van taxatie

      Binnen welke periode moet de taxatie worden uitgevoerd?
      MM slash DD slash JJJJ
      MM slash DD slash JJJJ

      "*" geeft vereiste velden aan

      Dit veld is bedoeld voor validatiedoeleinden en moet niet worden gewijzigd.

      "*" geeft vereiste velden aan

      Dit veld is bedoeld voor validatiedoeleinden en moet niet worden gewijzigd.
      Ik heb interesse in:*

      "*" geeft vereiste velden aan

      Dit veld is bedoeld voor validatiedoeleinden en moet niet worden gewijzigd.
      Adres*

      "*" geeft vereiste velden aan

      Dit veld is bedoeld voor validatiedoeleinden en moet niet worden gewijzigd.