Omschrijving

Lichte levensloopbestendige semi-bungalow

Welkom aan de Filmlaan 11 in Zoetermeer: een levensloopbestendige semi-bungalow met verrassend veel ruimte én comfort. Met maar liefst drie van de vier slaapkamers op de begane grond is deze woning perfect voor wie gelijkvloers wil wonen zonder in te leveren op woonoppervlakte. De strakke, lichte afwerking, kunststof kozijnen HR-glas zorgen voor een moderne en onderhoudsarme uitstraling. De royale woonkamer baadt in het licht en biedt uitzicht op de verzorgde tuin met…

Lees meer

Kenmerken

  • Status Verkocht
  • Vraagprijs € 650.000 kosten koper Hypotheek berekenen
  • Woonoppervlakte ca. 125 m2
  • Aantal slaapkamers 4
  • Bouwjaar 1978
Meer kenmerken

Bewoner(s) en vrienden aan het woord

"Ruim achtendertig jaar geleden reden we langs deze hoekwoning aan de Filmlaan 11, met een verkoopbord aan het huis, waarna we gelijk een afspraak maakten voor aankoop. De bewoning is geweldig omdat de woning grotendeels gelijkvloers is, een ruime tuin heeft, de ligging ons een vrij gevoel geeft, en we hele fijne naaste buren hebben, we hebben zelfs een burenapp! Wat ons aansprak was de locatie van de hoekwoning aan de rand van de wijk de Leyens maar ook van Zoetermeer zelf. Door het park heen is het Stadshart, maar ook zijn de winkels in de wijken Leyens en Buytenwegh vanaf de Filmlaan op korte loopafstand bereikbaar. Heerlijk om vanuit de Filmlaan naar Leiden te fietsen, om musea, de markt en terrasjes te bezoeken. We zijn trots op de woning want door onszelf en de omgeving wordt de woning, zeker ook door de ligging, als het visitekaartje van de wijk gezien. De Leyens is een rustige wijk, hoewel het nabijgelegen verzorgingstehuis Buytenhaghe best reuring kan geven, maar is op een gezellige manier. De oudjes en de mede-buurtbewoners maken vaak genoeg een praatje als ze langs ons huis en vanuit het park komen lopen, zo leuk en gezellig, we gaan het missen!!!"

- NiCo

Vragen of even
binnenkijken?

Neem vrijblijvend contact
op met Ferdi Bennemeer

Meer kans maken?

Laat zien dat je financieel sterk staat!
Met een KopersPaspoort© toon je aan dat je snel kunt schakelen. Meer kans op jouw droomhuis!

Open Woningwaarde Dag

Benieuwd naar de waarde van je huis? Maak gebruik van een gratis waardebepaling tijdens onze Open Woningwaarde Dag!

Tijdens de Open Woningwaarde Dag komen we langs om binnen 20 minuten de waarde van jouw huis te bepalen.

ONLINE ZOEKSERVICE

Door een gratis zoekprofiel aan te maken krijg je voortaan ál het nieuwe huizenaanbod van álle makelaars direct in je mailbox, vaak al voordat het op Funda staat.

Lichte levensloopbestendige semi-bungalow

Welkom aan de Filmlaan 11 in Zoetermeer: een levensloopbestendige semi-bungalow met verrassend veel ruimte én comfort. Met maar liefst drie van de vier slaapkamers op de begane grond is deze woning perfect voor wie gelijkvloers wil wonen zonder in te leveren op woonoppervlakte. De strakke, lichte afwerking, kunststof kozijnen HR-glas zorgen voor een moderne en onderhoudsarme uitstraling. De royale woonkamer baadt in het licht en biedt uitzicht op de verzorgde tuin met overkapping. Boven bevindt zich een extra slaapkamer met dakkapel — ideaal als logeer- of hobbykamer. Tot slot maakt de aangebouwde stenen garage het plaatje compleet voor wie comfortabel en praktisch wil wonen.

HIGHLIGHTS
+ Levensloopbestendige semi-bungalow
+ Maar liefst 3 slaapkamers op de begane grond
+ Aangebouwde stenen garage

BEGANE GROND
Hal met toilet en meterkast. Lichte woonkamer met heerlijk uitzicht op de achtertuin. Kleine slaapkamers 1 en 2 aan de voorzijde. Slaapkamer 3 aan de achterzijde met trap naar de bovengelegen slaapkamer. De dichte goed onderhouden keuken is gelegen aan de voorzijde en is voorzien van diverse inbouwapparatuur waaronder een keramische kookplaat en Grohe kokend water kraan. De bijkeuken aan de achterzijde beschikt over een opstelplaats voor de wasapparatuur.

1e VERDIEPING
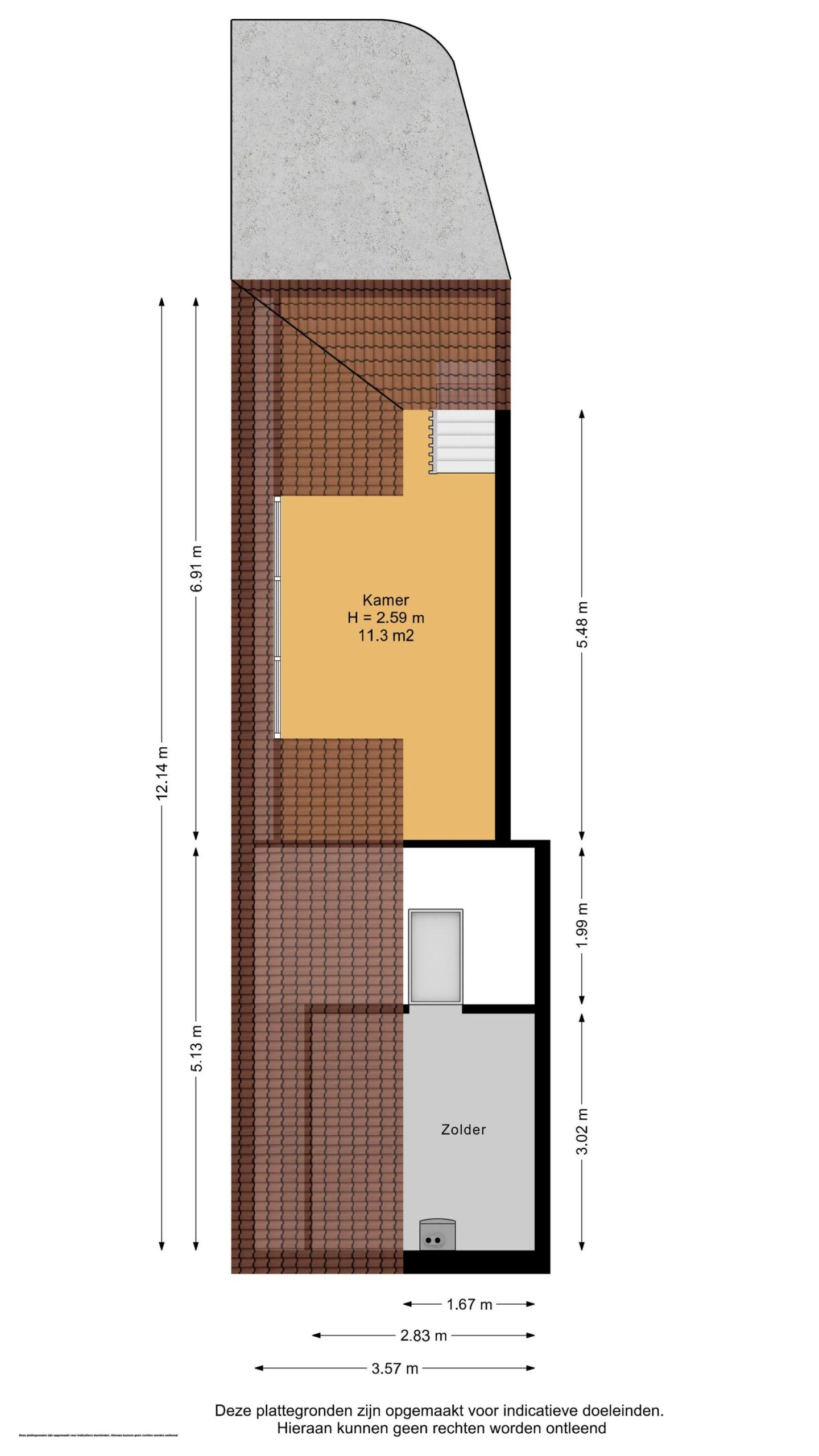
Slaapkamer 4 (master) vergroot door middel van een dakkapel. De zolder is te bereiken door middel van een luik in de hal op de begane grond.

BUITENRUIMTE
De verzorgde achtertuin ligt op het noordwesten en is het heerlijk vertoeven in de overkapping. Bovendien is hier een handige opbergruimte voor bijvoorbeeld tuingereedschap aanwezig. De aangebouwde stenen garage aan de voorzijde beschikt over een handige elektrische geïsoleerde overheaddeur.

Klinkt dit als jouw ideale thuis? Loop alvast in 3D door de woning om alle ruimtes te bekijken en maak snel een afspraak voor een bezichtiging!

PLUSPUNTEN
+ Energielabel B
+ Levensloopbestendige semi-bungalow
+ Maar liefst 4 slaapkamers, waarvan 3 op de begane grond
+ Aangebouwde stenen garage
+ Uitstekend onderhouden en smaakvol ingericht
+ Dakkapel aanwezig
+ Volledig voorzien van kunststof kozijnen
+ Travertin vloer in woonkamer, keuken en hal
+ Voorzien van waterontharder
+ Verzorgde achtertuin met overkapping
+ Centrale ligging op een fijne locatie

BIJZONDERHEDEN
> Er is sprake van een appartementsrecht
> Notariskeuze voorbehouden aan verkoper

Ouderdoms- en asbestclausule zijn van toepassing

OMGEVING
Benieuwd naar de omgeving? Bekijk alle voorzieningen onder het kopje ‘In de buurt’!

INTERESSE?
Dan nodigen we je uit om contact met ons op te nemen. We vertellen je graag meer over deze woning en zorgen ervoor dat je overige stukken en algemene voorwaarden verkopend makelaar digitaal via jouw persoonlijke Move account kunt bekijken.

ONZE TIP
Aankopen? Schakel jouw eigen NVM-aankoopmakelaar in! De NVM-aankoopmakelaar komt op voor jouw belang en bespaart je veel tijd, geld en zorgen. Adressen van collega NVM-aankoopmakelaars vind je op Funda.

De gegeven informatie is met zorgvuldigheid opgesteld, aan de juistheid kunnen echter geen rechten worden ontleend. Alle verstrekte informatie moet beschouwd worden als een uitnodiging tot het doen van een aanbod of om in onderhandeling te treden.

Vragen of even
binnenkijken?

Neem vrijblijvend contact
op met Ferdi Bennemeer

Meer kans maken?

Laat zien dat je financieel sterk staat!
Met een KopersPaspoort© toon je aan dat je snel kunt schakelen. Meer kans op jouw droomhuis!

Open Woningwaarde Dag

Benieuwd naar de waarde van je huis? Maak gebruik van een gratis waardebepaling tijdens onze Open Woningwaarde Dag!

Tijdens de Open Woningwaarde Dag komen we langs om binnen 20 minuten de waarde van jouw huis te bepalen.

ONLINE ZOEKSERVICE

Door een gratis zoekprofiel aan te maken krijg je voortaan ál het nieuwe huizenaanbod van álle makelaars direct in je mailbox, vaak al voordat het op Funda staat.

Overdracht

  • Status Verkocht
  • Vraagprijs € 650.000,- kosten koper Hypotheek berekenen
  • Aanvaarding In overleg

Bouwvorm

  • Soort object Hoekwoning
  • Soort woning Bungalow
  • Bouwjaar 1978
  • Soort bouw Woonhuis
  • Ligging In woonwijk

Indeling

  • Woonoppervlakte 125m2
  • Perceeloppervlakte 252m2
  • Inhoud 490m2
  • Aantal kamers 5 kamers
  • Aantal slaapkamers 4
  • Aantal badkamers 1 badkamer
  • Badkamervoorzieningen Ligbad, toilet, wastafel
  • Aantal woonlagen 2 woonlagen
  • Overige inpandige ruimte ca. 16m2

Energie & Installatie

  • Energielabel B
  • Isolatie Muurisolatie, vloerisolatie, hr glas
  • Verwarming Cv ketel
  • Warm water Cv ketel, elektrische boiler eigendom
  • C.v.-ketel type Gas
  • C.v.-ketel bouwjaar 2016
  • Energie einddatum 2030-12-31

Bergruimte

  • Schuur / berging Vrijstaand hout
  • Aantal schuren / bergingen 1

Parkeergelegenheid

  • Parkeerfaciliteiten Openbaar parkeren
  • Garage Aangebouwd steen

Dak

  • Soort dak Samengesteld dak

Overig

  • Onderhoud binnen Uitstekend
  • Onderhoud buiten Uitstekend
  • Bijzonderheden Gedeeltelijk gestoffeerd, toegankelijk voor ouderen
  • Permanente bewoning Ja
  • Huidig gebruik Woonruimte
  • Huidige bestemming Woonruimte

Voorzieningen

  • Voorzieningen Rolluiken, tv kabel, natuurlijke ventilatie

Buitenruimte

  • Hoofdtuin Achtertuin
  • Oppervlakte hoofdtuin ca. 88m2
  • Ligging hoofdtuin Noordwest
  • Kwaliteit tuin Verzorgd

Kadastrale gegevens

  • Gemeente Zoetermeer
  • Sectie C
  • Eigendom Volle eigendom
  • Perceelnummer 2490
  • Index 1
  • Perceeloppervlakte 252

Extra

Kenmerken toegevoegd door verkoper, vrienden en familie

Vrienden, familie en kennissen van de eigenaar delen hun unieke kenmerken die de Filmlaan 11 het beste omschrijven.

NiCo
  • Naam
    NiCo
  • Opmerking
    Het gelijkvloers wonen met tuin is geweldig!
NiCo
  • Naam
    NiCo
  • Opmerking
    Op de rand van Zoetermeer en makkelijke uitvalswegen richting het Stadshart en Leiden
NiCo
  • Naam
    NiCo
  • Opmerking
    Locatie
NiCo
  • Naam
    NiCo
  • Opmerking
    Veel opbergruimte
NiCo
  • Naam
    NiCo
  • Opmerking
    Fijne lichtinval
NiCo
  • Naam
    NiCo
  • Opmerking
    Vrij uitzicht
NiCo
  • Naam
    NiCo
  • Opmerking
    Dichtbij OV
NiCo
  • Naam
    NiCo
  • Opmerking
    Groene omgeving
NiCo
  • Naam
    NiCo
  • Opmerking
    Gezellige buren
NiCo
  • Naam
    NiCo
  • Opmerking
    Zonnige tuin

Burgerlijke staat

Gehuwd
Ongehuwd
Gescheiden
Verweduwd
  • Gehuwd
  • Ongehuwd
  • Gescheiden
  • Verweduwd

Leeftijd in gemeente

0 - 15 jaar
15 - 25 jaar
25-45 jaar
45 - 65 jaar
65+ jaar
  • 0 - 15 jaar
  • 15 - 25 jaar
  • 25 - 45 jaar
  • 45 - 65 jaar
  • 65+ jaar

Gezinnen met kinderen

Met kinderen
Zonder kinderen
Alleenstaand
  • Met kinderen
  • Zonder kinderen
  • Alleenstaand

Leeftijd buurtbewoners

0 - 15 jaar
15 - 25 jaar
25-45 jaar
45 - 65 jaar
65+ jaar
  • 0 - 15 jaar
  • 15 - 25 jaar
  • 25 - 45 jaar
  • 45 - 65 jaar
  • 65+ jaar

Bewoners in de straat

Man
Vrouw
  • Man
  • Vrouw

      Documenten

      Voor alle documenten van deze woning willen we je graag doorverwijzen naar Move.nl.

      Inloggen MOVE.NL

      Aankoopmakelaar

      Hulp nodig bij de aankoop?
      Onze aankoopmakelaars helpen graag

      Aankoopmakelaar
      Dit veld is bedoeld voor validatiedoeleinden en moet niet worden gewijzigd.
      Dit veld is bedoeld voor validatiedoeleinden en moet niet worden gewijzigd.

      "*" geeft vereiste velden aan

      "*" geeft vereiste velden aan

      Dit veld is bedoeld voor validatiedoeleinden en moet niet worden gewijzigd.
      Dit veld is bedoeld voor validatiedoeleinden en moet niet worden gewijzigd.
      Ik wil graag meer informatie ontvangen over(Vereist)
      Dit veld is bedoeld voor validatiedoeleinden en moet niet worden gewijzigd.
      Dit veld is verborgen bij het bekijken van het formulier

      Oktober 2025

      Ma Di Wo Do Vr Za Zo
      1 2 3 4 5
      6 7 8 9 10 11 12
      13 14 15 16 17 18 19
      20 21 22 23 24 25 26
      27 28 29 30 31

      21 Oktober 2025

      22 Oktober 2025

      23 Oktober 2025

      24 Oktober 2025

      25 Oktober 2025

      27 Oktober 2025

      28 Oktober 2025

      29 Oktober 2025

      30 Oktober 2025

      31 Oktober 2025

      De afspraak is nog niet definitief. We nemen binnenkort contact met je op om de afspraak te bevestigen.

      "*" geeft vereiste velden aan

      Dit veld is bedoeld voor validatiedoeleinden en moet niet worden gewijzigd.

      "*" geeft vereiste velden aan

      Dit veld is bedoeld voor validatiedoeleinden en moet niet worden gewijzigd.
      Waar wil je een plek voor reserveren?

      "*" geeft vereiste velden aan

      Dit veld is bedoeld voor validatiedoeleinden en moet niet worden gewijzigd.
      Geen titel

      "*" geeft vereiste velden aan

      Dit veld is bedoeld voor validatiedoeleinden en moet niet worden gewijzigd.
      Waar wil je een afspraak voor?*

      De aanmelding komt ten goede van : Filmlaan 11, Zoetermeer

      "*" geeft vereiste velden aan

      Dit veld is bedoeld voor validatiedoeleinden en moet niet worden gewijzigd.
      Dit veld is bedoeld voor validatiedoeleinden en moet niet worden gewijzigd.
      Dit veld is verborgen bij het bekijken van het formulier
      Dit veld is verborgen bij het bekijken van het formulier

      Oktober 2025

      Ma Di Wo Do Vr Za Zo
      1 2 3 4 5
      6 7 8 9 10 11 12
      13 14 15 16 17 18 19
      20 21 22 23 24 25 26
      27 28 29 30 31

      21 Oktober 2025

      22 Oktober 2025

      23 Oktober 2025

      24 Oktober 2025

      25 Oktober 2025

      27 Oktober 2025

      28 Oktober 2025

      29 Oktober 2025

      30 Oktober 2025

      31 Oktober 2025

      Dit veld is bedoeld voor validatiedoeleinden en moet niet worden gewijzigd.

      "*" geeft vereiste velden aan

      Dit veld is bedoeld voor validatiedoeleinden en moet niet worden gewijzigd.

      Adres te taxeren woning

      Soort woning
      Doel van taxatie

      Binnen welke periode moet de taxatie worden uitgevoerd?
      MM slash DD slash JJJJ
      MM slash DD slash JJJJ

      "*" geeft vereiste velden aan

      Dit veld is bedoeld voor validatiedoeleinden en moet niet worden gewijzigd.

      "*" geeft vereiste velden aan

      Dit veld is bedoeld voor validatiedoeleinden en moet niet worden gewijzigd.
      Ik heb interesse in:*

      "*" geeft vereiste velden aan

      Dit veld is bedoeld voor validatiedoeleinden en moet niet worden gewijzigd.
      Adres*

      "*" geeft vereiste velden aan

      Dit veld is bedoeld voor validatiedoeleinden en moet niet worden gewijzigd.