Omschrijving

Licht 3-kamer appartement met twee balkons en vrij uitzicht

Ruimte, licht en een heerlijk vrij uitzicht: deze bovenwoning op de topverdieping biedt een mooie basis die je geheel naar eigen smaak kunt afwerken. Met twee fijne balkons, waaronder een royaal balkon op het zuiden en een lichte woonkamer woon je hier rustig én dicht bij alles wat de stad te bieden heeft.

HIGHLIGHTS
+ Nette keuken en badkamer
+ 3-kamer appartement
+…

Lees meer

Kenmerken

  • Status Verkocht onder voorbehoud
  • Vraagprijs € 275.000 kosten koper Hypotheek berekenen
  • Woonoppervlakte ca. 63 m2
  • Aantal slaapkamers 2
  • Bouwjaar 1956
Meer kenmerken

Vragen of even
binnenkijken?

Neem vrijblijvend contact
op met Koen van Schooten

Meer kans maken?

Laat zien dat je financieel sterk staat!
Met een KopersPaspoort© toon je aan dat je snel kunt schakelen. Meer kans op jouw droomhuis!

Open Woningwaarde Dag

Benieuwd naar de waarde van je huis? Maak gebruik van een gratis waardebepaling tijdens onze Open Woningwaarde Dag!

Tijdens de Open Woningwaarde Dag komen we langs om binnen 20 minuten de waarde van jouw huis te bepalen.

ONLINE ZOEKSERVICE

Door een gratis zoekprofiel aan te maken krijg je voortaan ál het nieuwe huizenaanbod van álle makelaars direct in je mailbox, vaak al voordat het op Funda staat.

Licht 3-kamer appartement met twee balkons en vrij uitzicht

Ruimte, licht en een heerlijk vrij uitzicht: deze bovenwoning op de topverdieping biedt een mooie basis die je geheel naar eigen smaak kunt afwerken. Met twee fijne balkons, waaronder een royaal balkon op het zuiden en een lichte woonkamer woon je hier rustig én dicht bij alles wat de stad te bieden heeft.

HIGHLIGHTS
+ Nette keuken en badkamer
+ 3-kamer appartement
+ Vrij uitzicht en balkon op zuiden

Begane grond:
Je komt binnen via een verzorgde, afgesloten portiek met bellentableau en brievenbussen. Vanuit hier heb je toegang tot de ruime privéberging in de onderbouw en de trap naar de woning op de vierde verdieping.

INDELING
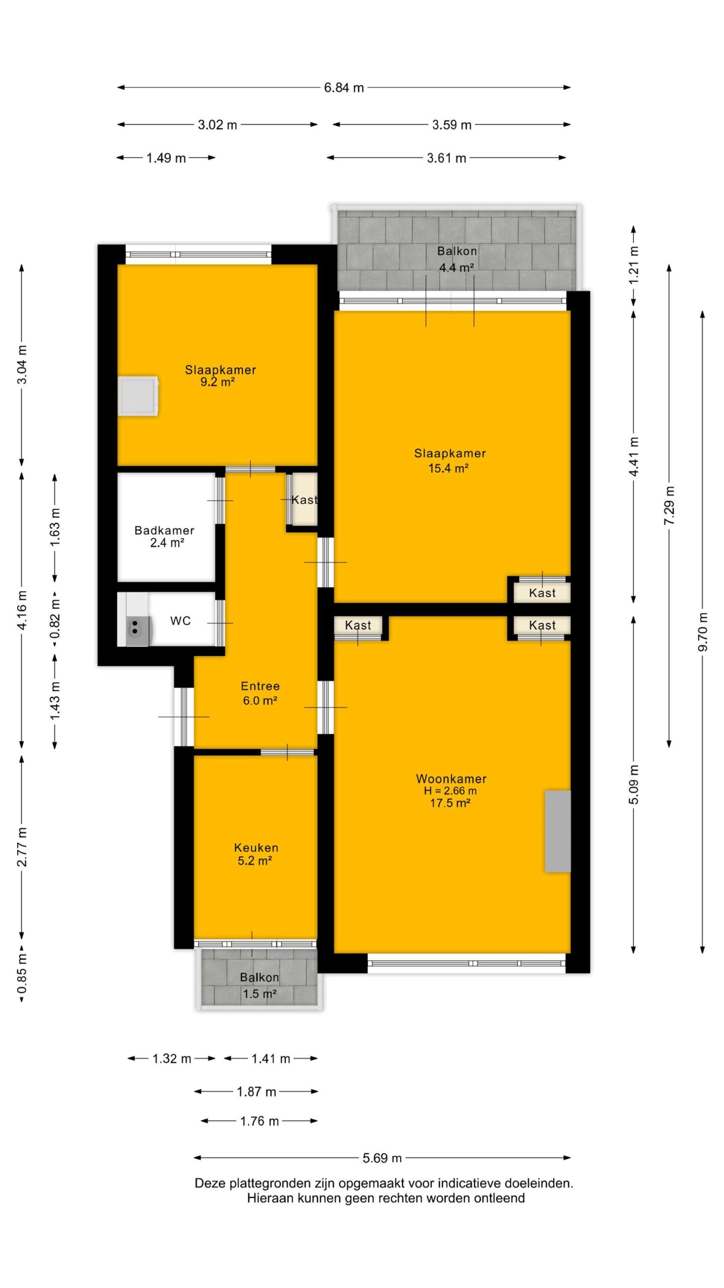
Bij binnenkomst in het appartement stap je de lichte hal binnen, die toegang biedt tot alle vertrekken waaronder het separate toilet en de praktische bergkast. De badkamer is functioneel en voorzien van een douche en wastafel.

De woonkamer ligt aan de voorzijde en valt direct op door de grote ramen die veel daglicht binnenlaten. De gaskachel voegt warmte en sfeer toe op koelere dagen. De keuken is netjes en praktisch opgesteld in twee delen, met een directe doorgang naar het voorbalkon. Hier heb je uitzicht over de straat en het water, ideaal voor een ochtendkoffie in de zon.

Aan de achterzijde van het appartement bevindt zich de grote slaapkamer met toegang tot het grotere, zonnige balkon op het zuiden. Vanaf hier kijk je uit op de fraai aangelegde, besloten gemeenschappelijke tuin, exclusief voor bewoners van het complex. De tweede slaapkamer, eveneens aan de achterzijde biedt volop mogelijkheden als werkruimte, logeerkamer of hobbykamer.

OMGEVING
De woning ligt in het gezellige Oude Noorden, een stadswijk met karakter, creatieve ondernemers en een levendige mix van winkels en horeca. Je woont hier op korte afstand van het Vroesenpark, het Kralingse Bos en de Kralingse Plas, ideaal voor een wandeling of sportmoment. Supermarkten, speciaalzaken en geliefde restaurants liggen om de hoek.
Station Rotterdam Noord bereik je lopend, het Centraal Station is circa tien minuten fietsen en via de A13 en A20 rij je zo de stad uit. Een perfecte balans tussen stedelijk gemak en groene ontspanning.

Klinkt dit als jouw ideale thuis? Loop alvast in 3D door de woning om alle ruimtes te bekijken en maak snel een afspraak voor een bezichtiging!

PLUSPUNTEN
+ Een woning om naar eigen inzicht af te werken
+ Geheel voorzien van dubbelglas
+ Balkon voorzijde en balkon achterzijde
+ Ruime berging in onderbouw
+ Actieve vereniging van eigenaren
+ Nabij winkels, restaurants en cafés
+ Nabij recreatie gebieden als Vroessenpark en Kralingse Bos

ouderdoms-, asbest en loodclausule zijn van toepassing

OMGEVING
Benieuwd naar de omgeving? Bekijk alle voorzieningen onder het kopje ‘In de buurt’!

INTERESSE?
Dan nodigen we je uit om contact met ons op te nemen. We vertellen je graag meer over deze woning en zorgen ervoor dat je overige stukken en algemene voorwaarden verkopend makelaar digitaal via jouw persoonlijke Move account kunt bekijken.

ONZE TIP
Aankopen? Schakel jouw eigen NVM-aankoopmakelaar in! De NVM-aankoopmakelaar komt op voor jouw belang en bespaart je veel tijd, geld en zorgen. Adressen van collega NVM-aankoopmakelaars vind je op Funda.

De gegeven informatie is met zorgvuldigheid opgesteld, aan de juistheid kunnen echter geen rechten worden ontleend. Alle verstrekte informatie moet beschouwd worden als een uitnodiging tot het doen van een aanbod of om in onderhandeling te treden.

Vragen of even
binnenkijken?

Neem vrijblijvend contact
op met Koen van Schooten

Meer kans maken?

Laat zien dat je financieel sterk staat!
Met een KopersPaspoort© toon je aan dat je snel kunt schakelen. Meer kans op jouw droomhuis!

Open Woningwaarde Dag

Benieuwd naar de waarde van je huis? Maak gebruik van een gratis waardebepaling tijdens onze Open Woningwaarde Dag!

Tijdens de Open Woningwaarde Dag komen we langs om binnen 20 minuten de waarde van jouw huis te bepalen.

ONLINE ZOEKSERVICE

Door een gratis zoekprofiel aan te maken krijg je voortaan ál het nieuwe huizenaanbod van álle makelaars direct in je mailbox, vaak al voordat het op Funda staat.

Overdracht

  • Status Verkocht onder voorbehoud
  • Vraagprijs € 275.000,- kosten koper Hypotheek berekenen
  • Aanvaarding In overleg

Bouwvorm

  • Bouwjaar 1956
  • Soort bouw Appartement
  • Ligging Aan drukke weg, in woonwijk, vrij uitzicht

Indeling

  • Woonoppervlakte 63m2
  • Gebouwgebonden buitenruimte 5m2
  • Inhoud 202m2
  • Aantal kamers 3 kamers
  • Aantal slaapkamers 2
  • Aantal woonlagen 1 woonlagen
  • Externe bergruimte ca. 5m2

Energie & Installatie

  • Energielabel G
  • Isolatie Dubbel glas
  • Verwarming Gaskachels
  • Warm water Geiser eigendom
  • Energie einddatum 2035-11-25

Bergruimte

  • Schuur / berging Box
  • Aantal schuren / bergingen 1

Parkeergelegenheid

  • Parkeerfaciliteiten Betaald parkeren, parkeervergunningen
  • Garage Geen garage

Dak

  • Soort dak Plat dak

Overig

  • Onderhoud binnen Redelijk tot goed
  • Onderhoud buiten Goed
  • VVE Bijdrage € 154.65
  • Permanente bewoning Ja
  • Huidig gebruik Woonruimte
  • Huidige bestemming Woonruimte

Voorzieningen

  • Voorzieningen Tv kabel

Kadastrale gegevens

  • Gemeente Rotterdam
  • Sectie Y
  • Eigendom Volle eigendom
  • Perceelnummer 5073
  • Index 36

Extra

Burgerlijke staat

Gehuwd
Ongehuwd
Gescheiden
Verweduwd
  • Gehuwd
  • Ongehuwd
  • Gescheiden
  • Verweduwd

Leeftijd in gemeente

0 - 15 jaar
15 - 25 jaar
25-45 jaar
45 - 65 jaar
65+ jaar
  • 0 - 15 jaar
  • 15 - 25 jaar
  • 25 - 45 jaar
  • 45 - 65 jaar
  • 65+ jaar

Gezinnen met kinderen

Met kinderen
Zonder kinderen
Alleenstaand
  • Met kinderen
  • Zonder kinderen
  • Alleenstaand

Leeftijd buurtbewoners

0 - 15 jaar
15 - 25 jaar
25-45 jaar
45 - 65 jaar
65+ jaar
  • 0 - 15 jaar
  • 15 - 25 jaar
  • 25 - 45 jaar
  • 45 - 65 jaar
  • 65+ jaar

Bewoners in de straat

Man
Vrouw
  • Man
  • Vrouw

      Documenten

      Voor alle documenten van deze woning willen we je graag doorverwijzen naar Move.nl.

      Inloggen MOVE.NL

      Aankoopmakelaar

      Hulp nodig bij de aankoop?
      Onze aankoopmakelaars helpen graag

      Aankoopmakelaar
      Dit veld is bedoeld voor validatiedoeleinden en moet niet worden gewijzigd.
      Dit veld is bedoeld voor validatiedoeleinden en moet niet worden gewijzigd.

      "*" geeft vereiste velden aan

      "*" geeft vereiste velden aan

      Dit veld is bedoeld voor validatiedoeleinden en moet niet worden gewijzigd.
      Dit veld is bedoeld voor validatiedoeleinden en moet niet worden gewijzigd.
      Ik wil graag meer informatie ontvangen over(Vereist)
      Dit veld is bedoeld voor validatiedoeleinden en moet niet worden gewijzigd.
      Dit veld is verborgen bij het bekijken van het formulier

      April 2026

      Ma Di Wo Do Vr Za Zo
      1 2 3 4 5
      6 7 8 9 10 11 12
      13 14 15 16 17 18 19
      20 21 22 23 24 25 26
      27 28 29 30

      13 April 2026

      14 April 2026

      15 April 2026

      16 April 2026

      17 April 2026

      18 April 2026

      20 April 2026

      21 April 2026

      22 April 2026

      23 April 2026

      24 April 2026

      25 April 2026

      27 April 2026

      28 April 2026

      29 April 2026

      30 April 2026

      De afspraak is nog niet definitief. We nemen binnenkort contact met je op om de afspraak te bevestigen.

      "*" geeft vereiste velden aan

      Dit veld is bedoeld voor validatiedoeleinden en moet niet worden gewijzigd.

      "*" geeft vereiste velden aan

      Dit veld is bedoeld voor validatiedoeleinden en moet niet worden gewijzigd.
      Waar wil je een plek voor reserveren?

      "*" geeft vereiste velden aan

      Dit veld is bedoeld voor validatiedoeleinden en moet niet worden gewijzigd.
      Geen titel

      "*" geeft vereiste velden aan

      Dit veld is bedoeld voor validatiedoeleinden en moet niet worden gewijzigd.
      Waar wil je een afspraak voor?*

      De aanmelding komt ten goede van : Gordelweg 24D, Rotterdam

      "*" geeft vereiste velden aan

      Dit veld is bedoeld voor validatiedoeleinden en moet niet worden gewijzigd.
      Dit veld is bedoeld voor validatiedoeleinden en moet niet worden gewijzigd.

      April 2026

      Ma Di Wo Do Vr Za Zo
      1 2 3 4 5
      6 7 8 9 10 11 12
      13 14 15 16 17 18 19
      20 21 22 23 24 25 26
      27 28 29 30

      13 April 2026

      14 April 2026

      15 April 2026

      16 April 2026

      17 April 2026

      18 April 2026

      20 April 2026

      21 April 2026

      22 April 2026

      23 April 2026

      24 April 2026

      25 April 2026

      27 April 2026

      28 April 2026

      29 April 2026

      30 April 2026

      Dit veld is bedoeld voor validatiedoeleinden en moet niet worden gewijzigd.

      "*" geeft vereiste velden aan

      Dit veld is bedoeld voor validatiedoeleinden en moet niet worden gewijzigd.

      Adres te taxeren woning

      Soort woning
      Doel van taxatie

      Binnen welke periode moet de taxatie worden uitgevoerd?
      MM slash DD slash JJJJ
      MM slash DD slash JJJJ

      "*" geeft vereiste velden aan

      Dit veld is bedoeld voor validatiedoeleinden en moet niet worden gewijzigd.

      "*" geeft vereiste velden aan

      Dit veld is bedoeld voor validatiedoeleinden en moet niet worden gewijzigd.
      Ik heb interesse in:*

      "*" geeft vereiste velden aan

      Dit veld is bedoeld voor validatiedoeleinden en moet niet worden gewijzigd.
      Adres*

      "*" geeft vereiste velden aan

      Dit veld is bedoeld voor validatiedoeleinden en moet niet worden gewijzigd.