Omschrijving

Moderne twee-onder-eenkapwoning met aangebouwde garage en vier slaapkamers

Op een rustige hoek in de geliefde wijk Oosterheem ligt deze verrassend ruime geschakelde twee-onder-eenkapwoning. Met maar liefst 156m² woonoppervlak, een zonnige tuin op het zuiden en een aangebouwde stenen garage woon je hier comfortabel, energiezuinig en met volop ruimte voor het hele gezin. De woning is tot in detail verzorgd en van alle gemakken voorzien: denk aan een royale woonkamer van bijna 50m², een moderne woonkeuken…

Lees meer

Kenmerken

  • Status Verkocht onder voorbehoud
  • Vraagprijs € 750.000 kosten koper Hypotheek berekenen
  • Woonoppervlakte ca. 156 m2
  • Aantal slaapkamers 4
  • Bouwjaar 2005
Meer kenmerken

Bewoner(s) en vrienden aan het woord

"“Wij hebben 20 jaar lang genoten van de IJsselstroom 1, Zoetermeer, maar nu we de kans krijgen om echt in het Groene Hart te gaan wonen , hebben we besloten om onze woning te verkopen. Het was altijd heerlijk om in de woonkamer te zitten! Dankzij het grote aantal ramen is er altijd voldoende licht en uitzicht. Met de openslaande deuren ben je direct in de grote achtertuin (op het zuiden) en heb je de hele dag door een heerlijk zonnetje. Hier hebben wij iedere zomer met de gehele familie heerlijk van kunnen genieten!”"

- Marc Viergever

"Wij hebben 20 jaar lang genoten van de IJsselstroom 1, Zoetermeer, maar nu beide kinderen hun eigen plek hebben gevonden, besloten wij onze woning te verkopen. Het was altijd heerlijk om in de woonkamer te zitten! Dankzij het grote aantal ramen is er altijd voldoende licht en uitzicht. Met de openslaande deuren ben je direct in de grote achtertuin (op het zuiden) en heb je de hele dag door een heerlijk zonnetje. Hier hebben wij iedere zomer met de gehele familie heerlijk van kunnen genieten!”"

- Marc Viergever

Vragen of even
binnenkijken?

Neem vrijblijvend contact
op met Ferdi Bennemeer

Meer kans maken?

Laat zien dat je financieel sterk staat!
Met een KopersPaspoort© toon je aan dat je snel kunt schakelen. Meer kans op jouw droomhuis!

Open Woningwaarde Dag

Benieuwd naar de waarde van je huis? Maak gebruik van een gratis waardebepaling tijdens onze Open Woningwaarde Dag!

Tijdens de Open Woningwaarde Dag komen we langs om binnen 20 minuten de waarde van jouw huis te bepalen.

ONLINE ZOEKSERVICE

Door een gratis zoekprofiel aan te maken krijg je voortaan ál het nieuwe huizenaanbod van álle makelaars direct in je mailbox, vaak al voordat het op Funda staat.

Moderne twee-onder-eenkapwoning met aangebouwde garage en vier slaapkamers

Op een rustige hoek in de geliefde wijk Oosterheem ligt deze verrassend ruime geschakelde twee-onder-eenkapwoning. Met maar liefst 156m² woonoppervlak, een zonnige tuin op het zuiden en een aangebouwde stenen garage woon je hier comfortabel, energiezuinig en met volop ruimte voor het hele gezin. De woning is tot in detail verzorgd en van alle gemakken voorzien: denk aan een royale woonkamer van bijna 50m², een moderne woonkeuken met gezellige bar en Gaggenau inbouwapparatuur, vier volwaardige slaapkamers en een luxe badkamer. Maar liefst 19 (!!!) zonnepanelen, airconditioning en energielabel A maken het plaatje compleet.

HIGHLIGHTS
+ Woonoppervlakte 156 m² en energielabel A
+ Royale woonkamer met dubbele tuindeuren naar de voor- en achtertuin
+ Vier slaapkamers en luxe badkamer
+ Moderne keuken met gezellige bar, granieten werkblad en Gaggenau inbouwapparatuur

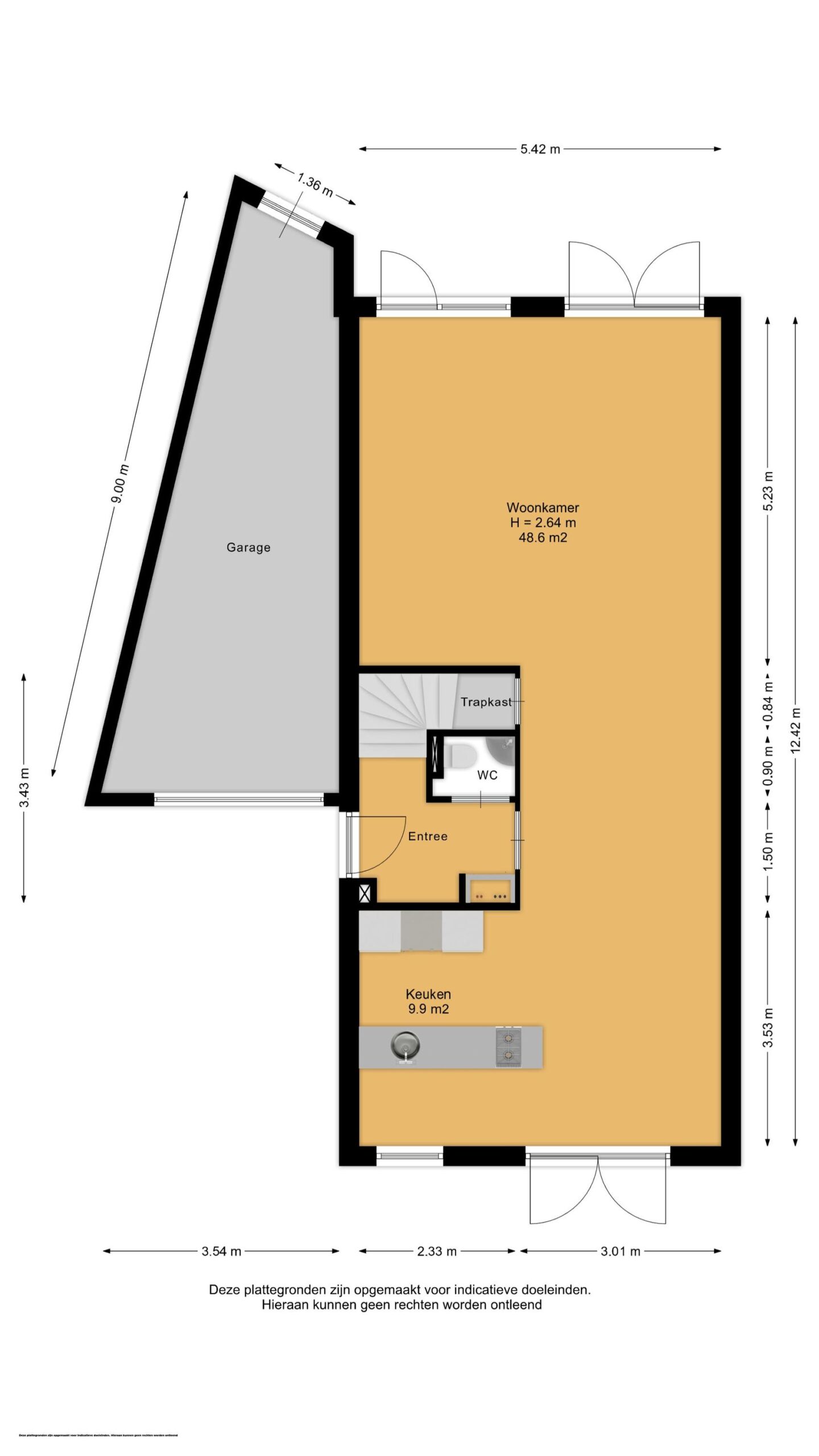
BEGANE GROND
Je komt binnen in een ruime hal met toilet, meterkast en trap naar de eerste verdieping. De lichte woonkamer strekt zich uit over de volle diepte van de woning en voelt extra ruim dankzij de grote raampartijen en de openslaande deuren naar de voor- en achtertuin. De prachtige tegelvloer met vloerverwarming en de slimme indeling maken dit een fijne leefruimte. De woonkeuken ligt aan de voorzijde en is uitgevoerd met een kook-/schiereiland en gezellige bar, een granieten werkblad en diverse hoogwaardige inbouwapparatuur van Gaggenau. Terwijl je kookt, kijk je uit op de verzorgde voortuin. De aangebouwde stenen garage biedt naast parkeerruimte ook handige bergruimte. Er is ruimte voor een auto, fietsen en extra opslag. Dankzij de vaste kasten is dit ook een fijne klus- of hobbyruimte.

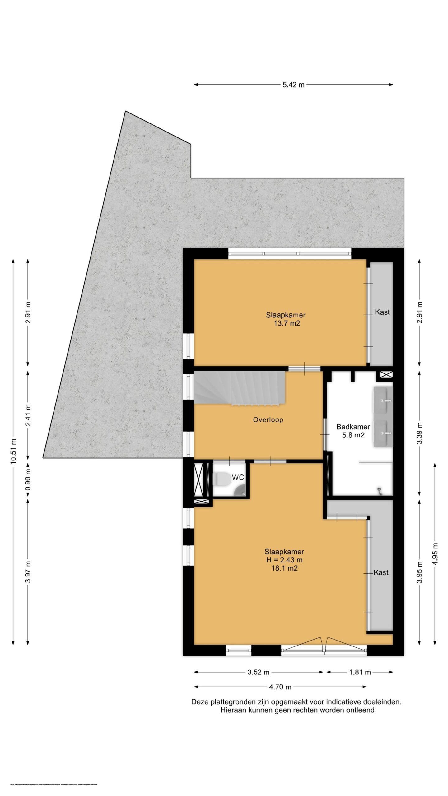
EERSTE VERDIEPING
Op deze verdieping zijn twee ruime slaapkamers en een luxe badkamer aanwezig. De badkamer is stijlvol afgewerkt met een inloopdouche, dubbele wastafel en vloerverwarming. Een apart toilet bevindt zich op de overloop. De slaapkamer aan de voorzijde is zeer ruim en licht door de vele raampartijen. Daarnaast beschikt het over een Frans balkon en vaste kastenwand. De slaapkamer aan de achterzijde is ook lekker ruim en beschikt tevens over een vaste kastenwand en een stijlvol dakvenster. Via de ruime overloop bereik je met de trap de tweede verdieping.

TWEEDE VERDIEPING
Op deze verdieping vind je nog twee slaapkamers aan de voorzijde van de woning. De overloop geeft toegang tot alle ruimtes op deze verdieping. Er is een verfrissende airconditioning geplaatst op deze verdieping en er is een slaapkamer met een wastafel. Via de berging bereik je de bergvliering middels een vlizotrap. De bovenste verdieping is nu ingericht als praktijkruimte, maar biedt tal van mogelijkheden: van extra slaapkamer tot speelkamer of thuiswerkplek. Op deze verdieping vind je ook een aparte wasruimte met aansluitingen voor wasmachine en droger, plus de technische ruimte met de hybride warmtepomp, omvormer van de zonnepanelen en extra bergruimte.

BUITENRUIMTE
De achtertuin is zonnig gelegen op het zuid en biedt veel privacy dankzij de groene erfafscheiding. Er is ruimte genoeg voor een eettafel en loungeset – ideaal om buiten te ontspannen of gezellig te dineren. Via de dubbele tuindeuren in de woonkamer loop je zo naar buiten. Ook de voortuin is een heerlijke plek met een ruim uitzicht.

OMGEVING
Je woont hier in een rustige, kindvriendelijke wijk met veel groen. Winkels, scholen, speelplekken en sportvoorzieningen liggen allemaal in de buurt. Ook het openbaar vervoer en de uitvalswegen zijn goed bereikbaar. Het centrum van Zoetermeer bereik je met de fiets in enkele minuten.

Klinkt dit als jouw ideale thuis? Loop alvast in 3D door de woning om alle ruimtes te bekijken en maak snel een afspraak voor een bezichtiging!

PLUSPUNTEN
+ Energielabel A
+ Maar liefst 19 zonnepanelen
+ Hybride warmtepomp
+ Airconditioning aanwezig
+ Laadpaal op eigen terrein
+ Vier ruime slaapkamers
+ Luxe badkamer en twee toiletruimtes
+ Moderne keuken met kookeiland en bar
+ Royale woonkamer van bijna 50 m²
+ Zonnige achtertuin op het zuiden
+ Aangebouwde stenen garage en parkeren op eigen terrein

OMGEVING
Benieuwd naar de omgeving? Bekijk alle voorzieningen onder het kopje ‘In de buurt’!

INTERESSE?
Dan nodigen we je uit om contact met ons op te nemen. We vertellen je graag meer over deze woning en zorgen ervoor dat je overige stukken en algemene voorwaarden verkopend makelaar digitaal via jouw persoonlijke Move account kunt bekijken.

ONZE TIP
Aankopen? Schakel jouw eigen NVM-aankoopmakelaar in! De NVM-aankoopmakelaar komt op voor jouw belang en bespaart je veel tijd, geld en zorgen. Adressen van collega NVM-aankoopmakelaars vind je op Funda.

De gegeven informatie is met zorgvuldigheid opgesteld, aan de juistheid kunnen echter geen rechten worden ontleend. Alle verstrekte informatie moet beschouwd worden als een uitnodiging tot het doen van een aanbod of om in onderhandeling te treden.

Vragen of even
binnenkijken?

Neem vrijblijvend contact
op met Ferdi Bennemeer

Meer kans maken?

Laat zien dat je financieel sterk staat!
Met een KopersPaspoort© toon je aan dat je snel kunt schakelen. Meer kans op jouw droomhuis!

Open Woningwaarde Dag

Benieuwd naar de waarde van je huis? Maak gebruik van een gratis waardebepaling tijdens onze Open Woningwaarde Dag!

Tijdens de Open Woningwaarde Dag komen we langs om binnen 20 minuten de waarde van jouw huis te bepalen.

ONLINE ZOEKSERVICE

Door een gratis zoekprofiel aan te maken krijg je voortaan ál het nieuwe huizenaanbod van álle makelaars direct in je mailbox, vaak al voordat het op Funda staat.

Overdracht

  • Status Verkocht onder voorbehoud
  • Vraagprijs € 750.000,- kosten koper Hypotheek berekenen
  • Aanvaarding In overleg

Bouwvorm

  • Soort object Geschakelde twee onder een kapwoning
  • Soort woning Eengezinswoning
  • Bouwjaar 2005
  • Soort bouw Woonhuis
  • Ligging In woonwijk

Indeling

  • Woonoppervlakte 156m2
  • Perceeloppervlakte 265m2
  • Inhoud 682m2
  • Aantal kamers 5 kamers
  • Aantal slaapkamers 4
  • Aantal badkamers 1 badkamer
  • Badkamervoorzieningen Dubbele wastafel, wastafelmeubel, inloopdouche, vloerverwarming
  • Aantal woonlagen 4 woonlagen
  • Overige inpandige ruimte ca. 26m2

Energie & Installatie

  • Energielabel A
  • Isolatie Dakisolatie, muurisolatie, vloerisolatie, hr glas
  • Energie einddatum 2030-12-07

Parkeergelegenheid

  • Parkeerfaciliteiten Op eigen terrein
  • Garage Aangebouwd steen

Dak

  • Soort dak Mansarde dak

Overig

  • Onderhoud binnen Goed
  • Onderhoud buiten Goed
  • Bijzonderheden Gedeeltelijk gestoffeerd
  • Permanente bewoning Ja
  • Huidig gebruik Woonruimte
  • Huidige bestemming Woonruimte

Voorzieningen

  • Voorzieningen Alarminstallatie, tv kabel, airconditioning, frans balkon, dakraam, glasvezel kabel, zonnepanelen

Buitenruimte

  • Hoofdtuin Achtertuin
  • Oppervlakte hoofdtuin ca. 49m2
  • Ligging hoofdtuin Zuid
  • Kwaliteit tuin Verzorgd

Kadastrale gegevens

  • Gemeente Zegwaard
  • Sectie F
  • Eigendom Volle eigendom
  • Perceelnummer 3198
  • Perceeloppervlakte 265

Extra

Kenmerken toegevoegd door verkoper, vrienden en familie

Vrienden, familie en kennissen van de eigenaar delen hun unieke kenmerken die de IJsselstroom 1 het beste omschrijven.

Marc Viergever
  • Naam
    Marc Viergever
  • Opmerking
    Het huis is ruim en heeft veel lichtinval. Het huis is dicht bij het Bentwoud, bij scholen, OV en een kinderboerderij
Marc Viergever
  • Naam
    Marc Viergever
  • Opmerking
    Veel opbergruimte
Marc Viergever
  • Naam
    Marc Viergever
  • Opmerking
    Fijne lichtinval
Marc Viergever
  • Naam
    Marc Viergever
  • Opmerking
    Vrij uitzicht
Marc Viergever
  • Naam
    Marc Viergever
  • Opmerking
    Dichtbij OV
Marc Viergever
  • Naam
    Marc Viergever
  • Opmerking
    Voldoende parkeergelegenheid
Marc Viergever
  • Naam
    Marc Viergever
  • Opmerking
    Energiezuinig
Marc Viergever
  • Naam
    Marc Viergever
  • Opmerking
    Kindvriendelijke buurt
Marc Viergever
  • Naam
    Marc Viergever
  • Opmerking
    Groene omgeving
Marc Viergever
  • Naam
    Marc Viergever
  • Opmerking
    Gezellige buren
Marc Viergever
  • Naam
    Marc Viergever
  • Opmerking
    Zonnige tuin

Burgerlijke staat

Gehuwd
Ongehuwd
Gescheiden
Verweduwd
  • Gehuwd
  • Ongehuwd
  • Gescheiden
  • Verweduwd

Leeftijd in gemeente

0 - 15 jaar
15 - 25 jaar
25-45 jaar
45 - 65 jaar
65+ jaar
  • 0 - 15 jaar
  • 15 - 25 jaar
  • 25 - 45 jaar
  • 45 - 65 jaar
  • 65+ jaar

Gezinnen met kinderen

Met kinderen
Zonder kinderen
Alleenstaand
  • Met kinderen
  • Zonder kinderen
  • Alleenstaand

Leeftijd buurtbewoners

0 - 15 jaar
15 - 25 jaar
25-45 jaar
45 - 65 jaar
65+ jaar
  • 0 - 15 jaar
  • 15 - 25 jaar
  • 25 - 45 jaar
  • 45 - 65 jaar
  • 65+ jaar

Bewoners in de straat

Man
Vrouw
  • Man
  • Vrouw

      Documenten

      Voor alle documenten van deze woning willen we je graag doorverwijzen naar Move.nl.

      Inloggen MOVE.NL

      Aankoopmakelaar

      Hulp nodig bij de aankoop?
      Onze aankoopmakelaars helpen graag

      Aankoopmakelaar
      Dit veld is bedoeld voor validatiedoeleinden en moet niet worden gewijzigd.
      Dit veld is bedoeld voor validatiedoeleinden en moet niet worden gewijzigd.

      "*" geeft vereiste velden aan

      "*" geeft vereiste velden aan

      Dit veld is bedoeld voor validatiedoeleinden en moet niet worden gewijzigd.
      Dit veld is bedoeld voor validatiedoeleinden en moet niet worden gewijzigd.
      Ik wil graag meer informatie ontvangen over(Vereist)
      Dit veld is bedoeld voor validatiedoeleinden en moet niet worden gewijzigd.
      Dit veld is verborgen bij het bekijken van het formulier

      December 2025

      Ma Di Wo Do Vr Za Zo
      1 2 3 4 5 6 7
      8 9 10 11 12 13 14
      15 16 17 18 19 20 21
      22 23 24 25 26 27 28
      29 30 31

      6 December 2025

      8 December 2025

      9 December 2025

      10 December 2025

      11 December 2025

      12 December 2025

      13 December 2025

      15 December 2025

      16 December 2025

      17 December 2025

      18 December 2025

      19 December 2025

      20 December 2025

      22 December 2025

      23 December 2025

      24 December 2025

      25 December 2025

      26 December 2025

      27 December 2025

      29 December 2025

      30 December 2025

      31 December 2025

      De afspraak is nog niet definitief. We nemen binnenkort contact met je op om de afspraak te bevestigen.

      "*" geeft vereiste velden aan

      Dit veld is bedoeld voor validatiedoeleinden en moet niet worden gewijzigd.

      "*" geeft vereiste velden aan

      Dit veld is bedoeld voor validatiedoeleinden en moet niet worden gewijzigd.
      Waar wil je een plek voor reserveren?

      "*" geeft vereiste velden aan

      Dit veld is bedoeld voor validatiedoeleinden en moet niet worden gewijzigd.
      Geen titel

      "*" geeft vereiste velden aan

      Dit veld is bedoeld voor validatiedoeleinden en moet niet worden gewijzigd.
      Waar wil je een afspraak voor?*

      De aanmelding komt ten goede van : IJsselstroom 1, Zoetermeer

      "*" geeft vereiste velden aan

      Dit veld is bedoeld voor validatiedoeleinden en moet niet worden gewijzigd.
      Dit veld is bedoeld voor validatiedoeleinden en moet niet worden gewijzigd.
      Dit veld is verborgen bij het bekijken van het formulier
      Dit veld is verborgen bij het bekijken van het formulier

      December 2025

      Ma Di Wo Do Vr Za Zo
      1 2 3 4 5 6 7
      8 9 10 11 12 13 14
      15 16 17 18 19 20 21
      22 23 24 25 26 27 28
      29 30 31

      6 December 2025

      8 December 2025

      9 December 2025

      10 December 2025

      11 December 2025

      12 December 2025

      13 December 2025

      15 December 2025

      16 December 2025

      17 December 2025

      18 December 2025

      19 December 2025

      20 December 2025

      22 December 2025

      23 December 2025

      24 December 2025

      25 December 2025

      26 December 2025

      27 December 2025

      29 December 2025

      30 December 2025

      31 December 2025

      Dit veld is bedoeld voor validatiedoeleinden en moet niet worden gewijzigd.

      "*" geeft vereiste velden aan

      Dit veld is bedoeld voor validatiedoeleinden en moet niet worden gewijzigd.

      Adres te taxeren woning

      Soort woning
      Doel van taxatie

      Binnen welke periode moet de taxatie worden uitgevoerd?
      MM slash DD slash JJJJ
      MM slash DD slash JJJJ

      "*" geeft vereiste velden aan

      Dit veld is bedoeld voor validatiedoeleinden en moet niet worden gewijzigd.

      "*" geeft vereiste velden aan

      Dit veld is bedoeld voor validatiedoeleinden en moet niet worden gewijzigd.
      Ik heb interesse in:*

      "*" geeft vereiste velden aan

      Dit veld is bedoeld voor validatiedoeleinden en moet niet worden gewijzigd.
      Adres*

      "*" geeft vereiste velden aan

      Dit veld is bedoeld voor validatiedoeleinden en moet niet worden gewijzigd.