Omschrijving

Aan het begin van de sfeervolle Jericholaan, midden in het geliefde Kralingen, wacht een unieke dubbele bovenwoning op jou.

Een stijlvol en uitstekend afgewerkt huis met karakter, ruimte en comfort. Je geniet hier van een levendig uitzicht op de Kralingse Plas aan de voorzijde en van het rustgevende groen van de botanische tuin aan de achterzijde.
Alles wat wonen in Kralingen zo bijzonder maakt – natuur, stad, sfeer – ligt binnen handbereik.

HIGHLIGHTS

Lees meer

Kenmerken

  • Status Verkocht
  • Vraagprijs € 600.000 kosten koper Hypotheek berekenen
  • Woonoppervlakte ca. 104 m2
  • Aantal slaapkamers 2
  • Bouwjaar 1908
Meer kenmerken

Vragen of even
binnenkijken?

Neem vrijblijvend contact
op met Nick Oorschot

Meer kans maken?

Laat zien dat je financieel sterk staat!
Met een KopersPaspoort© toon je aan dat je snel kunt schakelen. Meer kans op jouw droomhuis!

Open Woningwaarde Dag

Benieuwd naar de waarde van je huis? Maak gebruik van een gratis waardebepaling tijdens onze Open Woningwaarde Dag!

Tijdens de Open Woningwaarde Dag komen we langs om binnen 20 minuten de waarde van jouw huis te bepalen.

ONLINE ZOEKSERVICE

Door een gratis zoekprofiel aan te maken krijg je voortaan ál het nieuwe huizenaanbod van álle makelaars direct in je mailbox, vaak al voordat het op Funda staat.

Aan het begin van de sfeervolle Jericholaan, midden in het geliefde Kralingen, wacht een unieke dubbele bovenwoning op jou.

Een stijlvol en uitstekend afgewerkt huis met karakter, ruimte en comfort. Je geniet hier van een levendig uitzicht op de Kralingse Plas aan de voorzijde en van het rustgevende groen van de botanische tuin aan de achterzijde.
Alles wat wonen in Kralingen zo bijzonder maakt – natuur, stad, sfeer – ligt binnen handbereik.

HIGHLIGHTS
+ Prachtig uitzicht op de Kralingse Plas
+ Modern ingerichte open keuken met royaal kookeiland
+ Gelegen op eigen grond

INDELING
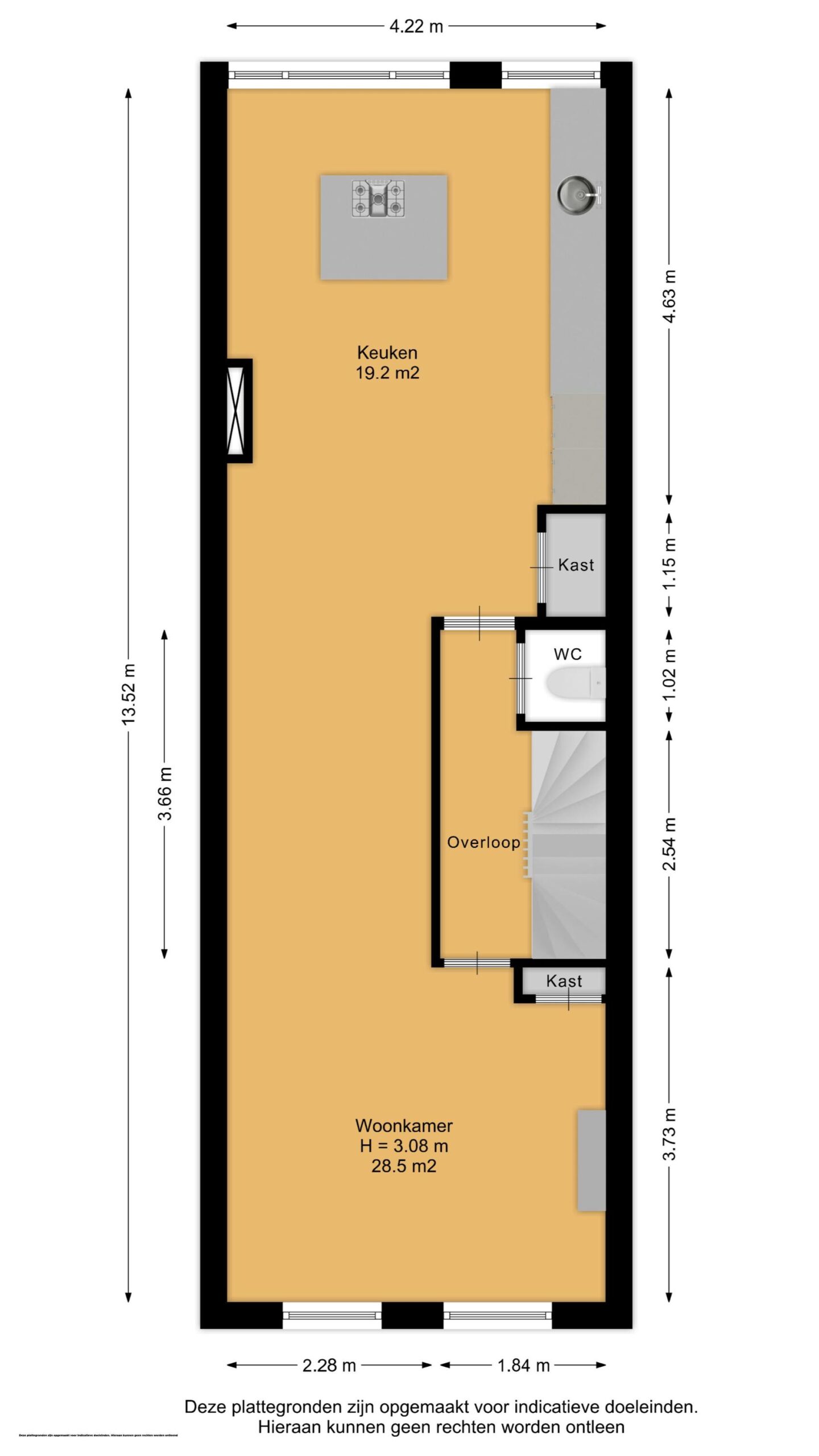
Via je eigen voordeur op de begane grond kom je binnen in de woning. De trap brengt je naar de eerste verdieping waar het stijlvolle woongedeelte zich bevindt.
Onder de woning bevindt zich een ruime, droge kruipruimte van circa 8,70 meter diep, 4,25 meter breed en een maximale hoogte van 1,55 meter. Deze ruimte is uitstekend bruikbaar als extra berging – ideaal voor seizoensopslag of sportspullen.

EERSTE VERDIEPING
Aan de voorzijde ligt de sfeervolle woonkamer, waar hoge plafonds met ornamenten, glas-in-loodramen en een charmante haard direct in het oog springen. Het uitzicht op de Kralingse Plas maakt deze ruimte extra bijzonder – een plek om iedere dag van te genieten.

Aan de achterzijde vind je de open keuken, die in alles luxe en functionaliteit uitstraalt. Het royale kookeiland is de spil van de ruimte, perfect voor koken én samenzijn. De keuken is compleet uitgerust met onder andere een gasfornuis, dubbele wijnklimaatkast, combi-stoomoven, combimagnetron, vaatwasser, koelkast en vriezer.
Grote raampartijen zorgen voor veel licht, terwijl het glas-in-lood bovenraam extra karakter toevoegt.

TWEEDE VERDIEPING
De bovenverdieping is ruimtelijk en licht dankzij een dakkoepel en een dakkapel met grote ramen. Aan de voorzijde bevindt zich de eerste slaapkamer, voorzien van een grote kast en verrassend veel ruimte. De tweede slaapkamer ligt aan de rustige achterzijde en biedt direct toegang tot een royaal balkon van circa 4,30 meter op het westen.
Hier sluit je de dag af met de zon in je gezicht en uitzicht op het groen van de botanische tuin.

Centraal op de verdieping vind je de moderne badkamer. Volledig betegeld en voorzien van een inloopdouche, ligbad met bubbelfunctie, wandcloset, dubbele wastafel, designradiator en inbouwspots – alles is hier tot in detail verzorgd. Tegenover de badkamer is een praktische inbouwkast met aansluitingen voor je wasmachine en droger.

OMGEVING
Wonen aan de Jericholaan betekent wonen in een van de mooiste straten van Kralingen. De brede laan, volwassen bomen en groene middenstrook geven de wijk een statige, rustige uitstraling. En toch zit je hier midden in het leven: wandel of fiets in een paar minuten naar het Kralingse Bos en de plas, of loop de hoek om voor een goede kop koffie, vers brood of een avondje uit eten.
Met metrostation Voorschoterlaan om de hoek en het centrum van Rotterdam op fietsafstand, woon je hier in een perfecte balans tussen rust, natuur en stadse levendigheid. Ook sportliefhebbers komen aan hun trekken met tennisbanen, een zeilclub, manege en diverse sportverenigingen in de buurt. En met meerdere goede scholen in de omgeving is het ook voor gezinnen een ideale plek.

Klinkt dit als jouw ideale thuis? Loop alvast in 3D door de woning om alle ruimtes te bekijken en maak snel een afspraak voor een bezichtiging!

PLUSPUNTEN
+ Prachtige dubbele bovenwoning met unieke ligging
+ Woonkamer met ornamentenplafond, glas-in-lood en haard
+ Twee ruime slaapkamers
+ Moderne badkamer met inloopdouche en bubbelbad
+ Luxe open keuken met kookeiland en hoogwaardige apparatuur
+ Groot balkon op het westen met uitzicht op botanische tuin
+ Veel natuurlijk licht door grote raampartijen en dakkoepel
+ Eigen entree en privéopgang
+ Gelegen op eigen grond
+ Op loopafstand van het Kralingse Bos en de Plas
+ Nabij gezellige horeca, winkels en openbaar vervoer

BIJZONDERHEDEN
> VvE bijdrage € 50,- per maand
> Momenteel wordt er een MJOP opgesteld door de VvE
> Ruime kruipkelder (ca. 32m²) aanwezig met veel bergruimte.

ouderdoms-, asbest en loodclausule zijn van toepassing

OMGEVING
Benieuwd naar de omgeving? Bekijk alle voorzieningen onder het kopje ‘In de buurt’!

INTERESSE?
Dan nodigen we je uit om contact met ons op te nemen. We vertellen je graag meer over deze woning en zorgen ervoor dat je overige stukken en algemene voorwaarden verkopend makelaar digitaal via jouw persoonlijke Move account kunt bekijken.

ONZE TIP
Aankopen? Schakel jouw eigen NVM-aankoopmakelaar in! De NVM-aankoopmakelaar komt op voor jouw belang en bespaart je veel tijd, geld en zorgen. Adressen van collega NVM-aankoopmakelaars vind je op Funda.

De gegeven informatie is met zorgvuldigheid opgesteld, aan de juistheid kunnen echter geen rechten worden ontleend. Alle verstrekte informatie moet beschouwd worden als een uitnodiging tot het doen van een aanbod of om in onderhandeling te treden.

Vragen of even
binnenkijken?

Neem vrijblijvend contact
op met Nick Oorschot

Meer kans maken?

Laat zien dat je financieel sterk staat!
Met een KopersPaspoort© toon je aan dat je snel kunt schakelen. Meer kans op jouw droomhuis!

Open Woningwaarde Dag

Benieuwd naar de waarde van je huis? Maak gebruik van een gratis waardebepaling tijdens onze Open Woningwaarde Dag!

Tijdens de Open Woningwaarde Dag komen we langs om binnen 20 minuten de waarde van jouw huis te bepalen.

ONLINE ZOEKSERVICE

Door een gratis zoekprofiel aan te maken krijg je voortaan ál het nieuwe huizenaanbod van álle makelaars direct in je mailbox, vaak al voordat het op Funda staat.

Overdracht

  • Status Verkocht
  • Vraagprijs € 600.000,- kosten koper Hypotheek berekenen
  • Aanvaarding In overleg

Bouwvorm

  • Bouwjaar 1908
  • Soort bouw Appartement
  • Ligging Aan rustige weg, vrij uitzicht

Indeling

  • Woonoppervlakte 104m2
  • Inhoud 391m2
  • Aantal kamers 3 kamers
  • Aantal slaapkamers 2
  • Aantal badkamers 1 badkamer
  • Badkamervoorzieningen Ligbad, toilet, dubbele wastafel, inloopdouche
  • Aantal woonlagen 2 woonlagen

Energie & Installatie

  • Energielabel D
  • Isolatie Dubbel glas
  • Verwarming Cv ketel
  • Warm water Cv ketel
  • C.v.-ketel type Gas
  • C.v.-ketel bouwjaar 2011
  • Energie einddatum 2030-12-21

Parkeergelegenheid

  • Parkeerfaciliteiten Openbaar parkeren, betaald parkeren, parkeervergunningen
  • Garage Geen garage

Dak

  • Soort dak Plat dak

Overig

  • Onderhoud binnen Goed
  • Onderhoud buiten Goed
  • VVE Bijdrage € 50
  • Permanente bewoning Ja
  • Huidig gebruik Woonruimte
  • Huidige bestemming Woonruimte

Voorzieningen

  • Voorzieningen Mechanische ventilatie, tv kabel

Kadastrale gegevens

  • Gemeente Kralingen
  • Sectie G
  • Eigendom Volle eigendom
  • Perceelnummer 6248
  • Index 3

Extra

Burgerlijke staat

Gehuwd
Ongehuwd
Gescheiden
Verweduwd
  • Gehuwd
  • Ongehuwd
  • Gescheiden
  • Verweduwd

Leeftijd in gemeente

0 - 15 jaar
15 - 25 jaar
25-45 jaar
45 - 65 jaar
65+ jaar
  • 0 - 15 jaar
  • 15 - 25 jaar
  • 25 - 45 jaar
  • 45 - 65 jaar
  • 65+ jaar

Gezinnen met kinderen

Met kinderen
Zonder kinderen
Alleenstaand
  • Met kinderen
  • Zonder kinderen
  • Alleenstaand

Leeftijd buurtbewoners

0 - 15 jaar
15 - 25 jaar
25-45 jaar
45 - 65 jaar
65+ jaar
  • 0 - 15 jaar
  • 15 - 25 jaar
  • 25 - 45 jaar
  • 45 - 65 jaar
  • 65+ jaar

Bewoners in de straat

Man
Vrouw
  • Man
  • Vrouw

      Documenten

      Voor alle documenten van deze woning willen we je graag doorverwijzen naar Move.nl.

      Inloggen MOVE.NL

      Aankoopmakelaar

      Hulp nodig bij de aankoop?
      Onze aankoopmakelaars helpen graag

      Aankoopmakelaar
      Dit veld is bedoeld voor validatiedoeleinden en moet niet worden gewijzigd.

      "*" geeft vereiste velden aan

      "*" geeft vereiste velden aan

      Dit veld is bedoeld voor validatiedoeleinden en moet niet worden gewijzigd.
      Ik wil graag meer informatie ontvangen over(Vereist)
      Dit veld is bedoeld voor validatiedoeleinden en moet niet worden gewijzigd.
      Dit veld is verborgen bij het bekijken van het formulier

      Oktober 2025

      Ma Di Wo Do Vr Za Zo
      1 2 3 4 5
      6 7 8 9 10 11 12
      13 14 15 16 17 18 19
      20 21 22 23 24 25 26
      27 28 29 30 31

      18 Oktober 2025

      20 Oktober 2025

      21 Oktober 2025

      22 Oktober 2025

      23 Oktober 2025

      24 Oktober 2025

      25 Oktober 2025

      27 Oktober 2025

      28 Oktober 2025

      29 Oktober 2025

      30 Oktober 2025

      31 Oktober 2025

      De afspraak is nog niet definitief. We nemen binnenkort contact met je op om de afspraak te bevestigen.

      "*" geeft vereiste velden aan

      Dit veld is bedoeld voor validatiedoeleinden en moet niet worden gewijzigd.

      "*" geeft vereiste velden aan

      Waar wil je een plek voor reserveren?
      Dit veld is bedoeld voor validatiedoeleinden en moet niet worden gewijzigd.

      "*" geeft vereiste velden aan

      Geen titel
      Dit veld is bedoeld voor validatiedoeleinden en moet niet worden gewijzigd.

      "*" geeft vereiste velden aan

      Waar wil je een afspraak voor?*

      De aanmelding komt ten goede van : Jericholaan 3A, Rotterdam

      Dit veld is bedoeld voor validatiedoeleinden en moet niet worden gewijzigd.

      "*" geeft vereiste velden aan

      Dit veld is bedoeld voor validatiedoeleinden en moet niet worden gewijzigd.
      Dit veld is verborgen bij het bekijken van het formulier
      Dit veld is verborgen bij het bekijken van het formulier

      Oktober 2025

      Ma Di Wo Do Vr Za Zo
      1 2 3 4 5
      6 7 8 9 10 11 12
      13 14 15 16 17 18 19
      20 21 22 23 24 25 26
      27 28 29 30 31

      18 Oktober 2025

      20 Oktober 2025

      21 Oktober 2025

      22 Oktober 2025

      23 Oktober 2025

      24 Oktober 2025

      25 Oktober 2025

      27 Oktober 2025

      28 Oktober 2025

      29 Oktober 2025

      30 Oktober 2025

      31 Oktober 2025

      Dit veld is bedoeld voor validatiedoeleinden en moet niet worden gewijzigd.

      "*" geeft vereiste velden aan

      Adres te taxeren woning

      Soort woning
      Doel van taxatie

      Binnen welke periode moet de taxatie worden uitgevoerd?
      MM slash DD slash JJJJ
      MM slash DD slash JJJJ
      Dit veld is bedoeld voor validatiedoeleinden en moet niet worden gewijzigd.

      "*" geeft vereiste velden aan

      Dit veld is bedoeld voor validatiedoeleinden en moet niet worden gewijzigd.

      "*" geeft vereiste velden aan

      Ik heb interesse in:*
      Dit veld is bedoeld voor validatiedoeleinden en moet niet worden gewijzigd.

      "*" geeft vereiste velden aan

      Adres*
      Dit veld is bedoeld voor validatiedoeleinden en moet niet worden gewijzigd.

      "*" geeft vereiste velden aan

      Dit veld is bedoeld voor validatiedoeleinden en moet niet worden gewijzigd.