Omschrijving

Ruime uitgebouwde eengezinswoning met luxe tuinoverkapping in Noordhove

Op een fijne locatie in de wijk Noordhove staat deze goed onderhouden eengezinswoning met een royale woonkamer, vier slaapkamers en een moderne keuken en badkamer. Dankzij de uitbouw op de begane grond is er een riante leefruimte ontstaan, terwijl de luxe tuinoverkapping met buitenkeuken achterin de tuin het buitenleven compleet maakt.
De woning is instapklaar en ideaal voor wie op zoek is naar comfort, ruimte en…

Lees meer

Kenmerken

  • Status Verkocht onder voorbehoud
  • Vraagprijs € 475.000 kosten koper Hypotheek berekenen
  • Woonoppervlakte ca. 125 m2
  • Aantal slaapkamers 4
  • Bouwjaar 1987
Meer kenmerken

Vragen of even
binnenkijken?

Neem vrijblijvend contact
op met Koen van Schooten

Meer kans maken?

Laat zien dat je financieel sterk staat!
Met een KopersPaspoort© toon je aan dat je snel kunt schakelen. Meer kans op jouw droomhuis!

Open Woningwaarde Dag

Benieuwd naar de waarde van je huis? Maak gebruik van een gratis waardebepaling tijdens onze Open Woningwaarde Dag!

Tijdens de Open Woningwaarde Dag komen we langs om binnen 20 minuten de waarde van jouw huis te bepalen.

ONLINE ZOEKSERVICE

Door een gratis zoekprofiel aan te maken krijg je voortaan ál het nieuwe huizenaanbod van álle makelaars direct in je mailbox, vaak al voordat het op Funda staat.

Ruime uitgebouwde eengezinswoning met luxe tuinoverkapping in Noordhove

Op een fijne locatie in de wijk Noordhove staat deze goed onderhouden eengezinswoning met een royale woonkamer, vier slaapkamers en een moderne keuken en badkamer. Dankzij de uitbouw op de begane grond is er een riante leefruimte ontstaan, terwijl de luxe tuinoverkapping met buitenkeuken achterin de tuin het buitenleven compleet maakt.
De woning is instapklaar en ideaal voor wie op zoek is naar comfort, ruimte en een prettige woonomgeving.

HIGHLIGHTS
+ Uitgebouwde woonkamer met vloerverwarming en schuifpui
+ Luxe overkapping met glazen schuifpanelen en buitenkeuken
+ Vier slaapkamers en ruime badkamer met ligbad

INDELING

BEGANE GROND
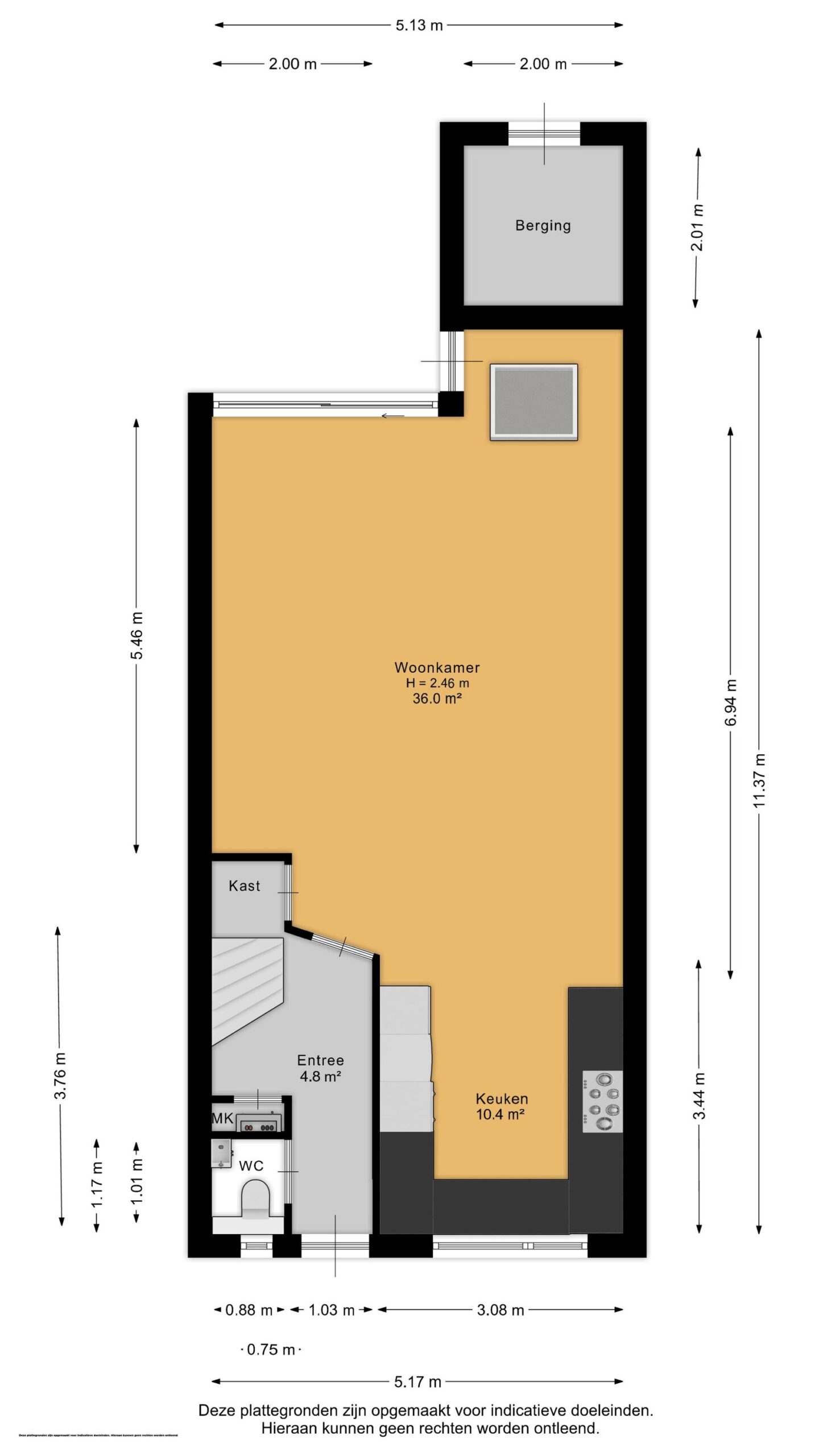
Via de voortuin bereik je de entree van de woning. In de hal bevinden zich het moderne toilet, de vernieuwde meterkast en de trap naar de verdieping. De uitgebouwde woonkamer is royaal en licht, met een lichteiken parketvloer, vloerverwarming, trapkast en een elektrisch te openen dakraam met afstandsbediening.
Via de schuifpui stap je zo de tuin in. Aan de voorzijde ligt de keuken in U?opstelling, uitgerust met een Belgisch hardstenen werkblad en diverse inbouwapparatuur.

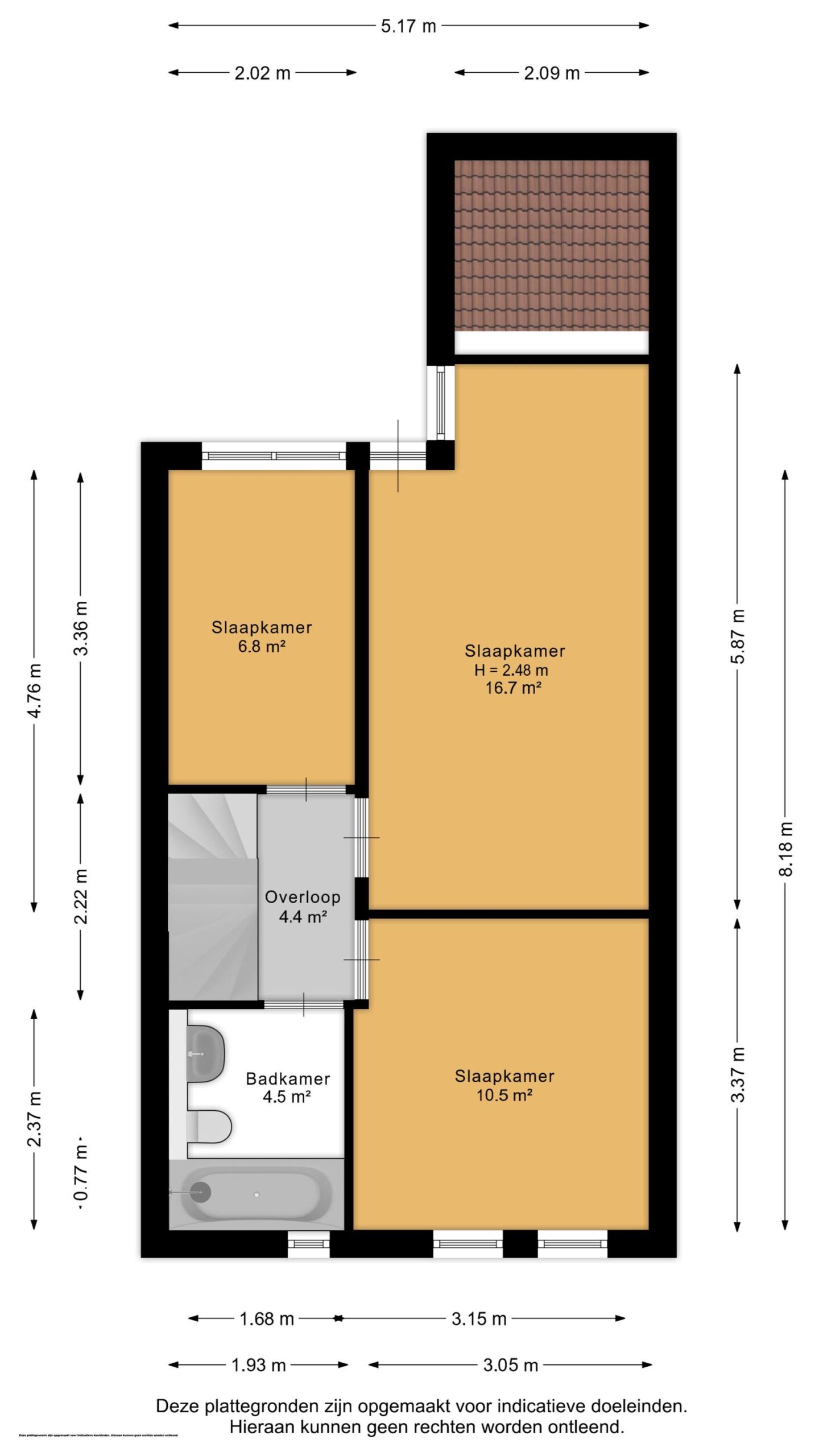
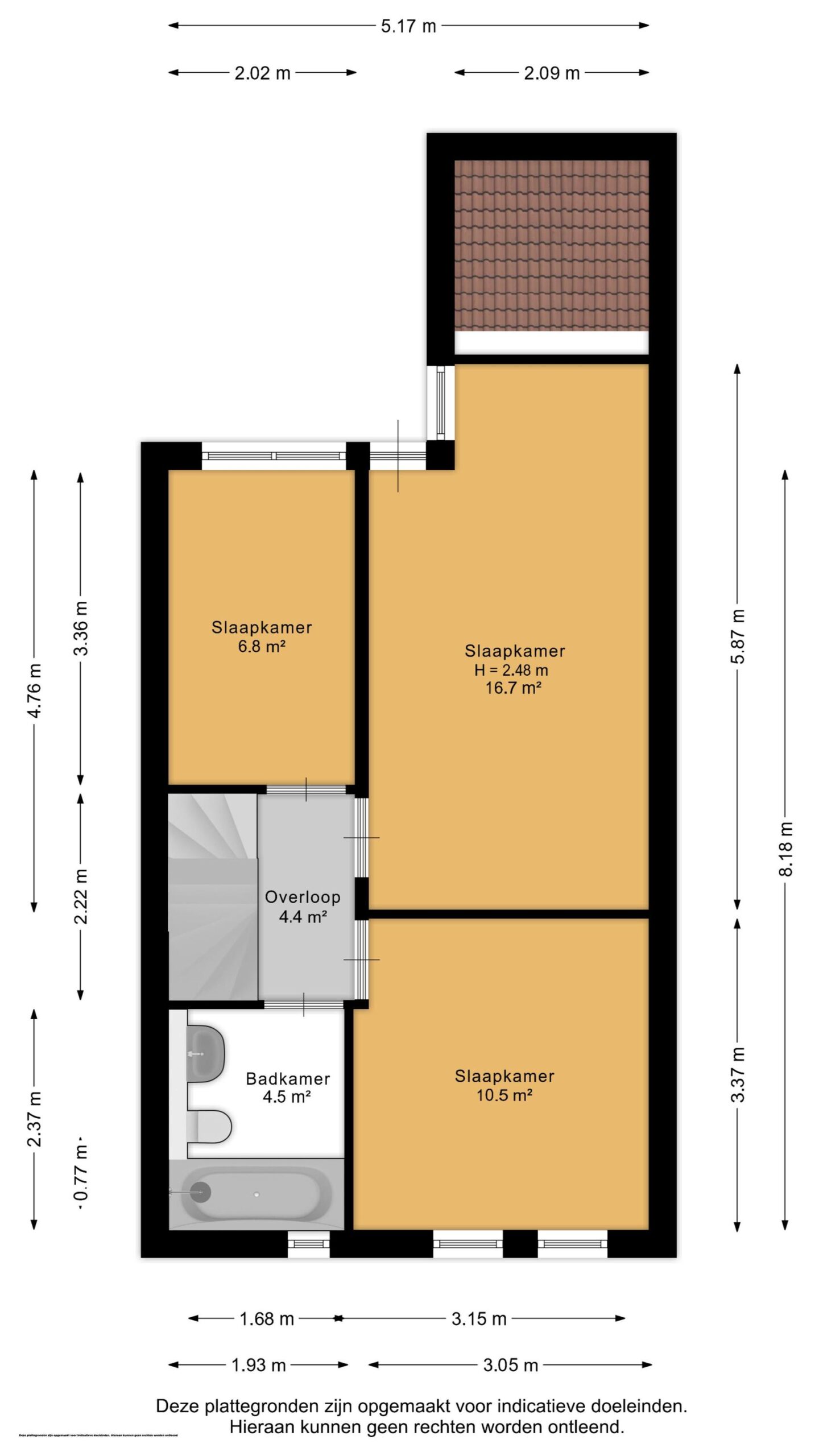
EERSTE VERDIEPING
Op de eerste verdieping bevinden zich drie slaapkamers, waarvan twee aan de achterzijde (waarvan één met toegang tot het platte dak van de uitbouw – mogelijkheid voor een balkon) en één aan de voorzijde. De badkamer is volledig betegeld en voorzien van een ligbad met douchefunctie, een toilet en een losse wastafel.

ZOLDERVERDIEPING
De voorzolder is voorzien van een dakraam met verduistering en zonwering, en biedt toegang tot een praktische bergvliering. In de afgesloten technische ruimte vind je de cv?ketel, wasmachineaansluiting en een wasbakje. De zolderkamer beschikt over een dakkapel aan de achterzijde en een dakraam aan de voorzijde, beide voorzien van zonwering en verduistering.
Achter de knieschotten is extra bergruimte beschikbaar.

BUITENRUIMTE
De achtertuin is verzorgd aangelegd met een betegeld terras, een houten berging en een border met groen. Achterin de tuin staat een luxe tuinhuis/overkapping met glazen schuifpanelen en een complete buitenkeuken, inclusief warm en koud stromend water. Een heerlijke plek om te ontspannen. De tuin is bereikbaar via een achterom.
Vrij parkeren is mogelijk direct voor de deur.

OMGEVING
Noordhove is een rustige en groene wijk met veel voorzieningen in de directe omgeving. Op loopafstand vind je scholen, speelplekken, een gezondheidscentrum en winkelcentrum. Ook recreatiegebieden zoals de Noord-Aa, de Benthuizerplas en het Bentwoud liggen vlakbij. Dankzij de ligging zijn zowel de A4 als de A12 snel bereikbaar, en ook het openbaar vervoer ligt op loopafstand.

PLUSPUNTEN
+ Energielabel B
+ Volledig geïsoleerd
+ Uitbouw met extra dakraam
+ Vernieuwde meterkast (klaar voor zonnepanelen)
+ Airconditioning op de ouderslaapkamer
+ Ruime badkamer met ligbad en tweede toilet
+ Lichteiken parketvloer & vloerverwarming op de begane grond
+ Dakramen met zonwering & verduistering
+ Luxe tuinhuis met buitenkeuken
+ Vier volwaardige slaapkamers
+ Bergvliering en veel extra bergruimte
+ Houten berging
+ Achterom aanwezig

ouderdoms-, asbest en loodclausule zijn van toepassing

OMGEVING
Benieuwd naar de omgeving? Bekijk alle voorzieningen onder het kopje ‘In de buurt’!

INTERESSE?
Dan nodigen we je uit om contact met ons op te nemen. We vertellen je graag meer over deze woning en zorgen ervoor dat je overige stukken en algemene voorwaarden verkopend makelaar digitaal via jouw persoonlijke Move account kunt bekijken.

ONZE TIP
Aankopen? Schakel jouw eigen NVM-aankoopmakelaar in! De NVM-aankoopmakelaar komt op voor jouw belang en bespaart je veel tijd, geld en zorgen. Adressen van collega NVM-aankoopmakelaars vind je op Funda.

De gegeven informatie is met zorgvuldigheid opgesteld, aan de juistheid kunnen echter geen rechten worden ontleend. Alle verstrekte informatie moet beschouwd worden als een uitnodiging tot het doen van een aanbod of om in onderhandeling te treden.

Vragen of even
binnenkijken?

Neem vrijblijvend contact
op met Koen van Schooten

Meer kans maken?

Laat zien dat je financieel sterk staat!
Met een KopersPaspoort© toon je aan dat je snel kunt schakelen. Meer kans op jouw droomhuis!

Open Woningwaarde Dag

Benieuwd naar de waarde van je huis? Maak gebruik van een gratis waardebepaling tijdens onze Open Woningwaarde Dag!

Tijdens de Open Woningwaarde Dag komen we langs om binnen 20 minuten de waarde van jouw huis te bepalen.

ONLINE ZOEKSERVICE

Door een gratis zoekprofiel aan te maken krijg je voortaan ál het nieuwe huizenaanbod van álle makelaars direct in je mailbox, vaak al voordat het op Funda staat.

Overdracht

  • Status Verkocht onder voorbehoud
  • Vraagprijs € 475.000,- kosten koper Hypotheek berekenen
  • Aanvaarding In overleg

Bouwvorm

  • Soort object Tussenwoning
  • Soort woning Eengezinswoning
  • Bouwjaar 1987
  • Soort bouw Woonhuis
  • Ligging In woonwijk

Indeling

  • Woonoppervlakte 125m2
  • Perceeloppervlakte 134m2
  • Gebouwgebonden buitenruimte 12m2
  • Inhoud 454m2
  • Aantal kamers 5 kamers
  • Aantal slaapkamers 4
  • Aantal woonlagen 3 woonlagen
  • Externe bergruimte ca. 12m2
  • Overige inpandige ruimte ca. 4m2

Energie & Installatie

  • Energielabel B
  • Isolatie Volledig geisoleerd
  • Verwarming Cv ketel
  • Warm water Cv ketel, elektrische boiler eigendom
  • C.v.-ketel type Gas
  • C.v.-ketel bouwjaar 2010
  • Energie einddatum 2035-08-27

Bergruimte

  • Schuur / berging Aangebouwd steen
  • Aantal schuren / bergingen 1

Parkeergelegenheid

  • Parkeerfaciliteiten Openbaar parkeren
  • Garage Geen garage

Dak

  • Soort dak Zadeldak

Overig

  • Onderhoud binnen Goed tot uitstekend
  • Onderhoud buiten Goed tot uitstekend
  • Permanente bewoning Ja
  • Huidig gebruik Woonruimte
  • Huidige bestemming Woonruimte

Voorzieningen

  • Voorzieningen Mechanische ventilatie, tv kabel, airconditioning, glasvezel kabel

Buitenruimte

  • Hoofdtuin Achtertuin
  • Oppervlakte hoofdtuin ca. 63m2
  • Ligging hoofdtuin Noordoost
  • Kwaliteit tuin Fraai aangelegd

Kadastrale gegevens

  • Gemeente Zegwaard
  • Sectie A
  • Eigendom Volle eigendom
  • Perceelnummer 1223
  • Perceeloppervlakte 134

Extra

Burgerlijke staat

Gehuwd
Ongehuwd
Gescheiden
Verweduwd
  • Gehuwd
  • Ongehuwd
  • Gescheiden
  • Verweduwd

Leeftijd in gemeente

0 - 15 jaar
15 - 25 jaar
25-45 jaar
45 - 65 jaar
65+ jaar
  • 0 - 15 jaar
  • 15 - 25 jaar
  • 25 - 45 jaar
  • 45 - 65 jaar
  • 65+ jaar

Gezinnen met kinderen

Met kinderen
Zonder kinderen
Alleenstaand
  • Met kinderen
  • Zonder kinderen
  • Alleenstaand

Leeftijd buurtbewoners

0 - 15 jaar
15 - 25 jaar
25-45 jaar
45 - 65 jaar
65+ jaar
  • 0 - 15 jaar
  • 15 - 25 jaar
  • 25 - 45 jaar
  • 45 - 65 jaar
  • 65+ jaar

Bewoners in de straat

Man
Vrouw
  • Man
  • Vrouw

      Documenten

      Voor alle documenten van deze woning willen we je graag doorverwijzen naar Move.nl.

      Inloggen MOVE.NL

      Aankoopmakelaar

      Hulp nodig bij de aankoop?
      Onze aankoopmakelaars helpen graag

      Aankoopmakelaar
      Dit veld is bedoeld voor validatiedoeleinden en moet niet worden gewijzigd.
      Dit veld is bedoeld voor validatiedoeleinden en moet niet worden gewijzigd.

      "*" geeft vereiste velden aan

      "*" geeft vereiste velden aan

      Dit veld is bedoeld voor validatiedoeleinden en moet niet worden gewijzigd.
      Dit veld is bedoeld voor validatiedoeleinden en moet niet worden gewijzigd.
      Ik wil graag meer informatie ontvangen over(Vereist)
      Dit veld is bedoeld voor validatiedoeleinden en moet niet worden gewijzigd.
      Dit veld is verborgen bij het bekijken van het formulier

      December 2025

      Ma Di Wo Do Vr Za Zo
      1 2 3 4 5 6 7
      8 9 10 11 12 13 14
      15 16 17 18 19 20 21
      22 23 24 25 26 27 28
      29 30 31

      6 December 2025

      8 December 2025

      9 December 2025

      10 December 2025

      11 December 2025

      12 December 2025

      13 December 2025

      15 December 2025

      16 December 2025

      17 December 2025

      18 December 2025

      19 December 2025

      20 December 2025

      22 December 2025

      23 December 2025

      24 December 2025

      25 December 2025

      26 December 2025

      27 December 2025

      29 December 2025

      30 December 2025

      31 December 2025

      De afspraak is nog niet definitief. We nemen binnenkort contact met je op om de afspraak te bevestigen.

      "*" geeft vereiste velden aan

      Dit veld is bedoeld voor validatiedoeleinden en moet niet worden gewijzigd.

      "*" geeft vereiste velden aan

      Dit veld is bedoeld voor validatiedoeleinden en moet niet worden gewijzigd.
      Waar wil je een plek voor reserveren?

      "*" geeft vereiste velden aan

      Dit veld is bedoeld voor validatiedoeleinden en moet niet worden gewijzigd.
      Geen titel

      "*" geeft vereiste velden aan

      Dit veld is bedoeld voor validatiedoeleinden en moet niet worden gewijzigd.
      Waar wil je een afspraak voor?*

      De aanmelding komt ten goede van : Lommerbaan 108, Zoetermeer

      "*" geeft vereiste velden aan

      Dit veld is bedoeld voor validatiedoeleinden en moet niet worden gewijzigd.
      Dit veld is bedoeld voor validatiedoeleinden en moet niet worden gewijzigd.
      Dit veld is verborgen bij het bekijken van het formulier
      Dit veld is verborgen bij het bekijken van het formulier

      December 2025

      Ma Di Wo Do Vr Za Zo
      1 2 3 4 5 6 7
      8 9 10 11 12 13 14
      15 16 17 18 19 20 21
      22 23 24 25 26 27 28
      29 30 31

      6 December 2025

      8 December 2025

      9 December 2025

      10 December 2025

      11 December 2025

      12 December 2025

      13 December 2025

      15 December 2025

      16 December 2025

      17 December 2025

      18 December 2025

      19 December 2025

      20 December 2025

      22 December 2025

      23 December 2025

      24 December 2025

      25 December 2025

      26 December 2025

      27 December 2025

      29 December 2025

      30 December 2025

      31 December 2025

      Dit veld is bedoeld voor validatiedoeleinden en moet niet worden gewijzigd.

      "*" geeft vereiste velden aan

      Dit veld is bedoeld voor validatiedoeleinden en moet niet worden gewijzigd.

      Adres te taxeren woning

      Soort woning
      Doel van taxatie

      Binnen welke periode moet de taxatie worden uitgevoerd?
      MM slash DD slash JJJJ
      MM slash DD slash JJJJ

      "*" geeft vereiste velden aan

      Dit veld is bedoeld voor validatiedoeleinden en moet niet worden gewijzigd.

      "*" geeft vereiste velden aan

      Dit veld is bedoeld voor validatiedoeleinden en moet niet worden gewijzigd.
      Ik heb interesse in:*

      "*" geeft vereiste velden aan

      Dit veld is bedoeld voor validatiedoeleinden en moet niet worden gewijzigd.
      Adres*

      "*" geeft vereiste velden aan

      Dit veld is bedoeld voor validatiedoeleinden en moet niet worden gewijzigd.