Omschrijving

Ruim herenhuis met unieke indeling en vrij uitzicht

Dit royale herenhuis biedt een verrassende hoeveelheid ruimte, een speelse indeling en een vrij uitzicht aan de voorzijde. Met een woonkeuken op de begane grond, een sfeervolle woonkamer met vide op de eerste verdieping en vijf kamers verdeeld over drie woonlagen heb je hier alle ruimte om te wonen, werken en ontspannen.
De diepe achtertuin met overkapping en achterom maakt het geheel compleet.

HIGHLIGHTS
+…

Lees meer

Kenmerken

  • Status Onder voorbehoud verkocht
  • Vraagprijs € 685.000 kosten koper Hypotheek berekenen
  • Woonoppervlakte ca. 166 m2
  • Aantal slaapkamers 5
  • Bouwjaar 2001
Meer kenmerken

Bewoner(s) en vrienden aan het woord

"Een fijn huis met veel ruimte aan een rustige straat. Boven geniet je vanuit de woonkamer van een vrij uitzicht over het water. We werkten allebei veel vanuit huis, en dit huis is daar ook perfect voor: een ruime werkplek op de bovenverdieping en een ideale ruimte voor een kantoor of praktijk aan huis beneden. De buurt is prettig en de buren zijn vriendelijk. Om de hoek bevindt zich een school, en je bent zo in prachtige wandel- en fietsgebieden zoals het Delftse Hout, het Westerpark en de Nieuwe Driemanspolder. Delft centrum en de Mall of the Netherlands zijn gemakkelijk bereikbaar met tram 19, die praktisch voor de deur stopt."

- Sven Spruijt

Heb je vragen of interesse?

Neem vrijblijvend contact op

Meer kans maken?

Laat zien dat je financieel sterk staat!
Met een KopersPaspoort© toon je aan dat je snel kunt schakelen. Meer kans op jouw droomhuis!

Open Woningwaarde Dag

Benieuwd naar de waarde van je huis? Maak gebruik van een gratis waardebepaling tijdens onze Open Woningwaarde Dag!

Tijdens de Open Woningwaarde Dag komen we langs om binnen 20 minuten de waarde van jouw huis te bepalen.

ONLINE ZOEKSERVICE

Door een gratis zoekprofiel aan te maken krijg je voortaan ál het nieuwe huizenaanbod van álle makelaars direct in je mailbox, vaak al voordat het op Funda staat.

Ruim herenhuis met unieke indeling en vrij uitzicht

Dit royale herenhuis biedt een verrassende hoeveelheid ruimte, een speelse indeling en een vrij uitzicht aan de voorzijde. Met een woonkeuken op de begane grond, een sfeervolle woonkamer met vide op de eerste verdieping en vijf kamers verdeeld over drie woonlagen heb je hier alle ruimte om te wonen, werken en ontspannen.
De diepe achtertuin met overkapping en achterom maakt het geheel compleet.

HIGHLIGHTS
+ Energielabel A
+ 5 ruime slaapkamers
+ Stijlvolle, moderne badkamer (2024)

INDELING

BEGANE GROND
Via de beschutte voortuin bereik je de entree van de woning. De hal is voorzien van de meterkast (8 groepen) en een separaat toilet met fonteintje. Aan de voorzijde ligt een slaapkamer die ook uitstekend te gebruiken is als werk- of kantoorruimte. Aan de achterzijde bevindt zich de ruime woonkeuken in U-opstelling, uitgerust met een inductiekookplaat, afzuigkap, combimagnetron, vaatwasser en een losstaande koel-/vriescombinatie. Via de schuifpui stap je de meer dan 15 meter diepe achtertuin in, voorzien van een overkapping, berging en achterom.

1e VERDIEPING
De overloop geeft toegang tot de woonkamer: een lichte en sfeervolle leefruimte met een centraal gelegen vide, volledig omringd door een glaswand. Dit architectonische element vormt een echte blikvanger en geeft een uniek zicht op de woonkeuken beneden.

Het glas zorgt voor een open en ruimtelijk gevoel, terwijl het de verdieping een bijzonder karakter geeft. De houten visgraat vloer met band en bies versterkt de warme uitstraling van de kamer. Aan de voorzijde bevindt zich bovendien een compact balkon en geniet je van een vrij uitzicht.

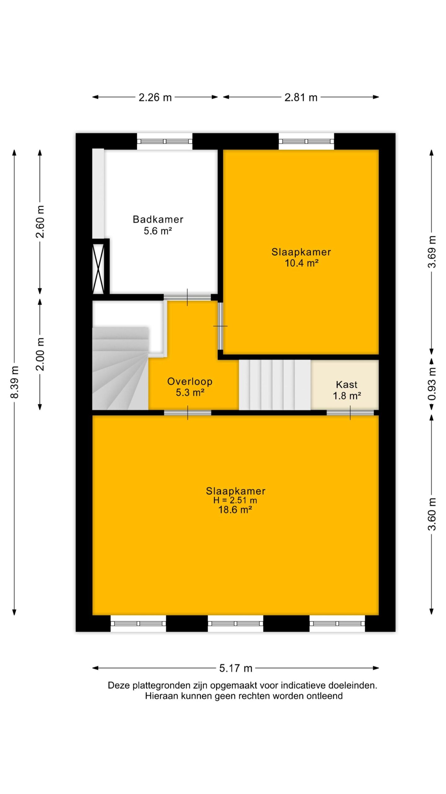
2e VERDIEPING
De ruime overloop leidt naar de masterbedroom aan de voorzijde, voorzien van een vaste kast en drie Franse balkons. Aan de achterzijde tref je de recent vernieuwde badkamer (2024) met ligbad, aparte douche, wastafelmeubel, designradiator en toilet. Daarnaast ligt hier nog een ruime slaapkamer.

3e VERDIEPING
Op deze verdieping vind je twee slaapkamers: één aan de voorzijde en één aan de achterzijde, waarbij de achterkamer is voorzien van een grote dakkapel.

OMGEVING
De woning ligt aan een brede groenstrook met waterpartij in een rustig deel van Leidschenveen. Je woont hier in een groene, overzichtelijke wijk met veel wandel- en speelruimte in de buurt. Voorzieningen zoals winkelcentra, RandstadRail, scholen en sportfaciliteiten zijn snel bereikbaar.
Ook de uitvalswegen richting Den Haag, Rotterdam en Nootdorp liggen vlakbij, waardoor dagelijkse reisbewegingen gemakkelijk verlopen.

Klinkt dit als jouw ideale thuis? Loop alvast in 3D door de woning om alle ruimtes te bekijken en maak snel een afspraak voor een bezichtiging!

PLUSPUNTEN
+ Energielabel A
+ Riant herenhuis met speelse indeling
+ Woonkeuken op de begane grond
+ In de woonkamer een houten visgraat vloer met band en bies
+ Woonkamer op de eerste verdieping met vide en uitzicht
+ Vijf slaapkamers, waaronder een kamer op de begane grond
+ Tuin op het noordwesten met overkapping en achterom
+ Nieuw geplaatste moderne badkamer met bad en douche (juni 2024)
+ Gelegen aan een brede groenstrook met waterpartij
+ Nabij RandstadRail, uitvalswegen en winkelcentra

OMGEVING
Benieuwd naar de omgeving? Bekijk alle voorzieningen onder het kopje ‘In de buurt’!

INTERESSE?
Dan nodigen we je uit om contact met ons op te nemen. We vertellen je graag meer over deze woning en zorgen ervoor dat je overige stukken en algemene voorwaarden verkopend makelaar digitaal via jouw persoonlijke Move account kunt bekijken.

ONZE TIP
Aankopen? Schakel jouw eigen NVM-aankoopmakelaar in! De NVM-aankoopmakelaar komt op voor jouw belang en bespaart je veel tijd, geld en zorgen. Adressen van collega NVM-aankoopmakelaars vind je op Funda.

De gegeven informatie is met zorgvuldigheid opgesteld, aan de juistheid kunnen echter geen rechten worden ontleend. Alle verstrekte informatie moet beschouwd worden als een uitnodiging tot het doen van een aanbod of om in onderhandeling te treden.

Heb je vragen of interesse?

Neem vrijblijvend contact op

Meer kans maken?

Laat zien dat je financieel sterk staat!
Met een KopersPaspoort© toon je aan dat je snel kunt schakelen. Meer kans op jouw droomhuis!

Open Woningwaarde Dag

Benieuwd naar de waarde van je huis? Maak gebruik van een gratis waardebepaling tijdens onze Open Woningwaarde Dag!

Tijdens de Open Woningwaarde Dag komen we langs om binnen 20 minuten de waarde van jouw huis te bepalen.

ONLINE ZOEKSERVICE

Door een gratis zoekprofiel aan te maken krijg je voortaan ál het nieuwe huizenaanbod van álle makelaars direct in je mailbox, vaak al voordat het op Funda staat.

Overdracht

  • Status Onder voorbehoud verkocht
  • Vraagprijs € 685.000,- kosten koper Hypotheek berekenen
  • Aanvaarding In overleg

Bouwvorm

  • Soort object Tussenwoning
  • Soort woning Herenhuis
  • Bouwjaar 2001
  • Soort bouw Woonhuis
  • Ligging Aan rustige weg, in woonwijk, vrij uitzicht, open ligging

Indeling

  • Woonoppervlakte 166m2
  • Perceeloppervlakte 164m2
  • Gebouwgebonden buitenruimte 10m2
  • Inhoud 585m2
  • Aantal kamers 8 kamers
  • Aantal slaapkamers 5
  • Aantal badkamers 1 badkamer
  • Badkamervoorzieningen Ligbad, toilet, dubbele wastafel, wastafelmeubel, inloopdouche
  • Aantal woonlagen 4 woonlagen
  • Externe bergruimte ca. 10m2

Energie & Installatie

  • Energielabel A
  • Isolatie Volledig geisoleerd
  • Verwarming Stadsverwarming
  • Warm water Stadsverwarming
  • Energie einddatum 2031-11-05

Bergruimte

  • Schuur / berging Vrijstaand hout
  • Aantal schuren / bergingen 1
  • Voorzieningen Voorzien van elektra

Parkeergelegenheid

  • Parkeerfaciliteiten Openbaar parkeren
  • Garage Geen garage

Dak

  • Soort dak Lessenaardak

Overig

  • Onderhoud binnen Goed
  • Onderhoud buiten Goed
  • Bijzonderheden Gedeeltelijk gestoffeerd
  • Permanente bewoning Ja
  • Huidig gebruik Woonruimte
  • Huidige bestemming Woonruimte

Voorzieningen

  • Voorzieningen Mechanische ventilatie, tv kabel, frans balkon

Buitenruimte

  • Hoofdtuin Achtertuin
  • Oppervlakte hoofdtuin ca. 85m2
  • Ligging hoofdtuin Noordwest
  • Kwaliteit tuin Normaal

Kadastrale gegevens

  • Gemeente 's-gravenhage
  • Sectie Bg
  • Eigendom Volle eigendom
  • Perceelnummer 4072
  • Perceeloppervlakte 164

Extra

Kenmerken toegevoegd door verkoper, vrienden en familie

Vrienden, familie en kennissen van de eigenaar delen hun unieke kenmerken die de Nootdorpse Landingslaan 246 het beste omschrijven.

Sven Spruijt
  • Naam
    Sven Spruijt
  • Opmerking
    Goed bereikbaar met de auto of OV
Sven Spruijt
  • Naam
    Sven Spruijt
  • Opmerking
    Prettige buren
Sven Spruijt
  • Naam
    Sven Spruijt
  • Opmerking
    Veelzijdige indeling
Sven Spruijt
  • Naam
    Sven Spruijt
  • Opmerking
    Veel ruimte
Sven Spruijt
  • Naam
    Sven Spruijt
  • Opmerking
    Kindvriendelijke buurt

Burgerlijke staat

Gehuwd
Ongehuwd
Gescheiden
Verweduwd
  • Gehuwd
  • Ongehuwd
  • Gescheiden
  • Verweduwd

Leeftijd in gemeente

0 - 15 jaar
15 - 25 jaar
25-45 jaar
45 - 65 jaar
65+ jaar
  • 0 - 15 jaar
  • 15 - 25 jaar
  • 25 - 45 jaar
  • 45 - 65 jaar
  • 65+ jaar

Gezinnen met kinderen

Met kinderen
Zonder kinderen
Alleenstaand
  • Met kinderen
  • Zonder kinderen
  • Alleenstaand

Leeftijd buurtbewoners

0 - 15 jaar
15 - 25 jaar
25-45 jaar
45 - 65 jaar
65+ jaar
  • 0 - 15 jaar
  • 15 - 25 jaar
  • 25 - 45 jaar
  • 45 - 65 jaar
  • 65+ jaar

Bewoners in de straat

Man
Vrouw
  • Man
  • Vrouw

      Documenten

      Voor alle documenten van deze woning willen we je graag doorverwijzen naar Move.nl.

      Inloggen MOVE.NL

      Aankoopmakelaar

      Hulp nodig bij de aankoop?
      Onze aankoopmakelaars helpen graag

      Aankoopmakelaar
      Dit veld is bedoeld voor validatiedoeleinden en moet niet worden gewijzigd.
      Dit veld is bedoeld voor validatiedoeleinden en moet niet worden gewijzigd.

      "*" geeft vereiste velden aan

      "*" geeft vereiste velden aan

      Dit veld is bedoeld voor validatiedoeleinden en moet niet worden gewijzigd.
      Dit veld is bedoeld voor validatiedoeleinden en moet niet worden gewijzigd.
      Ik wil graag meer informatie ontvangen over(Vereist)
      Dit veld is bedoeld voor validatiedoeleinden en moet niet worden gewijzigd.
      Dit veld is verborgen bij het bekijken van het formulier

      Maart 2026

      Ma Di Wo Do Vr Za Zo
      1
      2 3 4 5 6 7 8
      9 10 11 12 13 14 15
      16 17 18 19 20 21 22
      23 24 25 26 27 28 29
      30 31

      16 Maart 2026

      17 Maart 2026

      18 Maart 2026

      19 Maart 2026

      20 Maart 2026

      21 Maart 2026

      23 Maart 2026

      24 Maart 2026

      25 Maart 2026

      26 Maart 2026

      27 Maart 2026

      28 Maart 2026

      30 Maart 2026

      31 Maart 2026

      De afspraak is nog niet definitief. We nemen binnenkort contact met je op om de afspraak te bevestigen.

      "*" geeft vereiste velden aan

      Dit veld is bedoeld voor validatiedoeleinden en moet niet worden gewijzigd.

      "*" geeft vereiste velden aan

      Dit veld is bedoeld voor validatiedoeleinden en moet niet worden gewijzigd.
      Waar wil je een plek voor reserveren?

      "*" geeft vereiste velden aan

      Dit veld is bedoeld voor validatiedoeleinden en moet niet worden gewijzigd.
      Geen titel

      "*" geeft vereiste velden aan

      Dit veld is bedoeld voor validatiedoeleinden en moet niet worden gewijzigd.
      Waar wil je een afspraak voor?*

      De aanmelding komt ten goede van : Nootdorpse Landingslaan 246, 's-gravenhage

      "*" geeft vereiste velden aan

      Dit veld is bedoeld voor validatiedoeleinden en moet niet worden gewijzigd.
      Dit veld is bedoeld voor validatiedoeleinden en moet niet worden gewijzigd.

      Maart 2026

      Ma Di Wo Do Vr Za Zo
      1
      2 3 4 5 6 7 8
      9 10 11 12 13 14 15
      16 17 18 19 20 21 22
      23 24 25 26 27 28 29
      30 31

      16 Maart 2026

      17 Maart 2026

      18 Maart 2026

      19 Maart 2026

      20 Maart 2026

      21 Maart 2026

      23 Maart 2026

      24 Maart 2026

      25 Maart 2026

      26 Maart 2026

      27 Maart 2026

      28 Maart 2026

      30 Maart 2026

      31 Maart 2026

      Dit veld is bedoeld voor validatiedoeleinden en moet niet worden gewijzigd.

      "*" geeft vereiste velden aan

      Dit veld is bedoeld voor validatiedoeleinden en moet niet worden gewijzigd.

      Adres te taxeren woning

      Soort woning
      Doel van taxatie

      Binnen welke periode moet de taxatie worden uitgevoerd?
      MM slash DD slash JJJJ
      MM slash DD slash JJJJ

      "*" geeft vereiste velden aan

      Dit veld is bedoeld voor validatiedoeleinden en moet niet worden gewijzigd.

      "*" geeft vereiste velden aan

      Dit veld is bedoeld voor validatiedoeleinden en moet niet worden gewijzigd.
      Ik heb interesse in:*

      "*" geeft vereiste velden aan

      Dit veld is bedoeld voor validatiedoeleinden en moet niet worden gewijzigd.
      Adres*

      "*" geeft vereiste velden aan

      Dit veld is bedoeld voor validatiedoeleinden en moet niet worden gewijzigd.