Omschrijving

Instapklare eengezinswoning met vrij uitzicht en dubbele berging in hartje Vlaardingen

Aan de rand van het centrum, in een rustige en kindvriendelijke straat, staat deze sfeervolle en uitstekend onderhouden 4-kamer eengezinswoning. Je woont hier op eigen grond, met vrij uitzicht aan zowel de voor- als achterzijde, en op loopafstand van winkels, scholen, openbaar vervoer en uitvalswegen.
Dankzij de prettige indeling, drie slaapkamers, veel bergruimte en de onderhoudsvriendelijke tuin is dit een ideaal thuis voor…

Lees meer

Kenmerken

  • Status Verkocht
  • Vraagprijs € 325.000 kosten koper Hypotheek berekenen
  • Woonoppervlakte ca. 79 m2
  • Aantal slaapkamers 3
  • Bouwjaar 1904
Meer kenmerken

Bewoner(s) en vrienden aan het woord

"Wij hebben hier 45 jaar met veel plezier gewoond. Onze kinderen hebben met alle kinderen uit de buurt veel in de speeltuin achter ons huis en bij regen onder de Lijnbaan gespeeld. Als gezin hebben we warme herinneringen aan die periode. De sociale controle in deze straat/wijk is groot. Aan beide kanten hebben we fijne buren. Even een stukje geschiedenis: We huurden de woning vanaf mei 1980 van een particuliere huisbaas en hebben de woning in november 1985 gekocht. We hebben de woning een aantal keer binnen en buiten aangepast. De laatste klus was buiten in 2023. De gevel is gereinigd, en geïmpregneerd, het dubbel glas en de roosters vervangen en het houtwerk is geschilderd. Inmiddels zijn we beiden gepensioneerd en verhuizen we naar een appartement. We hopen dat de nieuwe bewoners ook veel woonplezier zullen beleven in deze fijne woning en prettige buurt."

- Pieter Droppert

Vragen of even
binnenkijken?

Neem vrijblijvend contact
op met Koen van Schooten

Meer kans maken?

Laat zien dat je financieel sterk staat!
Met een KopersPaspoort© toon je aan dat je snel kunt schakelen. Meer kans op jouw droomhuis!

Open Woningwaarde Dag

Benieuwd naar de waarde van je huis? Maak gebruik van een gratis waardebepaling tijdens onze Open Woningwaarde Dag!

Tijdens de Open Woningwaarde Dag komen we langs om binnen 20 minuten de waarde van jouw huis te bepalen.

ONLINE ZOEKSERVICE

Door een gratis zoekprofiel aan te maken krijg je voortaan ál het nieuwe huizenaanbod van álle makelaars direct in je mailbox, vaak al voordat het op Funda staat.

Instapklare eengezinswoning met vrij uitzicht en dubbele berging in hartje Vlaardingen

Aan de rand van het centrum, in een rustige en kindvriendelijke straat, staat deze sfeervolle en uitstekend onderhouden 4-kamer eengezinswoning. Je woont hier op eigen grond, met vrij uitzicht aan zowel de voor- als achterzijde, en op loopafstand van winkels, scholen, openbaar vervoer en uitvalswegen.
Dankzij de prettige indeling, drie slaapkamers, veel bergruimte en de onderhoudsvriendelijke tuin is dit een ideaal thuis voor wie comfortabel en centraal wil wonen.

HIGHLIGHTS
+ Goed onderhouden eengezinswoning met drie slaapkamers
+ Gelegen op eigen grond in een gezellige, autoluwe straat
+ Vrij uitzicht aan zowel de voor- als achterzijde
+ Centraal gelegen nabij winkels, scholen, openbaar vervoer en speeltuin

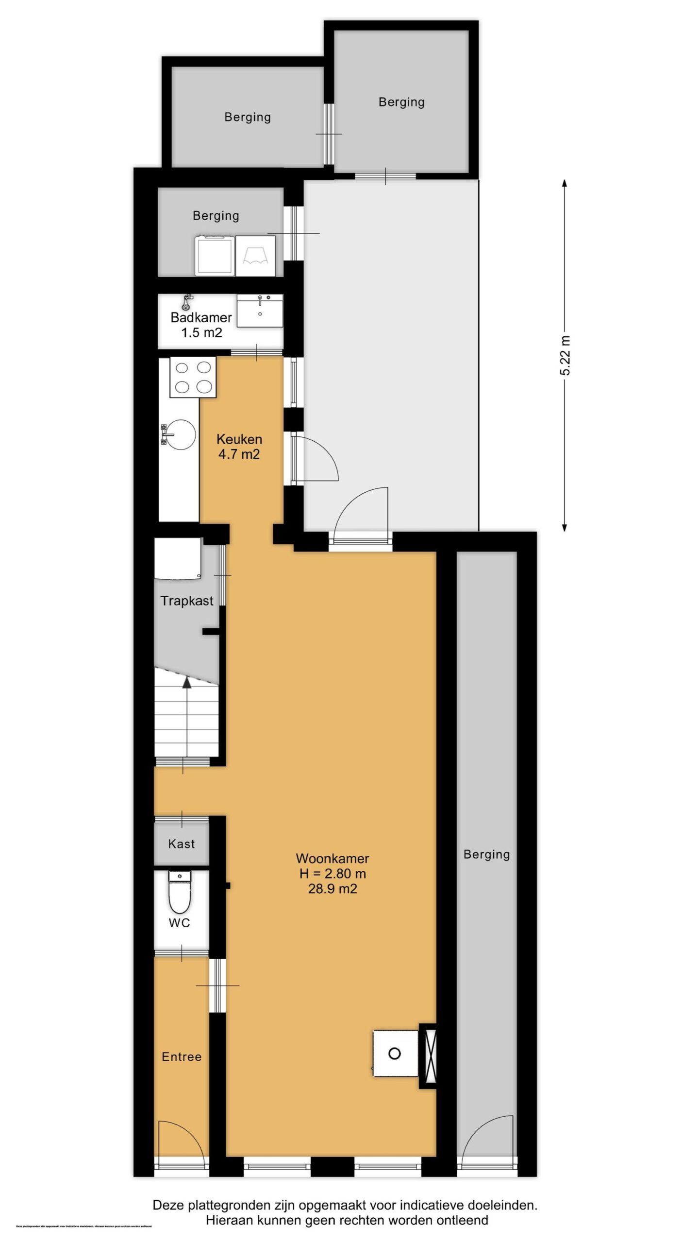
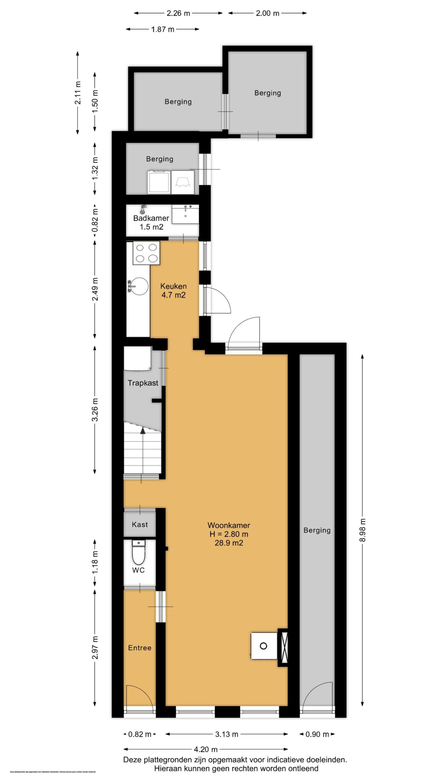
BEGANE GROND
Via de hal met plavuizenvloer en toiletruimte stap je binnen in de lichte en doorzonwoonkamer. Grote raampartijen zorgen voor een prettige lichtinval en het vrije zicht aan de voorzijde geeft een ruimtelijk gevoel. De woonkamer is voorzien van een plavuizenvloer, vaste kast, airco voor zowel koeling als verwarming en een deur naar de achtertuin.
Aansluitend vind je de functionele keuken in hoekopstelling, met toegang tot de tuin. Achter de keuken ligt de nette, volledig betegelde badkamer met douche en wastafel.

De onderhoudsvriendelijke achtertuin is gelegen op het oosten en volledig betegeld. Hier vind je een praktische kast met opstelplaats voor de badgeiser en wasmachineaansluiting en een dubbele berging achterin de tuin. Deze berging is gesplitst in twee ruimtes en biedt toegang tot de steeg en het achtergelegen speeltuintje.

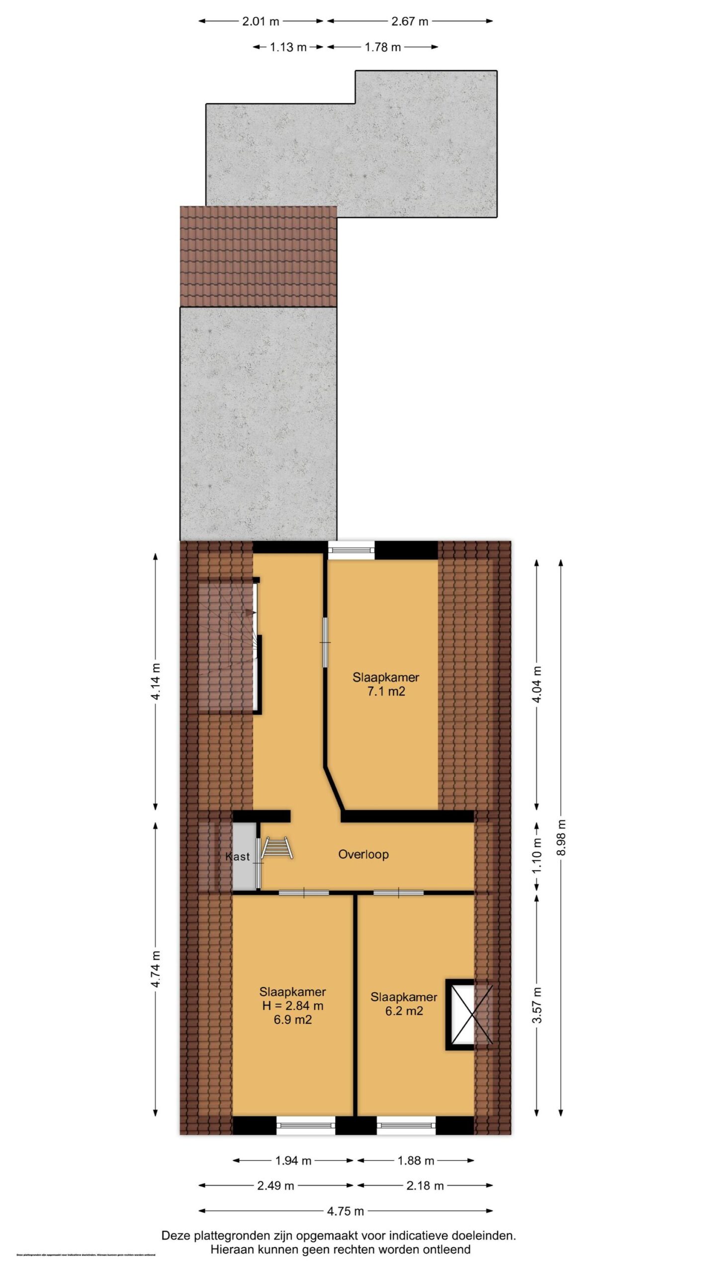
EERSTE VERDIEPING
De overloop heeft zichtbare houten spanten, wat voor een karaktervolle uitstraling zorgt. Je vindt hier drie slaapkamers: één aan de achterzijde met airco en vrij uitzicht en twee leuke kamers aan de voorzijde. Er is bergruimte onder de schuine kap en toegang tot de vliering, handig voor extra opslag. De verdieping is voorzien van elektrische verwarming.

OMGEVING
De woning ligt op een centrale locatie in Vlaardingen, met alle voorzieningen binnen handbereik. Op loopafstand vind je supermarkten, basisscholen en kinderopvang. Ook het metro-station Vlaardingen Centrum, sportverenigingen en het gezellige stadscentrum liggen vlakbij. Via de nabijgelegen uitvalswegen rijd je in korte tijd richting Rotterdam, Schiedam of het strand.

Klinkt dit als jouw ideale thuis? Loop alvast in 3D door de woning om alle ruimtes te bekijken en maak snel een afspraak voor een bezichtiging!

PLUSPUNTEN
+ Goed onderhouden eengezinswoning met drie slaapkamers
+ Airco op begane grond (koelen en verwarmen)
+ Airco op verdieping (koelen)
+ Dubbele berging in de achtertuin
+ Extra berging aan de voorzijde (voormalige steeg)
+ Begane grond met betonvloer
+ Gelegen op eigen grond in een gezellige, autoluwe straat
+ Vrijwel geheel voorzien van dubbele beglazing
+ Vrij uitzicht aan zowel de voor- als achterzijde
+ Centraal gelegen nabij winkels, scholen, openbaar vervoer en speeltuin
+ Oplevering in overleg

Ouderdoms- en asbestclausule zijn van toepassing.

OMGEVING
Benieuwd naar de omgeving? Bekijk alle voorzieningen onder het kopje ‘In de buurt’!

INTERESSE?
Dan nodigen we je uit om contact met ons op te nemen. We vertellen je graag meer over deze woning en zorgen ervoor dat je overige stukken en algemene voorwaarden verkopend makelaar digitaal via jouw persoonlijke Move account kunt bekijken.

ONZE TIP
Aankopen? Schakel jouw eigen NVM-aankoopmakelaar in! De NVM-aankoopmakelaar komt op voor jouw belang en bespaart je veel tijd, geld en zorgen. Adressen van collega NVM-aankoopmakelaars vind je op Funda.

De gegeven informatie is met zorgvuldigheid opgesteld, aan de juistheid kunnen echter geen rechten worden ontleend. Alle verstrekte informatie moet beschouwd worden als een uitnodiging tot het doen van een aanbod of om in onderhandeling te treden.

Vragen of even
binnenkijken?

Neem vrijblijvend contact
op met Koen van Schooten

Meer kans maken?

Laat zien dat je financieel sterk staat!
Met een KopersPaspoort© toon je aan dat je snel kunt schakelen. Meer kans op jouw droomhuis!

Open Woningwaarde Dag

Benieuwd naar de waarde van je huis? Maak gebruik van een gratis waardebepaling tijdens onze Open Woningwaarde Dag!

Tijdens de Open Woningwaarde Dag komen we langs om binnen 20 minuten de waarde van jouw huis te bepalen.

ONLINE ZOEKSERVICE

Door een gratis zoekprofiel aan te maken krijg je voortaan ál het nieuwe huizenaanbod van álle makelaars direct in je mailbox, vaak al voordat het op Funda staat.

Overdracht

  • Status Verkocht
  • Vraagprijs € 325.000,- kosten koper Hypotheek berekenen
  • Aanvaarding In overleg

Bouwvorm

  • Soort object Tussenwoning
  • Soort woning Eengezinswoning
  • Bouwjaar 1904
  • Soort bouw Woonhuis
  • Ligging In centrum, in woonwijk, vrij uitzicht

Indeling

  • Woonoppervlakte 79m2
  • Perceeloppervlakte 73m2
  • Gebouwgebonden buitenruimte 11m2
  • Inhoud 334m2
  • Aantal kamers 4 kamers
  • Aantal slaapkamers 3
  • Aantal woonlagen 3 woonlagen
  • Externe bergruimte ca. 11m2
  • Overige inpandige ruimte ca. 8m2

Energie & Installatie

  • Energielabel G
  • Isolatie Muurisolatie, vloerisolatie, dubbel glas
  • Verwarming Hete lucht verwarming, gaskachels, elektrische verwarming
  • Warm water Geiser eigendom
  • Energie einddatum 2035-04-28

Bergruimte

  • Schuur / berging Vrijstaand hout
  • Aantal schuren / bergingen 2

Parkeergelegenheid

  • Parkeerfaciliteiten Openbaar parkeren
  • Garage Geen garage

Overig

  • Onderhoud binnen Goed
  • Onderhoud buiten Goed
  • Permanente bewoning Ja
  • Huidig gebruik Woonruimte
  • Huidige bestemming Woonruimte

Voorzieningen

  • Voorzieningen Tv kabel, airconditioning

Buitenruimte

  • Hoofdtuin Achtertuin
  • Oppervlakte hoofdtuin ca. 9m2
  • Ligging hoofdtuin Oost
  • Kwaliteit tuin Normaal

Kadastrale gegevens

  • Gemeente Vlaardingen
  • Sectie M
  • Eigendom Volle eigendom
  • Perceelnummer 1308
  • Perceeloppervlakte 73

Extra

Kenmerken toegevoegd door verkoper, vrienden en familie

Vrienden, familie en kennissen van de eigenaar delen hun unieke kenmerken die de Prins Hendrikstraat 37 het beste omschrijven.

Anoniem
  • Naam
    Anoniem
  • Opmerking
    Gezellige restaurantjes en cafe’s op loopafstand
Anoniem
  • Naam
    Anoniem
  • Opmerking
    Dichtbij gezellige restaurantjes en cafe’s
Pieter Droppert
  • Naam
    Pieter Droppert
  • Opmerking
    Dichtbij stadscentrum
Pieter Droppert
  • Naam
    Pieter Droppert
  • Opmerking
    Dichtbij supermarkt
Pieter Droppert
  • Naam
    Pieter Droppert
  • Opmerking
    Veel opbergruimte
Pieter Droppert
  • Naam
    Pieter Droppert
  • Opmerking
    Fijne lichtinval
Pieter Droppert
  • Naam
    Pieter Droppert
  • Opmerking
    Vrij uitzicht
Pieter Droppert
  • Naam
    Pieter Droppert
  • Opmerking
    Dichtbij OV
Pieter Droppert
  • Naam
    Pieter Droppert
  • Opmerking
    Kindvriendelijke buurt
Pieter Droppert
  • Naam
    Pieter Droppert
  • Opmerking
    Groene omgeving
Pieter Droppert
  • Naam
    Pieter Droppert
  • Opmerking
    Gezellige buren

Burgerlijke staat

Gehuwd
Ongehuwd
Gescheiden
Verweduwd
  • Gehuwd
  • Ongehuwd
  • Gescheiden
  • Verweduwd

Leeftijd in gemeente

0 - 15 jaar
15 - 25 jaar
25-45 jaar
45 - 65 jaar
65+ jaar
  • 0 - 15 jaar
  • 15 - 25 jaar
  • 25 - 45 jaar
  • 45 - 65 jaar
  • 65+ jaar

Gezinnen met kinderen

Met kinderen
Zonder kinderen
Alleenstaand
  • Met kinderen
  • Zonder kinderen
  • Alleenstaand

Leeftijd buurtbewoners

0 - 15 jaar
15 - 25 jaar
25-45 jaar
45 - 65 jaar
65+ jaar
  • 0 - 15 jaar
  • 15 - 25 jaar
  • 25 - 45 jaar
  • 45 - 65 jaar
  • 65+ jaar

Bewoners in de straat

Man
Vrouw
  • Man
  • Vrouw

      Documenten

      Voor alle documenten van deze woning willen we je graag doorverwijzen naar Move.nl.

      Inloggen MOVE.NL

      Aankoopmakelaar

      Hulp nodig bij de aankoop?
      Onze aankoopmakelaars helpen graag

      Aankoopmakelaar
      Dit veld is bedoeld voor validatiedoeleinden en moet niet worden gewijzigd.
      Dit veld is bedoeld voor validatiedoeleinden en moet niet worden gewijzigd.

      "*" geeft vereiste velden aan

      "*" geeft vereiste velden aan

      Dit veld is bedoeld voor validatiedoeleinden en moet niet worden gewijzigd.
      Dit veld is bedoeld voor validatiedoeleinden en moet niet worden gewijzigd.
      Ik wil graag meer informatie ontvangen over(Vereist)
      Dit veld is bedoeld voor validatiedoeleinden en moet niet worden gewijzigd.
      Dit veld is verborgen bij het bekijken van het formulier

      Oktober 2025

      Ma Di Wo Do Vr Za Zo
      1 2 3 4 5
      6 7 8 9 10 11 12
      13 14 15 16 17 18 19
      20 21 22 23 24 25 26
      27 28 29 30 31

      21 Oktober 2025

      22 Oktober 2025

      23 Oktober 2025

      24 Oktober 2025

      25 Oktober 2025

      27 Oktober 2025

      28 Oktober 2025

      29 Oktober 2025

      30 Oktober 2025

      31 Oktober 2025

      De afspraak is nog niet definitief. We nemen binnenkort contact met je op om de afspraak te bevestigen.

      "*" geeft vereiste velden aan

      Dit veld is bedoeld voor validatiedoeleinden en moet niet worden gewijzigd.

      "*" geeft vereiste velden aan

      Dit veld is bedoeld voor validatiedoeleinden en moet niet worden gewijzigd.
      Waar wil je een plek voor reserveren?

      "*" geeft vereiste velden aan

      Dit veld is bedoeld voor validatiedoeleinden en moet niet worden gewijzigd.
      Geen titel

      "*" geeft vereiste velden aan

      Dit veld is bedoeld voor validatiedoeleinden en moet niet worden gewijzigd.
      Waar wil je een afspraak voor?*

      De aanmelding komt ten goede van : Prins Hendrikstraat 37, Vlaardingen

      "*" geeft vereiste velden aan

      Dit veld is bedoeld voor validatiedoeleinden en moet niet worden gewijzigd.
      Dit veld is bedoeld voor validatiedoeleinden en moet niet worden gewijzigd.
      Dit veld is verborgen bij het bekijken van het formulier
      Dit veld is verborgen bij het bekijken van het formulier

      Oktober 2025

      Ma Di Wo Do Vr Za Zo
      1 2 3 4 5
      6 7 8 9 10 11 12
      13 14 15 16 17 18 19
      20 21 22 23 24 25 26
      27 28 29 30 31

      21 Oktober 2025

      22 Oktober 2025

      23 Oktober 2025

      24 Oktober 2025

      25 Oktober 2025

      27 Oktober 2025

      28 Oktober 2025

      29 Oktober 2025

      30 Oktober 2025

      31 Oktober 2025

      Dit veld is bedoeld voor validatiedoeleinden en moet niet worden gewijzigd.

      "*" geeft vereiste velden aan

      Dit veld is bedoeld voor validatiedoeleinden en moet niet worden gewijzigd.

      Adres te taxeren woning

      Soort woning
      Doel van taxatie

      Binnen welke periode moet de taxatie worden uitgevoerd?
      MM slash DD slash JJJJ
      MM slash DD slash JJJJ

      "*" geeft vereiste velden aan

      Dit veld is bedoeld voor validatiedoeleinden en moet niet worden gewijzigd.

      "*" geeft vereiste velden aan

      Dit veld is bedoeld voor validatiedoeleinden en moet niet worden gewijzigd.
      Ik heb interesse in:*

      "*" geeft vereiste velden aan

      Dit veld is bedoeld voor validatiedoeleinden en moet niet worden gewijzigd.
      Adres*

      "*" geeft vereiste velden aan

      Dit veld is bedoeld voor validatiedoeleinden en moet niet worden gewijzigd.