Omschrijving

Ruim en licht wonen in Rokkeveen

Deze zonnig gesitueerde eengezinswoning in de geliefde woonwijk Rokkeveen biedt precies waar je naar zoekt: een lichte woonkamer, riante keuken en vier volwaardige slaapkamers. Met een verzorgde achtertuin op het zuidwesten en een praktische dakkapel op de verdieping is dit een woning waarin je je snel thuis voelt.

HIGHLIGHTS
+ Lichte woonkamer met veel ramen
+ Zonnige tuin op het zuidwesten
+ 4 goed bemeten slaapkamers

Lees meer

Kenmerken

  • Status Beschikbaar
  • Vraagprijs € 450.000 kosten koper Hypotheek berekenen
  • Woonoppervlakte ca. 106 m2
  • Aantal slaapkamers 4
  • Bouwjaar 1990
Meer kenmerken

Bewoner(s) en vrienden aan het woord

"Wij hebben hier met veel plezier gewoond en onze zoon is hier opgegroeid. De school zit heerlijk dichtbij en er zijn altijd kinderen in de buurt om mee te spelen. Ook zijn er diverse zijn diverse leuke speeltuintjes dichtbij. Het zwembad en de bibliotheek zijn op loopafstand te bereiken. Elke zomer wordt er een gezellig straatfeest gehouden met barbecue en met springkussen voor de kinderen. We hebben genoten van de groene tuin en het uitzicht op het park vanuit de slaapkamer. Op het straatje naast het huis hebben we onze zoon leren fietsen, sneeuwballengevechten gehouden, voetbalwedstrijden gehouden. Bij de school hebben we vaak getennist op het basketbalveld."

- Michelle Plug

Vragen of even
binnenkijken?

Neem vrijblijvend contact
op met Kerwin Pronk

Meer kans maken?

Laat zien dat je financieel sterk staat!
Met een KopersPaspoort© toon je aan dat je snel kunt schakelen. Meer kans op jouw droomhuis!

Open Woningwaarde Dag

Benieuwd naar de waarde van je huis? Maak gebruik van een gratis waardebepaling tijdens onze Open Woningwaarde Dag!

Tijdens de Open Woningwaarde Dag komen we langs om binnen 20 minuten de waarde van jouw huis te bepalen.

ONLINE ZOEKSERVICE

Door een gratis zoekprofiel aan te maken krijg je voortaan ál het nieuwe huizenaanbod van álle makelaars direct in je mailbox, vaak al voordat het op Funda staat.

Ruim en licht wonen in Rokkeveen

Deze zonnig gesitueerde eengezinswoning in de geliefde woonwijk Rokkeveen biedt precies waar je naar zoekt: een lichte woonkamer, riante keuken en vier volwaardige slaapkamers. Met een verzorgde achtertuin op het zuidwesten en een praktische dakkapel op de verdieping is dit een woning waarin je je snel thuis voelt.

HIGHLIGHTS
+ Lichte woonkamer met veel ramen
+ Zonnige tuin op het zuidwesten
+ 4 goed bemeten slaapkamers
+ Grote bergvliering

INDELING

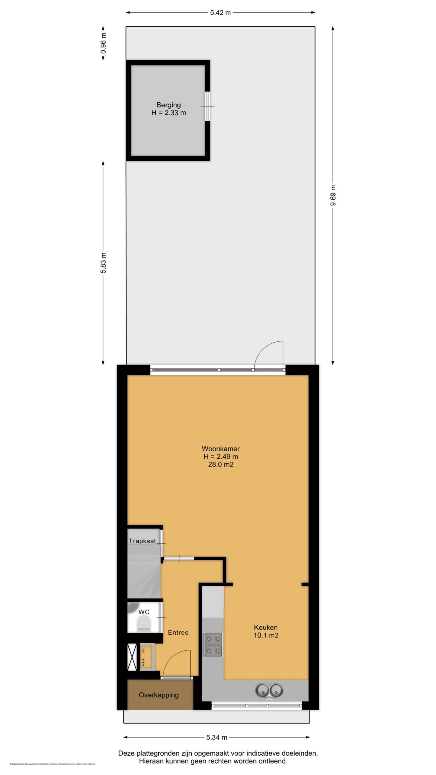
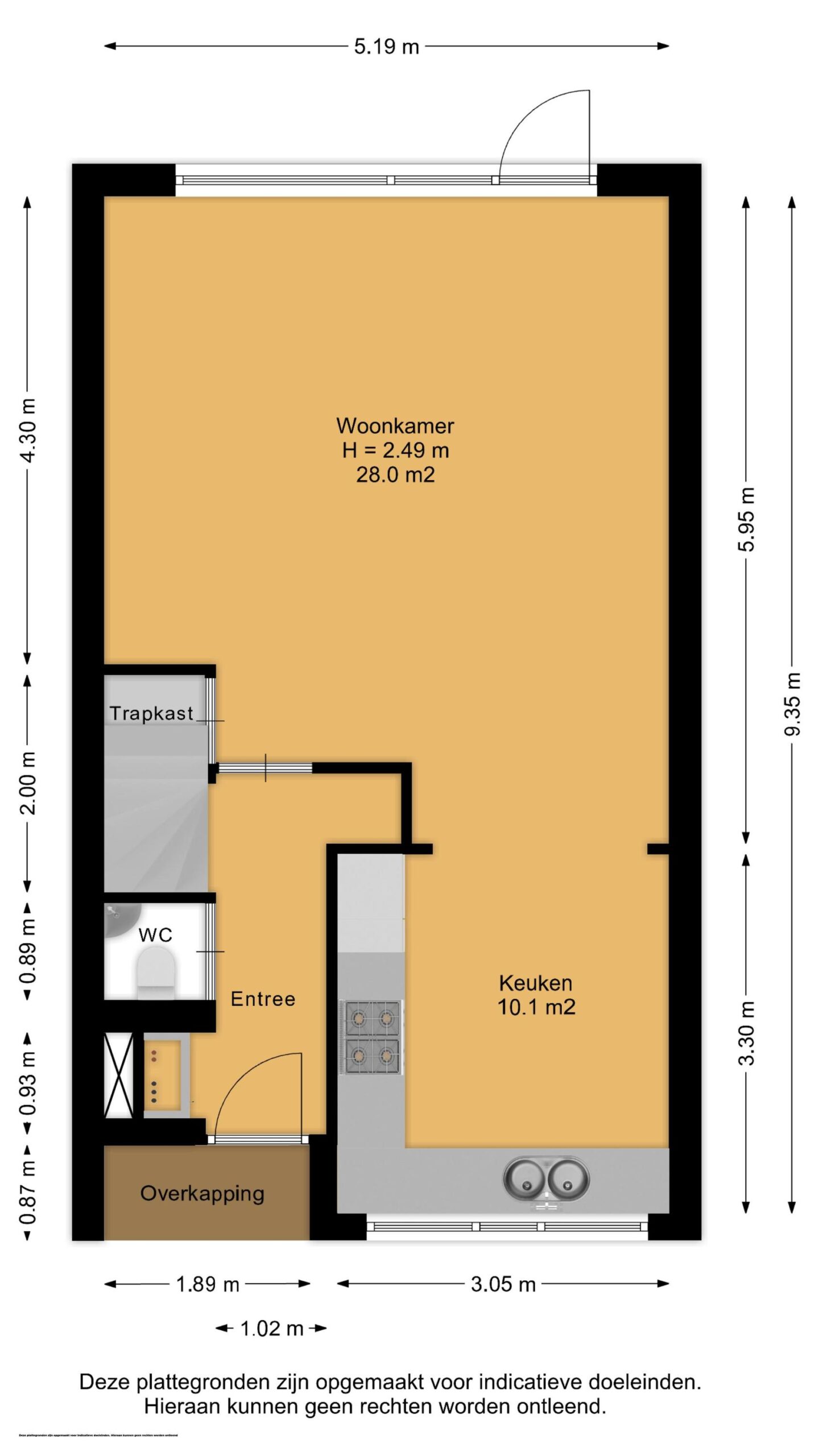
BEGANE GROND
Je komt binnen via een overdekte entree in een hal met meterkast, garderobe-nis en toilet met fonteintje. De meterkast beschikt over extra groepen naar zolder voor wasmachine, droger en eventuele zonnepanelen. De woonkamer is ruim en licht dankzij de brede ramen in de achtergevel.
Vanuit de woonkamer geeft een toog toegang tot de keuken met hoekopstelling, voorzien van inbouwapparatuur zoals een vaatwasser, koelkast, oven, magnetron en 4-pits gaskookplaat.

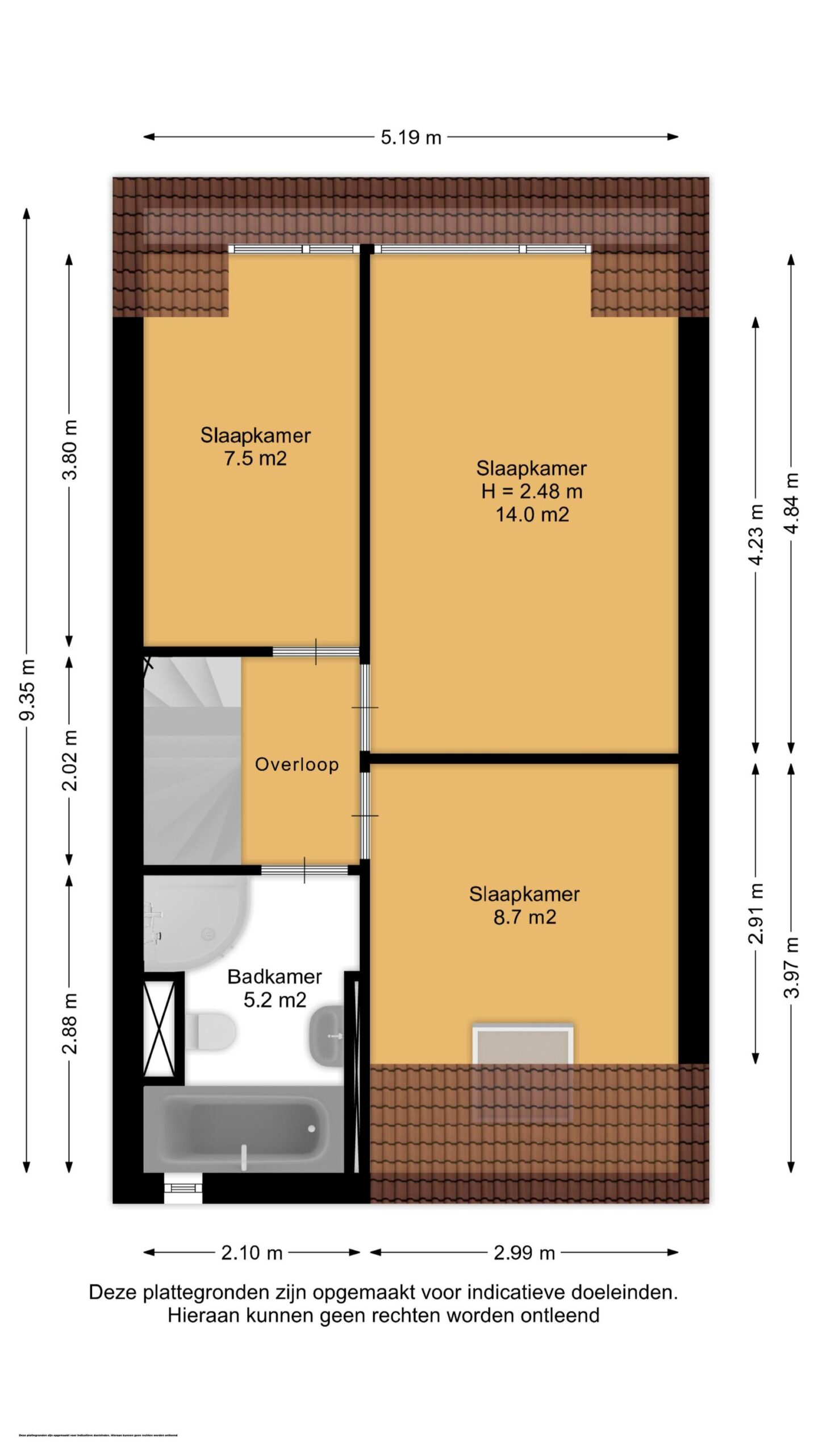
EERSTE VERDIEPING
Op de eerste verdieping vind je drie slaapkamers. Twee kamers liggen aan de achterzijde en profiteren van een brede dakkapel voorzien van aluminium rolluiken voor optimale zonwering en privacy. De hoofdslaapkamer aan de achterzijde heeft airconditioning (2024) die ook kan verwarmen. De derde kamer bevindt zich aan de voorzijde, met een Velux dakraam.
De badkamer is volledig betegeld en voorzien van een ligbad, aparte douche, hangend toilet, wandkast, wastafel en halogeenspotjes. Het sanitair is van Sphinx, de kranen van Grohe.

TWEEDE VERDIEPING
Op de overloop is de aansluiting voor de wasmachine en droger aanwezig, evenals de cv-ketel. De zolderkamer is ruim, voorzien van twee Velux dakramen en biedt extra bergruimte achter de knieschotten. Boven de zolderkamer en het trapgat zijn twee ruime vlieringen/bergruimtes aanwezig.

BUITENRUIMTE
De achtertuin ligt gunstig op het zuidwesten en is verzorgd aangelegd met terras, afstandsbedienbaar zonnescherm, een houten berging en een achterom. Heerlijk om ’s zomers te genieten van zon-momenten en buitenruimte.
OMGEVING
Deze woning staat in de rustige en populaire wijk Rokkeveen. Binnen handbereik bevinden zich het Burgemeester Hoekstrapark, scholen, winkelvoorzieningen, sportfaciliteiten en openbaar vervoer. Dankzij de gunstige ligging zijn de uitvalswegen richting Den Haag, Rotterdam en Utrecht snel bereikbaar.

Klinkt dit als jouw ideale thuis? Loop alvast in 3D door de woning om alle ruimtes te bekijken en maak snel een afspraak voor een bezichtiging!

PLUSPUNTEN
+ Energielabel B
+ Lichte woonkamer met vele ramen
+ Ruime keuken met hoekopstelling
+ Complete inbouwapparatuur
+ Hoogwaardig sanitair (Sphinx) en kranen (Grohe)
+ Vier goed bemeten slaapkamers
+ Brede dakkapel aan de achterzijde
+ Zolderkamer met twee Velux ramen
+ Verzorgde achtertuin op het zuidwesten
+ Houten berging en achterom
+ Gelegen in rustige, geliefde wijk Rokkeveen
+ Nabij park, winkels, scholen en openbaar vervoer

ouderdoms-, asbest en loodclausule zijn van toepassing

OMGEVING
Benieuwd naar de omgeving? Bekijk alle voorzieningen onder het kopje ‘In de buurt’!

INTERESSE?
Dan nodigen we je uit om contact met ons op te nemen. We vertellen je graag meer over deze woning en zorgen ervoor dat je overige stukken en algemene voorwaarden verkopend makelaar digitaal via jouw persoonlijke Move account kunt bekijken.

ONZE TIP
Aankopen? Schakel jouw eigen NVM-aankoopmakelaar in! De NVM-aankoopmakelaar komt op voor jouw belang en bespaart je veel tijd, geld en zorgen. Adressen van collega NVM-aankoopmakelaars vind je op Funda.

De gegeven informatie is met zorgvuldigheid opgesteld, aan de juistheid kunnen echter geen rechten worden ontleend. Alle verstrekte informatie moet beschouwd worden als een uitnodiging tot het doen van een aanbod of om in onderhandeling te treden.

Vragen of even
binnenkijken?

Neem vrijblijvend contact
op met Kerwin Pronk

Meer kans maken?

Laat zien dat je financieel sterk staat!
Met een KopersPaspoort© toon je aan dat je snel kunt schakelen. Meer kans op jouw droomhuis!

Open Woningwaarde Dag

Benieuwd naar de waarde van je huis? Maak gebruik van een gratis waardebepaling tijdens onze Open Woningwaarde Dag!

Tijdens de Open Woningwaarde Dag komen we langs om binnen 20 minuten de waarde van jouw huis te bepalen.

ONLINE ZOEKSERVICE

Door een gratis zoekprofiel aan te maken krijg je voortaan ál het nieuwe huizenaanbod van álle makelaars direct in je mailbox, vaak al voordat het op Funda staat.

Overdracht

  • Status Beschikbaar
  • Vraagprijs € 450.000,- kosten koper Hypotheek berekenen
  • Aanvaarding In overleg

Bouwvorm

  • Soort object Tussenwoning
  • Soort woning Eengezinswoning
  • Bouwjaar 1990
  • Soort bouw Woonhuis
  • Ligging In woonwijk

Indeling

  • Woonoppervlakte 106m2
  • Perceeloppervlakte 110m2
  • Gebouwgebonden buitenruimte 6m2
  • Inhoud 368m2
  • Aantal kamers 5 kamers
  • Aantal slaapkamers 4
  • Aantal badkamers 1 badkamer
  • Badkamervoorzieningen Ligbad, toilet, douche, wastafel
  • Aantal woonlagen 3 woonlagen
  • Externe bergruimte ca. 6m2

Energie & Installatie

  • Energielabel B
  • Isolatie Dakisolatie, muurisolatie, vloerisolatie, dubbel glas
  • Verwarming Cv ketel
  • Warm water Cv ketel
  • C.v.-ketel type Gas
  • C.v.-ketel bouwjaar 2007
  • Energie einddatum 2035-09-01

Bergruimte

  • Schuur / berging Vrijstaand hout
  • Aantal schuren / bergingen 1

Parkeergelegenheid

  • Parkeerfaciliteiten Openbaar parkeren
  • Garage Geen garage

Dak

  • Soort dak Zadeldak

Overig

  • Onderhoud binnen Goed
  • Onderhoud buiten Goed
  • Bijzonderheden Gedeeltelijk gestoffeerd
  • Permanente bewoning Ja
  • Huidig gebruik Woonhuis
  • Huidige bestemming Woonhuis

Voorzieningen

  • Voorzieningen Mechanische ventilatie, tv kabel, airconditioning, natuurlijke ventilatie

Buitenruimte

  • Hoofdtuin Achtertuin
  • Oppervlakte hoofdtuin ca. 53m2
  • Ligging hoofdtuin Zuidwest
  • Kwaliteit tuin Verzorgd

Kadastrale gegevens

  • Gemeente Zegwaard
  • Sectie C
  • Eigendom Volle eigendom
  • Perceelnummer 4660
  • Perceeloppervlakte 110

Extra

Kenmerken toegevoegd door verkoper, vrienden en familie

Vrienden, familie en kennissen van de eigenaar delen hun unieke kenmerken die de Titaanwit 47 het beste omschrijven.

Michelle Plug
  • Naam
    Michelle Plug
  • Opmerking
    Veel opbergruimte
Michelle Plug
  • Naam
    Michelle Plug
  • Opmerking
    Fijne lichtinval
Michelle Plug
  • Naam
    Michelle Plug
  • Opmerking
    Vrij uitzicht
Michelle Plug
  • Naam
    Michelle Plug
  • Opmerking
    Dichtbij OV
Michelle Plug
  • Naam
    Michelle Plug
  • Opmerking
    Voldoende parkeergelegenheid
Michelle Plug
  • Naam
    Michelle Plug
  • Opmerking
    Energiezuinig
Michelle Plug
  • Naam
    Michelle Plug
  • Opmerking
    Kindvriendelijke buurt
Michelle Plug
  • Naam
    Michelle Plug
  • Opmerking
    Groene omgeving
Michelle Plug
  • Naam
    Michelle Plug
  • Opmerking
    Zonnige tuin

Burgerlijke staat

Gehuwd
Ongehuwd
Gescheiden
Verweduwd
  • Gehuwd
  • Ongehuwd
  • Gescheiden
  • Verweduwd

Leeftijd in gemeente

0 - 15 jaar
15 - 25 jaar
25-45 jaar
45 - 65 jaar
65+ jaar
  • 0 - 15 jaar
  • 15 - 25 jaar
  • 25 - 45 jaar
  • 45 - 65 jaar
  • 65+ jaar

Gezinnen met kinderen

Met kinderen
Zonder kinderen
Alleenstaand
  • Met kinderen
  • Zonder kinderen
  • Alleenstaand

Leeftijd buurtbewoners

0 - 15 jaar
15 - 25 jaar
25-45 jaar
45 - 65 jaar
65+ jaar
  • 0 - 15 jaar
  • 15 - 25 jaar
  • 25 - 45 jaar
  • 45 - 65 jaar
  • 65+ jaar

Bewoners in de straat

Man
Vrouw
  • Man
  • Vrouw

      Documenten

      Voor alle documenten van deze woning willen we je graag doorverwijzen naar Move.nl.

      Inloggen MOVE.NL

      Aankoopmakelaar

      Hulp nodig bij de aankoop?
      Onze aankoopmakelaars helpen graag

      Aankoopmakelaar
      Dit veld is bedoeld voor validatiedoeleinden en moet niet worden gewijzigd.

      "*" geeft vereiste velden aan

      "*" geeft vereiste velden aan

      Dit veld is bedoeld voor validatiedoeleinden en moet niet worden gewijzigd.
      Ik wil graag meer informatie ontvangen over(Vereist)
      Dit veld is bedoeld voor validatiedoeleinden en moet niet worden gewijzigd.
      Dit veld is verborgen bij het bekijken van het formulier

      Oktober 2025

      Ma Di Wo Do Vr Za Zo
      1 2 3 4 5
      6 7 8 9 10 11 12
      13 14 15 16 17 18 19
      20 21 22 23 24 25 26
      27 28 29 30 31

      6 Oktober 2025

      7 Oktober 2025

      8 Oktober 2025

      9 Oktober 2025

      10 Oktober 2025

      11 Oktober 2025

      13 Oktober 2025

      14 Oktober 2025

      15 Oktober 2025

      16 Oktober 2025

      17 Oktober 2025

      18 Oktober 2025

      20 Oktober 2025

      21 Oktober 2025

      22 Oktober 2025

      23 Oktober 2025

      24 Oktober 2025

      25 Oktober 2025

      27 Oktober 2025

      28 Oktober 2025

      29 Oktober 2025

      30 Oktober 2025

      31 Oktober 2025

      De afspraak is nog niet definitief. We nemen binnenkort contact met je op om de afspraak te bevestigen.

      "*" geeft vereiste velden aan

      Dit veld is bedoeld voor validatiedoeleinden en moet niet worden gewijzigd.

      "*" geeft vereiste velden aan

      Waar wil je een plek voor reserveren?
      Dit veld is bedoeld voor validatiedoeleinden en moet niet worden gewijzigd.

      "*" geeft vereiste velden aan

      Geen titel
      Dit veld is bedoeld voor validatiedoeleinden en moet niet worden gewijzigd.

      "*" geeft vereiste velden aan

      Waar wil je een afspraak voor?*

      De aanmelding komt ten goede van : Titaanwit 47, Zoetermeer

      Dit veld is bedoeld voor validatiedoeleinden en moet niet worden gewijzigd.

      "*" geeft vereiste velden aan

      Dit veld is bedoeld voor validatiedoeleinden en moet niet worden gewijzigd.
      Dit veld is verborgen bij het bekijken van het formulier
      Dit veld is verborgen bij het bekijken van het formulier

      Oktober 2025

      Ma Di Wo Do Vr Za Zo
      1 2 3 4 5
      6 7 8 9 10 11 12
      13 14 15 16 17 18 19
      20 21 22 23 24 25 26
      27 28 29 30 31

      6 Oktober 2025

      7 Oktober 2025

      8 Oktober 2025

      9 Oktober 2025

      10 Oktober 2025

      11 Oktober 2025

      13 Oktober 2025

      14 Oktober 2025

      15 Oktober 2025

      16 Oktober 2025

      17 Oktober 2025

      18 Oktober 2025

      20 Oktober 2025

      21 Oktober 2025

      22 Oktober 2025

      23 Oktober 2025

      24 Oktober 2025

      25 Oktober 2025

      27 Oktober 2025

      28 Oktober 2025

      29 Oktober 2025

      30 Oktober 2025

      31 Oktober 2025

      Dit veld is bedoeld voor validatiedoeleinden en moet niet worden gewijzigd.

      "*" geeft vereiste velden aan

      Adres te taxeren woning

      Soort woning
      Doel van taxatie

      Binnen welke periode moet de taxatie worden uitgevoerd?
      MM slash DD slash JJJJ
      MM slash DD slash JJJJ
      Dit veld is bedoeld voor validatiedoeleinden en moet niet worden gewijzigd.

      "*" geeft vereiste velden aan

      Dit veld is bedoeld voor validatiedoeleinden en moet niet worden gewijzigd.

      "*" geeft vereiste velden aan

      Ik heb interesse in:*
      Dit veld is bedoeld voor validatiedoeleinden en moet niet worden gewijzigd.

      "*" geeft vereiste velden aan

      Adres*
      Dit veld is bedoeld voor validatiedoeleinden en moet niet worden gewijzigd.

      "*" geeft vereiste velden aan

      Dit veld is bedoeld voor validatiedoeleinden en moet niet worden gewijzigd.