Omschrijving

Levensloopbestendige patiobungalow met label A

Deze instapklare patiobungalow combineert comfort, duurzaamheid en verrassend veel ruimte. De lichte woonkamer met gietvloer, vloerverwarming en een indrukwekkende lichtstraat vormt het hart van de woning. Op de begane grond beschik je over een royale master bedroom met mogelijkheid voor een aangrenzende badkamer, ideaal voor wie gelijkvloers wil wonen.
De moderne woonkeuken met uitzicht op de zonnige patio aan de voorzijde maakt het plaatje compleet. Met in totaal vier…

Lees meer

Kenmerken

  • Status Verkocht
  • Vraagprijs € 475.000 kosten koper Hypotheek berekenen
  • Woonoppervlakte ca. 121 m2
  • Aantal slaapkamers 4
  • Bouwjaar 1999
Meer kenmerken

Vragen of even
binnenkijken?

Neem vrijblijvend contact
op met Ferdi Bennemeer

Meer kans maken?

Laat zien dat je financieel sterk staat!
Met een KopersPaspoort© toon je aan dat je snel kunt schakelen. Meer kans op jouw droomhuis!

Open Woningwaarde Dag

Benieuwd naar de waarde van je huis? Maak gebruik van een gratis waardebepaling tijdens onze Open Woningwaarde Dag!

Tijdens de Open Woningwaarde Dag komen we langs om binnen 20 minuten de waarde van jouw huis te bepalen.

ONLINE ZOEKSERVICE

Door een gratis zoekprofiel aan te maken krijg je voortaan ál het nieuwe huizenaanbod van álle makelaars direct in je mailbox, vaak al voordat het op Funda staat.

Levensloopbestendige patiobungalow met label A

Deze instapklare patiobungalow combineert comfort, duurzaamheid en verrassend veel ruimte. De lichte woonkamer met gietvloer, vloerverwarming en een indrukwekkende lichtstraat vormt het hart van de woning. Op de begane grond beschik je over een royale master bedroom met mogelijkheid voor een aangrenzende badkamer, ideaal voor wie gelijkvloers wil wonen.
De moderne woonkeuken met uitzicht op de zonnige patio aan de voorzijde maakt het plaatje compleet. Met in totaal vier slaapkamers, twee fijne patio’s en energielabel A woon je hier duurzaam en zorgeloos in een hofje in Meerzicht-West.

HIGHLIGHTS
+ Patiobungalow met master bedroom op de begane grond
+ Gelegen in een sfeervol hofje van levensloopbestendige woningen in Meerzicht-West
+ Instapklaar en duurzaam wonen met energielabel A

BEGANE GROND
Je komt binnen in een ruime hal met de meterkast (gemoderniseerd, met 6 groepen en een dubbele groep voor de kookplaat), het toilet en de trap naar boven. De lichte woonkamer heeft een indrukwekkende lichtstraat en is afgewerkt met een strakke grijze gietvloer voorzien van vloerverwarming en isolatie. Deze ruimte voelt ruim en sfeervol aan, mede dankzij de neutrale kleurstelling en de fraaie lichtinval.
Aan de voorzijde ligt de royale woonkeuken met uitzicht op de patio. De keuken is modern vormgegeven en voorzien van hoogwaardige inbouwapparatuur. Zwarte details zoals de kraan, handgrepen en de RVS spoelbak geven de keuken een eigentijdse uitstraling.

De ruime master bedroom bevindt zich aan de achterzijde en biedt toegang tot de patio. Direct naast deze kamer is de ruime voormalige badkamer met bestaande aansluitingen zodat hij weer gemakkelijk in gebruik te nemen is en je volledig gelijkvloers kunt wonen. Verder is er een inpandige berging met plek voor de wasmachine en de technische installaties.

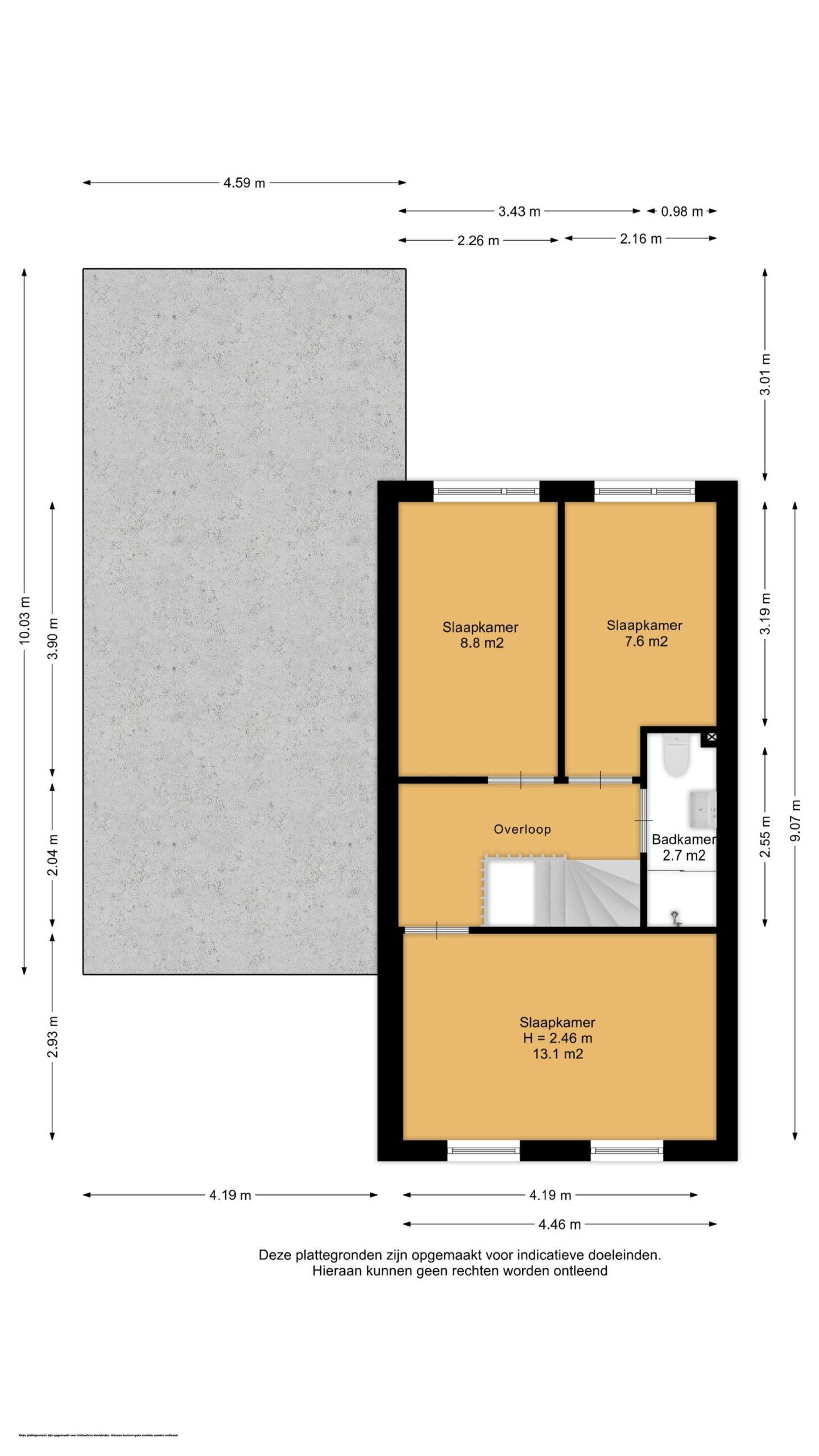
1e VERDIEPING
Deze verdieping is voorzien van 3 slaapkamers: één ruime aan de voorzijde en nog 2 aan de achterzijde. In het midden van deze verdieping is vanaf de ruime overloop de praktisch ingedeelde badkamer te vinden met toilet, wastafelmeubel en inloopdouche.

BUITENRUIMTE
De patio aan de voorzijde ligt op het zuiden en is bereikbaar via een schuifpui in de woonkeuken. Hierdoor verbind je binnen en buiten moeiteloos met elkaar. Aan de achterzijde bevindt zich nog een tweede patio met achterom. Beide buitenruimtes bieden veel privacy en zijn onderhoudsvriendelijk ingericht.

OMGEVING
De woning ligt in een rustige en groene woonomgeving in de wijk Meerzicht-West. Op loopafstand bevindt zich het uitgestrekte Westerpark, waar je heerlijk kunt wandelen, hardlopen of ontspannen in de natuur. Ook de nabijgelegen golfbaan en sportvelden bieden volop mogelijkheden voor recreatie in de buitenlucht.
Voor dagelijkse boodschappen en andere voorzieningen is Winkelcentrum Meerzicht vlakbij: een overdekt winkelcentrum met supermarkten, speciaalzaken en horeca. In de directe omgeving vind je meerdere basisscholen, kinderopvanglocaties en speelplekken, waardoor dit ook een fijne plek is voor gezinnen.
Station Meerzicht (RandstadRail) ligt op korte afstand en zorgt voor een snelle verbinding met onder andere Den Haag en Rotterdam. Daarnaast ben je via de nabijgelegen uitvalswegen A12 en A4 zo onderweg richting andere steden. Zo woon je hier rustig, groen en ruim, met alle gemakken binnen handbereik.

Klinkt dit als jouw ideale thuis? Loop alvast in 3D door de woning om alle ruimtes te bekijken en maak snel een afspraak voor een bezichtiging!

PLUSPUNTEN
+ Energielabel A
+ Instapklaar
+ Patiobungalow
+ Slapen op de begane grond
+ Royale lichte woonkeuken
+ Lichte woonkamer met lichtstraat
+ Gietvloer en vloerverwarming door de hele woning
+ Voorzien van 10 zonnepanelen (huur)
+ Voorzien van 4 slaapkamers
+ 2 patio's om te genieten van de ochtend- en middagzon voor en achter
+ Gelegen in een sfeervol hofje van levensloopbestendige woningen in Meerzicht-West
+ Westerpark, Golfbaan en diverse basisscholen nabij gelegen

BIJZONDERHEDEN
> Bijdrage mandelig terrein ca. € 15,- per maand

Ouderdomsclausule van toepassing

OMGEVING
Benieuwd naar de omgeving? Bekijk alle voorzieningen onder het kopje ‘In de buurt’!

INTERESSE?
Dan nodigen we je uit om contact met ons op te nemen. We vertellen je graag meer over deze woning en zorgen ervoor dat je overige stukken en algemene voorwaarden verkopend makelaar digitaal via jouw persoonlijke Move account kunt bekijken.

ONZE TIP
Aankopen? Schakel jouw eigen NVM-aankoopmakelaar in! De NVM-aankoopmakelaar komt op voor jouw belang en bespaart je veel tijd, geld en zorgen. Adressen van collega NVM-aankoopmakelaars vind je op Funda.

De gegeven informatie is met zorgvuldigheid opgesteld, aan de juistheid kunnen echter geen rechten worden ontleend. Alle verstrekte informatie moet beschouwd worden als een uitnodiging tot het doen van een aanbod of om in onderhandeling te treden.

Vragen of even
binnenkijken?

Neem vrijblijvend contact
op met Ferdi Bennemeer

Meer kans maken?

Laat zien dat je financieel sterk staat!
Met een KopersPaspoort© toon je aan dat je snel kunt schakelen. Meer kans op jouw droomhuis!

Open Woningwaarde Dag

Benieuwd naar de waarde van je huis? Maak gebruik van een gratis waardebepaling tijdens onze Open Woningwaarde Dag!

Tijdens de Open Woningwaarde Dag komen we langs om binnen 20 minuten de waarde van jouw huis te bepalen.

ONLINE ZOEKSERVICE

Door een gratis zoekprofiel aan te maken krijg je voortaan ál het nieuwe huizenaanbod van álle makelaars direct in je mailbox, vaak al voordat het op Funda staat.

Overdracht

  • Status Verkocht
  • Vraagprijs € 475.000,- kosten koper Hypotheek berekenen
  • Aanvaarding In overleg

Bouwvorm

  • Soort object Tussenwoning
  • Soort woning Bungalow
  • Bouwjaar 1999
  • Soort bouw Woonhuis
  • Ligging Aan rustige weg, in woonwijk

Indeling

  • Woonoppervlakte 121m2
  • Perceeloppervlakte 118m2
  • Inhoud 459m2
  • Aantal kamers 5 kamers
  • Aantal slaapkamers 4
  • Aantal badkamers 1 badkamer
  • Badkamervoorzieningen Toilet, wastafelmeubel, inloopdouche
  • Aantal woonlagen 2 woonlagen

Energie & Installatie

  • Energielabel A
  • Isolatie Dakisolatie, muurisolatie, vloerisolatie, dubbel glas
  • Verwarming Cv ketel, vloerverwarming geheel
  • Warm water Cv ketel
  • C.v.-ketel type Gas
  • C.v.-ketel bouwjaar 2024
  • Energie einddatum 2035-06-25

Bergruimte

  • Schuur / berging Inpandig
  • Aantal schuren / bergingen 1
  • Voorzieningen Voorzien van elektra

Parkeergelegenheid

  • Parkeerfaciliteiten Openbaar parkeren
  • Garage Geen garage

Dak

  • Soort dak Plat dak

Overig

  • Onderhoud binnen Goed
  • Onderhoud buiten Goed
  • Bijzonderheden Gedeeltelijk gestoffeerd, toegankelijk voor ouderen, toegankelijk voor minder validen
  • Permanente bewoning Ja
  • Huidig gebruik Woonruimte
  • Huidige bestemming Woonruimte

Voorzieningen

  • Voorzieningen Mechanische ventilatie, tv kabel, schuifpui, zonnepanelen

Buitenruimte

  • Hoofdtuin Voortuin
  • Oppervlakte hoofdtuin ca. 13m2
  • Ligging hoofdtuin Zuid
  • Kwaliteit tuin Verzorgd

Kadastrale gegevens

  • Gemeente Zoetermeer
  • Sectie F
  • Eigendom Volle eigendom
  • Perceelnummer 1374
  • Perceeloppervlakte 118

Extra

Burgerlijke staat

Gehuwd
Ongehuwd
Gescheiden
Verweduwd
  • Gehuwd
  • Ongehuwd
  • Gescheiden
  • Verweduwd

Leeftijd in gemeente

0 - 15 jaar
15 - 25 jaar
25-45 jaar
45 - 65 jaar
65+ jaar
  • 0 - 15 jaar
  • 15 - 25 jaar
  • 25 - 45 jaar
  • 45 - 65 jaar
  • 65+ jaar

Gezinnen met kinderen

Met kinderen
Zonder kinderen
Alleenstaand
  • Met kinderen
  • Zonder kinderen
  • Alleenstaand

Leeftijd buurtbewoners

0 - 15 jaar
15 - 25 jaar
25-45 jaar
45 - 65 jaar
65+ jaar
  • 0 - 15 jaar
  • 15 - 25 jaar
  • 25 - 45 jaar
  • 45 - 65 jaar
  • 65+ jaar

Bewoners in de straat

Man
Vrouw
  • Man
  • Vrouw

      Documenten

      Voor alle documenten van deze woning willen we je graag doorverwijzen naar Move.nl.

      Inloggen MOVE.NL

      Aankoopmakelaar

      Hulp nodig bij de aankoop?
      Onze aankoopmakelaars helpen graag

      Aankoopmakelaar
      Dit veld is bedoeld voor validatiedoeleinden en moet niet worden gewijzigd.
      Dit veld is bedoeld voor validatiedoeleinden en moet niet worden gewijzigd.

      "*" geeft vereiste velden aan

      "*" geeft vereiste velden aan

      Dit veld is bedoeld voor validatiedoeleinden en moet niet worden gewijzigd.
      Dit veld is bedoeld voor validatiedoeleinden en moet niet worden gewijzigd.
      Ik wil graag meer informatie ontvangen over(Vereist)
      Dit veld is bedoeld voor validatiedoeleinden en moet niet worden gewijzigd.
      Dit veld is verborgen bij het bekijken van het formulier

      Oktober 2025

      Ma Di Wo Do Vr Za Zo
      1 2 3 4 5
      6 7 8 9 10 11 12
      13 14 15 16 17 18 19
      20 21 22 23 24 25 26
      27 28 29 30 31

      20 Oktober 2025

      21 Oktober 2025

      22 Oktober 2025

      23 Oktober 2025

      24 Oktober 2025

      25 Oktober 2025

      27 Oktober 2025

      28 Oktober 2025

      29 Oktober 2025

      30 Oktober 2025

      31 Oktober 2025

      De afspraak is nog niet definitief. We nemen binnenkort contact met je op om de afspraak te bevestigen.

      "*" geeft vereiste velden aan

      Dit veld is bedoeld voor validatiedoeleinden en moet niet worden gewijzigd.

      "*" geeft vereiste velden aan

      Dit veld is bedoeld voor validatiedoeleinden en moet niet worden gewijzigd.
      Waar wil je een plek voor reserveren?

      "*" geeft vereiste velden aan

      Dit veld is bedoeld voor validatiedoeleinden en moet niet worden gewijzigd.
      Geen titel

      "*" geeft vereiste velden aan

      Dit veld is bedoeld voor validatiedoeleinden en moet niet worden gewijzigd.
      Waar wil je een afspraak voor?*

      De aanmelding komt ten goede van : Toverberg 25, Zoetermeer

      "*" geeft vereiste velden aan

      Dit veld is bedoeld voor validatiedoeleinden en moet niet worden gewijzigd.
      Dit veld is bedoeld voor validatiedoeleinden en moet niet worden gewijzigd.
      Dit veld is verborgen bij het bekijken van het formulier
      Dit veld is verborgen bij het bekijken van het formulier

      Oktober 2025

      Ma Di Wo Do Vr Za Zo
      1 2 3 4 5
      6 7 8 9 10 11 12
      13 14 15 16 17 18 19
      20 21 22 23 24 25 26
      27 28 29 30 31

      20 Oktober 2025

      21 Oktober 2025

      22 Oktober 2025

      23 Oktober 2025

      24 Oktober 2025

      25 Oktober 2025

      27 Oktober 2025

      28 Oktober 2025

      29 Oktober 2025

      30 Oktober 2025

      31 Oktober 2025

      Dit veld is bedoeld voor validatiedoeleinden en moet niet worden gewijzigd.

      "*" geeft vereiste velden aan

      Dit veld is bedoeld voor validatiedoeleinden en moet niet worden gewijzigd.

      Adres te taxeren woning

      Soort woning
      Doel van taxatie

      Binnen welke periode moet de taxatie worden uitgevoerd?
      MM slash DD slash JJJJ
      MM slash DD slash JJJJ

      "*" geeft vereiste velden aan

      Dit veld is bedoeld voor validatiedoeleinden en moet niet worden gewijzigd.

      "*" geeft vereiste velden aan

      Dit veld is bedoeld voor validatiedoeleinden en moet niet worden gewijzigd.
      Ik heb interesse in:*

      "*" geeft vereiste velden aan

      Dit veld is bedoeld voor validatiedoeleinden en moet niet worden gewijzigd.
      Adres*

      "*" geeft vereiste velden aan

      Dit veld is bedoeld voor validatiedoeleinden en moet niet worden gewijzigd.