Omschrijving

Royale en moderne twee-onder-een-kapwoning op een prachtige plek in Park Triangel

Aan de Tuinbouwweg 40 in Waddinxveen staat deze hoogwaardige geschakelde twee-onder-een-kapwoning uit 2019. Een woning die uitblinkt in comfort, duurzaamheid en ruimte, met energielabel A++, 24 zonnepanelen, een royale uitbouw, vijf slaapkamers en een brede achtertuin op het zuidoosten.
De afwerking is verzorgd, modern en instapklaar, terwijl de ligging aan het water en de stijlvolle indeling binnen zorgen voor een bijzonder fijne woonbeleving.…

Lees meer

Kenmerken

  • Status Beschikbaar
  • Vraagprijs € 875.000 kosten koper Hypotheek berekenen
  • Woonoppervlakte ca. 172 m2
  • Aantal slaapkamers 5
  • Bouwjaar 2019
Meer kenmerken

Vragen of even
binnenkijken?

Neem vrijblijvend contact
op met Ferdi Bennemeer

Meer kans maken?

Laat zien dat je financieel sterk staat!
Met een KopersPaspoort© toon je aan dat je snel kunt schakelen. Meer kans op jouw droomhuis!

Open Woningwaarde Dag

Benieuwd naar de waarde van je huis? Maak gebruik van een gratis waardebepaling tijdens onze Open Woningwaarde Dag!

Tijdens de Open Woningwaarde Dag komen we langs om binnen 20 minuten de waarde van jouw huis te bepalen.

ONLINE ZOEKSERVICE

Door een gratis zoekprofiel aan te maken krijg je voortaan ál het nieuwe huizenaanbod van álle makelaars direct in je mailbox, vaak al voordat het op Funda staat.

Royale en moderne twee-onder-een-kapwoning op een prachtige plek in Park Triangel

Aan de Tuinbouwweg 40 in Waddinxveen staat deze hoogwaardige geschakelde twee-onder-een-kapwoning uit 2019. Een woning die uitblinkt in comfort, duurzaamheid en ruimte, met energielabel A++, 24 zonnepanelen, een royale uitbouw, vijf slaapkamers en een brede achtertuin op het zuidoosten.
De afwerking is verzorgd, modern en instapklaar, terwijl de ligging aan het water en de stijlvolle indeling binnen zorgen voor een bijzonder fijne woonbeleving. Een ideale plek voor wie comfortabel, royaal en toekomstbestendig wil wonen.

HIGHLIGHTS
+ Energielabel A++
+ Royale uitbouw van 2,8 meter over de volledige breedte
+ Brede achtertuin op het zuidoosten (ca. 9,6 m breed)

BEGANE GROND
Via de zij-entree kom je binnen in de ruime hal met hexagon tegels. Hier bevindt zich een modern en neutraal toilet (2019), meterkast en trapkast. De royale, uitgebouwde woonkamer voelt direct ruim en stijlvol aan dankzij de smaakvolle tegelvloer.

De woonkamer en het atelier aan de achterzijde worden gescheiden door elegante glazen naar twee kanten openslaande glazen deuren van staal, die een mooie balans creëren tussen openheid en functionaliteit. Het atelier is een veelzijdige ruimte die zich uitstekend leent voor thuiswerken, een hobby, studie of tuinkamer. Twee schuifpuien zorgen voor een prachtige lichtinval en een directe verbinding met de zonnige achtertuin. De woning heeft alle voorbereidingen getroffen voor een eigen home-cinema opstelling.

Aan de voorzijde bevindt zich de smaakvolle open keuken. De houten look van de keukenkasten geeft warmte en karakter, terwijl het betonnen werkblad en de hoogwaardige apparatuur – elektrisch fornuis met oven, Smeg-afzuigkap, wijnkoelkast, vaatwasser en Quooker – het geheel compleet maken. De keuken beschikt over een dubbele RVS-spoelbak.

De geïsoleerde berging aan de voorzijde is voorzien van elektra en extra isolatie (PIR 2024) – ideaal voor opslag of werkruimte. De berging heeft een eigen vliering voor extra opbergruimte.

EERSTE VERDIEPING
Op deze verdieping bevinden zich drie ruime slaapkamers, allemaal voorzien van vloerverwarming. De moderne badkamer beschikt over een dubbele inloop(regen)douche, een stijlvol wastafelmeubel met twee wasbakken en een toilet. De afwerking is strak, modern en uitstekend onderhouden.

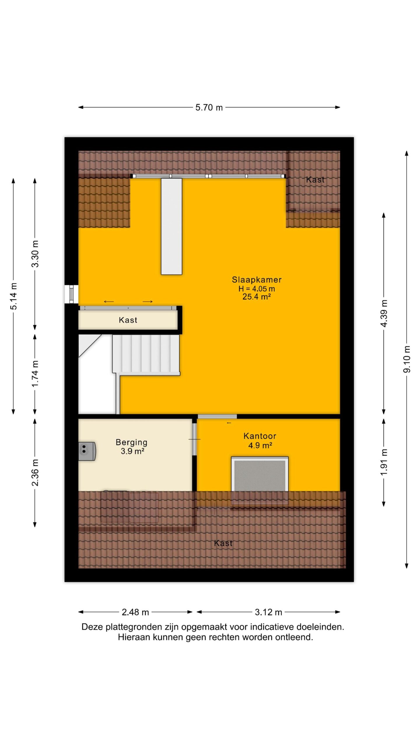
TWEEDE VERDIEPING
Een verrassend ruime verdieping met een heerlijke master bedroom, voorzien van een dakkapel (2021) met elektrisch bedienbaar rolluik, horren en screens. In de dakkapel is een gezellig zitje gecreëerd met daaronder een ruime dekenkist; een prettige plek om even tot rust te komen.

De inloopkast voelt licht en ruim aan en is fraai afgewerkt. Vanuit de master is tevens de open bergvliering bereikbaar.
De tweede slaapkamer op deze etage is in gebruik als kantoor en beschikt over een onderhoudsvrij dakraam (2019) en bergruimte achter de knieschotten. De aparte stook- en wasruimte is praktisch opgezet, voorzien van een dakraam en ruimte voor wasapparatuur en installaties. De woning beschikt over een 150-liter boostboiler.

BUITENRUIMTE
De voortuin is sfeervol aangelegd en biedt een gezellig zitje aan het water – ideaal voor een rustige start van de dag. Via de gedeelde brug (met vernieuwde slijtlaag in 2022) bereik je de voordeur. Op eigen terrein kun je parkeren, inclusief een elektrische laadpaal (NewMotion, 2019). De achtertuin op het zuidoosten is breed, groen en zorgvuldig aangelegd, met een fraai gazon en een royale pergola die deels begroeid is met blauwe regen. Dankzij twee elektrische zonneschermen (2024), diverse zitplekken en een praktische tuinkast is dit een veelzijdige buitenruimte waar je volop kunt genieten.

PLUSPUNTEN
+ Energielabel A++ voor extra leenmogelijkheden (TIP: doe hiervoor navraag bij financieel adviseur)
+ Aanwezigheid van 24 zonnepanelen (8.880 Wp/3-Fase)
+ Royale uitbouw van ca. 2,8 meter woningbreed
+ Voorzien van kunststof kozijnen + HR++-beglazing
+ Smaakvolle tegelvloer met hexagon en grote grijze tegels
+ Houten look keuken met hoogwaardige apparatuur
+ Licht atelier/studie/tuinkamer met uitzicht op achtertuin via aparte schuifpui
+ Maar liefst 5 slaapkamers
+ Dakkapel geplaatst in 2021 met zitje en elektrische rolluiken en maatwerk screens
+ Open inloopkast in master bedroom met prettige lichtinval
+ Zonnige achtertuin met pergola
+ Fraai aangelegd gazon in achtertuin
+ Parkeren op eigen terrein
+ Eigen laadpaal
+ Gelegen aan het water (voorzijde)
+ Rustige en groene ligging in het populaire Park Triangel
+ Speeltuin voor de deur

INTERESSE?
Dan nodigen we je uit om contact met ons op te nemen. We vertellen je graag meer over deze woning en zorgen ervoor dat je overige stukken en algemene voorwaarden verkopend makelaar digitaal via jouw persoonlijke Move account kunt bekijken.

ONZE TIP
Aankopen? Schakel jouw eigen NVM-aankoopmakelaar in! De NVM-aankoopmakelaar komt op voor jouw belang en bespaart je veel tijd, geld en zorgen. Adressen van collega NVM-aankoopmakelaars vind je op Funda.

De gegeven informatie is met zorgvuldigheid opgesteld, aan de juistheid kunnen echter geen rechten worden ontleend. Alle verstrekte informatie moet beschouwd worden als een uitnodiging tot het doen van een aanbod of om in onderhandeling te treden.

Vragen of even
binnenkijken?

Neem vrijblijvend contact
op met Ferdi Bennemeer

Meer kans maken?

Laat zien dat je financieel sterk staat!
Met een KopersPaspoort© toon je aan dat je snel kunt schakelen. Meer kans op jouw droomhuis!

Open Woningwaarde Dag

Benieuwd naar de waarde van je huis? Maak gebruik van een gratis waardebepaling tijdens onze Open Woningwaarde Dag!

Tijdens de Open Woningwaarde Dag komen we langs om binnen 20 minuten de waarde van jouw huis te bepalen.

ONLINE ZOEKSERVICE

Door een gratis zoekprofiel aan te maken krijg je voortaan ál het nieuwe huizenaanbod van álle makelaars direct in je mailbox, vaak al voordat het op Funda staat.

Overdracht

  • Status Beschikbaar
  • Vraagprijs € 875.000,- kosten koper Hypotheek berekenen
  • Aanvaarding In overleg

Bouwvorm

  • Soort object Geschakelde twee onder een kapwoning
  • Soort woning Herenhuis
  • Bouwjaar 2019
  • Soort bouw Woonhuis
  • Ligging Aan water, in woonwijk

Indeling

  • Woonoppervlakte 172m2
  • Perceeloppervlakte 283m2
  • Inhoud 667m2
  • Aantal kamers 7 kamers
  • Aantal slaapkamers 5
  • Aantal badkamers 1 badkamer
  • Badkamervoorzieningen Toilet, dubbele wastafel, wastafelmeubel, inloopdouche
  • Aantal woonlagen 4 woonlagen
  • Overige inpandige ruimte ca. 9m2

Energie & Installatie

  • Energielabel A++
  • Isolatie Volledig geisoleerd
  • Verwarming Cv ketel, vloerverwarming geheel, warmte terugwininstallatie
  • Warm water Elektrische boiler eigendom
  • C.v.-ketel type Gas
  • C.v.-ketel bouwjaar 2019
  • Energie einddatum 2035-10-31

Bergruimte

  • Schuur / berging Inpandig
  • Aantal schuren / bergingen 1
  • Voorzieningen Voorzien van elektra, met vliering

Parkeergelegenheid

  • Parkeerfaciliteiten Op eigen terrein
  • Garage Geen garage

Dak

  • Soort dak Zadeldak

Overig

  • Onderhoud binnen Uitstekend
  • Onderhoud buiten Uitstekend
  • Bijzonderheden Gedeeltelijk gestoffeerd
  • Permanente bewoning Ja
  • Huidig gebruik Woonruimte
  • Huidige bestemming Woonruimte

Voorzieningen

  • Voorzieningen Rolluiken, tv kabel, buitenzonwering, schuifpui, dakraam, glasvezel kabel, zonnepanelen, balansventilatie

Buitenruimte

  • Hoofdtuin Achtertuin
  • Oppervlakte hoofdtuin ca. 101m2
  • Ligging hoofdtuin Zuidoost
  • Kwaliteit tuin Verzorgd

Kadastrale gegevens

  • Waddinxveen e 1719
  • Oppervlakte 275
  • Eigendomssituatie volle eigendom
  • Waddinxveen e 1730
  • Oppervlakte 8
  • Eigendomssituatie volle eigendom

Extra

Burgerlijke staat

Gehuwd
Ongehuwd
Gescheiden
Verweduwd
  • Gehuwd
  • Ongehuwd
  • Gescheiden
  • Verweduwd

Leeftijd in gemeente

0 - 15 jaar
15 - 25 jaar
25-45 jaar
45 - 65 jaar
65+ jaar
  • 0 - 15 jaar
  • 15 - 25 jaar
  • 25 - 45 jaar
  • 45 - 65 jaar
  • 65+ jaar

Gezinnen met kinderen

Met kinderen
Zonder kinderen
Alleenstaand
  • Met kinderen
  • Zonder kinderen
  • Alleenstaand

Leeftijd buurtbewoners

0 - 15 jaar
15 - 25 jaar
25-45 jaar
45 - 65 jaar
65+ jaar
  • 0 - 15 jaar
  • 15 - 25 jaar
  • 25 - 45 jaar
  • 45 - 65 jaar
  • 65+ jaar

Bewoners in de straat

Man
Vrouw
  • Man
  • Vrouw

      Documenten

      Voor alle documenten van deze woning willen we je graag doorverwijzen naar Move.nl.

      Inloggen MOVE.NL

      Aankoopmakelaar

      Hulp nodig bij de aankoop?
      Onze aankoopmakelaars helpen graag

      Aankoopmakelaar
      Dit veld is bedoeld voor validatiedoeleinden en moet niet worden gewijzigd.
      Dit veld is bedoeld voor validatiedoeleinden en moet niet worden gewijzigd.

      "*" geeft vereiste velden aan

      "*" geeft vereiste velden aan

      Dit veld is bedoeld voor validatiedoeleinden en moet niet worden gewijzigd.
      Dit veld is bedoeld voor validatiedoeleinden en moet niet worden gewijzigd.
      Ik wil graag meer informatie ontvangen over(Vereist)
      Dit veld is bedoeld voor validatiedoeleinden en moet niet worden gewijzigd.
      Dit veld is verborgen bij het bekijken van het formulier

      November 2025

      Ma Di Wo Do Vr Za Zo
      1 2
      3 4 5 6 7 8 9
      10 11 12 13 14 15 16
      17 18 19 20 21 22 23
      24 25 26 27 28 29 30

      29 November 2025

      De afspraak is nog niet definitief. We nemen binnenkort contact met je op om de afspraak te bevestigen.

      "*" geeft vereiste velden aan

      Dit veld is bedoeld voor validatiedoeleinden en moet niet worden gewijzigd.

      "*" geeft vereiste velden aan

      Dit veld is bedoeld voor validatiedoeleinden en moet niet worden gewijzigd.
      Waar wil je een plek voor reserveren?

      "*" geeft vereiste velden aan

      Dit veld is bedoeld voor validatiedoeleinden en moet niet worden gewijzigd.
      Geen titel

      "*" geeft vereiste velden aan

      Dit veld is bedoeld voor validatiedoeleinden en moet niet worden gewijzigd.
      Waar wil je een afspraak voor?*

      De aanmelding komt ten goede van : Tuinbouwweg 40, Waddinxveen

      "*" geeft vereiste velden aan

      Dit veld is bedoeld voor validatiedoeleinden en moet niet worden gewijzigd.
      Dit veld is bedoeld voor validatiedoeleinden en moet niet worden gewijzigd.
      Dit veld is verborgen bij het bekijken van het formulier
      Dit veld is verborgen bij het bekijken van het formulier

      November 2025

      Ma Di Wo Do Vr Za Zo
      1 2
      3 4 5 6 7 8 9
      10 11 12 13 14 15 16
      17 18 19 20 21 22 23
      24 25 26 27 28 29 30

      29 November 2025

      Dit veld is bedoeld voor validatiedoeleinden en moet niet worden gewijzigd.

      "*" geeft vereiste velden aan

      Dit veld is bedoeld voor validatiedoeleinden en moet niet worden gewijzigd.

      Adres te taxeren woning

      Soort woning
      Doel van taxatie

      Binnen welke periode moet de taxatie worden uitgevoerd?
      MM slash DD slash JJJJ
      MM slash DD slash JJJJ

      "*" geeft vereiste velden aan

      Dit veld is bedoeld voor validatiedoeleinden en moet niet worden gewijzigd.

      "*" geeft vereiste velden aan

      Dit veld is bedoeld voor validatiedoeleinden en moet niet worden gewijzigd.
      Ik heb interesse in:*

      "*" geeft vereiste velden aan

      Dit veld is bedoeld voor validatiedoeleinden en moet niet worden gewijzigd.
      Adres*

      "*" geeft vereiste velden aan

      Dit veld is bedoeld voor validatiedoeleinden en moet niet worden gewijzigd.