Omschrijving

Royale splitlevelwoning met dubbele garage, woonkeuken én zonnige tuin

Op een rustige, groene en kindvriendelijke locatie, vlak bij het Westerpark en verschillende speeltuintjes, staat deze indrukwekkende 6-kamer splitlevelwoning met een breedte van maar liefst zes meter, een woonoppervlakte van circa 146 m² en een dubbele garage onder de woning.
De indeling is speels, licht en praktisch — ideaal voor gezinnen of thuiswerkers die ruimte nabij een groene omgeving zoeken, maar ook comfort en privacy…

Lees meer

Kenmerken

  • Status Verkocht
  • Vraagprijs € 519.500 kosten koper Hypotheek berekenen
  • Woonoppervlakte ca. 146 m2
  • Aantal slaapkamers 4
  • Bouwjaar 1975
Meer kenmerken

Bewoner(s) en vrienden aan het woord

"Wij hebben genoten van de Turfberg 29, maar nu wij gaan samenwonen, besloten wij deze woning te verkopen. Het was altijd heerlijk thuiskomen, bijkomen van een drukke werkdag met een drankje aan de vaak nog zonovergoten eettafel of gezellig op de bank! Er is altijd veel natuurlijk licht en uitzicht met alle raampjes in het hele huis. Met de openslaande deuren ben je direct in de grote achtertuin en heb je er tot in de middag een heerlijk zonnetje. Of liever in de schaduw of tijdens een zomers buitje schuilen onder de overkapping terwijl de barbecue zijn werk doet :). Wie van buitensporten houdt kan hier zijn hart ophalen. Van een heerlijke wandeling met de hond, tot de mooiste hardlooproutes door groen gebied, uitgedaagd worden op het technische mountainbike parcours om de hoek, een skipiste op loopafstand en een fantastisch startpunt voor de echt langere (wielren) fietstochten: de ligging is perfect. En wat te denken van het heerlijke strandje aan de Zoetermeerse Plas, op 10 minuten fietsen. Ook voor uitgaansgelegenheden is de woning super gelegen: of het nou live muziek is in de Boerderij, een rasta festival aan de Plas of een van de heerlijke restaurantjes op 10 minuten fietsen in het centrum. Ook voor hobby’s is genoeg ruimte in de ruime garage, met twee gegarandeerde eigen parkeerplekken op de uitrit! Dat is nog eens fijn: geen parkeerplek hoeven zoeken na een lange werkdag :) Er is nog veel meer te vertellen, maar kortom: deze gemoedelijke en vriendelijke woning heeft zoveel in petto voor dienst bewoners, vergeet er niet van te genieten!"

- Gabriël Patrascu

Vragen of even
binnenkijken?

Neem vrijblijvend contact
op met Kerwin Pronk

Meer kans maken?

Laat zien dat je financieel sterk staat!
Met een KopersPaspoort© toon je aan dat je snel kunt schakelen. Meer kans op jouw droomhuis!

Open Woningwaarde Dag

Benieuwd naar de waarde van je huis? Maak gebruik van een gratis waardebepaling tijdens onze Open Woningwaarde Dag!

Tijdens de Open Woningwaarde Dag komen we langs om binnen 20 minuten de waarde van jouw huis te bepalen.

ONLINE ZOEKSERVICE

Door een gratis zoekprofiel aan te maken krijg je voortaan ál het nieuwe huizenaanbod van álle makelaars direct in je mailbox, vaak al voordat het op Funda staat.

Royale splitlevelwoning met dubbele garage, woonkeuken én zonnige tuin

Op een rustige, groene en kindvriendelijke locatie, vlak bij het Westerpark en verschillende speeltuintjes, staat deze indrukwekkende 6-kamer splitlevelwoning met een breedte van maar liefst zes meter, een woonoppervlakte van circa 146 m² en een dubbele garage onder de woning.
De indeling is speels, licht en praktisch — ideaal voor gezinnen of thuiswerkers die ruimte nabij een groene omgeving zoeken, maar ook comfort en privacy waarderen. Dankzij meerdere woonniveaus, vier grote slaapkamers, een studeerkamer, een diepe achtertuin en een fijne woonkeuken is dit een woning waar je écht kunt thuiskomen.

HIGHLIGHTS
+ Bijzonder licht, speels en praktische ingedeeld
+ Dubbele garage mét 2 parkeerplaatsen op eigen terrein
+ Riante woonkeuken én tuingerichte woonkamer
+ Uitstekende staat van onderhoud, energiezuinig en voorzien van maar liefst 18 zonnepanelen

INDELING PER NIVEAU

BUITENRUIMTE
Aan de voorzijde heb je de luxe van twee deels overdekte eigen parkeerplaatsen op de eigen uitrit, direct voor de dubbele garage met elektrische deur. Er is tevens een eigen laadpaal voor elektrische auto's aanwezig (ter overname). De garage is verder voorzien van een dubbel bewapende betonnen vloer met funderingspunten voor een kraanconstructie.

DEKNIVEAU
Je komt binnen in de hal met garderobenis, moderne toiletruimte met fonteintje en meterkast. De vloer is voorzien van plavuizen en vloerverwarming, doorgetrokken tot in de woonkeuken. Via de hal is er toegang tot de praktische bijkeuken/berging met keukenblok, aansluiting voor wasmachine, toegang tot de dubbele garage én een handige bergvliering waar de cv-combiketel (Nefit, 2015) is opgesteld. Vanuit hier loop je zo naar de garage met elektra en extra loopdeur, ideaal voor hobby’s of klussen.

WOONKEUKEN NIVEAU
Vanuit de hal loop je de royale sfeervolle woonkeuken in, voorzien van de plavuizen vloer met vloerverwarming, een hoekopstelling met granieten werkblad en diverse inbouwapparatuur: een 4-pits gaskookplaat, combimagnetron (2023), vaatwasser (2023), koelkast en vriezer. De ruimte is licht en gezellig en dankzij de elektrische zonwering kun je hier altijd comfortabel tafelen.

TUINNIVEAU
Op tuinniveau ligt de royale, tuingerichte woonkamer met een sfeervolle eikenhouten vloer, veel lichtinval en dubbel openslaande deuren naar de tuin. Deze verdieping biedt echt een gevoel van rust en verbinding met buiten. De zonnige, diepe achtertuin is keurig aangelegd met sierbestrating, houten schuttingen, beplanting, elektrische zonwering en een sfeervolle houten overkapping – perfect om tot in de late uurtjes buiten te zitten.

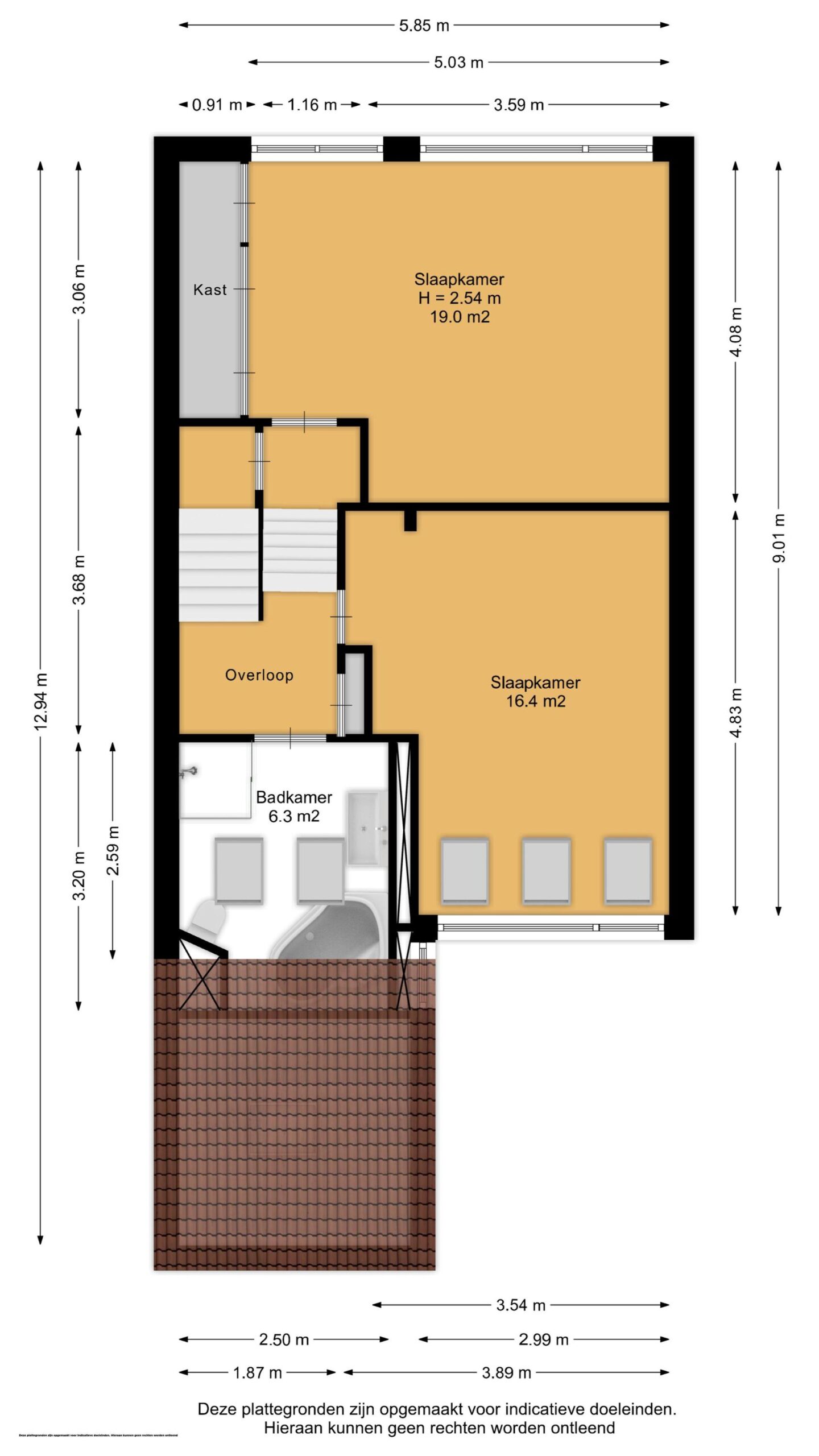
1e VERDIEPING
Via de trap kom je op de eerste verdieping met een royale woningbrede slaapkamer aan de achterzijde (voorheen twee kamers) met vaste kastenwand. Aan de voorzijde bevindt zich een tweede ruime slaapkamer met drie Velux dakramen en een verlaagd plafond met inbouwspots. De ruimtelijke en hoge hal op deze verdieping is voorzien van een eigen Velux raam, waardoor ook dit deel van het huis bijzonder licht en open aanvoelt. De moderne badkamer ligt centraal en is voorzien van een kunststof ligbad, aparte douchecabine, vrijhangend toilet, wastafelmeubel, designradiator en natuurlijke ventilatie via een zijgevelraam en twee extra Velux dakramen. Het zijgevelraam en de twee Velux dakramen maken deze badkamer in elk jaargetijde een lichte en aangename ruimte.

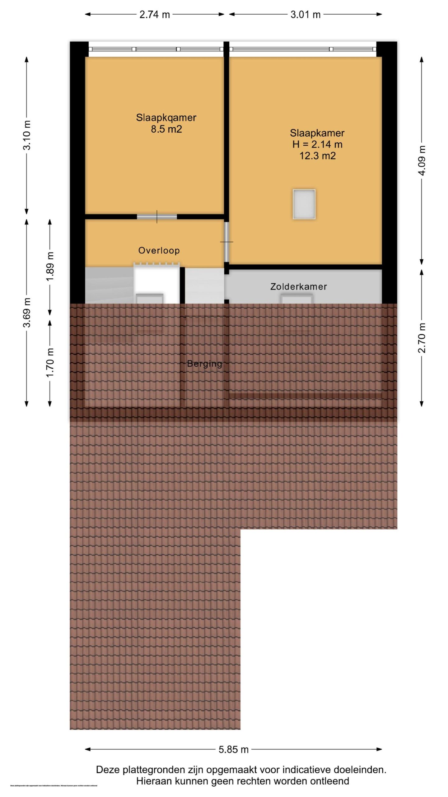
2e VERDIEPING OF ZOLDERVERDIEPING
Op de bovenste verdieping vind je nog twee ruime slaapkamers aan de achterzijde, waarvan één met een grote berg-/slaapzolder inclusief Velux dakraam. Ook is er een aparte studeer-/hobbykamer met kunststof dakraam én extra bergzolder. Deze verdieping biedt volop mogelijkheden voor een groot gezin, werken aan huis of het creëren van extra logeerruimte. Er is veel bergruimte beschikbaar, waardoor de speelse indeling bijzonder praktisch is benut.

OMGEVING
Turfberg 29 ligt in een rustige straat aan de groene rand van de wijk Meerzicht, om de hoek van het Westerpark. Je woont hier op loopafstand van basisscholen, kinderopvang, openbaar vervoer (RandstadRail), sportverenigingen en winkelcentrum Meerzicht. Binnen enkele minuten ben je op de A12 richting Den Haag of Utrecht. Ook het Stadshart van Zoetermeer bereik je snel per fiets.
Een ideale combinatie van rust, ruimte en bereikbaarheid.

Klinkt dit als jouw ideale thuis? Loop alvast in 3D door de woning om alle ruimtes te bekijken en maak snel een afspraak voor een bezichtiging!

PLUSPUNTEN
+ Energielabel A
+ 18 zonnepanelen
+ Royale, speelse en lichte splitlevelwoning van circa 146 m²
+ Dubbele garage met elektrische deur en 2 (half) overdekte parkeerplaatsen op eigen terrein met laadpaal (ter overname)
+ Riante woonkeuken met vloerverwarming en granieten werkblad
+ Bijkeuken voorzien van elektra, aparte wastafel en wasmachine aansluitingen
+ Tuingerichte woonkamer met openslaande deuren
+ Zonnige, diepe achtertuin met houten overkapping
+ Isolatie: voorzijde dubbel, achterzijde triple glas
+ Inpandig bereikbare dubbele garage, voorzien van licht, elektra en dubbel bewapende betonnen vloer
+ Vier grote slaapkamers en een aparte studeer-/hobbykamer
+ Veel bergruimte: meerdere vlieringen en bergzolders
+ Keurig onderhouden en instapklaar

BIJZONDERHEDEN
> Automatisch lid van Huiseigenaren Vereniging t.b.v. onderhoud woondek, € 990,= per jaar;
> Parkeren voor eigen garage is mogelijk met parkeerontheffing;
> Parkeerontheffing € 16,= per 2 jaar (per auto);

ouderdoms-, asbest en loodclausule zijn van toepassing

OMGEVING
Benieuwd naar de omgeving? Bekijk alle voorzieningen onder het kopje ‘In de buurt’!

INTERESSE?
Dan nodigen we je uit om contact met ons op te nemen. We vertellen je graag meer over deze woning en zorgen ervoor dat je overige stukken en algemene voorwaarden verkopend makelaar digitaal via jouw persoonlijke Move account kunt bekijken.

ONZE TIP
Aankopen? Schakel jouw eigen NVM-aankoopmakelaar in! De NVM-aankoopmakelaar komt op voor jouw belang en bespaart je veel tijd, geld en zorgen. Adressen van collega NVM-aankoopmakelaars vind je op Funda.

De gegeven informatie is met zorgvuldigheid opgesteld, aan de juistheid kunnen echter geen rechten worden ontleend. Alle verstrekte informatie moet beschouwd worden als een uitnodiging tot het doen van een aanbod of om in onderhandeling te treden.

Vragen of even
binnenkijken?

Neem vrijblijvend contact
op met Kerwin Pronk

Meer kans maken?

Laat zien dat je financieel sterk staat!
Met een KopersPaspoort© toon je aan dat je snel kunt schakelen. Meer kans op jouw droomhuis!

Open Woningwaarde Dag

Benieuwd naar de waarde van je huis? Maak gebruik van een gratis waardebepaling tijdens onze Open Woningwaarde Dag!

Tijdens de Open Woningwaarde Dag komen we langs om binnen 20 minuten de waarde van jouw huis te bepalen.

ONLINE ZOEKSERVICE

Door een gratis zoekprofiel aan te maken krijg je voortaan ál het nieuwe huizenaanbod van álle makelaars direct in je mailbox, vaak al voordat het op Funda staat.

Overdracht

  • Status Verkocht
  • Vraagprijs € 519.500,- kosten koper Hypotheek berekenen
  • Aanvaarding In overleg

Bouwvorm

  • Soort object Tussenwoning
  • Soort woning Eengezinswoning
  • Bouwjaar 1975
  • Soort bouw Woonhuis
  • Ligging Aan rustige weg, in woonwijk, beschutte ligging

Indeling

  • Woonoppervlakte 146m2
  • Perceeloppervlakte 164m2
  • Inhoud 619m2
  • Aantal kamers 5 kamers
  • Aantal slaapkamers 4
  • Aantal badkamers 1 badkamer
  • Badkamervoorzieningen Ligbad, toilet, douche, wastafel, wastafelmeubel
  • Aantal woonlagen 5 woonlagen
  • Overige inpandige ruimte ca. 40m2

Energie & Installatie

  • Energielabel A
  • Isolatie Dakisolatie, muurisolatie, vloerisolatie, dubbel glas
  • Verwarming Cv ketel
  • Warm water Cv ketel
  • C.v.-ketel type Gas
  • C.v.-ketel bouwjaar 2015
  • Energie einddatum 2035-05-27

Bergruimte

  • Schuur / berging Aangebouwd steen
  • Aantal schuren / bergingen 1
  • Voorzieningen Voorzien van elektra

Parkeergelegenheid

  • Parkeerfaciliteiten Openbaar parkeren, op eigen terrein
  • Garage Garagebox

Dak

  • Soort dak Zadeldak

Overig

  • Onderhoud binnen Goed
  • Onderhoud buiten Goed
  • Bijzonderheden Gedeeltelijk gestoffeerd
  • Permanente bewoning Ja
  • Huidig gebruik Woonruimte
  • Huidige bestemming Woonruimte

Voorzieningen

  • Voorzieningen Mechanische ventilatie, dakraam, zonnepanelen, natuurlijke ventilatie

Buitenruimte

  • Hoofdtuin Achtertuin
  • Oppervlakte hoofdtuin ca. 66m2
  • Ligging hoofdtuin Zuidoost
  • Kwaliteit tuin Fraai aangelegd

Kadastrale gegevens

  • Gemeente Zoetermeer
  • Sectie F
  • Eigendom Volle eigendom
  • Perceelnummer 1097
  • Perceeloppervlakte 164

Extra

Kenmerken toegevoegd door verkoper, vrienden en familie

Vrienden, familie en kennissen van de eigenaar delen hun unieke kenmerken die de Turfberg 29 het beste omschrijven.

Gabriël Patrascu
  • Naam
    Gabriël Patrascu
  • Opmerking
    Zo in het park
Gabriël Patrascu
  • Naam
    Gabriël Patrascu
  • Opmerking
    Rustige buurt
Gabriël Patrascu
  • Naam
    Gabriël Patrascu
  • Opmerking
    Grote fijne garage
Gabriël Patrascu
  • Naam
    Gabriël Patrascu
  • Opmerking
    Speelse indeling
Gabriël Patrascu
  • Naam
    Gabriël Patrascu
  • Opmerking
    Veel opbergruimte
Gabriël Patrascu
  • Naam
    Gabriël Patrascu
  • Opmerking
    Fijne lichtinval
Gabriël Patrascu
  • Naam
    Gabriël Patrascu
  • Opmerking
    Dichtbij OV
Gabriël Patrascu
  • Naam
    Gabriël Patrascu
  • Opmerking
    Voldoende parkeergelegenheid
Gabriël Patrascu
  • Naam
    Gabriël Patrascu
  • Opmerking
    Kindvriendelijke buurt
Gabriël Patrascu
  • Naam
    Gabriël Patrascu
  • Opmerking
    Energiezuinig
Gabriël Patrascu
  • Naam
    Gabriël Patrascu
  • Opmerking
    Groene omgeving
Gabriël Patrascu
  • Naam
    Gabriël Patrascu
  • Opmerking
    Gezellige buren
Gabriël Patrascu
  • Naam
    Gabriël Patrascu
  • Opmerking
    Zonnige tuin

Burgerlijke staat

Gehuwd
Ongehuwd
Gescheiden
Verweduwd
  • Gehuwd
  • Ongehuwd
  • Gescheiden
  • Verweduwd

Leeftijd in gemeente

0 - 15 jaar
15 - 25 jaar
25-45 jaar
45 - 65 jaar
65+ jaar
  • 0 - 15 jaar
  • 15 - 25 jaar
  • 25 - 45 jaar
  • 45 - 65 jaar
  • 65+ jaar

Gezinnen met kinderen

Met kinderen
Zonder kinderen
Alleenstaand
  • Met kinderen
  • Zonder kinderen
  • Alleenstaand

Leeftijd buurtbewoners

0 - 15 jaar
15 - 25 jaar
25-45 jaar
45 - 65 jaar
65+ jaar
  • 0 - 15 jaar
  • 15 - 25 jaar
  • 25 - 45 jaar
  • 45 - 65 jaar
  • 65+ jaar

Bewoners in de straat

Man
Vrouw
  • Man
  • Vrouw

      Documenten

      Voor alle documenten van deze woning willen we je graag doorverwijzen naar Move.nl.

      Inloggen MOVE.NL

      Aankoopmakelaar

      Hulp nodig bij de aankoop?
      Onze aankoopmakelaars helpen graag

      Aankoopmakelaar
      Dit veld is bedoeld voor validatiedoeleinden en moet niet worden gewijzigd.
      Dit veld is bedoeld voor validatiedoeleinden en moet niet worden gewijzigd.

      "*" geeft vereiste velden aan

      "*" geeft vereiste velden aan

      Dit veld is bedoeld voor validatiedoeleinden en moet niet worden gewijzigd.
      Dit veld is bedoeld voor validatiedoeleinden en moet niet worden gewijzigd.
      Ik wil graag meer informatie ontvangen over(Vereist)
      Dit veld is bedoeld voor validatiedoeleinden en moet niet worden gewijzigd.
      Dit veld is verborgen bij het bekijken van het formulier

      Oktober 2025

      Ma Di Wo Do Vr Za Zo
      1 2 3 4 5
      6 7 8 9 10 11 12
      13 14 15 16 17 18 19
      20 21 22 23 24 25 26
      27 28 29 30 31

      20 Oktober 2025

      21 Oktober 2025

      22 Oktober 2025

      23 Oktober 2025

      24 Oktober 2025

      25 Oktober 2025

      27 Oktober 2025

      28 Oktober 2025

      29 Oktober 2025

      30 Oktober 2025

      31 Oktober 2025

      De afspraak is nog niet definitief. We nemen binnenkort contact met je op om de afspraak te bevestigen.

      "*" geeft vereiste velden aan

      Dit veld is bedoeld voor validatiedoeleinden en moet niet worden gewijzigd.

      "*" geeft vereiste velden aan

      Dit veld is bedoeld voor validatiedoeleinden en moet niet worden gewijzigd.
      Waar wil je een plek voor reserveren?

      "*" geeft vereiste velden aan

      Dit veld is bedoeld voor validatiedoeleinden en moet niet worden gewijzigd.
      Geen titel

      "*" geeft vereiste velden aan

      Dit veld is bedoeld voor validatiedoeleinden en moet niet worden gewijzigd.
      Waar wil je een afspraak voor?*

      De aanmelding komt ten goede van : Turfberg 29, Zoetermeer

      "*" geeft vereiste velden aan

      Dit veld is bedoeld voor validatiedoeleinden en moet niet worden gewijzigd.
      Dit veld is bedoeld voor validatiedoeleinden en moet niet worden gewijzigd.
      Dit veld is verborgen bij het bekijken van het formulier
      Dit veld is verborgen bij het bekijken van het formulier

      Oktober 2025

      Ma Di Wo Do Vr Za Zo
      1 2 3 4 5
      6 7 8 9 10 11 12
      13 14 15 16 17 18 19
      20 21 22 23 24 25 26
      27 28 29 30 31

      20 Oktober 2025

      21 Oktober 2025

      22 Oktober 2025

      23 Oktober 2025

      24 Oktober 2025

      25 Oktober 2025

      27 Oktober 2025

      28 Oktober 2025

      29 Oktober 2025

      30 Oktober 2025

      31 Oktober 2025

      Dit veld is bedoeld voor validatiedoeleinden en moet niet worden gewijzigd.

      "*" geeft vereiste velden aan

      Dit veld is bedoeld voor validatiedoeleinden en moet niet worden gewijzigd.

      Adres te taxeren woning

      Soort woning
      Doel van taxatie

      Binnen welke periode moet de taxatie worden uitgevoerd?
      MM slash DD slash JJJJ
      MM slash DD slash JJJJ

      "*" geeft vereiste velden aan

      Dit veld is bedoeld voor validatiedoeleinden en moet niet worden gewijzigd.

      "*" geeft vereiste velden aan

      Dit veld is bedoeld voor validatiedoeleinden en moet niet worden gewijzigd.
      Ik heb interesse in:*

      "*" geeft vereiste velden aan

      Dit veld is bedoeld voor validatiedoeleinden en moet niet worden gewijzigd.
      Adres*

      "*" geeft vereiste velden aan

      Dit veld is bedoeld voor validatiedoeleinden en moet niet worden gewijzigd.