Omschrijving

Verzorgde en lichte dubbele bovenwoning met twee balkons!

Welkom aan de Verschoorstraat 70-02, een keurig onderhouden dubbele bovenwoning in de gezellige Tarwewijk. Deze woning biedt verrassend veel ruimte, twee zonnige balkons, een nette afwerking.

Deze bovenwoning ligt in een rustige straat met een vriendelijke uitstraling. Je woont hier op korte afstand van winkels, openbaar vervoer en uitvalswegen. Binnen enkele fietsminuten sta je al in het bruisende centrum van Rotterdam.

HIGHLIGHTS
+ Twee ruime…

Lees meer

Kenmerken

  • Status Verkocht
  • Vraagprijs € 260.000 kosten koper Hypotheek berekenen
  • Woonoppervlakte ca. 97 m2
  • Aantal slaapkamers 4
  • Bouwjaar 1929
Meer kenmerken

Vragen of even
binnenkijken?

Neem vrijblijvend contact
op met Valentijn Borsboom

Meer kans maken?

Laat zien dat je financieel sterk staat!
Met een KopersPaspoort© toon je aan dat je snel kunt schakelen. Meer kans op jouw droomhuis!

Open Woningwaarde Dag

Benieuwd naar de waarde van je huis? Maak gebruik van een gratis waardebepaling tijdens onze Open Woningwaarde Dag!

Tijdens de Open Woningwaarde Dag komen we langs om binnen 20 minuten de waarde van jouw huis te bepalen.

ONLINE ZOEKSERVICE

Door een gratis zoekprofiel aan te maken krijg je voortaan ál het nieuwe huizenaanbod van álle makelaars direct in je mailbox, vaak al voordat het op Funda staat.

Verzorgde en lichte dubbele bovenwoning met twee balkons!

Welkom aan de Verschoorstraat 70-02, een keurig onderhouden dubbele bovenwoning in de gezellige Tarwewijk. Deze woning biedt verrassend veel ruimte, twee zonnige balkons, een nette afwerking.

Deze bovenwoning ligt in een rustige straat met een vriendelijke uitstraling. Je woont hier op korte afstand van winkels, openbaar vervoer en uitvalswegen. Binnen enkele fietsminuten sta je al in het bruisende centrum van Rotterdam.

HIGHLIGHTS
+ Twee ruime en zonnige balkons
+ Moderne, volledig uitgeruste keuken met veel opbergruimte
+ Extra kamer op de eerste verdieping, flexibel in te richten
+ Geheel voorzien van kunststof kozijnen met dubbele beglazing

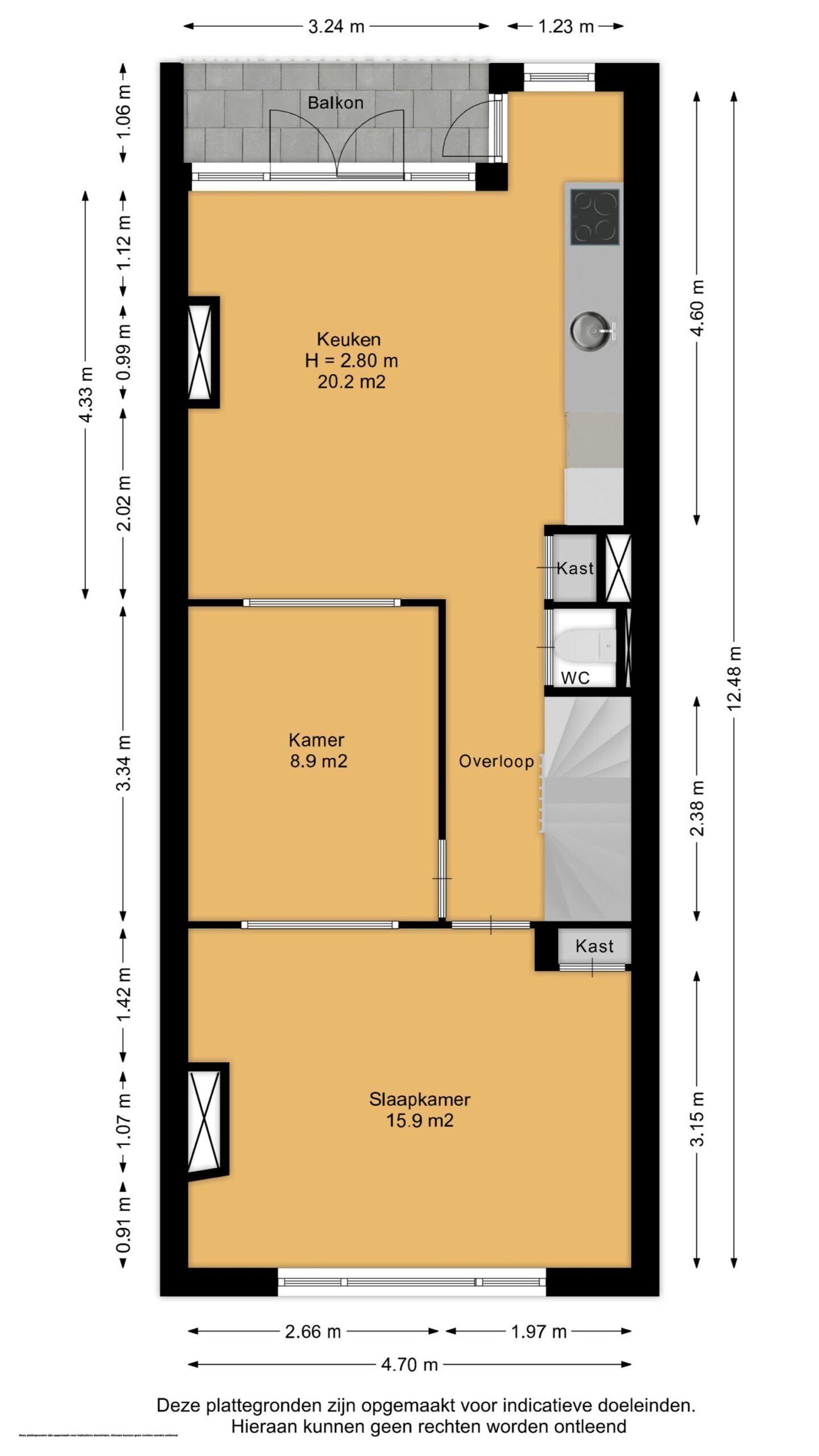
EERSTE VERDIEPING
Je komt binnen via je eigen entree op de begane grond. Op de eerste verdieping stap je binnen op de overloop, met toegang tot het toilet en handige kastruimte voor extra opslag. Aan de voorzijde bevindt zich de ruime en lichte woonkamer, voorzien van een fraaie laminaatvloer en strak gestucte wanden. Aan de achterzijde vind je de recent gerenoveerde, witte keuken met een moderne uitstraling. De keuken is compleet uitgerust met een inductiekookplaat, oven, magnetron, vaatwasser, koelkast, vriezer en voldoende kastruimte. Via de openslaande deuren stap je zo het zonnige balkon op het oosten op.

Tussen de keuken en woonkamer bevindt zich een extra kamer, ideaal als werkkamer, slaapkamer of opslagruimte. Wil je liever één grote leefruimte? Dan kun je deze kamer gemakkelijk bij de woonkamer betrekken voor een open, royale indeling.

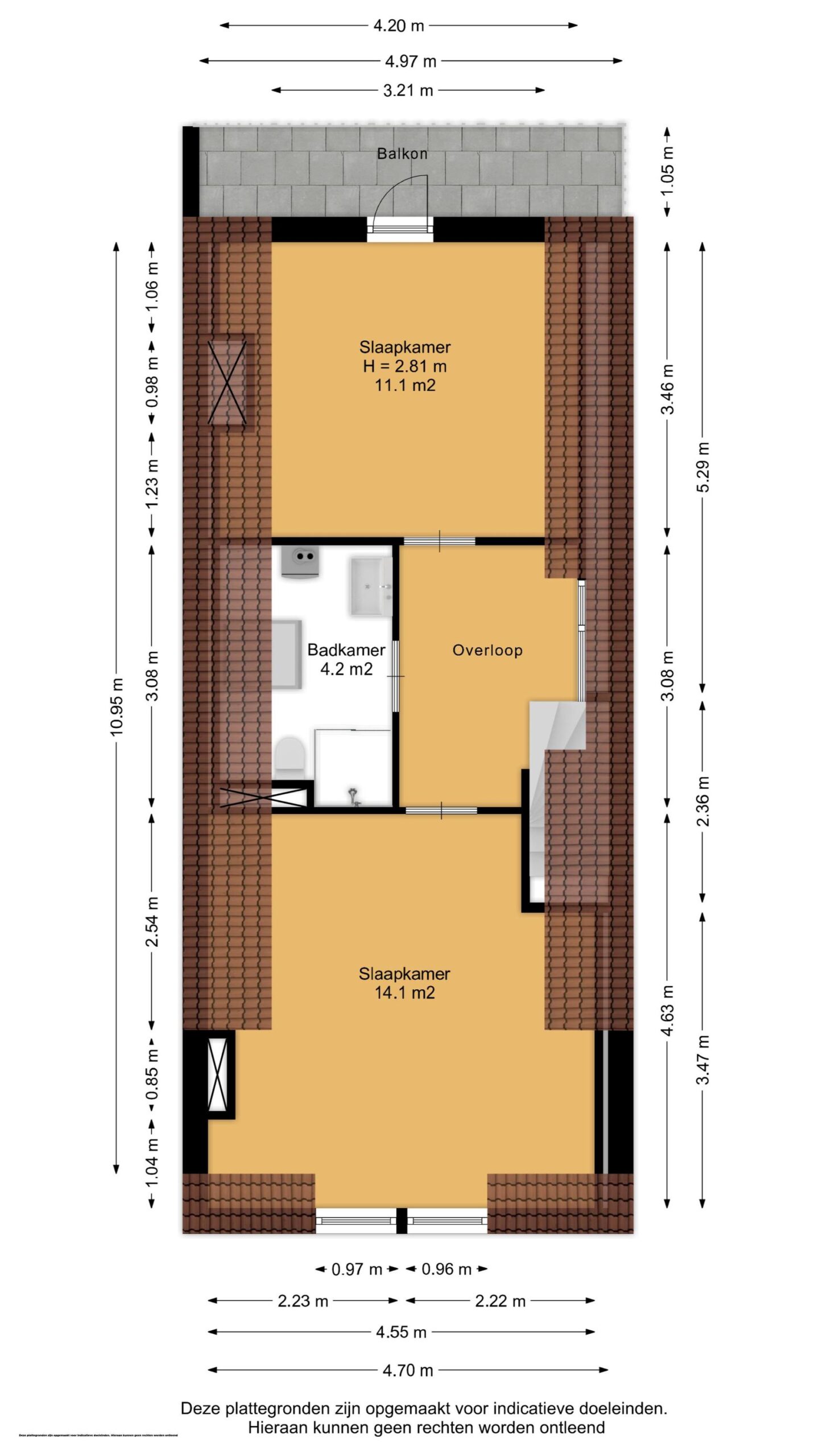
TWEEDE VERDIEPING
Op de tweede verdieping bevinden zich twee ruime slaapkamers: één aan de voorzijde en één aan de achterzijde met toegang tot het tweede balkon. Tussen de slaapkamers in vind je de moderne badkamer, voorzien van een douchecabine, tweede hangend toilet, wastafelmeubel en spiegelkast. Op de overloop is er een praktische plek voor je wasmachine en droger. De gehele woning is voorzien van kunststof kozijnen met dubbele beglazing en een Intergas cv-combiketel voor verwarming en warm water.

OMGEVING
De woning ligt in de levendige Tarwewijk, een wijk in opkomst met een centrale ligging in Rotterdam-Zuid. Je woont hier op loopafstand van winkels, supermarkten, scholen en openbaar vervoer, waaronder metrostation Maashaven. Binnen tien minuten fietsen ben je al in het centrum van Rotterdam of op Zuidplein. Daarnaast bereik je via de nabijgelegen uitvalswegen snel de A15 en A16. De Tarwewijk biedt een mix van rust, stedelijke dynamiek en goede bereikbaarheid, ideaal voor wie comfortabel wil wonen met alles binnen handbereik.

Klinkt dit als jouw ideale thuis? Loop alvast in 3D door de woning om alle ruimtes te bekijken en maak snel een afspraak voor een bezichtiging!

PLUSPUNTEN
+ Lichte dubbele bovenwoning van ruim formaat
+ Twee zonnige balkons (Zuid-Oost)
+ Moderne keuken met uitgebreide inbouwapparatuur
+ Extra kamer op de eerste verdieping: ideaal als werkkamer, slaapkamer of bijkeuken
+ Nette badkamer met tweede toilet en douchecabine
+ Fraaie laminaatvloeren en strak gestucte wanden
+ Volledig voorzien van kunststof kozijnen met dubbele beglazing
+ Centrale verwarming via Intergas cv-ketel
+ Eigen entree op de begane grond
+ Gelegen in een rustige straat met snelle verbinding naar het centrum

> Ouderdoms-, asbest en loodclausule zijn van toepassing
> Keuze notaris aan verkoper

OMGEVING
Benieuwd naar de omgeving? Bekijk alle voorzieningen onder het kopje ‘In de buurt’!

INTERESSE?
Dan nodigen we je uit om contact met ons op te nemen. We vertellen je graag meer over deze woning en zorgen ervoor dat je overige stukken en algemene voorwaarden verkopend makelaar digitaal via jouw persoonlijke Move account kunt bekijken.

ONZE TIP
Aankopen? Schakel jouw eigen NVM-aankoopmakelaar in! De NVM-aankoopmakelaar komt op voor jouw belang en bespaart je veel tijd, geld en zorgen. Adressen van collega NVM-aankoopmakelaars vind je op Funda.

De gegeven informatie is met zorgvuldigheid opgesteld, aan de juistheid kunnen echter geen rechten worden ontleend. Alle verstrekte informatie moet beschouwd worden als een uitnodiging tot het doen van een aanbod of om in onderhandeling te treden.

Vragen of even
binnenkijken?

Neem vrijblijvend contact
op met Valentijn Borsboom

Meer kans maken?

Laat zien dat je financieel sterk staat!
Met een KopersPaspoort© toon je aan dat je snel kunt schakelen. Meer kans op jouw droomhuis!

Open Woningwaarde Dag

Benieuwd naar de waarde van je huis? Maak gebruik van een gratis waardebepaling tijdens onze Open Woningwaarde Dag!

Tijdens de Open Woningwaarde Dag komen we langs om binnen 20 minuten de waarde van jouw huis te bepalen.

ONLINE ZOEKSERVICE

Door een gratis zoekprofiel aan te maken krijg je voortaan ál het nieuwe huizenaanbod van álle makelaars direct in je mailbox, vaak al voordat het op Funda staat.

Overdracht

  • Status Verkocht
  • Vraagprijs € 260.000,- kosten koper Hypotheek berekenen
  • Aanvaarding In overleg

Bouwvorm

  • Bouwjaar 1929
  • Soort bouw Appartement
  • Ligging Aan rustige weg, in woonwijk

Indeling

  • Woonoppervlakte 97m2
  • Inhoud 332m2
  • Aantal kamers 5 kamers
  • Aantal slaapkamers 4
  • Aantal badkamers 1 badkamer
  • Badkamervoorzieningen Toilet, douche, wastafelmeubel
  • Aantal woonlagen 2 woonlagen

Energie & Installatie

  • Energielabel G
  • Isolatie Dubbel glas
  • Verwarming Cv ketel
  • Warm water Cv ketel
  • C.v.-ketel type Gas
  • Energie einddatum 2028-04-26

Parkeergelegenheid

  • Parkeerfaciliteiten Openbaar parkeren, betaald parkeren, parkeervergunningen
  • Garage Geen garage

Dak

  • Soort dak Zadeldak

Overig

  • Onderhoud binnen Goed
  • Onderhoud buiten Goed
  • VVE Bijdrage € 97.5
  • Bijzonderheden Gedeeltelijk gestoffeerd
  • Permanente bewoning Ja
  • Huidig gebruik Woonruimte
  • Huidige bestemming Woonruimte

Voorzieningen

  • Voorzieningen Tv kabel

Kadastrale gegevens

  • Gemeente Charlois
  • Sectie E
  • Eigendom Volle eigendom
  • Perceelnummer 4667
  • Index 7

Extra

Burgerlijke staat

Gehuwd
Ongehuwd
Gescheiden
Verweduwd
  • Gehuwd
  • Ongehuwd
  • Gescheiden
  • Verweduwd

Leeftijd in gemeente

0 - 15 jaar
15 - 25 jaar
25-45 jaar
45 - 65 jaar
65+ jaar
  • 0 - 15 jaar
  • 15 - 25 jaar
  • 25 - 45 jaar
  • 45 - 65 jaar
  • 65+ jaar

Gezinnen met kinderen

Met kinderen
Zonder kinderen
Alleenstaand
  • Met kinderen
  • Zonder kinderen
  • Alleenstaand

Leeftijd buurtbewoners

0 - 15 jaar
15 - 25 jaar
25-45 jaar
45 - 65 jaar
65+ jaar
  • 0 - 15 jaar
  • 15 - 25 jaar
  • 25 - 45 jaar
  • 45 - 65 jaar
  • 65+ jaar

Bewoners in de straat

Man
Vrouw
  • Man
  • Vrouw

      Documenten

      Voor alle documenten van deze woning willen we je graag doorverwijzen naar Move.nl.

      Inloggen MOVE.NL

      Aankoopmakelaar

      Hulp nodig bij de aankoop?
      Onze aankoopmakelaars helpen graag

      Aankoopmakelaar
      Dit veld is bedoeld voor validatiedoeleinden en moet niet worden gewijzigd.

      "*" geeft vereiste velden aan

      "*" geeft vereiste velden aan

      Dit veld is bedoeld voor validatiedoeleinden en moet niet worden gewijzigd.
      Ik wil graag meer informatie ontvangen over(Vereist)
      Dit veld is bedoeld voor validatiedoeleinden en moet niet worden gewijzigd.
      Dit veld is verborgen bij het bekijken van het formulier

      Oktober 2025

      Ma Di Wo Do Vr Za Zo
      1 2 3 4 5
      6 7 8 9 10 11 12
      13 14 15 16 17 18 19
      20 21 22 23 24 25 26
      27 28 29 30 31

      18 Oktober 2025

      20 Oktober 2025

      21 Oktober 2025

      22 Oktober 2025

      23 Oktober 2025

      24 Oktober 2025

      25 Oktober 2025

      27 Oktober 2025

      28 Oktober 2025

      29 Oktober 2025

      30 Oktober 2025

      31 Oktober 2025

      De afspraak is nog niet definitief. We nemen binnenkort contact met je op om de afspraak te bevestigen.

      "*" geeft vereiste velden aan

      Dit veld is bedoeld voor validatiedoeleinden en moet niet worden gewijzigd.

      "*" geeft vereiste velden aan

      Waar wil je een plek voor reserveren?
      Dit veld is bedoeld voor validatiedoeleinden en moet niet worden gewijzigd.

      "*" geeft vereiste velden aan

      Geen titel
      Dit veld is bedoeld voor validatiedoeleinden en moet niet worden gewijzigd.

      "*" geeft vereiste velden aan

      Waar wil je een afspraak voor?*

      De aanmelding komt ten goede van : Verschoorstraat 70-02, Rotterdam

      Dit veld is bedoeld voor validatiedoeleinden en moet niet worden gewijzigd.

      "*" geeft vereiste velden aan

      Dit veld is bedoeld voor validatiedoeleinden en moet niet worden gewijzigd.
      Dit veld is verborgen bij het bekijken van het formulier
      Dit veld is verborgen bij het bekijken van het formulier

      Oktober 2025

      Ma Di Wo Do Vr Za Zo
      1 2 3 4 5
      6 7 8 9 10 11 12
      13 14 15 16 17 18 19
      20 21 22 23 24 25 26
      27 28 29 30 31

      18 Oktober 2025

      20 Oktober 2025

      21 Oktober 2025

      22 Oktober 2025

      23 Oktober 2025

      24 Oktober 2025

      25 Oktober 2025

      27 Oktober 2025

      28 Oktober 2025

      29 Oktober 2025

      30 Oktober 2025

      31 Oktober 2025

      Dit veld is bedoeld voor validatiedoeleinden en moet niet worden gewijzigd.

      "*" geeft vereiste velden aan

      Adres te taxeren woning

      Soort woning
      Doel van taxatie

      Binnen welke periode moet de taxatie worden uitgevoerd?
      MM slash DD slash JJJJ
      MM slash DD slash JJJJ
      Dit veld is bedoeld voor validatiedoeleinden en moet niet worden gewijzigd.

      "*" geeft vereiste velden aan

      Dit veld is bedoeld voor validatiedoeleinden en moet niet worden gewijzigd.

      "*" geeft vereiste velden aan

      Ik heb interesse in:*
      Dit veld is bedoeld voor validatiedoeleinden en moet niet worden gewijzigd.

      "*" geeft vereiste velden aan

      Adres*
      Dit veld is bedoeld voor validatiedoeleinden en moet niet worden gewijzigd.

      "*" geeft vereiste velden aan

      Dit veld is bedoeld voor validatiedoeleinden en moet niet worden gewijzigd.