Omschrijving

Volledig gerenoveerde en instapklare 5-kamer bovenwoning Wonen in een fris, strak en compleet vernieuwd appartement waar alles al voor je is gedaan. Deze 5-kamer bovenwoning is volledig gerenoveerd en tot in detail afgewerkt met een moderne keuken, nieuw sanitair, een doorlopende laminaatvloer en strak gestuukte wanden. Je bent hier de eerste bewoner na de verbouwing. Dankzij de centrale ligging woon je comfortabel, met zowel het centrum van Schiedam als Rotterdam binnen handbereik. HIGHLIGHTS + Volledig…

Lees meer

Kenmerken

  • Status Beschikbaar
  • Vraagprijs € 350.000 kosten koper Hypotheek berekenen
  • Woonoppervlakte ca. 114 m2
  • Aantal slaapkamers 4
  • Bouwjaar 1933
Meer kenmerken

Vragen of even
binnenkijken?

Neem vrijblijvend contact
op met Koen van Schooten

Meer kans maken?

Laat zien dat je financieel sterk staat!
Met een KopersPaspoort© toon je aan dat je snel kunt schakelen. Meer kans op jouw droomhuis!

Open Woningwaarde Dag

Benieuwd naar de waarde van je huis? Maak gebruik van een gratis waardebepaling tijdens onze Open Woningwaarde Dag!

Tijdens de Open Woningwaarde Dag komen we langs om binnen 20 minuten de waarde van jouw huis te bepalen.

ONLINE ZOEKSERVICE

Door een gratis zoekprofiel aan te maken krijg je voortaan ál het nieuwe huizenaanbod van álle makelaars direct in je mailbox, vaak al voordat het op Funda staat.

Volledig gerenoveerde en instapklare 5-kamer bovenwoning

Wonen in een fris, strak en compleet vernieuwd appartement waar alles al voor je is gedaan. Deze 5-kamer bovenwoning is volledig gerenoveerd en tot in detail afgewerkt met een moderne keuken, nieuw sanitair, een doorlopende laminaatvloer en strak gestuukte wanden. Je bent hier de eerste bewoner na de verbouwing.
Dankzij de centrale ligging woon je comfortabel, met zowel het centrum van Schiedam als Rotterdam binnen handbereik.

HIGHLIGHTS
+ Volledig vernieuwd en instapklaar
+ Ruime 5-kamer bovenwoning
+ Strakke afwerking met moderne keuken en sanitair

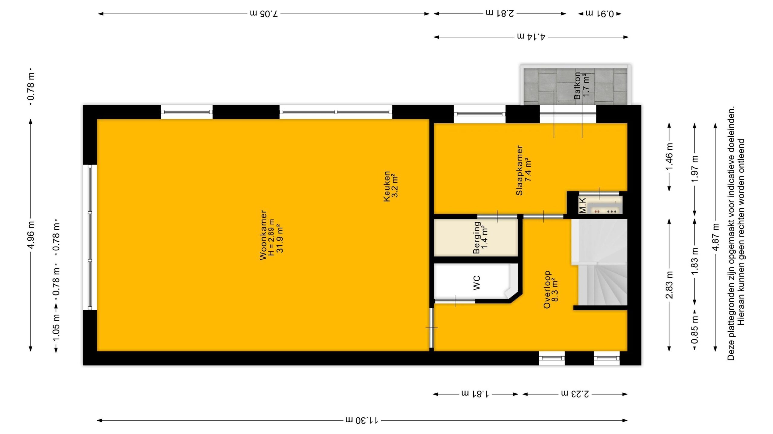
INDELING
Je beschikt over een eigen entree op de begane grond. In het halletje bevindt zich de trapopgang naar de woonverdieping. Boven aangekomen kom je op de overloop met een toiletruimte en de trap naar de slaapverdieping. Aan de voorzijde ligt de voorkamer met meterkast en een vaste kast, met toegang tot een klein balkon op het oosten.

De woonkamer is licht en ruim dankzij de vele ramen en de gunstige hoekligging. Aansluitend bevindt zich het moderne keukenblok in een matte grijze uitvoering, voorzien van een elektrische kookplaat, afzuigkap, koelkast, vriezer en oven. Over de gehele woning ligt een fraaie laminaatvloer die zorgt voor een rustige en verzorgde uitstraling.

VERDIEPING
Op de verdieping kom je op de overloop, van waaruit je toegang hebt tot drie ruime slaapkamers. De moderne badkamer is volledig betegeld in lichtgrijze tinten en uitgevoerd met een douche, wastafelmeubel en toilet.

OMGEVING
De woning ligt centraal in Schiedam, met het historische centrum op korte afstand en uitstekende verbindingen richting Rotterdam. Openbaar vervoer, uitvalswegen en dagelijkse voorzieningen bevinden zich in de directe omgeving, waardoor je hier praktisch en prettig woont met alles binnen handbereik.

Klinkt dit als jouw ideale thuis? Loop alvast in 3D door de woning om alle ruimtes te bekijken en maak snel een afspraak voor een bezichtiging!

PLUSPUNTEN
+ Energielabel B
+ Volledig gerenoveerd
+ Vijf kamers
+ Nieuwe keuken, badkamer en toilet
+ Nieuwe laminaatvloer en strak gestuukte wanden
+ Balkon op het oosten
+ Centrale ligging nabij Schiedam en Rotterdam
+ Eigen grond

BIJZONDERHEDEN
> Het complex dient nog officieel gesplitst te worden in appartementsrechten. De verbouwing is volledig uitgevoerd met vergunningen van de Gemeente Schiedam. De vereniging van eigenaren zal na verkoop en splitsing worden geactiveerd.
> niet-bewonersclausule is van toepassing

OMGEVING
Benieuwd naar de omgeving? Bekijk alle voorzieningen onder het kopje ‘In de buurt’!

INTERESSE?
Dan nodigen we je uit om contact met ons op te nemen. We vertellen je graag meer over deze woning en zorgen ervoor dat je overige stukken en algemene voorwaarden verkopend makelaar digitaal via jouw persoonlijke Move account kunt bekijken.

ONZE TIP
Aankopen? Schakel jouw eigen NVM-aankoopmakelaar in! De NVM-aankoopmakelaar komt op voor jouw belang en bespaart je veel tijd, geld en zorgen. Adressen van collega NVM-aankoopmakelaars vind je op Funda.

De gegeven informatie is met zorgvuldigheid opgesteld, aan de juistheid kunnen echter geen rechten worden ontleend. Alle verstrekte informatie moet beschouwd worden als een uitnodiging tot het doen van een aanbod of om in onderhandeling te treden.

Vragen of even
binnenkijken?

Neem vrijblijvend contact
op met Koen van Schooten

Meer kans maken?

Laat zien dat je financieel sterk staat!
Met een KopersPaspoort© toon je aan dat je snel kunt schakelen. Meer kans op jouw droomhuis!

Open Woningwaarde Dag

Benieuwd naar de waarde van je huis? Maak gebruik van een gratis waardebepaling tijdens onze Open Woningwaarde Dag!

Tijdens de Open Woningwaarde Dag komen we langs om binnen 20 minuten de waarde van jouw huis te bepalen.

ONLINE ZOEKSERVICE

Door een gratis zoekprofiel aan te maken krijg je voortaan ál het nieuwe huizenaanbod van álle makelaars direct in je mailbox, vaak al voordat het op Funda staat.

Overdracht

  • Status Beschikbaar
  • Vraagprijs € 350.000,- kosten koper Hypotheek berekenen
  • Aanvaarding In overleg

Bouwvorm

  • Bouwjaar 1933
  • Soort bouw Appartement
  • Ligging In woonwijk

Indeling

  • Woonoppervlakte 114m2
  • Inhoud 387m2
  • Aantal kamers 5 kamers
  • Aantal slaapkamers 4
  • Aantal woonlagen 2 woonlagen

Energie & Installatie

  • Energielabel B
  • Isolatie Volledig geisoleerd
  • Verwarming Cv ketel
  • Warm water Cv ketel
  • C.v.-ketel type Gas
  • C.v.-ketel bouwjaar 2025
  • Energie einddatum 2035-06-12

Parkeergelegenheid

  • Parkeerfaciliteiten Betaald parkeren, parkeervergunningen
  • Garage Geen garage

Dak

  • Soort dak Plat dak

Overig

  • Onderhoud binnen Goed tot uitstekend
  • Onderhoud buiten Goed tot uitstekend
  • Permanente bewoning Ja
  • Huidig gebruik Woonruimte
  • Huidige bestemming Woonruimte

Voorzieningen

  • Voorzieningen Mechanische ventilatie, tv kabel

Kadastrale gegevens

  • Gemeente Schiedam
  • Sectie I
  • Eigendom Volle eigendom
  • Index 2

Extra

Burgerlijke staat

Gehuwd
Ongehuwd
Gescheiden
Verweduwd
  • Gehuwd
  • Ongehuwd
  • Gescheiden
  • Verweduwd

Leeftijd in gemeente

0 - 15 jaar
15 - 25 jaar
25-45 jaar
45 - 65 jaar
65+ jaar
  • 0 - 15 jaar
  • 15 - 25 jaar
  • 25 - 45 jaar
  • 45 - 65 jaar
  • 65+ jaar

Gezinnen met kinderen

Met kinderen
Zonder kinderen
Alleenstaand
  • Met kinderen
  • Zonder kinderen
  • Alleenstaand

Leeftijd buurtbewoners

0 - 15 jaar
15 - 25 jaar
25-45 jaar
45 - 65 jaar
65+ jaar
  • 0 - 15 jaar
  • 15 - 25 jaar
  • 25 - 45 jaar
  • 45 - 65 jaar
  • 65+ jaar

Bewoners in de straat

Man
Vrouw
  • Man
  • Vrouw

      Documenten

      Voor alle documenten van deze woning willen we je graag doorverwijzen naar Move.nl.

      Inloggen MOVE.NL

      Aankoopmakelaar

      Hulp nodig bij de aankoop?
      Onze aankoopmakelaars helpen graag

      Aankoopmakelaar
      Dit veld is bedoeld voor validatiedoeleinden en moet niet worden gewijzigd.
      Dit veld is bedoeld voor validatiedoeleinden en moet niet worden gewijzigd.

      "*" geeft vereiste velden aan

      "*" geeft vereiste velden aan

      Dit veld is bedoeld voor validatiedoeleinden en moet niet worden gewijzigd.
      Dit veld is bedoeld voor validatiedoeleinden en moet niet worden gewijzigd.
      Ik wil graag meer informatie ontvangen over(Vereist)
      Dit veld is bedoeld voor validatiedoeleinden en moet niet worden gewijzigd.
      Dit veld is verborgen bij het bekijken van het formulier

      Februari 2026

      Ma Di Wo Do Vr Za Zo
      1
      2 3 4 5 6 7 8
      9 10 11 12 13 14 15
      16 17 18 19 20 21 22
      23 24 25 26 27 28

      9 Februari 2026

      10 Februari 2026

      11 Februari 2026

      12 Februari 2026

      13 Februari 2026

      14 Februari 2026

      16 Februari 2026

      17 Februari 2026

      18 Februari 2026

      19 Februari 2026

      20 Februari 2026

      21 Februari 2026

      23 Februari 2026

      24 Februari 2026

      25 Februari 2026

      26 Februari 2026

      27 Februari 2026

      28 Februari 2026

      De afspraak is nog niet definitief. We nemen binnenkort contact met je op om de afspraak te bevestigen.

      "*" geeft vereiste velden aan

      Dit veld is bedoeld voor validatiedoeleinden en moet niet worden gewijzigd.

      "*" geeft vereiste velden aan

      Dit veld is bedoeld voor validatiedoeleinden en moet niet worden gewijzigd.
      Waar wil je een plek voor reserveren?

      "*" geeft vereiste velden aan

      Dit veld is bedoeld voor validatiedoeleinden en moet niet worden gewijzigd.
      Geen titel

      "*" geeft vereiste velden aan

      Dit veld is bedoeld voor validatiedoeleinden en moet niet worden gewijzigd.
      Waar wil je een afspraak voor?*

      De aanmelding komt ten goede van : Von Leibnizstraat 2B, Schiedam

      "*" geeft vereiste velden aan

      Dit veld is bedoeld voor validatiedoeleinden en moet niet worden gewijzigd.
      Dit veld is bedoeld voor validatiedoeleinden en moet niet worden gewijzigd.
      Dit veld is verborgen bij het bekijken van het formulier
      Dit veld is verborgen bij het bekijken van het formulier

      Februari 2026

      Ma Di Wo Do Vr Za Zo
      1
      2 3 4 5 6 7 8
      9 10 11 12 13 14 15
      16 17 18 19 20 21 22
      23 24 25 26 27 28

      9 Februari 2026

      10 Februari 2026

      11 Februari 2026

      12 Februari 2026

      13 Februari 2026

      14 Februari 2026

      16 Februari 2026

      17 Februari 2026

      18 Februari 2026

      19 Februari 2026

      20 Februari 2026

      21 Februari 2026

      23 Februari 2026

      24 Februari 2026

      25 Februari 2026

      26 Februari 2026

      27 Februari 2026

      28 Februari 2026

      Dit veld is bedoeld voor validatiedoeleinden en moet niet worden gewijzigd.

      "*" geeft vereiste velden aan

      Dit veld is bedoeld voor validatiedoeleinden en moet niet worden gewijzigd.

      Adres te taxeren woning

      Soort woning
      Doel van taxatie

      Binnen welke periode moet de taxatie worden uitgevoerd?
      MM slash DD slash JJJJ
      MM slash DD slash JJJJ

      "*" geeft vereiste velden aan

      Dit veld is bedoeld voor validatiedoeleinden en moet niet worden gewijzigd.

      "*" geeft vereiste velden aan

      Dit veld is bedoeld voor validatiedoeleinden en moet niet worden gewijzigd.
      Ik heb interesse in:*

      "*" geeft vereiste velden aan

      Dit veld is bedoeld voor validatiedoeleinden en moet niet worden gewijzigd.
      Adres*

      "*" geeft vereiste velden aan

      Dit veld is bedoeld voor validatiedoeleinden en moet niet worden gewijzigd.