Omschrijving

Instapklare hoekmaisonnette met inpandige garage en vernieuwde badkamer

Welkom bij Vuurdoornpark 14 in Zoetermeer – een instapklare en karakteristieke hoekmaisonnette, gebouwd onder architectuur van Carel Weber. Deze woning is recent vrijwel volledig opgeknapt: strak gestucte wanden en plafonds, nieuw laminaat, opnieuw beklede trap, een moderne badkamer én een vernieuwd toilet. Met een royale inpandige garage, twee volwaardige slaapkamers en de mogelijkheid om op de begane grond te slapen, is dit een veelzijdige woning die zowel…

Lees meer

Kenmerken

  • Status Beschikbaar
  • Vraagprijs € 450.000 kosten koper Hypotheek berekenen
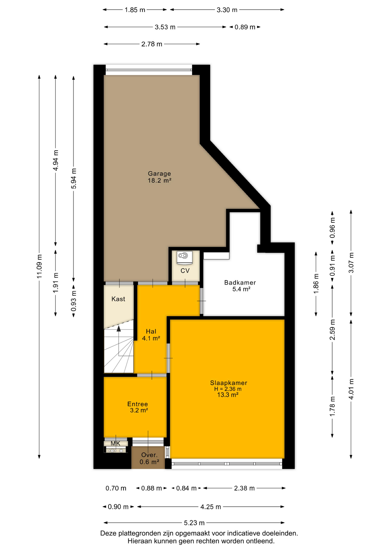
  • Woonoppervlakte ca. 87 m2
  • Aantal slaapkamers 2
  • Bouwjaar 1980
Meer kenmerken

Vragen of even
binnenkijken?

Neem vrijblijvend contact
op met Ferdi Bennemeer

Meer kans maken?

Laat zien dat je financieel sterk staat!
Met een KopersPaspoort© toon je aan dat je snel kunt schakelen. Meer kans op jouw droomhuis!

Open Woningwaarde Dag

Benieuwd naar de waarde van je huis? Maak gebruik van een gratis waardebepaling tijdens onze Open Woningwaarde Dag!

Tijdens de Open Woningwaarde Dag komen we langs om binnen 20 minuten de waarde van jouw huis te bepalen.

ONLINE ZOEKSERVICE

Door een gratis zoekprofiel aan te maken krijg je voortaan ál het nieuwe huizenaanbod van álle makelaars direct in je mailbox, vaak al voordat het op Funda staat.

Instapklare hoekmaisonnette met inpandige garage en vernieuwde badkamer

Welkom bij Vuurdoornpark 14 in Zoetermeer – een instapklare en karakteristieke hoekmaisonnette, gebouwd onder architectuur van Carel Weber. Deze woning is recent vrijwel volledig opgeknapt: strak gestucte wanden en plafonds, nieuw laminaat, opnieuw beklede trap, een moderne badkamer én een vernieuwd toilet. Met een royale inpandige garage, twee volwaardige slaapkamers en de mogelijkheid om op de begane grond te slapen, is dit een veelzijdige woning die zowel geschikt is voor starters, doorstromers als mensen die comfortabel willen wonen.

De woning ligt aan een rustig en groen stadspark en beschikt over een ruim balkon op het zuiden met een vrij uitzicht op Park Seghwaert. Dankzij de hoekligging en het optimale lichtinval is dit een heerlijke, frisse en instapklare woonomgeving.

HIGHLIGHTS
+ Instapklare hoekmaisonnette
+ Inpandige garage met elektra, water en verwarming
+ Recent volledig opgeknapt (keuken uitgezonderd)

BEGANE GROND
De entree bevindt zich direct aan de achterzijde. De woning heeft een eigen toegang op de begane grond en beschikt over een royale inpandige garage die zowel via buiten als via de woning toegankelijk is. Dit maakt het ideaal voor hobbyruimte, werken aan huis of het stallen van een auto of motor.

Via de hal en trapopgang bereik je direct alle functionele ruimtes. Aan de voorzijde bevindt zich slaapkamer 1, waardoor slapen op de begane grond moeiteloos mogelijk is. In de vaste kast naast de trap bevindt zich de stookruimte met Cv-installatie. Aan de achterzijde vind je de interne doorgang naar de ruime inpandige garage, voorzien van elektra, verwarming en water – een uitzonderlijke plus voor wie extra werkruimte zoekt.

De recent compleet vernieuwde badkamer is een echte eyecatcher: strak afgewerkt en uitgerust met een inloopdouche, ligbad, toilet en wastafelmeubel, uitgevoerd in een neutrale, moderne kleurstelling.

EERSTE VERDIEPING
De ruime woonkamer valt direct op door de heerlijke lichtinval en het vrije uitzicht op het groen. De grote aluminium schuifpui geeft toegang tot het balkon op het zuiden, een fantastische plek om te genieten van zon en rust met zicht op Park Seghwaert.

Aan de achterzijde bevindt zich de keuken, voorzien van inbouwapparatuur en met ruimte om een gezellige eetplek te creëren. Daarnaast bevindt zich hier slaapkamer 2, ideaal als master bedroom, werk- of logeerkamer. Het recent vernieuwd toilet op deze verdieping maakt het plaatje compleet.

Klinkt dit als jouw ideale thuis? Loop alvast in 3D door de woning om alle ruimtes te bekijken en maak snel een afspraak voor een bezichtiging!

PLUSPUNTEN
+ Instapklare hoekmaisonnette
+ Inpandige garage met elektra, water en verwarming
+ Gerenoveerde badkamer met inloopdouche, ligbad en wastafel
+ Woonkamer met veel licht en vrij uitzicht
+ Nieuw toilet, nieuwe vloeren en wanden/plafonds volledig gestuct
+ Mogelijkheid voor slapen op de begane grond
+ Ruim balkon op het zuiden met vrij uitzicht op park Seghwaert
+ Kunststof kozijnen en aluminium schuifpui
+ Per direct beschikbaar
+ Actieve VvE
+ Rustige, groene ligging aan wijkpark

BIJZONDERHEDEN
> Ouderdoms- en asbestclausule zijn van toepassing

OMGEVING
Benieuwd naar de omgeving? Bekijk alle voorzieningen onder het kopje ‘In de buurt’!

INTERESSE? Dan nodigen we je uit om contact met ons op te nemen. We vertellen je graag meer over deze woning en zorgen ervoor dat je overige stukken en algemene voorwaarden verkopend makelaar digitaal via jouw persoonlijke Move account kunt bekijken.

ONZE TIP
Aankopen? Schakel jouw eigen NVM-aankoopmakelaar in! De NVM-aankoopmakelaar komt op voor jouw belang en bespaart je veel tijd, geld en zorgen. Adressen van collega NVM-aankoopmakelaars vind je op Funda.

De gegeven informatie is met zorgvuldigheid opgesteld, aan de juistheid kunnen echter geen rechten worden ontleend. Alle verstrekte informatie moet beschouwd worden als een uitnodiging tot het doen van een aanbod of om in onderhandeling te treden.

Vragen of even
binnenkijken?

Neem vrijblijvend contact
op met Ferdi Bennemeer

Meer kans maken?

Laat zien dat je financieel sterk staat!
Met een KopersPaspoort© toon je aan dat je snel kunt schakelen. Meer kans op jouw droomhuis!

Open Woningwaarde Dag

Benieuwd naar de waarde van je huis? Maak gebruik van een gratis waardebepaling tijdens onze Open Woningwaarde Dag!

Tijdens de Open Woningwaarde Dag komen we langs om binnen 20 minuten de waarde van jouw huis te bepalen.

ONLINE ZOEKSERVICE

Door een gratis zoekprofiel aan te maken krijg je voortaan ál het nieuwe huizenaanbod van álle makelaars direct in je mailbox, vaak al voordat het op Funda staat.

Overdracht

  • Status Beschikbaar
  • Vraagprijs € 450.000,- kosten koper Hypotheek berekenen
  • Aanvaarding In overleg

Bouwvorm

  • Bouwjaar 1980
  • Soort bouw Appartement
  • Ligging Aan park, in woonwijk, vrij uitzicht

Indeling

  • Woonoppervlakte 87m2
  • Inhoud 357m2
  • Aantal kamers 3 kamers
  • Aantal slaapkamers 2
  • Aantal badkamers 1 badkamer
  • Badkamervoorzieningen Ligbad, toilet, wastafel, inloopdouche
  • Aantal woonlagen 2 woonlagen
  • Overige inpandige ruimte ca. 21m2

Energie & Installatie

  • Energielabel C
  • Isolatie Muurisolatie, dubbel glas
  • Verwarming Cv ketel
  • Warm water Cv ketel
  • C.v.-ketel type Gas
  • C.v.-ketel bouwjaar 2018
  • Energie einddatum 2030-12-27

Parkeergelegenheid

  • Parkeerfaciliteiten Openbaar parkeren
  • Garage Inpandig

Overig

  • Onderhoud binnen Uitstekend
  • Onderhoud buiten Goed
  • VVE Bijdrage € 123
  • Bijzonderheden Gedeeltelijk gestoffeerd
  • Permanente bewoning Ja
  • Huidig gebruik Woonruimte
  • Huidige bestemming Woonruimte

Voorzieningen

  • Voorzieningen Mechanische ventilatie, tv kabel, schuifpui, glasvezel kabel

Kadastrale gegevens

  • Gemeente Zegwaard
  • Sectie B
  • Eigendom Volle eigendom
  • Perceelnummer 2588
  • Index 33

Extra

Burgerlijke staat

Gehuwd
Ongehuwd
Gescheiden
Verweduwd
  • Gehuwd
  • Ongehuwd
  • Gescheiden
  • Verweduwd

Leeftijd in gemeente

0 - 15 jaar
15 - 25 jaar
25-45 jaar
45 - 65 jaar
65+ jaar
  • 0 - 15 jaar
  • 15 - 25 jaar
  • 25 - 45 jaar
  • 45 - 65 jaar
  • 65+ jaar

Gezinnen met kinderen

Met kinderen
Zonder kinderen
Alleenstaand
  • Met kinderen
  • Zonder kinderen
  • Alleenstaand

Leeftijd buurtbewoners

0 - 15 jaar
15 - 25 jaar
25-45 jaar
45 - 65 jaar
65+ jaar
  • 0 - 15 jaar
  • 15 - 25 jaar
  • 25 - 45 jaar
  • 45 - 65 jaar
  • 65+ jaar

Bewoners in de straat

Man
Vrouw
  • Man
  • Vrouw

      Documenten

      Voor alle documenten van deze woning willen we je graag doorverwijzen naar Move.nl.

      Inloggen MOVE.NL

      Aankoopmakelaar

      Hulp nodig bij de aankoop?
      Onze aankoopmakelaars helpen graag

      Aankoopmakelaar
      Dit veld is bedoeld voor validatiedoeleinden en moet niet worden gewijzigd.
      Dit veld is bedoeld voor validatiedoeleinden en moet niet worden gewijzigd.

      "*" geeft vereiste velden aan

      "*" geeft vereiste velden aan

      Dit veld is bedoeld voor validatiedoeleinden en moet niet worden gewijzigd.
      Dit veld is bedoeld voor validatiedoeleinden en moet niet worden gewijzigd.
      Ik wil graag meer informatie ontvangen over(Vereist)
      Dit veld is bedoeld voor validatiedoeleinden en moet niet worden gewijzigd.
      Dit veld is verborgen bij het bekijken van het formulier

      December 2025

      Ma Di Wo Do Vr Za Zo
      1 2 3 4 5 6 7
      8 9 10 11 12 13 14
      15 16 17 18 19 20 21
      22 23 24 25 26 27 28
      29 30 31

      8 December 2025

      9 December 2025

      10 December 2025

      11 December 2025

      12 December 2025

      13 December 2025

      15 December 2025

      16 December 2025

      17 December 2025

      18 December 2025

      19 December 2025

      20 December 2025

      22 December 2025

      23 December 2025

      24 December 2025

      25 December 2025

      26 December 2025

      27 December 2025

      29 December 2025

      30 December 2025

      31 December 2025

      De afspraak is nog niet definitief. We nemen binnenkort contact met je op om de afspraak te bevestigen.

      "*" geeft vereiste velden aan

      Dit veld is bedoeld voor validatiedoeleinden en moet niet worden gewijzigd.

      "*" geeft vereiste velden aan

      Dit veld is bedoeld voor validatiedoeleinden en moet niet worden gewijzigd.
      Waar wil je een plek voor reserveren?

      "*" geeft vereiste velden aan

      Dit veld is bedoeld voor validatiedoeleinden en moet niet worden gewijzigd.
      Geen titel

      "*" geeft vereiste velden aan

      Dit veld is bedoeld voor validatiedoeleinden en moet niet worden gewijzigd.
      Waar wil je een afspraak voor?*

      De aanmelding komt ten goede van : Vuurdoornpark 14, Zoetermeer

      "*" geeft vereiste velden aan

      Dit veld is bedoeld voor validatiedoeleinden en moet niet worden gewijzigd.
      Dit veld is bedoeld voor validatiedoeleinden en moet niet worden gewijzigd.
      Dit veld is verborgen bij het bekijken van het formulier
      Dit veld is verborgen bij het bekijken van het formulier

      December 2025

      Ma Di Wo Do Vr Za Zo
      1 2 3 4 5 6 7
      8 9 10 11 12 13 14
      15 16 17 18 19 20 21
      22 23 24 25 26 27 28
      29 30 31

      8 December 2025

      9 December 2025

      10 December 2025

      11 December 2025

      12 December 2025

      13 December 2025

      15 December 2025

      16 December 2025

      17 December 2025

      18 December 2025

      19 December 2025

      20 December 2025

      22 December 2025

      23 December 2025

      24 December 2025

      25 December 2025

      26 December 2025

      27 December 2025

      29 December 2025

      30 December 2025

      31 December 2025

      Dit veld is bedoeld voor validatiedoeleinden en moet niet worden gewijzigd.

      "*" geeft vereiste velden aan

      Dit veld is bedoeld voor validatiedoeleinden en moet niet worden gewijzigd.

      Adres te taxeren woning

      Soort woning
      Doel van taxatie

      Binnen welke periode moet de taxatie worden uitgevoerd?
      MM slash DD slash JJJJ
      MM slash DD slash JJJJ

      "*" geeft vereiste velden aan

      Dit veld is bedoeld voor validatiedoeleinden en moet niet worden gewijzigd.

      "*" geeft vereiste velden aan

      Dit veld is bedoeld voor validatiedoeleinden en moet niet worden gewijzigd.
      Ik heb interesse in:*

      "*" geeft vereiste velden aan

      Dit veld is bedoeld voor validatiedoeleinden en moet niet worden gewijzigd.
      Adres*

      "*" geeft vereiste velden aan

      Dit veld is bedoeld voor validatiedoeleinden en moet niet worden gewijzigd.