Omschrijving

Ruime gezinswoning met vijf slaapkamers en twee parkeerplaatsen

Op een rustig, autovrij hofje in het kindvriendelijke Oosterheem staat deze fijne tussenwoning met maar liefst vijf slaapkamers en een dakopbouw aan de achterzijde. De woning is volledig geïsoleerd, voorzien van energielabel A en daarmee helemaal klaar voor de toekomst.
Dankzij de twee eigen parkeerplaatsen achter de woning parkeer je altijd dichtbij. De ligging is ideaal: rustig wonen met alle voorzieningen in de buurt. Hier…

Lees meer

Kenmerken

  • Status Verkocht
  • Vraagprijs € 495.000 kosten koper Hypotheek berekenen
  • Woonoppervlakte ca. 138 m2
  • Aantal slaapkamers 5
  • Bouwjaar 2006
Meer kenmerken

Vragen of even
binnenkijken?

Neem vrijblijvend contact
op met Ferdi Bennemeer

Meer kans maken?

Laat zien dat je financieel sterk staat!
Met een KopersPaspoort© toon je aan dat je snel kunt schakelen. Meer kans op jouw droomhuis!

Open Woningwaarde Dag

Benieuwd naar de waarde van je huis? Maak gebruik van een gratis waardebepaling tijdens onze Open Woningwaarde Dag!

Tijdens de Open Woningwaarde Dag komen we langs om binnen 20 minuten de waarde van jouw huis te bepalen.

ONLINE ZOEKSERVICE

Door een gratis zoekprofiel aan te maken krijg je voortaan ál het nieuwe huizenaanbod van álle makelaars direct in je mailbox, vaak al voordat het op Funda staat.

Ruime gezinswoning met vijf slaapkamers en twee parkeerplaatsen

Op een rustig, autovrij hofje in het kindvriendelijke Oosterheem staat deze fijne tussenwoning met maar liefst vijf slaapkamers en een dakopbouw aan de achterzijde. De woning is volledig geïsoleerd, voorzien van energielabel A en daarmee helemaal klaar voor de toekomst.
Dankzij de twee eigen parkeerplaatsen achter de woning parkeer je altijd dichtbij. De ligging is ideaal: rustig wonen met alle voorzieningen in de buurt. Hier geniet je van comfort, ruimte én een veilige omgeving voor opgroeiende kinderen. Een ideale gezinswoning!

HIGHLIGHTS
+ Volledig geïsoleerde gezinswoning met energielabel A
+ Vijf slaapkamers en dakopbouw aan de achterzijde
+ Twee privéparkeerplaatsen achter de woning

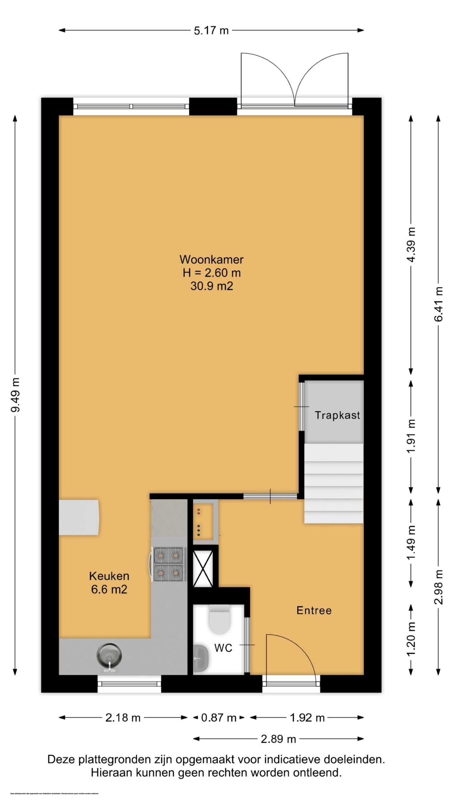
BEGANE GROND
Je komt binnen in een nette hal met meterkast (inclusief glasvezel), trapopgang en een kleurrijk betegeld toilet. De ruime en lichte woonkamer is voorzien van dubbele openslaande deuren naar de achtertuin en comfortabele vloerverwarming over de gehele begane grond. De open keuken aan de voorzijde beschikt over diverse inbouwapparatuur, waaronder een 6-pits gasfornuis, afzuigkap en vaatwasser.

1e VERDIEPING
Op deze verdieping bevinden zich twee ruime slaapkamers, allebei uitgerust met airco-units die zowel kunnen koelen als verwarmen. De royale slaapkamer aan de achterzijde is al tijdens de bouw vergroot en beschikt over elektrische rolluiken. Met een kleine aanpassing kan deze kamer eenvoudig weer worden opgesplitst in twee afzonderlijke slaapkamers.
De badkamer ligt aan de voorzijde en is kleurrijk betegeld, met een dubbele inloopdouche, toilet en wastafel.

2e VERDIEPING
Hier bevinden zich nog eens drie slaapkamers, ook voorzien van airco’s (koelen én verwarmen) en elektrische rolluiken. De slaapkamer aan de voorzijde heeft een klein dakkapel en toegang tot een praktische bergvliering.

BUITENRUIMTE
Aan de voorzijde ligt een kleine voortuin, uitkijkend op een rustige, autovrije straat met volop speelruimte voor kinderen. De achtertuin ligt op het zuidoosten, is onderhoudsvriendelijk aangelegd en voorzien van een elektrisch zonnescherm.
In de vrijstaande stenen berging (met elektra) berg je eenvoudig fietsen en tuinspullen op. Via de achterom bereik je de twee privéparkeerplaatsen.

Klinkt dit als jouw ideale thuis? Loop alvast in 3D door de woning om alle ruimtes te bekijken en maak snel een afspraak voor een bezichtiging!

PLUSPUNTEN
+ Energielabel A
+ Vijf slaapkamers, met mogelijkheid tot zes
+ Dakopbouw aan de achterzijde
+ Begane grond met vloerverwarming
+ Airco’s in alle slaapkamers (koelen én verwarmen)
+ Elektrische rolluiken aanwezig
+ Ruime achtertuin op het zuidoosten
+ Twee parkeerplaatsen op eigen terrein
+ Voorzien van luchtwarmtepomp
+ Warmteterugwinsysteem (WTW) aanwezig
+ Volledig geïsoleerd
+ Autovrije ligging met speelgelegenheid voor de deur
+ Gelegen in de populaire en kindvriendelijke wijk Oosterheem

BIJZONDERHEDEN
> Bijdrage mandelig terrein ca. € 20,- per maand.

Ouderdomsclausule is van toepassing.

Persoonlijke note verkopers:

"Wat maakt de woning zo fijn om in te wonen?
Ons huis aan de Waarderstraat 164 is een plek waar we ons altijd thuis hebben gevoeld. Het is licht, ruim en heeft een warme, uitnodigende sfeer. Een van de grootste pluspunten is de airconditioning die we in elke kamer hebben laten aanleggen.
In de zomermaanden hield het ons huis heerlijk koel – ik herinner me nog hoe we op zwoele avonden met een drankje in de tuin zaten, wetende dat het binnen aangenaam bleef. In de winter gebruikten we de airco om de kamers te verwarmen, een uitkomst voor de koukleumen onder ons. Dit huis biedt precies het comfort en de ruimte die het zo fijn maken om in te wonen.

Waarom hebben wij gekozen voor de woning?
We kochten dit huis als nieuwbouw, wat voor ons een droom was: een kans om een huis helemaal eigen te maken. De moderne basis en de mogelijkheden om de ruimte naar onze wensen in te richten, spraken ons meteen aan. We zagen direct hoe we hier ons leven konden opbouwen, met ruimte voor ons gezin, werk en ontspanning.
Het was een blanco canvas, en we hebben er met veel plezier ons thuis van gemaakt.

Waar zijn wij het meest trots op?
We zijn ontzettend trots op de aanpassingen die dit huis zo uniek maken. Vanaf de bouw hebben we de zolder laten optrekken, waardoor er drie ruime kamers zijn ontstaan. Een van deze kamers gebruiken we als werkkamer, wat thuiswerken echt een plezier maakt – een rustige, lichte ruimte waar je je goed kunt concentreren.
Daarnaast hebben we de ouderslaapkamer vergroot door twee kamers samen te voegen, wat een heerlijke, royale ruimte oplevert waar we na een lange dag altijd tot rust kwamen. De airconditioning in elke kamer is ook een grote trots: het houdt het huis het hele jaar door comfortabel, of het nu warm of koud is.
Deze aanpassingen maken ons huis extra bijzonder, en we hopen dat de nieuwe bewoners er net zo van zullen genieten.

Waarom voelen wij ons thuis in de wijk?
De buurt rond de Waarderstraat voelt als een warme, gezellige gemeenschap. De buren zijn vriendelijk – van een spontaan praatje over de schutting tot samen een buurtbarbecue organiseren. Alles wat je nodig hebt, is dichtbij: een supermarkt om de hoek, een park waar we vaak wandelden, en goede verbindingen naar het centrum van Zoetermeer.
Voor ons was dit de perfecte plek om ons leven op te bouwen, en we hopen dat de nieuwe bewoners hier net zo thuis zullen voelen.

We laten dit huis achter met een glimlach en wensen de nieuwe bewoners alle geluk in dit warme, comfortabele thuis!"

OMGEVING
Benieuwd naar de omgeving? Bekijk alle voorzieningen onder het kopje ‘In de buurt’!

INTERESSE?
Dan nodigen we je uit om contact met ons op te nemen. We vertellen je graag meer over deze woning en zorgen ervoor dat je overige stukken en algemene voorwaarden verkopend makelaar digitaal via jouw persoonlijke Move account kunt bekijken.

ONZE TIP
Aankopen? Schakel jouw eigen NVM-aankoopmakelaar in! De NVM-aankoopmakelaar komt op voor jouw belang en bespaart je veel tijd, geld en zorgen. Adressen van collega NVM-aankoopmakelaars vind je op Funda.

De gegeven informatie is met zorgvuldigheid opgesteld, aan de juistheid kunnen echter geen rechten worden ontleend. Alle verstrekte informatie moet beschouwd worden als een uitnodiging tot het doen van een aanbod of om in onderhandeling te treden.

Vragen of even
binnenkijken?

Neem vrijblijvend contact
op met Ferdi Bennemeer

Meer kans maken?

Laat zien dat je financieel sterk staat!
Met een KopersPaspoort© toon je aan dat je snel kunt schakelen. Meer kans op jouw droomhuis!

Open Woningwaarde Dag

Benieuwd naar de waarde van je huis? Maak gebruik van een gratis waardebepaling tijdens onze Open Woningwaarde Dag!

Tijdens de Open Woningwaarde Dag komen we langs om binnen 20 minuten de waarde van jouw huis te bepalen.

ONLINE ZOEKSERVICE

Door een gratis zoekprofiel aan te maken krijg je voortaan ál het nieuwe huizenaanbod van álle makelaars direct in je mailbox, vaak al voordat het op Funda staat.

Overdracht

  • Status Verkocht
  • Vraagprijs € 495.000,- kosten koper Hypotheek berekenen
  • Aanvaarding In overleg

Bouwvorm

  • Soort object Tussenwoning
  • Soort woning Eengezinswoning
  • Bouwjaar 2006
  • Soort bouw Woonhuis
  • Ligging Aan rustige weg, in woonwijk

Indeling

  • Woonoppervlakte 138m2
  • Perceeloppervlakte 146m2
  • Gebouwgebonden buitenruimte 8m2
  • Inhoud 494m2
  • Aantal kamers 6 kamers
  • Aantal slaapkamers 5
  • Aantal badkamers 1 badkamer
  • Badkamervoorzieningen Toilet, wastafel, inloopdouche
  • Aantal woonlagen 3 woonlagen
  • Externe bergruimte ca. 8m2

Energie & Installatie

  • Energielabel A
  • Isolatie Volledig geisoleerd, hr glas
  • Verwarming Cv ketel, hete lucht verwarming
  • Warm water Cv ketel
  • C.v.-ketel type Gas
  • C.v.-ketel bouwjaar 2005
  • Energie einddatum 2035-06-11

Bergruimte

  • Schuur / berging Vrijstaand steen
  • Aantal schuren / bergingen 1
  • Voorzieningen Voorzien van elektra

Parkeergelegenheid

  • Parkeerfaciliteiten Op eigen terrein
  • Garage Geen garage

Dak

  • Soort dak Samengesteld dak

Overig

  • Onderhoud binnen Goed
  • Onderhoud buiten Goed
  • Bijzonderheden Gedeeltelijk gestoffeerd
  • Permanente bewoning Ja
  • Huidig gebruik Woonruimte
  • Huidige bestemming Woonruimte

Voorzieningen

  • Voorzieningen Mechanische ventilatie, rolluiken, tv kabel, buitenzonwering, airconditioning, glasvezel kabel, balansventilatie

Buitenruimte

  • Hoofdtuin Achtertuin
  • Oppervlakte hoofdtuin ca. 54m2
  • Ligging hoofdtuin Zuidoost
  • Kwaliteit tuin Verzorgd

Kadastrale gegevens

  • Gemeente Zegwaard
  • Sectie F
  • Eigendom Volle eigendom
  • Perceelnummer 3153
  • Perceeloppervlakte 146

Extra

Burgerlijke staat

Gehuwd
Ongehuwd
Gescheiden
Verweduwd
  • Gehuwd
  • Ongehuwd
  • Gescheiden
  • Verweduwd

Leeftijd in gemeente

0 - 15 jaar
15 - 25 jaar
25-45 jaar
45 - 65 jaar
65+ jaar
  • 0 - 15 jaar
  • 15 - 25 jaar
  • 25 - 45 jaar
  • 45 - 65 jaar
  • 65+ jaar

Gezinnen met kinderen

Met kinderen
Zonder kinderen
Alleenstaand
  • Met kinderen
  • Zonder kinderen
  • Alleenstaand

Leeftijd buurtbewoners

0 - 15 jaar
15 - 25 jaar
25-45 jaar
45 - 65 jaar
65+ jaar
  • 0 - 15 jaar
  • 15 - 25 jaar
  • 25 - 45 jaar
  • 45 - 65 jaar
  • 65+ jaar

Bewoners in de straat

Man
Vrouw
  • Man
  • Vrouw

      Documenten

      Voor alle documenten van deze woning willen we je graag doorverwijzen naar Move.nl.

      Inloggen MOVE.NL

      Aankoopmakelaar

      Hulp nodig bij de aankoop?
      Onze aankoopmakelaars helpen graag

      Aankoopmakelaar
      Dit veld is bedoeld voor validatiedoeleinden en moet niet worden gewijzigd.
      Dit veld is bedoeld voor validatiedoeleinden en moet niet worden gewijzigd.

      "*" geeft vereiste velden aan

      "*" geeft vereiste velden aan

      Dit veld is bedoeld voor validatiedoeleinden en moet niet worden gewijzigd.
      Dit veld is bedoeld voor validatiedoeleinden en moet niet worden gewijzigd.
      Ik wil graag meer informatie ontvangen over(Vereist)
      Dit veld is bedoeld voor validatiedoeleinden en moet niet worden gewijzigd.
      Dit veld is verborgen bij het bekijken van het formulier

      Oktober 2025

      Ma Di Wo Do Vr Za Zo
      1 2 3 4 5
      6 7 8 9 10 11 12
      13 14 15 16 17 18 19
      20 21 22 23 24 25 26
      27 28 29 30 31

      20 Oktober 2025

      21 Oktober 2025

      22 Oktober 2025

      23 Oktober 2025

      24 Oktober 2025

      25 Oktober 2025

      27 Oktober 2025

      28 Oktober 2025

      29 Oktober 2025

      30 Oktober 2025

      31 Oktober 2025

      De afspraak is nog niet definitief. We nemen binnenkort contact met je op om de afspraak te bevestigen.

      "*" geeft vereiste velden aan

      Dit veld is bedoeld voor validatiedoeleinden en moet niet worden gewijzigd.

      "*" geeft vereiste velden aan

      Dit veld is bedoeld voor validatiedoeleinden en moet niet worden gewijzigd.
      Waar wil je een plek voor reserveren?

      "*" geeft vereiste velden aan

      Dit veld is bedoeld voor validatiedoeleinden en moet niet worden gewijzigd.
      Geen titel

      "*" geeft vereiste velden aan

      Dit veld is bedoeld voor validatiedoeleinden en moet niet worden gewijzigd.
      Waar wil je een afspraak voor?*

      De aanmelding komt ten goede van : Waarderstraat 164, Zoetermeer

      "*" geeft vereiste velden aan

      Dit veld is bedoeld voor validatiedoeleinden en moet niet worden gewijzigd.
      Dit veld is bedoeld voor validatiedoeleinden en moet niet worden gewijzigd.
      Dit veld is verborgen bij het bekijken van het formulier
      Dit veld is verborgen bij het bekijken van het formulier

      Oktober 2025

      Ma Di Wo Do Vr Za Zo
      1 2 3 4 5
      6 7 8 9 10 11 12
      13 14 15 16 17 18 19
      20 21 22 23 24 25 26
      27 28 29 30 31

      20 Oktober 2025

      21 Oktober 2025

      22 Oktober 2025

      23 Oktober 2025

      24 Oktober 2025

      25 Oktober 2025

      27 Oktober 2025

      28 Oktober 2025

      29 Oktober 2025

      30 Oktober 2025

      31 Oktober 2025

      Dit veld is bedoeld voor validatiedoeleinden en moet niet worden gewijzigd.

      "*" geeft vereiste velden aan

      Dit veld is bedoeld voor validatiedoeleinden en moet niet worden gewijzigd.

      Adres te taxeren woning

      Soort woning
      Doel van taxatie

      Binnen welke periode moet de taxatie worden uitgevoerd?
      MM slash DD slash JJJJ
      MM slash DD slash JJJJ

      "*" geeft vereiste velden aan

      Dit veld is bedoeld voor validatiedoeleinden en moet niet worden gewijzigd.

      "*" geeft vereiste velden aan

      Dit veld is bedoeld voor validatiedoeleinden en moet niet worden gewijzigd.
      Ik heb interesse in:*

      "*" geeft vereiste velden aan

      Dit veld is bedoeld voor validatiedoeleinden en moet niet worden gewijzigd.
      Adres*

      "*" geeft vereiste velden aan

      Dit veld is bedoeld voor validatiedoeleinden en moet niet worden gewijzigd.