Omschrijving

Zeer charmante en sfeervolle woning nabij centrum!

Deze zeer charmante en sfeervolle hoekwoning is verrassend ruim en gelegen in een van de leukste straatjes van de Oostwijk te Vlaardingen. De halfvrijstaande 4-kamerwoning ademt sfeer en karakter en beschikt nog over mooie, originele details van weleer. Achter de woning ligt een heerlijke stadstuin op het westen, waar je tot in de avond van de zon kunt genieten.
Verder is de woning gelegen in de tot…

Lees meer

Kenmerken

  • Status Beschikbaar
  • Vraagprijs € 475.000 kosten koper Hypotheek berekenen
  • Woonoppervlakte ca. 108 m2
  • Aantal slaapkamers 3
  • Bouwjaar 1897
Meer kenmerken

Vragen of even
binnenkijken?

Neem vrijblijvend contact
op met Koen van Schooten

Meer kans maken?

Laat zien dat je financieel sterk staat!
Met een KopersPaspoort© toon je aan dat je snel kunt schakelen. Meer kans op jouw droomhuis!

Open Woningwaarde Dag

Benieuwd naar de waarde van je huis? Maak gebruik van een gratis waardebepaling tijdens onze Open Woningwaarde Dag!

Tijdens de Open Woningwaarde Dag komen we langs om binnen 20 minuten de waarde van jouw huis te bepalen.

ONLINE ZOEKSERVICE

Door een gratis zoekprofiel aan te maken krijg je voortaan ál het nieuwe huizenaanbod van álle makelaars direct in je mailbox, vaak al voordat het op Funda staat.

Zeer charmante en sfeervolle woning nabij centrum!

Deze zeer charmante en sfeervolle hoekwoning is verrassend ruim en gelegen in een van de leukste straatjes van de Oostwijk te Vlaardingen. De halfvrijstaande 4-kamerwoning ademt sfeer en karakter en beschikt nog over mooie, originele details van weleer. Achter de woning ligt een heerlijke stadstuin op het westen, waar je tot in de avond van de zon kunt genieten.
Verder is de woning gelegen in de tot beschermd stadsgezicht aangewezen gebied, op steenworp afstand van het centrum van Vlaardingen en stadspark ’t Hof. Ook het metrostation richting Hoek van Holland en Rotterdam ligt op loopafstand. Een ideale combinatie van sfeervol en comfortabel wonen.

HIGHLIGHTS
+ Sfeervolle eengezinswoning met stadstuin op westen
+ Gemoderniseerde keuken en badkamer
+ Woonkamer met allesbrander en glas-in-lood

INDELING

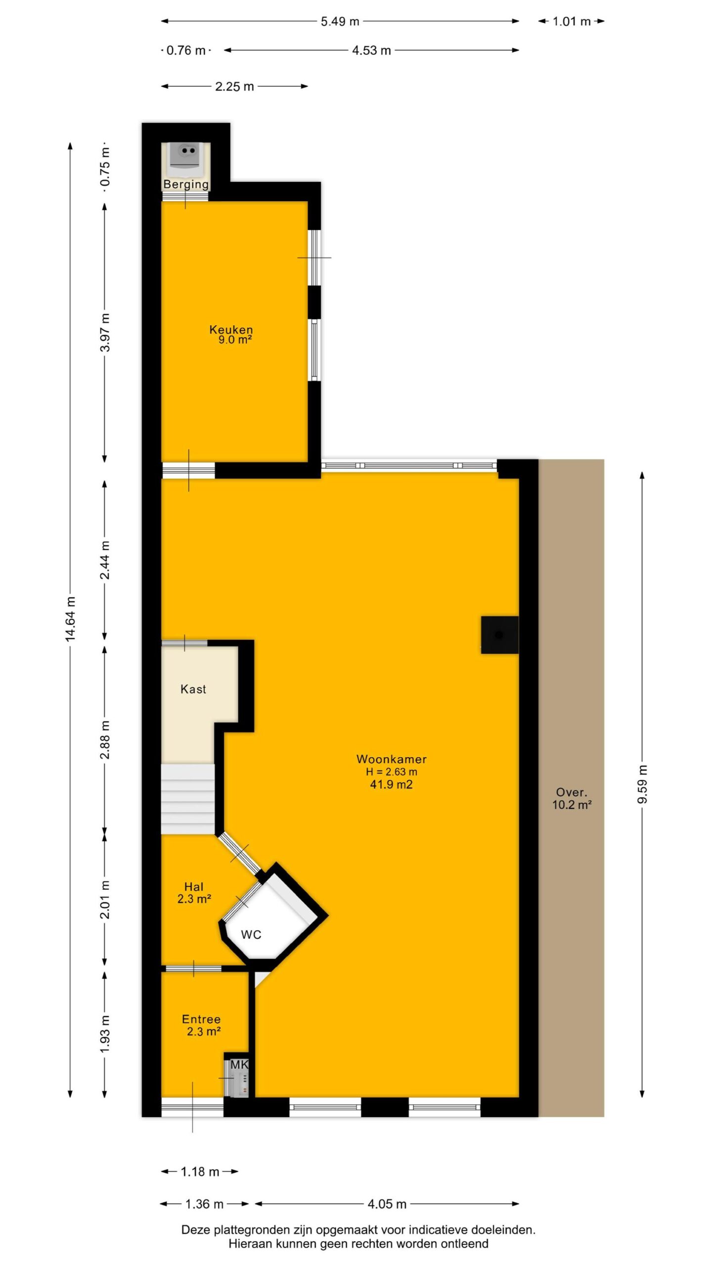
BEGANE GROND
Via het tochtportaal met tegelvloer kom je in de hal, waar zich de moderne meterkast, de toiletruimte en de trapopgang naar de bovenverdieping bevinden. De woonkamer is een echte sfeermaker: royaal van opzet en voorzien van een houten vloer, gestuukte wanden, glas-in-loodramen, een allesbrander en een diepe trapkast.
De hoge plafonds versterken het gevoel van ruimte en dragen bij aan de lichte, open uitstraling. De hoge plafonds versterken het gevoel van ruimte en dragen bij aan de lichte, open uitstraling.
Een plek waar je je direct thuis voelt. De keuken is bereikbaar via een schuifdeur en bevindt zich in de uitbouw aan de achterzijde. In 2024 is deze keuken volledig vernieuwd en uitgevoerd in twee delen, voorzien van diverse inbouwapparatuur. In een vaste kast zijn de cv-combiketel (2021) en de wasmachineaansluiting netjes weggewerkt.
De achtertuin is met veel gevoel voor sfeer aangelegd en biedt een fijne combinatie van sierbestrating, acaciabomen en zonwering. Daarnaast is er een houten chaletberging met elektra en verwarming en beschikt de tuin over een eigen overkapte steeg naar de straat. Een heerlijke, beschutte stadstuin waar het goed vertoeven is.

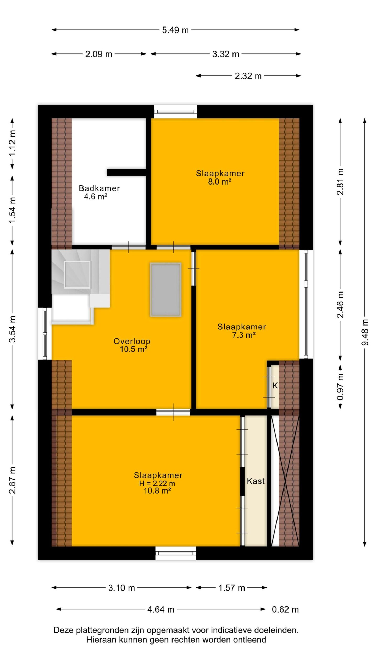
1e VERDIEPING
De ruime overloop is voorzien van een kunststof dakkapel en een lichtkoepel, wat zorgt voor veel daglicht. Hier is voldoende ruimte om een prettige werkplek te creëren. Vanuit de overloop is via een luik de bergvliering bereikbaar. De hoofdslaapkamer bevindt zich aan de voorzijde en is voorzien van een robuuste steigerhouten kastenwand.
Aan de zijkant van de woning ligt een slaapkamer met kunststof dakkapel en aan de achterzijde een derde slaapkamer met kunststof raam. De comfortabele badkamer, vernieuwd in 2019, is compleet uitgevoerd met een ligbad, aparte douche, wastafelmeubel en een tweede toilet.

VLIERING
Via een vlizotrap is de bergvliering bereikbaar. Deze strekt zich uit over de volledige diepte van de woning en heeft een nokhoogte van circa 1,35 meter – ideaal voor extra opslagruimte.

BUITENRUIMTE
De woning ligt in de karakteristieke Oostwijk, een door de gemeente aangewezen beschermd dorps- en stadsgezicht. Op loopafstand bevinden zich het wandelpark ’t Hof, het stadstheater en het gezellige centrum met een ruim aanbod aan restaurants en cafés. Met het openbaar vervoer ben je bovendien binnen korte tijd op het strand van Hoek van Holland of in hartje Rotterdam. Verder is het ook een kindvriendelijke buurt met scholen (voor de deur...) en opvang. De straten zijn veelal eenrichtingsverkeer, dus een stukje veiliger.
Kortom: een sfeervolle en complete woning op een toplocatie, waar comfortabel wonen en karakter perfect samenkomen.

Klinkt dit als jouw ideale thuis? Loop alvast in 3D door de woning om alle ruimtes te bekijken en maak snel een afspraak voor een bezichtiging!

PLUSPUNTEN
+ Energielabel C
+ Eeuwigdurend recht van erfpacht
+ Vaste lage canon van € 8,03 per jaar
+ Geheel voorzien van dubbelglas, deels kunststofkozijnen
+ Mooie sfeervolle detail als glas-in-lood
+ Keuken uit 2024
+ Badkamer uit 2019
+ CV-combiketel uit 2021
+ Fraaie stadstuin op het westen
+ Zeer gunstige ligging
+ Hoge plafonds op de begane grond
+ Kindvriendelijke woonomgeving

ouderdoms-, asbest en loodclausule zijn van toepassing

OMGEVING
Benieuwd naar de omgeving? Bekijk alle voorzieningen onder het kopje ‘In de buurt’!

INTERESSE?
Dan nodigen we je uit om contact met ons op te nemen. We vertellen je graag meer over deze woning en zorgen ervoor dat je overige stukken en algemene voorwaarden verkopend makelaar digitaal via jouw persoonlijke Move account kunt bekijken.

ONZE TIP
Aankopen? Schakel jouw eigen NVM-aankoopmakelaar in! De NVM-aankoopmakelaar komt op voor jouw belang en bespaart je veel tijd, geld en zorgen. Adressen van collega NVM-aankoopmakelaars vind je op Funda.

De gegeven informatie is met zorgvuldigheid opgesteld, aan de juistheid kunnen echter geen rechten worden ontleend. Alle verstrekte informatie moet beschouwd worden als een uitnodiging tot het doen van een aanbod of om in onderhandeling te treden.

Vragen of even
binnenkijken?

Neem vrijblijvend contact
op met Koen van Schooten

Meer kans maken?

Laat zien dat je financieel sterk staat!
Met een KopersPaspoort© toon je aan dat je snel kunt schakelen. Meer kans op jouw droomhuis!

Open Woningwaarde Dag

Benieuwd naar de waarde van je huis? Maak gebruik van een gratis waardebepaling tijdens onze Open Woningwaarde Dag!

Tijdens de Open Woningwaarde Dag komen we langs om binnen 20 minuten de waarde van jouw huis te bepalen.

ONLINE ZOEKSERVICE

Door een gratis zoekprofiel aan te maken krijg je voortaan ál het nieuwe huizenaanbod van álle makelaars direct in je mailbox, vaak al voordat het op Funda staat.

Overdracht

  • Status Beschikbaar
  • Vraagprijs € 475.000,- kosten koper Hypotheek berekenen
  • Aanvaarding In overleg

Bouwvorm

  • Soort object Hoekwoning
  • Soort woning Eengezinswoning
  • Bouwjaar 1897
  • Soort bouw Woonhuis
  • Ligging Aan rustige weg, in woonwijk

Indeling

  • Woonoppervlakte 108m2
  • Perceeloppervlakte 142m2
  • Gebouwgebonden buitenruimte 6m2
  • Inhoud 400m2
  • Aantal kamers 4 kamers
  • Aantal slaapkamers 3
  • Aantal woonlagen 3 woonlagen
  • Externe bergruimte ca. 6m2

Energie & Installatie

  • Energielabel C
  • Isolatie Dakisolatie, muurisolatie, vloerisolatie, dubbel glas, volledig geisoleerd
  • Verwarming Cv ketel
  • Warm water Cv ketel
  • C.v.-ketel type Gas
  • C.v.-ketel bouwjaar 2021
  • Energie einddatum 2028-11-15

Bergruimte

  • Schuur / berging Vrijstaand hout
  • Aantal schuren / bergingen 1
  • Voorzieningen Voorzien van elektra

Parkeergelegenheid

  • Parkeerfaciliteiten Betaald parkeren, parkeervergunningen
  • Garage Geen garage

Dak

  • Soort dak Zadeldak

Overig

  • Onderhoud binnen Goed tot uitstekend
  • Onderhoud buiten Goed tot uitstekend
  • Bijzonderheden Beschermd stads of dorpsgezicht
  • Permanente bewoning Ja
  • Huidig gebruik Woonruimte
  • Huidige bestemming Woonruimte

Voorzieningen

  • Voorzieningen Tv kabel, buitenzonwering, rookkanaal, dakraam

Buitenruimte

  • Hoofdtuin Achtertuin
  • Oppervlakte hoofdtuin ca. 77m2
  • Ligging hoofdtuin West
  • Kwaliteit tuin Verzorgd

Kadastrale gegevens

  • Gemeente Vlaardingen
  • Sectie B
  • Eigendom Erfpacht
  • Perceelnummer 9200
  • Perceeloppervlakte 142

Extra

Burgerlijke staat

Gehuwd
Ongehuwd
Gescheiden
Verweduwd
  • Gehuwd
  • Ongehuwd
  • Gescheiden
  • Verweduwd

Leeftijd in gemeente

0 - 15 jaar
15 - 25 jaar
25-45 jaar
45 - 65 jaar
65+ jaar
  • 0 - 15 jaar
  • 15 - 25 jaar
  • 25 - 45 jaar
  • 45 - 65 jaar
  • 65+ jaar

Gezinnen met kinderen

Met kinderen
Zonder kinderen
Alleenstaand
  • Met kinderen
  • Zonder kinderen
  • Alleenstaand

Leeftijd buurtbewoners

0 - 15 jaar
15 - 25 jaar
25-45 jaar
45 - 65 jaar
65+ jaar
  • 0 - 15 jaar
  • 15 - 25 jaar
  • 25 - 45 jaar
  • 45 - 65 jaar
  • 65+ jaar

Bewoners in de straat

Man
Vrouw
  • Man
  • Vrouw

      Documenten

      Voor alle documenten van deze woning willen we je graag doorverwijzen naar Move.nl.

      Inloggen MOVE.NL

      Aankoopmakelaar

      Hulp nodig bij de aankoop?
      Onze aankoopmakelaars helpen graag

      Aankoopmakelaar
      Dit veld is bedoeld voor validatiedoeleinden en moet niet worden gewijzigd.
      Dit veld is bedoeld voor validatiedoeleinden en moet niet worden gewijzigd.

      "*" geeft vereiste velden aan

      "*" geeft vereiste velden aan

      Dit veld is bedoeld voor validatiedoeleinden en moet niet worden gewijzigd.
      Dit veld is bedoeld voor validatiedoeleinden en moet niet worden gewijzigd.
      Ik wil graag meer informatie ontvangen over(Vereist)
      Dit veld is bedoeld voor validatiedoeleinden en moet niet worden gewijzigd.
      Dit veld is verborgen bij het bekijken van het formulier

      April 2026

      Ma Di Wo Do Vr Za Zo
      1 2 3 4 5
      6 7 8 9 10 11 12
      13 14 15 16 17 18 19
      20 21 22 23 24 25 26
      27 28 29 30

      13 April 2026

      14 April 2026

      15 April 2026

      16 April 2026

      17 April 2026

      18 April 2026

      20 April 2026

      21 April 2026

      22 April 2026

      23 April 2026

      24 April 2026

      25 April 2026

      27 April 2026

      28 April 2026

      29 April 2026

      30 April 2026

      De afspraak is nog niet definitief. We nemen binnenkort contact met je op om de afspraak te bevestigen.

      "*" geeft vereiste velden aan

      Dit veld is bedoeld voor validatiedoeleinden en moet niet worden gewijzigd.

      "*" geeft vereiste velden aan

      Dit veld is bedoeld voor validatiedoeleinden en moet niet worden gewijzigd.
      Waar wil je een plek voor reserveren?

      "*" geeft vereiste velden aan

      Dit veld is bedoeld voor validatiedoeleinden en moet niet worden gewijzigd.
      Geen titel

      "*" geeft vereiste velden aan

      Dit veld is bedoeld voor validatiedoeleinden en moet niet worden gewijzigd.
      Waar wil je een afspraak voor?*

      De aanmelding komt ten goede van : Wilhelminastraat 22, Vlaardingen

      "*" geeft vereiste velden aan

      Dit veld is bedoeld voor validatiedoeleinden en moet niet worden gewijzigd.
      Dit veld is bedoeld voor validatiedoeleinden en moet niet worden gewijzigd.

      April 2026

      Ma Di Wo Do Vr Za Zo
      1 2 3 4 5
      6 7 8 9 10 11 12
      13 14 15 16 17 18 19
      20 21 22 23 24 25 26
      27 28 29 30

      13 April 2026

      14 April 2026

      15 April 2026

      16 April 2026

      17 April 2026

      18 April 2026

      20 April 2026

      21 April 2026

      22 April 2026

      23 April 2026

      24 April 2026

      25 April 2026

      27 April 2026

      28 April 2026

      29 April 2026

      30 April 2026

      Dit veld is bedoeld voor validatiedoeleinden en moet niet worden gewijzigd.

      "*" geeft vereiste velden aan

      Dit veld is bedoeld voor validatiedoeleinden en moet niet worden gewijzigd.

      Adres te taxeren woning

      Soort woning
      Doel van taxatie

      Binnen welke periode moet de taxatie worden uitgevoerd?
      MM slash DD slash JJJJ
      MM slash DD slash JJJJ

      "*" geeft vereiste velden aan

      Dit veld is bedoeld voor validatiedoeleinden en moet niet worden gewijzigd.

      "*" geeft vereiste velden aan

      Dit veld is bedoeld voor validatiedoeleinden en moet niet worden gewijzigd.
      Ik heb interesse in:*

      "*" geeft vereiste velden aan

      Dit veld is bedoeld voor validatiedoeleinden en moet niet worden gewijzigd.
      Adres*

      "*" geeft vereiste velden aan

      Dit veld is bedoeld voor validatiedoeleinden en moet niet worden gewijzigd.