Omschrijving

Vrijstaande karakteristieke woning met speelse indeling op royaal perceel

Aan de geliefde Zegwaartseweg 162 in Zoetermeer staat deze vrijstaande, karakteristieke eengezinswoning op een uitzonderlijk groot perceel van ca. 806 m². Met vrij uitzicht aan de voorzijde over het Bentwoud, een speelse indeling en verrassend veel leefruimte is dit een woning met volop mogelijkheden.
De woning beschikt over drie slaapkamers op de begane grond, een royale woonkamer op de eerste verdieping, twee badkamers, twee keukens…

Lees meer

Kenmerken

  • Status Onder voorbehoud verkocht
  • Vraagprijs € 750.000 kosten koper Hypotheek berekenen
  • Woonoppervlakte ca. 143 m2
  • Aantal slaapkamers 4
  • Bouwjaar 1926
Meer kenmerken

Vragen of even
binnenkijken?

Neem vrijblijvend contact
op met Ferdi Bennemeer

Meer kans maken?

Laat zien dat je financieel sterk staat!
Met een KopersPaspoort© toon je aan dat je snel kunt schakelen. Meer kans op jouw droomhuis!

Open Woningwaarde Dag

Benieuwd naar de waarde van je huis? Maak gebruik van een gratis waardebepaling tijdens onze Open Woningwaarde Dag!

Tijdens de Open Woningwaarde Dag komen we langs om binnen 20 minuten de waarde van jouw huis te bepalen.

ONLINE ZOEKSERVICE

Door een gratis zoekprofiel aan te maken krijg je voortaan ál het nieuwe huizenaanbod van álle makelaars direct in je mailbox, vaak al voordat het op Funda staat.

Vrijstaande karakteristieke woning met speelse indeling op royaal perceel

Aan de geliefde Zegwaartseweg 162 in Zoetermeer staat deze vrijstaande, karakteristieke eengezinswoning op een uitzonderlijk groot perceel van ca. 806 m². Met vrij uitzicht aan de voorzijde over het Bentwoud, een speelse indeling en verrassend veel leefruimte is dit een woning met volop mogelijkheden.
De woning beschikt over drie slaapkamers op de begane grond, een royale woonkamer op de eerste verdieping, twee badkamers, twee keukens en een zeer ruime garage/werkplaats op het achtergelegen terrein. Dankzij de indeling is dubbele bewoning of gebruik als kangoeroe- of aanleunwoning goed denkbaar.
Een unieke kans voor wie ruim, vrij en naar eigen smaak wil wonen op een bijzondere locatie.

HIGHLIGHTS
+ Vrijstaande eengezinswoning met zeer ruime garage en werkplaats
+ Gelegen op een zeer groot perceel van ca. 806 m²
+ Speelse indeling met dubbele bewoningsmogelijkheden

BEGANE GROND
Entree aan de voorzijde met hal, meterkast en trapopgang naar de eerste verdieping. Op de begane grond bevindt zich een woonkamer met gezellige houtkachel en vaste bergkast, met toegang tot de zijtuin.
Daarnaast zijn hier drie slaapkamers gesitueerd:
- Een ruime slaapkamer aan de voorzijde
- Een tweede slaapkamer aan de zijkant
- Een derde slaapkamer aan de achterzijde met vaste bergkast
Aan de achterzijde is een eenvoudige keuken gerealiseerd in de voormalige badkamer, zonder inbouwapparatuur. Vanuit de achterhal bereik je de badkamer op de begane grond, voorzien van een wastafel, toilet, inloopdouche en opstelplaats voor de stookapparatuur.

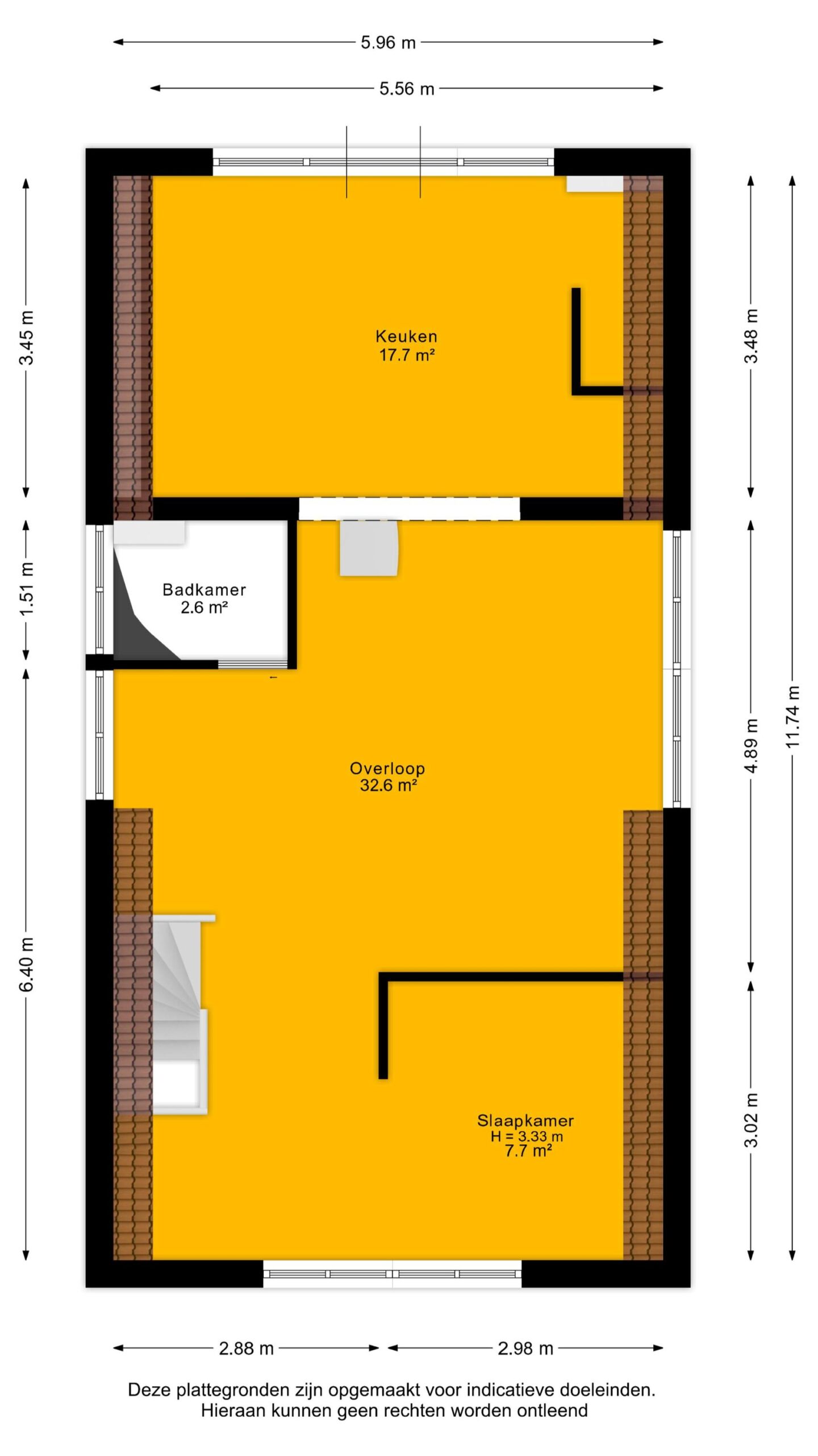
EERSTE VERDIEPING
Deze verdieping verrast door de ruimte en het licht. Aan de voorzijde bevindt zich een open ruimte met een open slaapkamer. De royale woonkamer strekt zich uit over de breedte van de woning en is aan beide zijden voorzien van een dakkapel, wat zorgt voor een prettige lichtinval.
De badkamer, vernieuwd in 2018, is uitgevoerd in smaakvolle grijstinten en beschikt over een toilet en een ruime inloopdouche.
Aan de achterzijde ligt de open L-vormige keuken, uitgerust met onder andere een oven en inductiekookplaat. Via openslaande deuren bereik je het balkon aan de achterzijde – een fijne plek om van de rust en ruimte te genieten.

BUITENRUIMTE
Rondom de woning ligt een royale tuin met volop groen, privacy en mogelijkheden. De voortuin grenst direct aan de Zegwaartseweg, terwijl de zijtuin een plek biedt om buiten te zitten.
Op het achtergelegen terrein bevindt zich een zeer ruime garage/schuur met vliering en opstelplaats voor wasapparatuur. De schuur is voorzien van een nieuw geïsoleerd dak en krachtstroom. Daarmee biedt het vele andere mogelijkheden zoals een werkplaats, atelier en studio. Hier zijn momenteel twee parkeerplaatsen aanwezig, met mogelijkheid om dit verder uit te breiden.
Het pad aan de zijkant van de woning dient als toegangsweg voor de achtergelegen woningen.

OMGEVING
De woning ligt in het oude, karaktervolle deel van Zoetermeer, vlak bij het uitgestrekte Bentwoud. Hier woon je in alle rust en groen, maar toch met alle voorzieningen binnen handbereik.
Op korte afstand vind je winkelcentra, scholen, sportverenigingen en horecagelegenheden. Ook ben je via de nabijgelegen N209 en A12 snel onderweg richting Den Haag, Leiden of Utrecht.
Dankzij de goede OV-verbindingen en de groene ligging combineer je hier het beste van twee werelden: landelijk wonen met stedelijk gemak.

Klinkt dit als jouw ideale thuis? Loop alvast in 3D door de woning om alle ruimtes te bekijken en maak snel een afspraak voor een bezichtiging!

PLUSPUNTEN
+ Vrijstaande eengezinswoning
+ Zeer groot perceel van ca. 806 m²
+ Speelse indeling met dubbele bewoningsmogelijkheden
+ 3 slaapkamers op de begane grond
+ Grote woonkamer op de eerste verdieping
+ Twee badkamers
+ Twee keukens
+ Zeer ruime garage en werkplaats
+ Vrij uitzicht over het Bentwoud
+ Karakteristiek mansarde pannendak
+ Dak- en vloerisolatie toegepast
+ Sanitair vernieuwd in 2018
+ Dubbele bewoning mogelijk en daarmee geschikt als kangoeroe- of aanleunwoning
+ Naar eigen smaak verder in te richten

> Ouderdoms- en asbestclausule zijn van toepassing

OMGEVING
Benieuwd naar de omgeving? Bekijk alle voorzieningen onder het kopje ‘In de buurt’!

INTERESSE?
Dan nodigen we je uit om contact met ons op te nemen. We vertellen je graag meer over deze woning en zorgen ervoor dat je overige stukken en algemene voorwaarden verkopend makelaar digitaal via jouw persoonlijke Move account kunt bekijken.

ONZE TIP
Aankopen? Schakel jouw eigen NVM-aankoopmakelaar in! De NVM-aankoopmakelaar komt op voor jouw belang en bespaart je veel tijd, geld en zorgen. Adressen van collega NVM-aankoopmakelaars vind je op Funda.

De gegeven informatie is met zorgvuldigheid opgesteld, aan de juistheid kunnen echter geen rechten worden ontleend. Alle verstrekte informatie moet beschouwd worden als een uitnodiging tot het doen van een aanbod of om in onderhandeling te treden.

Vragen of even
binnenkijken?

Neem vrijblijvend contact
op met Ferdi Bennemeer

Meer kans maken?

Laat zien dat je financieel sterk staat!
Met een KopersPaspoort© toon je aan dat je snel kunt schakelen. Meer kans op jouw droomhuis!

Open Woningwaarde Dag

Benieuwd naar de waarde van je huis? Maak gebruik van een gratis waardebepaling tijdens onze Open Woningwaarde Dag!

Tijdens de Open Woningwaarde Dag komen we langs om binnen 20 minuten de waarde van jouw huis te bepalen.

ONLINE ZOEKSERVICE

Door een gratis zoekprofiel aan te maken krijg je voortaan ál het nieuwe huizenaanbod van álle makelaars direct in je mailbox, vaak al voordat het op Funda staat.

Overdracht

  • Status Onder voorbehoud verkocht
  • Vraagprijs € 750.000,- kosten koper Hypotheek berekenen
  • Aanvaarding In overleg

Bouwvorm

  • Soort object Vrijstaande woning
  • Soort woning Eengezinswoning
  • Bouwjaar 1926
  • Soort bouw Woonhuis
  • Ligging Aan drukke weg, vrij uitzicht

Indeling

  • Woonoppervlakte 143m2
  • Perceeloppervlakte 806m2
  • Gebouwgebonden buitenruimte 91m2
  • Inhoud 518m2
  • Aantal kamers 6 kamers
  • Aantal slaapkamers 4
  • Aantal badkamers 2 badkamers
  • Badkamervoorzieningen Toilet, wastafel, inloopdouche, toilet, inloopdouche
  • Aantal woonlagen 2 woonlagen
  • Externe bergruimte ca. 91m2

Energie & Installatie

  • Energielabel D
  • Isolatie Dakisolatie, vloerisolatie, hr glas
  • Verwarming Cv ketel
  • Warm water Cv ketel
  • C.v.-ketel type Gas
  • C.v.-ketel bouwjaar 2012
  • Energie einddatum 2035-10-31

Bergruimte

  • Schuur / berging Vrijstaand steen
  • Aantal schuren / bergingen 1
  • Voorzieningen Met vliering

Parkeergelegenheid

  • Parkeerfaciliteiten Op eigen terrein
  • Garage Vrijstaand steen

Dak

  • Soort dak Mansarde dak

Overig

  • Onderhoud binnen Redelijk
  • Onderhoud buiten Redelijk
  • Bijzonderheden Gedeeltelijk gestoffeerd
  • Permanente bewoning Ja
  • Huidig gebruik Woonruimte
  • Huidige bestemming Woonruimte

Voorzieningen

  • Voorzieningen Tv kabel, buitenzonwering, rookkanaal, zonnepanelen

Buitenruimte

  • Hoofdtuin Tuin rondom
  • Kwaliteit tuin Normaal

Kadastrale gegevens

  • Gemeente Zegwaard
  • Sectie A
  • Eigendom Volle eigendom
  • Perceelnummer 3681
  • Perceeloppervlakte 806

Extra

Burgerlijke staat

Gehuwd
Ongehuwd
Gescheiden
Verweduwd
  • Gehuwd
  • Ongehuwd
  • Gescheiden
  • Verweduwd

Leeftijd in gemeente

0 - 15 jaar
15 - 25 jaar
25-45 jaar
45 - 65 jaar
65+ jaar
  • 0 - 15 jaar
  • 15 - 25 jaar
  • 25 - 45 jaar
  • 45 - 65 jaar
  • 65+ jaar

Gezinnen met kinderen

Met kinderen
Zonder kinderen
Alleenstaand
  • Met kinderen
  • Zonder kinderen
  • Alleenstaand

Leeftijd buurtbewoners

0 - 15 jaar
15 - 25 jaar
25-45 jaar
45 - 65 jaar
65+ jaar
  • 0 - 15 jaar
  • 15 - 25 jaar
  • 25 - 45 jaar
  • 45 - 65 jaar
  • 65+ jaar

Bewoners in de straat

Man
Vrouw
  • Man
  • Vrouw

      Documenten

      Voor alle documenten van deze woning willen we je graag doorverwijzen naar Move.nl.

      Inloggen MOVE.NL

      Aankoopmakelaar

      Hulp nodig bij de aankoop?
      Onze aankoopmakelaars helpen graag

      Aankoopmakelaar
      Dit veld is bedoeld voor validatiedoeleinden en moet niet worden gewijzigd.
      Dit veld is bedoeld voor validatiedoeleinden en moet niet worden gewijzigd.

      "*" geeft vereiste velden aan

      "*" geeft vereiste velden aan

      Dit veld is bedoeld voor validatiedoeleinden en moet niet worden gewijzigd.
      Dit veld is bedoeld voor validatiedoeleinden en moet niet worden gewijzigd.
      Ik wil graag meer informatie ontvangen over(Vereist)
      Dit veld is bedoeld voor validatiedoeleinden en moet niet worden gewijzigd.
      Dit veld is verborgen bij het bekijken van het formulier

      Maart 2026

      Ma Di Wo Do Vr Za Zo
      1
      2 3 4 5 6 7 8
      9 10 11 12 13 14 15
      16 17 18 19 20 21 22
      23 24 25 26 27 28 29
      30 31

      9 Maart 2026

      10 Maart 2026

      11 Maart 2026

      12 Maart 2026

      13 Maart 2026

      14 Maart 2026

      16 Maart 2026

      17 Maart 2026

      18 Maart 2026

      19 Maart 2026

      20 Maart 2026

      21 Maart 2026

      23 Maart 2026

      24 Maart 2026

      25 Maart 2026

      26 Maart 2026

      27 Maart 2026

      28 Maart 2026

      30 Maart 2026

      31 Maart 2026

      De afspraak is nog niet definitief. We nemen binnenkort contact met je op om de afspraak te bevestigen.

      "*" geeft vereiste velden aan

      Dit veld is bedoeld voor validatiedoeleinden en moet niet worden gewijzigd.

      "*" geeft vereiste velden aan

      Dit veld is bedoeld voor validatiedoeleinden en moet niet worden gewijzigd.
      Waar wil je een plek voor reserveren?

      "*" geeft vereiste velden aan

      Dit veld is bedoeld voor validatiedoeleinden en moet niet worden gewijzigd.
      Geen titel

      "*" geeft vereiste velden aan

      Dit veld is bedoeld voor validatiedoeleinden en moet niet worden gewijzigd.
      Waar wil je een afspraak voor?*

      De aanmelding komt ten goede van : Zegwaartseweg 162, Zoetermeer

      "*" geeft vereiste velden aan

      Dit veld is bedoeld voor validatiedoeleinden en moet niet worden gewijzigd.
      Dit veld is bedoeld voor validatiedoeleinden en moet niet worden gewijzigd.

      Maart 2026

      Ma Di Wo Do Vr Za Zo
      1
      2 3 4 5 6 7 8
      9 10 11 12 13 14 15
      16 17 18 19 20 21 22
      23 24 25 26 27 28 29
      30 31

      9 Maart 2026

      10 Maart 2026

      11 Maart 2026

      12 Maart 2026

      13 Maart 2026

      14 Maart 2026

      16 Maart 2026

      17 Maart 2026

      18 Maart 2026

      19 Maart 2026

      20 Maart 2026

      21 Maart 2026

      23 Maart 2026

      24 Maart 2026

      25 Maart 2026

      26 Maart 2026

      27 Maart 2026

      28 Maart 2026

      30 Maart 2026

      31 Maart 2026

      Dit veld is bedoeld voor validatiedoeleinden en moet niet worden gewijzigd.

      "*" geeft vereiste velden aan

      Dit veld is bedoeld voor validatiedoeleinden en moet niet worden gewijzigd.

      Adres te taxeren woning

      Soort woning
      Doel van taxatie

      Binnen welke periode moet de taxatie worden uitgevoerd?
      MM slash DD slash JJJJ
      MM slash DD slash JJJJ

      "*" geeft vereiste velden aan

      Dit veld is bedoeld voor validatiedoeleinden en moet niet worden gewijzigd.

      "*" geeft vereiste velden aan

      Dit veld is bedoeld voor validatiedoeleinden en moet niet worden gewijzigd.
      Ik heb interesse in:*

      "*" geeft vereiste velden aan

      Dit veld is bedoeld voor validatiedoeleinden en moet niet worden gewijzigd.
      Adres*

      "*" geeft vereiste velden aan

      Dit veld is bedoeld voor validatiedoeleinden en moet niet worden gewijzigd.