Omschrijving

Instapklaar appartement op een top locatie! Tussen de levendige Meent en de sfeervolle Oude Haven ligt dit charmante, instapklare 2-kamerappartement van ca. 55 m² aan de Goudsesingel 272B. Hier woon je letterlijk in het bruisende centrum van de stad, met iconen als de Markthal, Kubuswoningen, metrostation Oostplein en talloze gezellige eet- en koffiezaken op loopafstand. Een plek waar stedelijk comfort, sfeer en gemak perfect samenkomen. HIGHLIGHTS + Midden in het hart van Rotterdam + Instapklaar…

Lees meer

Kenmerken

  • Status Beschikbaar
  • Vraagprijs € 325.000 kosten koper Hypotheek berekenen
  • Woonoppervlakte ca. 58 m2
  • Aantal slaapkamers 1
  • Bouwjaar 1955
Meer kenmerken

Vragen of even
binnenkijken?

Neem vrijblijvend contact
op met Nick Oorschot

Meer kans maken?

Laat zien dat je financieel sterk staat!
Met een KopersPaspoort© toon je aan dat je snel kunt schakelen. Meer kans op jouw droomhuis!

Open Woningwaarde Dag

Benieuwd naar de waarde van je huis? Maak gebruik van een gratis waardebepaling tijdens onze Open Woningwaarde Dag!

Tijdens de Open Woningwaarde Dag komen we langs om binnen 20 minuten de waarde van jouw huis te bepalen.

ONLINE ZOEKSERVICE

Door een gratis zoekprofiel aan te maken krijg je voortaan ál het nieuwe huizenaanbod van álle makelaars direct in je mailbox, vaak al voordat het op Funda staat.

Instapklaar appartement op een top locatie!

Tussen de levendige Meent en de sfeervolle Oude Haven ligt dit charmante, instapklare 2-kamerappartement van ca. 55 m² aan de Goudsesingel 272B. Hier woon je letterlijk in het bruisende centrum van de stad, met iconen als de Markthal, Kubuswoningen, metrostation Oostplein en talloze gezellige eet- en koffiezaken op loopafstand.
Een plek waar stedelijk comfort, sfeer en gemak perfect samenkomen.

HIGHLIGHTS
+ Midden in het hart van Rotterdam
+ Instapklaar en modern afgewerkt
+ Balkon op het zuidwesten

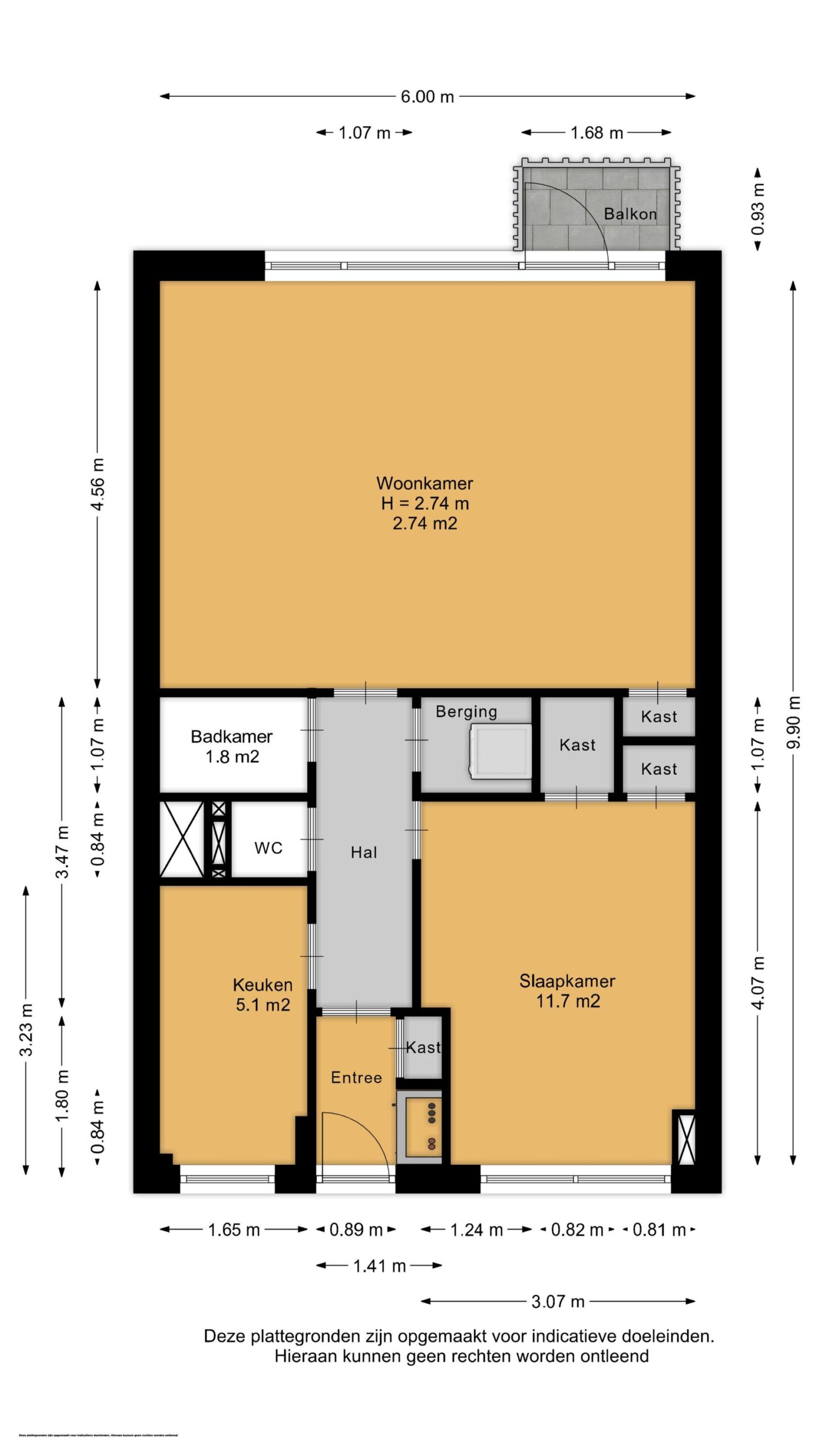
INDELING

GEZAMENLIJKE RUIMTE
Gesloten portiek met brievenbussen, bellentableau en trappenhuis naar de bovengelegen woonlagen.

DERDE VERDIEPING
Het appartement ligt op de derde verdieping en heeft een prettige indeling met een lichte woonkamer aan de voorzijde. Dankzij de grote raampartijen geniet je hier van veel daglicht en uitzicht op het groen van de straat.
De nette laminaatvloer en strakke wanden zorgen voor een moderne, frisse uitstraling. Vanuit de woonkamer heb je toegang tot het zonnige balkon op het zuidwesten — een fijne plek om in de middag en avond te ontspannen in de zon.

De gesloten keuken is praktisch ingericht en voorzien van een gaskookplaat, afzuigkap, oven en koelkast. Ook hier zorgt het grote raam voor veel natuurlijk licht.

Aan de achterzijde ligt de ruime slaapkamer, rustig gelegen en groot genoeg voor een tweepersoonsbed en een kledingkast. De moderne badkamer is voorzien van witte wandtegels, donkere vloertegels, een inloopdouche met glazen wand en een stijlvol wastafelmeubel. Het toilet is separaat en netjes betegeld met een fonteintje.

Daarnaast is er in de hal een bergkast met wasmachineaansluiting en extra bergruimte.

OMGEVING
De Goudsesingel ligt midden in het culturele en culinaire hart van Rotterdam. Je woont hier tussen de Meent en de Pannekoekstraat, met hippe winkels, restaurants, lunchspots en cocktailbars binnen handbereik. Ook de Markthal, Station Blaak en metrostation Oostplein liggen op loopafstand.
Ondanks de levendige omgeving woon je hier verrassend rustig, met veel groen rondom het complex. Alles wat je nodig hebt, ligt letterlijk om de hoek.

Klinkt dit als jouw ideale thuis? Loop alvast in 3D door de woning om alle ruimtes te bekijken en maak snel een afspraak voor een bezichtiging!

PLUSPUNTEN
+ Gelegen in het hart van Rotterdam, alles op loopafstand
+ Instapklaar en modern afgewerkt appartement
+ Heerlijk licht door grote raampartijen
+ Balkon op het westen
+ Gesloten keuken met inbouwapparatuur
+ Fijne badkamer en separaat toilet
+ Eigen berging in de onderbouw
+ Actieve en gezonde VvE
+ Energielabel B

BIJZONDERHEDEN
ouderdoms-, asbest en loodclausule zijn van toepassing

OMGEVING
Benieuwd naar de omgeving? Bekijk alle voorzieningen onder het kopje ‘In de buurt’!

INTERESSE?
Dan nodigen we je uit om contact met ons op te nemen. We vertellen je graag meer over deze woning en zorgen ervoor dat je overige stukken en algemene voorwaarden verkopend makelaar digitaal via jouw persoonlijke Move account kunt bekijken.

ONZE TIP
Aankopen? Schakel jouw eigen NVM-aankoopmakelaar in! De NVM-aankoopmakelaar komt op voor jouw belang en bespaart je veel tijd, geld en zorgen. Adressen van collega NVM-aankoopmakelaars vind je op Funda.

De gegeven informatie is met zorgvuldigheid opgesteld, aan de juistheid kunnen echter geen rechten worden ontleend. Alle verstrekte informatie moet beschouwd worden als een uitnodiging tot het doen van een aanbod of om in onderhandeling te treden.

Vragen of even
binnenkijken?

Neem vrijblijvend contact
op met Nick Oorschot

Meer kans maken?

Laat zien dat je financieel sterk staat!
Met een KopersPaspoort© toon je aan dat je snel kunt schakelen. Meer kans op jouw droomhuis!

Open Woningwaarde Dag

Benieuwd naar de waarde van je huis? Maak gebruik van een gratis waardebepaling tijdens onze Open Woningwaarde Dag!

Tijdens de Open Woningwaarde Dag komen we langs om binnen 20 minuten de waarde van jouw huis te bepalen.

ONLINE ZOEKSERVICE

Door een gratis zoekprofiel aan te maken krijg je voortaan ál het nieuwe huizenaanbod van álle makelaars direct in je mailbox, vaak al voordat het op Funda staat.

Overdracht

  • Status Beschikbaar
  • Vraagprijs € 325.000,- kosten koper Hypotheek berekenen
  • Aanvaarding In overleg

Bouwvorm

  • Bouwjaar 1955
  • Soort bouw Appartement
  • Ligging In centrum, vrij uitzicht

Indeling

  • Woonoppervlakte 58m2
  • Gebouwgebonden buitenruimte 4m2
  • Inhoud 201m2
  • Aantal kamers 2 kamers
  • Aantal slaapkamers 1
  • Aantal badkamers 1 badkamer
  • Badkamervoorzieningen Wastafel, inloopdouche
  • Aantal woonlagen 1 woonlagen
  • Externe bergruimte ca. 4m2

Energie & Installatie

  • Energielabel B
  • Isolatie Grotendeels dubbelglas
  • Verwarming Stadsverwarming
  • Warm water Stadsverwarming
  • Energie einddatum 2035-10-07

Bergruimte

  • Schuur / berging Box
  • Aantal schuren / bergingen 1

Parkeergelegenheid

  • Parkeerfaciliteiten Openbaar parkeren, betaald parkeren, parkeervergunningen
  • Garage Geen garage

Dak

  • Soort dak Plat dak

Overig

  • Onderhoud binnen Goed
  • Onderhoud buiten Goed
  • VVE Bijdrage € 172.14
  • Bijzonderheden Gestoffeerd
  • Permanente bewoning Ja
  • Huidig gebruik Woonruimte
  • Huidige bestemming Woonruimte

Voorzieningen

  • Voorzieningen Mechanische ventilatie, lift

Kadastrale gegevens

  • Gemeente Rotterdam
  • Sectie Af
  • Eigendom Volle eigendom
  • Perceelnummer 1630
  • Index 12

Extra

Burgerlijke staat

Gehuwd
Ongehuwd
Gescheiden
Verweduwd
  • Gehuwd
  • Ongehuwd
  • Gescheiden
  • Verweduwd

Leeftijd in gemeente

0 - 15 jaar
15 - 25 jaar
25-45 jaar
45 - 65 jaar
65+ jaar
  • 0 - 15 jaar
  • 15 - 25 jaar
  • 25 - 45 jaar
  • 45 - 65 jaar
  • 65+ jaar

Gezinnen met kinderen

Met kinderen
Zonder kinderen
Alleenstaand
  • Met kinderen
  • Zonder kinderen
  • Alleenstaand

Leeftijd buurtbewoners

0 - 15 jaar
15 - 25 jaar
25-45 jaar
45 - 65 jaar
65+ jaar
  • 0 - 15 jaar
  • 15 - 25 jaar
  • 25 - 45 jaar
  • 45 - 65 jaar
  • 65+ jaar

Bewoners in de straat

Man
Vrouw
  • Man
  • Vrouw

      Documenten

      Voor alle documenten van deze woning willen we je graag doorverwijzen naar Move.nl.

      Inloggen MOVE.NL

      Aankoopmakelaar

      Hulp nodig bij de aankoop?
      Onze aankoopmakelaars helpen graag

      Aankoopmakelaar
      Dit veld is bedoeld voor validatiedoeleinden en moet niet worden gewijzigd.
      Dit veld is bedoeld voor validatiedoeleinden en moet niet worden gewijzigd.

      "*" geeft vereiste velden aan

      "*" geeft vereiste velden aan

      Dit veld is bedoeld voor validatiedoeleinden en moet niet worden gewijzigd.
      Dit veld is bedoeld voor validatiedoeleinden en moet niet worden gewijzigd.
      Ik wil graag meer informatie ontvangen over(Vereist)
      Dit veld is bedoeld voor validatiedoeleinden en moet niet worden gewijzigd.
      Dit veld is verborgen bij het bekijken van het formulier

      November 2025

      Ma Di Wo Do Vr Za Zo
      1 2
      3 4 5 6 7 8 9
      10 11 12 13 14 15 16
      17 18 19 20 21 22 23
      24 25 26 27 28 29 30

      11 November 2025

      12 November 2025

      13 November 2025

      14 November 2025

      15 November 2025

      17 November 2025

      18 November 2025

      19 November 2025

      20 November 2025

      21 November 2025

      22 November 2025

      24 November 2025

      25 November 2025

      26 November 2025

      27 November 2025

      28 November 2025

      29 November 2025

      De afspraak is nog niet definitief. We nemen binnenkort contact met je op om de afspraak te bevestigen.

      "*" geeft vereiste velden aan

      Dit veld is bedoeld voor validatiedoeleinden en moet niet worden gewijzigd.

      "*" geeft vereiste velden aan

      Dit veld is bedoeld voor validatiedoeleinden en moet niet worden gewijzigd.
      Waar wil je een plek voor reserveren?

      "*" geeft vereiste velden aan

      Dit veld is bedoeld voor validatiedoeleinden en moet niet worden gewijzigd.
      Geen titel

      "*" geeft vereiste velden aan

      Dit veld is bedoeld voor validatiedoeleinden en moet niet worden gewijzigd.
      Waar wil je een afspraak voor?*

      De aanmelding komt ten goede van : Goudsesingel 272B, Rotterdam

      "*" geeft vereiste velden aan

      Dit veld is bedoeld voor validatiedoeleinden en moet niet worden gewijzigd.
      Dit veld is bedoeld voor validatiedoeleinden en moet niet worden gewijzigd.
      Dit veld is verborgen bij het bekijken van het formulier
      Dit veld is verborgen bij het bekijken van het formulier

      November 2025

      Ma Di Wo Do Vr Za Zo
      1 2
      3 4 5 6 7 8 9
      10 11 12 13 14 15 16
      17 18 19 20 21 22 23
      24 25 26 27 28 29 30

      11 November 2025

      12 November 2025

      13 November 2025

      14 November 2025

      15 November 2025

      17 November 2025

      18 November 2025

      19 November 2025

      20 November 2025

      21 November 2025

      22 November 2025

      24 November 2025

      25 November 2025

      26 November 2025

      27 November 2025

      28 November 2025

      29 November 2025

      Dit veld is bedoeld voor validatiedoeleinden en moet niet worden gewijzigd.

      "*" geeft vereiste velden aan

      Dit veld is bedoeld voor validatiedoeleinden en moet niet worden gewijzigd.

      Adres te taxeren woning

      Soort woning
      Doel van taxatie

      Binnen welke periode moet de taxatie worden uitgevoerd?
      MM slash DD slash JJJJ
      MM slash DD slash JJJJ

      "*" geeft vereiste velden aan

      Dit veld is bedoeld voor validatiedoeleinden en moet niet worden gewijzigd.

      "*" geeft vereiste velden aan

      Dit veld is bedoeld voor validatiedoeleinden en moet niet worden gewijzigd.
      Ik heb interesse in:*

      "*" geeft vereiste velden aan

      Dit veld is bedoeld voor validatiedoeleinden en moet niet worden gewijzigd.
      Adres*

      "*" geeft vereiste velden aan

      Dit veld is bedoeld voor validatiedoeleinden en moet niet worden gewijzigd.