Omschrijving

Heerlijke hoekwoning met eigen parkeerplek en royale zijtuin

Op het King Olivereiland 76 in Den Haag staat deze fijne hoekwoning die dankzij het extra stuk grond aan de zijkant beschikt over een heerlijke, ruime zijtuin. Met een verzorgde, onderhoudsvriendelijke buitenruimte, een eigen parkeerplek op eigen terrein en een praktische indeling met maar liefst 5 kamers, is dit een ideale gezinswoning.
Je woont hier in de kindvriendelijke wijk Waldeck, op korte afstand van groen, parken,…

Lees meer

Kenmerken

  • Status Verkocht onder voorbehoud
  • Vraagprijs € 475.000 kosten koper Hypotheek berekenen
  • Woonoppervlakte ca. 116 m2
  • Aantal slaapkamers 3
  • Bouwjaar 1981
Meer kenmerken

Vragen of even
binnenkijken?

Neem vrijblijvend contact
op met Ferdi Bennemeer

Meer kans maken?

Laat zien dat je financieel sterk staat!
Met een KopersPaspoort© toon je aan dat je snel kunt schakelen. Meer kans op jouw droomhuis!

Open Woningwaarde Dag

Benieuwd naar de waarde van je huis? Maak gebruik van een gratis waardebepaling tijdens onze Open Woningwaarde Dag!

Tijdens de Open Woningwaarde Dag komen we langs om binnen 20 minuten de waarde van jouw huis te bepalen.

ONLINE ZOEKSERVICE

Door een gratis zoekprofiel aan te maken krijg je voortaan ál het nieuwe huizenaanbod van álle makelaars direct in je mailbox, vaak al voordat het op Funda staat.

Heerlijke hoekwoning met eigen parkeerplek en royale zijtuin

Op het King Olivereiland 76 in Den Haag staat deze fijne hoekwoning die dankzij het extra stuk grond aan de zijkant beschikt over een heerlijke, ruime zijtuin. Met een verzorgde, onderhoudsvriendelijke buitenruimte, een eigen parkeerplek op eigen terrein en een praktische indeling met maar liefst 5 kamers, is dit een ideale gezinswoning.
Je woont hier in de kindvriendelijke wijk Waldeck, op korte afstand van groen, parken, uitvalswegen, Kijkduin en het centrum van Den Haag.

HIGHLIGHTS
+ Heerlijke hoekwoning met extra brede zijtuin
+ Eigen parkeerplaats op eigen terrein
+ Energielabel C

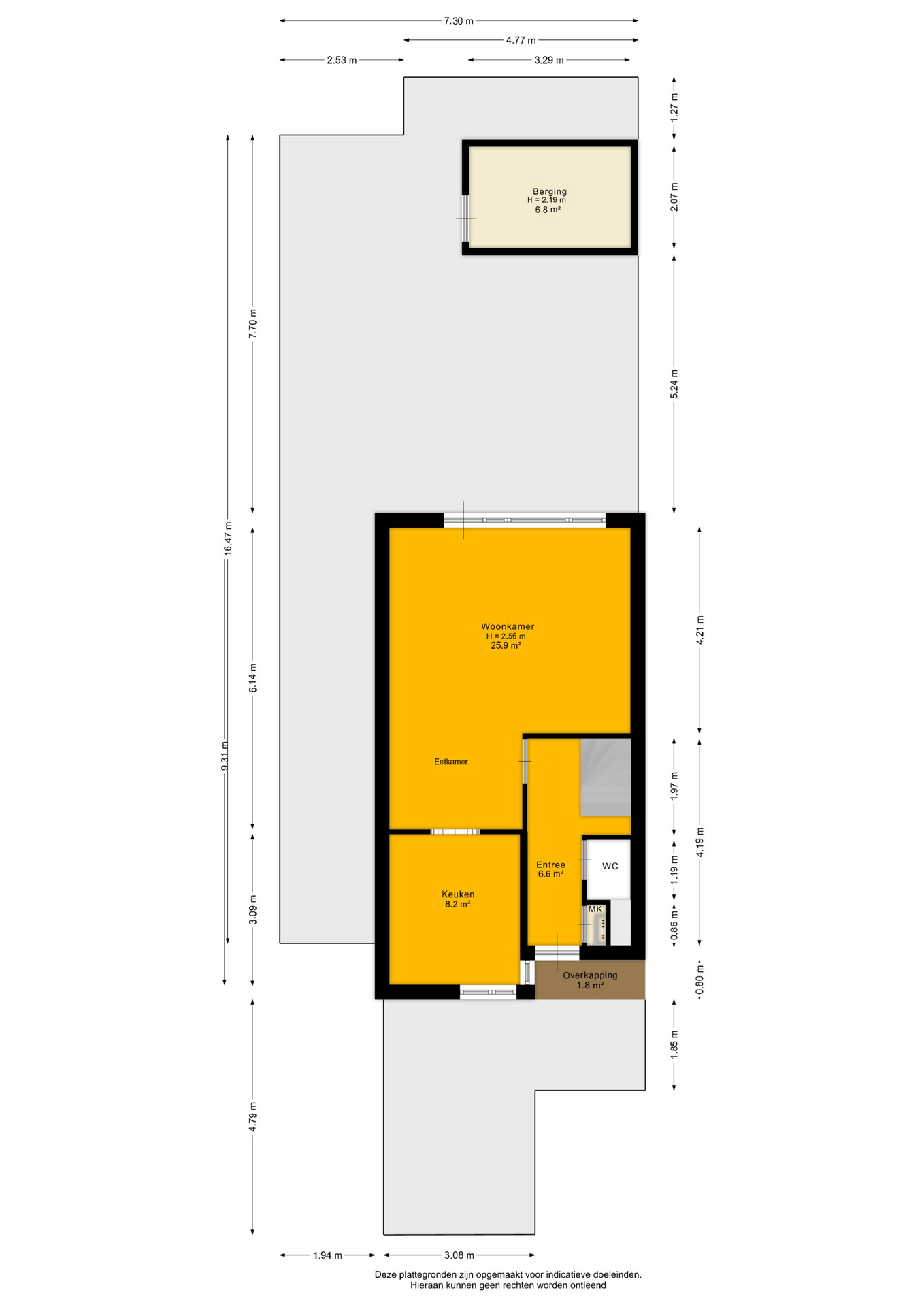
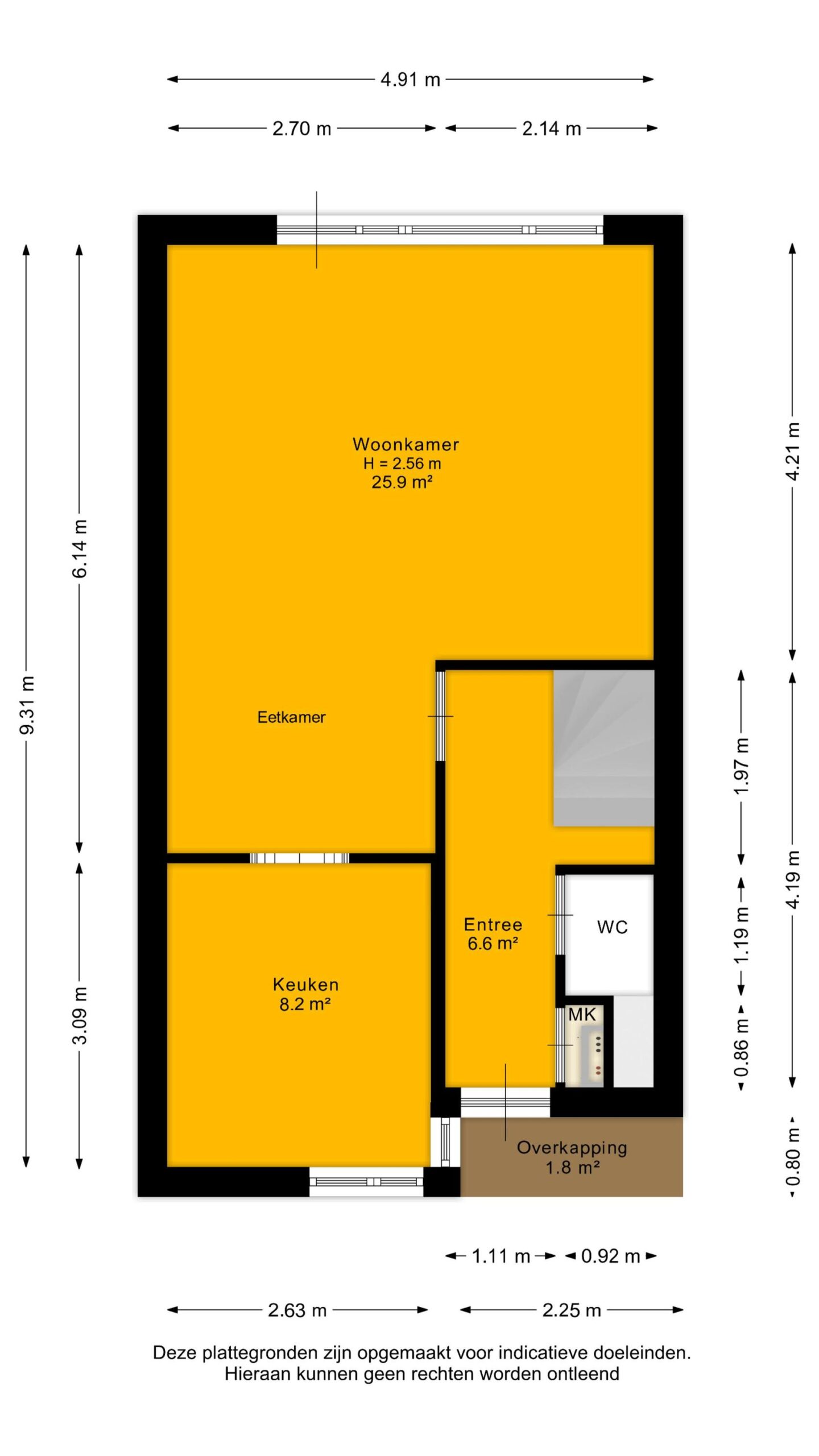
BEGANE GROND
De woning ligt gunstig op de hoek van het eiland en heeft een nette entree aan de voorzijde waar tevens de eigen parkeerplek zich bevindt. Via de hal bereik je de meterkast, het toilet, de trap naar boven en stap je de lichte woonkamer binnen. De woonkamer ligt aan de achterzijde en heeft een prettige lichtinval met toegang tot de verzorgde achtertuin.

De keuken bevindt zich aan de voorzijde en is uitgevoerd in een praktische, dichte opstelling. Deze is uitgerust met diverse inbouwapparatuur, waaronder een vaatwasser, oven, inductiekookplaat en koelkast. De tuin rondom is onderhoudsvriendelijk aangelegd, met als absolute pluspunt de extra brede zijtuin — een perfecte plek voor een loungehoek, speelruimte of groenliefhebbers.

EERSTE VERDIEPING
Op de eerste verdieping vind je een ruime overloop die toegang geeft tot de vertrekken en de trap naar de tweede verdieping. Aan de voorzijde ligt een fijne slaapkamer met grote raampartijen. Aan de achterzijde bevindt zich de royale master bedroom, die oorspronkelijk bestond uit twee kamers en nu een heerlijk ruime slaap- of werkruimte vormt.

De badkamer is eveneens aan de voorzijde gelegen en voorzien van een inloopdouche, toilet, wastafel en een aansluiting voor de wasmachine.

TWEEDE VERDIEPING
De tweede verdieping biedt een ruime derde slaapkamer, ideaal als tienerkamer, hobbyruimte of werkkamer. Daarnaast is er een praktische bergruimte aanwezig en een aparte stookruimte met de Cv-combiketel. Extra opbergruimte vind je onder de schuine delen.

BUITENRUIMTE
Een echte eyecatcher is de heerlijke zijtuin die dankzij het extra stuk grond royaal is opgezet. De tuin is verzorgd, onderhoudsvriendelijk aangelegd en biedt volop mogelijkheden voor sfeervol buitenleven. Daarnaast is er de achtertuin, bereikbaar vanuit de woonkamer én via de zijkant.
De woning beschikt verder over een eigen parkeerplek op eigen terrein — een groot pluspunt in deze gewilde wijk.

Klinkt dit als jouw ideale thuis? Loop alvast in 3D door de woning om alle ruimtes te bekijken en maak snel een afspraak voor een bezichtiging!

PLUSPUNTEN
+ Heerlijke hoekwoning met extra ruime zijtuin
+ 4-kamer eengezinswoning van ca. 116 m²
+ Onderhoudsvriendelijke tuin
+ Eigen parkeerplaats
+ Gedeeltelijk voorzien van dubbel glas
+ Energielabel C
+ Woonoppervlakte ca. 116 m²
+ Eeuwigdurend afgekochte erfpachtcanon en beheerskosten
+ Kindvriendelijke wijk nabij park, strand, natuur en uitvalswegen
+ Bouwjaar 1981
+ Gelegen in rustige en kindvriendelijke wijk Waldeck

> Ouderdoms- en asbestclausule zijn van toepassing

OMGEVING
Benieuwd naar de omgeving? Bekijk alle voorzieningen onder het kopje ‘In de buurt’!

INTERESSE?
Dan nodigen we je uit om contact met ons op te nemen. We vertellen je graag meer over deze woning en zorgen ervoor dat je overige stukken en algemene voorwaarden verkopend makelaar digitaal via jouw persoonlijke Move account kunt bekijken.

ONZE TIP
Aankopen? Schakel jouw eigen NVM-aankoopmakelaar in! De NVM-aankoopmakelaar komt op voor jouw belang en bespaart je veel tijd, geld en zorgen. Adressen van collega NVM-aankoopmakelaars vind je op Funda.

De gegeven informatie is met zorgvuldigheid opgesteld, aan de juistheid kunnen echter geen rechten worden ontleend. Alle verstrekte informatie moet beschouwd worden als een uitnodiging tot het doen van een aanbod of om in onderhandeling te treden.

Vragen of even
binnenkijken?

Neem vrijblijvend contact
op met Ferdi Bennemeer

Meer kans maken?

Laat zien dat je financieel sterk staat!
Met een KopersPaspoort© toon je aan dat je snel kunt schakelen. Meer kans op jouw droomhuis!

Open Woningwaarde Dag

Benieuwd naar de waarde van je huis? Maak gebruik van een gratis waardebepaling tijdens onze Open Woningwaarde Dag!

Tijdens de Open Woningwaarde Dag komen we langs om binnen 20 minuten de waarde van jouw huis te bepalen.

ONLINE ZOEKSERVICE

Door een gratis zoekprofiel aan te maken krijg je voortaan ál het nieuwe huizenaanbod van álle makelaars direct in je mailbox, vaak al voordat het op Funda staat.

Overdracht

  • Status Verkocht onder voorbehoud
  • Vraagprijs € 475.000,- kosten koper Hypotheek berekenen
  • Aanvaarding In overleg

Bouwvorm

  • Soort object Hoekwoning
  • Soort woning Eengezinswoning
  • Bouwjaar 1981
  • Soort bouw Woonhuis
  • Ligging In woonwijk

Indeling

  • Woonoppervlakte 116m2
  • Perceeloppervlakte 157m2
  • Gebouwgebonden buitenruimte 7m2
  • Inhoud 406m2
  • Aantal kamers 4 kamers
  • Aantal slaapkamers 3
  • Aantal badkamers 1 badkamer
  • Badkamervoorzieningen Toilet, wastafel, inloopdouche, wasmachineaansluiting
  • Aantal woonlagen 3 woonlagen
  • Externe bergruimte ca. 7m2

Energie & Installatie

  • Energielabel C
  • Isolatie Muurisolatie, dubbel glas
  • Verwarming Cv ketel
  • Warm water Cv ketel
  • C.v.-ketel type Gas
  • Energie einddatum 2035-10-29

Bergruimte

  • Schuur / berging Vrijstaand hout
  • Aantal schuren / bergingen 1
  • Voorzieningen Voorzien van elektra

Parkeergelegenheid

  • Parkeerfaciliteiten Openbaar parkeren, op eigen terrein
  • Garage Geen garage

Dak

  • Soort dak Zadeldak

Overig

  • Onderhoud binnen Goed
  • Onderhoud buiten Goed
  • Bijzonderheden Gedeeltelijk gestoffeerd
  • Permanente bewoning Ja
  • Huidig gebruik Woonruimte
  • Huidige bestemming Woonruimte

Voorzieningen

  • Voorzieningen Tv kabel, dakraam, natuurlijke ventilatie

Buitenruimte

  • Hoofdtuin Achtertuin
  • Oppervlakte hoofdtuin ca. 57m2
  • Ligging hoofdtuin Noordwest
  • Kwaliteit tuin Verzorgd

Kadastrale gegevens

  • Loosduinen h 7274
  • Oppervlakte 122
  • Eigendomssituatie eigendom belast met erfpacht
  • Loosduinen h 7872
  • Oppervlakte 35
  • Eigendomssituatie eigendom belast met erfpacht

Extra

Burgerlijke staat

Gehuwd
Ongehuwd
Gescheiden
Verweduwd
  • Gehuwd
  • Ongehuwd
  • Gescheiden
  • Verweduwd

Leeftijd in gemeente

0 - 15 jaar
15 - 25 jaar
25-45 jaar
45 - 65 jaar
65+ jaar
  • 0 - 15 jaar
  • 15 - 25 jaar
  • 25 - 45 jaar
  • 45 - 65 jaar
  • 65+ jaar

Gezinnen met kinderen

Met kinderen
Zonder kinderen
Alleenstaand
  • Met kinderen
  • Zonder kinderen
  • Alleenstaand

Leeftijd buurtbewoners

0 - 15 jaar
15 - 25 jaar
25-45 jaar
45 - 65 jaar
65+ jaar
  • 0 - 15 jaar
  • 15 - 25 jaar
  • 25 - 45 jaar
  • 45 - 65 jaar
  • 65+ jaar

Bewoners in de straat

Man
Vrouw
  • Man
  • Vrouw

      Documenten

      Voor alle documenten van deze woning willen we je graag doorverwijzen naar Move.nl.

      Inloggen MOVE.NL

      Aankoopmakelaar

      Hulp nodig bij de aankoop?
      Onze aankoopmakelaars helpen graag

      Aankoopmakelaar
      Dit veld is bedoeld voor validatiedoeleinden en moet niet worden gewijzigd.
      Dit veld is bedoeld voor validatiedoeleinden en moet niet worden gewijzigd.

      "*" geeft vereiste velden aan

      "*" geeft vereiste velden aan

      Dit veld is bedoeld voor validatiedoeleinden en moet niet worden gewijzigd.
      Dit veld is bedoeld voor validatiedoeleinden en moet niet worden gewijzigd.
      Ik wil graag meer informatie ontvangen over(Vereist)
      Dit veld is bedoeld voor validatiedoeleinden en moet niet worden gewijzigd.
      Dit veld is verborgen bij het bekijken van het formulier

      Januari 2026

      Ma Di Wo Do Vr Za Zo
      1 2 3 4
      5 6 7 8 9 10 11
      12 13 14 15 16 17 18
      19 20 21 22 23 24 25
      26 27 28 29 30 31

      26 Januari 2026

      27 Januari 2026

      28 Januari 2026

      29 Januari 2026

      30 Januari 2026

      31 Januari 2026

      De afspraak is nog niet definitief. We nemen binnenkort contact met je op om de afspraak te bevestigen.

      "*" geeft vereiste velden aan

      Dit veld is bedoeld voor validatiedoeleinden en moet niet worden gewijzigd.

      "*" geeft vereiste velden aan

      Dit veld is bedoeld voor validatiedoeleinden en moet niet worden gewijzigd.
      Waar wil je een plek voor reserveren?

      "*" geeft vereiste velden aan

      Dit veld is bedoeld voor validatiedoeleinden en moet niet worden gewijzigd.
      Geen titel

      "*" geeft vereiste velden aan

      Dit veld is bedoeld voor validatiedoeleinden en moet niet worden gewijzigd.
      Waar wil je een afspraak voor?*

      De aanmelding komt ten goede van : King Olivereiland 76, 's-gravenhage

      "*" geeft vereiste velden aan

      Dit veld is bedoeld voor validatiedoeleinden en moet niet worden gewijzigd.
      Dit veld is bedoeld voor validatiedoeleinden en moet niet worden gewijzigd.
      Dit veld is verborgen bij het bekijken van het formulier
      Dit veld is verborgen bij het bekijken van het formulier

      Januari 2026

      Ma Di Wo Do Vr Za Zo
      1 2 3 4
      5 6 7 8 9 10 11
      12 13 14 15 16 17 18
      19 20 21 22 23 24 25
      26 27 28 29 30 31

      26 Januari 2026

      27 Januari 2026

      28 Januari 2026

      29 Januari 2026

      30 Januari 2026

      31 Januari 2026

      Dit veld is bedoeld voor validatiedoeleinden en moet niet worden gewijzigd.

      "*" geeft vereiste velden aan

      Dit veld is bedoeld voor validatiedoeleinden en moet niet worden gewijzigd.

      Adres te taxeren woning

      Soort woning
      Doel van taxatie

      Binnen welke periode moet de taxatie worden uitgevoerd?
      MM slash DD slash JJJJ
      MM slash DD slash JJJJ

      "*" geeft vereiste velden aan

      Dit veld is bedoeld voor validatiedoeleinden en moet niet worden gewijzigd.

      "*" geeft vereiste velden aan

      Dit veld is bedoeld voor validatiedoeleinden en moet niet worden gewijzigd.
      Ik heb interesse in:*

      "*" geeft vereiste velden aan

      Dit veld is bedoeld voor validatiedoeleinden en moet niet worden gewijzigd.
      Adres*

      "*" geeft vereiste velden aan

      Dit veld is bedoeld voor validatiedoeleinden en moet niet worden gewijzigd.