Omschrijving

Sfeervol 2-kamer appartement

Dit appartement is gelegen op de 10e woonlaag van het appartementencomplex. De ruime en lichte woonkamer heeft grote raampartijen en vrij uitzicht. De open keuken beschikt over een groot aanrechtblad, waardoor je veel ruimte hebt voor alle benodigdheden tijdens het koken.

HIGHLIGHTS
+ Balkon op het westen
+ Dicht bij stadscentrum
+ Eigen berging

GEZAMENLIJKE RUIMTE
De centrale entree is voorzien van een bellenbord, brievenbuskasten, intercominstallatie en toegang…

Lees meer

Kenmerken

  • Status Verkocht
  • Vraagprijs € 230.000 kosten koper Hypotheek berekenen
  • Woonoppervlakte ca. 59 m2
  • Aantal slaapkamers 1
  • Bouwjaar 1973
Meer kenmerken

Vragen of even
binnenkijken?

Neem vrijblijvend contact
op met Joël van de Weerdt

Meer kans maken?

Laat zien dat je financieel sterk staat!
Met een KopersPaspoort© toon je aan dat je snel kunt schakelen. Meer kans op jouw droomhuis!

Open Woningwaarde Dag

Benieuwd naar de waarde van je huis? Maak gebruik van een gratis waardebepaling tijdens onze Open Woningwaarde Dag!

Tijdens de Open Woningwaarde Dag komen we langs om binnen 20 minuten de waarde van jouw huis te bepalen.

ONLINE ZOEKSERVICE

Door een gratis zoekprofiel aan te maken krijg je voortaan ál het nieuwe huizenaanbod van álle makelaars direct in je mailbox, vaak al voordat het op Funda staat.

Sfeervol 2-kamer appartement

Dit appartement is gelegen op de 10e woonlaag van het appartementencomplex. De ruime en lichte woonkamer heeft grote raampartijen en vrij uitzicht. De open keuken beschikt over een groot aanrechtblad, waardoor je veel ruimte hebt voor alle benodigdheden tijdens het koken.

HIGHLIGHTS
+ Balkon op het westen
+ Dicht bij stadscentrum
+ Eigen berging

GEZAMENLIJKE RUIMTE
De centrale entree is voorzien van een bellenbord, brievenbuskasten, intercominstallatie en toegang tot de algemene fietsenberging. Op de 1ste verdieping bevindt zich een inpandige berging voor al jouw opslagbehoeften.
Middels de trap of één van de twee liften ben je snel bij je appartement.

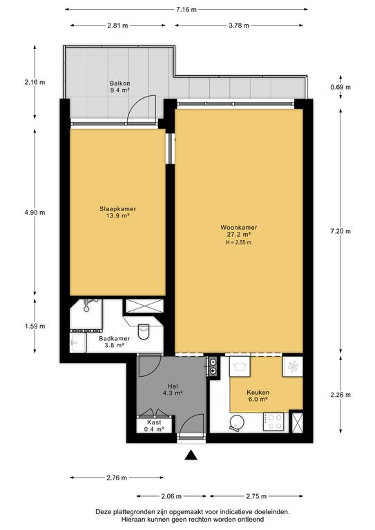
INDELING
Op de 10e woonlaag van dit appartementencomplex vind je de sfeervolle woning met moderne elementen. Je stapt binnen in een ruime hal met een inpandige bergkast en ruimte voor de garderobe. Vanuit de hal is er toegang tot de open keuken, woonkamer en badkamer. De open keuken beschikt over de benodigde inbouwapparatuur, tevens bevindt zich hier ook de was- en droogaansluiting.

Vanuit de keuken is er een doorkijk naar de eet- en woonkamer. Door de kamerbrede raampartij is er veel lichtinval in het appartement. Vanuit de woonkamer is er toegang tot de slaapkamer. De ruime slaapkamer biedt toegang tot het balkon (gelegen op het westen) en is erg licht door de grote raampartijen. De slaapkamer beschikt over een inpandige kastruimte.

De badkamer is voorzien van een toilet, douche, wastafelmeubel en wandcloset.

Klinkt dit als jouw ideale thuis? Loop alvast in 3D door de woning om alle ruimtes te bekijken en maak snel een afspraak voor een bezichtiging!

PLUSPUNTEN
+ Zonnig Balkon op de 10e woonlaag (west)
+ Eigen Berging
+ Ideaal voor Young Professionals
+ Gunstige Locatie
+ Voldoende parkeergelegenheid in de omgeving
+ Dicht bij voorzieningen

BIJZONDERHEDEN
IN DE BUURT
De locatie van het appartement biedt uitstekende toegang tot
> Tramstation ‘Dorp’, waarvandaan er een snelle verbinding is naar het treinstation ‘Zoetermeer’
> Het winkelcentrum Vijverhoek ligt op loopafstand
> De oude dorpsstraat
> Het bruisende Stadshart biedt alle winkels voor het dagelijks bestaan
> Scholen
> Belangrijke uitvalswegen

BIJZONDERHEDEN
> Niet bewoners clausule van toepassing
> Ouderdoms- en materialenclausule van toepassing

OMGEVING
Benieuwd naar de omgeving? Bekijk alle voorzieningen onder het kopje ‘In de buurt’!

INTERESSE?
Dan nodigen we je uit om contact met ons op te nemen. We vertellen je graag meer over deze woning en zorgen ervoor dat je overige stukken en algemene voorwaarden verkopend makelaar digitaal via jouw persoonlijke Move account kunt bekijken.

ONZE TIP
Aankopen? Schakel jouw eigen NVM-aankoopmakelaar in! De NVM-aankoopmakelaar komt op voor jouw belang en bespaart je veel tijd, geld en zorgen. Adressen van collega NVM-aankoopmakelaars vind je op Funda.

De gegeven informatie is met zorgvuldigheid opgesteld, aan de juistheid kunnen echter geen rechten worden ontleend. Alle verstrekte informatie moet beschouwd worden als een uitnodiging tot het doen van een aanbod of om in onderhandeling te treden.

Vragen of even
binnenkijken?

Neem vrijblijvend contact
op met Joël van de Weerdt

Meer kans maken?

Laat zien dat je financieel sterk staat!
Met een KopersPaspoort© toon je aan dat je snel kunt schakelen. Meer kans op jouw droomhuis!

Open Woningwaarde Dag

Benieuwd naar de waarde van je huis? Maak gebruik van een gratis waardebepaling tijdens onze Open Woningwaarde Dag!

Tijdens de Open Woningwaarde Dag komen we langs om binnen 20 minuten de waarde van jouw huis te bepalen.

ONLINE ZOEKSERVICE

Door een gratis zoekprofiel aan te maken krijg je voortaan ál het nieuwe huizenaanbod van álle makelaars direct in je mailbox, vaak al voordat het op Funda staat.

Overdracht

  • Status Verkocht
  • Vraagprijs € 230.000,- kosten koper Hypotheek berekenen
  • Aanvaarding In overleg

Bouwvorm

  • Bouwjaar 1973
  • Soort bouw Appartement
  • Ligging Aan park, aan rustige weg, in woonwijk, vrij uitzicht

Indeling

  • Woonoppervlakte 59m2
  • Gebouwgebonden buitenruimte 6m2
  • Inhoud 189m2
  • Aantal kamers 2 kamers
  • Aantal slaapkamers 1
  • Aantal badkamers 1 badkamer
  • Badkamervoorzieningen Toilet, douche, wastafel, wastafelmeubel
  • Aantal woonlagen 1 woonlagen
  • Externe bergruimte ca. 6m2

Energie & Installatie

  • Energielabel D
  • Isolatie Dubbel glas
  • Verwarming Blokverwarming
  • Warm water Centrale voorziening
  • Energie einddatum 2034-06-10

Bergruimte

  • Schuur / berging Box
  • Aantal schuren / bergingen 1
  • Voorzieningen Voorzien van elektra

Parkeergelegenheid

  • Parkeerfaciliteiten Openbaar parkeren
  • Garage Geen garage

Dak

  • Soort dak Plat dak

Overig

  • Onderhoud binnen Matig tot redelijk
  • Onderhoud buiten Matig tot redelijk
  • VVE Bijdrage € 202.87
  • Bijzonderheden Gedeeltelijk gestoffeerd
  • Permanente bewoning Ja
  • Huidig gebruik Woonruimte
  • Huidige bestemming Woonruimte

Voorzieningen

  • Voorzieningen Mechanische ventilatie, tv kabel, lift

Kadastrale gegevens

  • Gemeente Zoetermeer
  • Sectie E
  • Eigendom Volle eigendom
  • Perceelnummer 5409
  • Index 56

Extra

Burgerlijke staat

Gehuwd
Ongehuwd
Gescheiden
Verweduwd
  • Gehuwd
  • Ongehuwd
  • Gescheiden
  • Verweduwd

Leeftijd in gemeente

0 - 15 jaar
15 - 25 jaar
25-45 jaar
45 - 65 jaar
65+ jaar
  • 0 - 15 jaar
  • 15 - 25 jaar
  • 25 - 45 jaar
  • 45 - 65 jaar
  • 65+ jaar

Gezinnen met kinderen

Met kinderen
Zonder kinderen
Alleenstaand
  • Met kinderen
  • Zonder kinderen
  • Alleenstaand

Leeftijd buurtbewoners

0 - 15 jaar
15 - 25 jaar
25-45 jaar
45 - 65 jaar
65+ jaar
  • 0 - 15 jaar
  • 15 - 25 jaar
  • 25 - 45 jaar
  • 45 - 65 jaar
  • 65+ jaar

Bewoners in de straat

Man
Vrouw
  • Man
  • Vrouw

      Documenten

      Voor alle documenten van deze woning willen we je graag doorverwijzen naar Move.nl.

      Inloggen MOVE.NL

      Aankoopmakelaar

      Hulp nodig bij de aankoop?
      Onze aankoopmakelaars helpen graag

      Aankoopmakelaar
      Dit veld is bedoeld voor validatiedoeleinden en moet niet worden gewijzigd.
      Dit veld is bedoeld voor validatiedoeleinden en moet niet worden gewijzigd.

      "*" geeft vereiste velden aan

      "*" geeft vereiste velden aan

      Dit veld is bedoeld voor validatiedoeleinden en moet niet worden gewijzigd.
      Dit veld is bedoeld voor validatiedoeleinden en moet niet worden gewijzigd.
      Ik wil graag meer informatie ontvangen over(Vereist)
      Dit veld is bedoeld voor validatiedoeleinden en moet niet worden gewijzigd.
      Dit veld is verborgen bij het bekijken van het formulier

      Oktober 2025

      Ma Di Wo Do Vr Za Zo
      1 2 3 4 5
      6 7 8 9 10 11 12
      13 14 15 16 17 18 19
      20 21 22 23 24 25 26
      27 28 29 30 31

      22 Oktober 2025

      23 Oktober 2025

      24 Oktober 2025

      25 Oktober 2025

      27 Oktober 2025

      28 Oktober 2025

      29 Oktober 2025

      30 Oktober 2025

      31 Oktober 2025

      De afspraak is nog niet definitief. We nemen binnenkort contact met je op om de afspraak te bevestigen.

      "*" geeft vereiste velden aan

      Dit veld is bedoeld voor validatiedoeleinden en moet niet worden gewijzigd.

      "*" geeft vereiste velden aan

      Dit veld is bedoeld voor validatiedoeleinden en moet niet worden gewijzigd.
      Waar wil je een plek voor reserveren?

      "*" geeft vereiste velden aan

      Dit veld is bedoeld voor validatiedoeleinden en moet niet worden gewijzigd.
      Geen titel

      "*" geeft vereiste velden aan

      Dit veld is bedoeld voor validatiedoeleinden en moet niet worden gewijzigd.
      Waar wil je een afspraak voor?*

      De aanmelding komt ten goede van : Willemstraat 177, Zoetermeer

      "*" geeft vereiste velden aan

      Dit veld is bedoeld voor validatiedoeleinden en moet niet worden gewijzigd.
      Dit veld is bedoeld voor validatiedoeleinden en moet niet worden gewijzigd.
      Dit veld is verborgen bij het bekijken van het formulier
      Dit veld is verborgen bij het bekijken van het formulier

      Oktober 2025

      Ma Di Wo Do Vr Za Zo
      1 2 3 4 5
      6 7 8 9 10 11 12
      13 14 15 16 17 18 19
      20 21 22 23 24 25 26
      27 28 29 30 31

      22 Oktober 2025

      23 Oktober 2025

      24 Oktober 2025

      25 Oktober 2025

      27 Oktober 2025

      28 Oktober 2025

      29 Oktober 2025

      30 Oktober 2025

      31 Oktober 2025

      Dit veld is bedoeld voor validatiedoeleinden en moet niet worden gewijzigd.

      "*" geeft vereiste velden aan

      Dit veld is bedoeld voor validatiedoeleinden en moet niet worden gewijzigd.

      Adres te taxeren woning

      Soort woning
      Doel van taxatie

      Binnen welke periode moet de taxatie worden uitgevoerd?
      MM slash DD slash JJJJ
      MM slash DD slash JJJJ

      "*" geeft vereiste velden aan

      Dit veld is bedoeld voor validatiedoeleinden en moet niet worden gewijzigd.

      "*" geeft vereiste velden aan

      Dit veld is bedoeld voor validatiedoeleinden en moet niet worden gewijzigd.
      Ik heb interesse in:*

      "*" geeft vereiste velden aan

      Dit veld is bedoeld voor validatiedoeleinden en moet niet worden gewijzigd.
      Adres*

      "*" geeft vereiste velden aan

      Dit veld is bedoeld voor validatiedoeleinden en moet niet worden gewijzigd.